Перейти до публікації
Пошук в
  • Додатково...
Шукати результати, які містять...
Шукати результати в...

Довести до ума ремонт, 1к. 56м

Mykhailo

Рекомендовані повідомлення

Добрый день,

 

Возобновляю ремонт в 1ком квартире, 56м

Фото текущего состояния и план прилагаю.

 

Фронт работ:

- "передвинуть" стенку (новая задумка)

- электрика (новые точки, плюс сдвинуть уже готовые)

- положить плитку (пол, с/у, рабочий фартук)

- стены, потолок (доводочное выравнивание)

- поклейка обоев

- установка сантехники

- другое

 

Какие будут рекомендации/предложения?

Спасибо.

 

С уважением, Михаил

390652003_Planflat.thumb.jpg.1ccce9678256566a8b3491699344d92e.jpg

DSC00426.thumb.JPG.e5c7d01ecb95ff896f77e51e18cb470f.JPG

IMAG0596.thumb.jpg.c585721c6e65b71d441a8e62736c504a.jpg

Посилання на коментар
Поділитися на інших сайтах

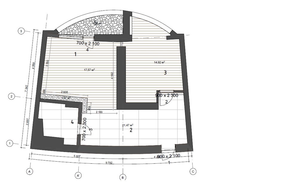
Добрый день,

 

Возобновляю ремонт в 1ком квартире, 56м

Фото текущего состояния и план прилагаю.

 

Фронт работ:

- "передвинуть" стенку (новая задумка)

- электрика (новые точки, плюс сдвинуть уже готовые)

- положить плитку (пол, с/у, рабочий фартук)

- стены, потолок (доводочное выравнивание)

- поклейка обоев

- установка сантехники

- другое

 

Какие будут рекомендации/предложения?

Спасибо.

 

С уважением, Михаил

Обращайтесь поможем. С уважением Сергей Владимирович.
Посилання на коментар
Поділитися на інших сайтах

Створіть акаунт або увійдіть у нього для коментування

Ви маєте бути користувачем, щоб залишити коментар

Створити акаунт

Зареєструйтеся для отримання акаунта. Це просто!

Зареєструвати акаунт

Увійти

Вже зареєстровані? Увійдіть тут.

Увійти зараз
×
×
  • Створити...