Перейти до публікації
Пошук в
  • Додатково...
Шукати результати, які містять...
Шукати результати в...

Винница. Ищу строителей. Коробка - ракушняк, облицовочный кирпич

LoopAll

Рекомендовані повідомлення

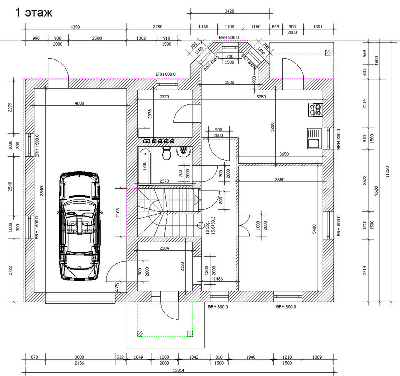
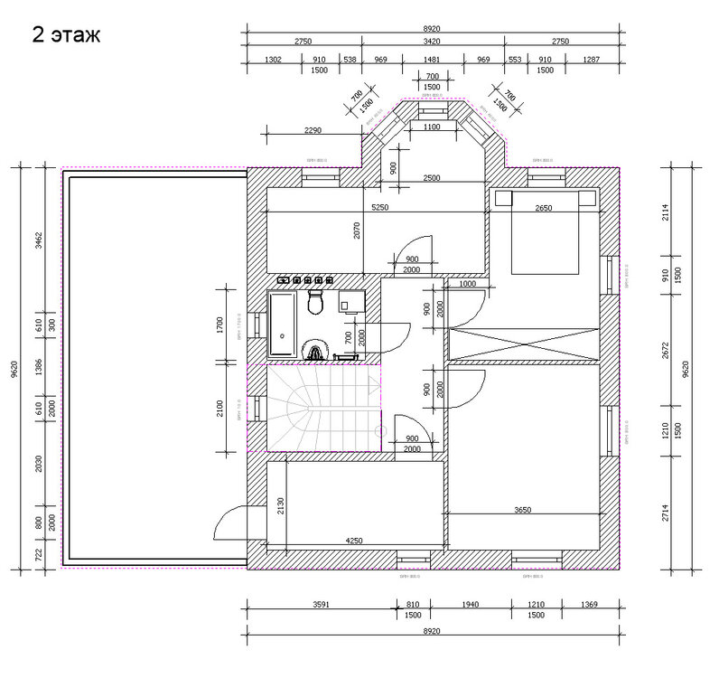
Ищу строителей для сооружения коробки дома в Виннице, начало работ - август-сентябрь. 2 этажа + пристроенный гараж. Фундамент готов. Материал стен: ракушечник (скорее всего крымский) полблока + 100мм минвата + облицовочный кирпич (скорее всего Ивано-Франковский). Перекрытие первого этажа - ж/б панели на армопояс. Жилье не предоставляется. Интересуют реальные цены и сроки. Живые примеры работ приветствуются. Площадь внешних/несущих стен (без учета дверей и окон) около 250 кв.м. Высота этажа 2,80 м.

Планы этажей и фасады:

Plan_1.thumb.jpg.c2e16c006afa38eda8eb7dcacd4735c0.jpg

Plan_2.thumb.jpg.470119e6974e0c8c124922a118c80250.jpg

1.thumb.jpg.49c619424dcd980746a7d8b7bf5e111f.jpg

2.thumb.jpg.6663fc35e25832fa6d52342f8ac0998c.jpg

3.thumb.jpg.35f7f45e7dfbc3c66e4ce30a8cbdf5d6.jpg

4.thumb.jpg.76f19cfc929f9ed77eb66f7968509303.jpg

Жду предложений.

Посилання на коментар
Поділитися на інших сайтах

Выполним все работы. Качественно и профессионально. Гарантия

Меня стоимость интересует не меньше, чем вышеперечисленные аргументы. Честно говоря, еще не видел ни одного строителя, который бы сказал, что работает некачественно и непрофессионально ;)

Интересуют реальные цены и сроки

Рассматриваю только предложения с конкретными цифрами.

Посилання на коментар
Поділитися на інших сайтах

Меня стоимость интересует не меньше, чем вышеперечисленные аргументы. Честно говоря, еще не видел ни одного строителя, который бы сказал, что работает некачественно и непрофессионально ;)

 

Рассматриваю только предложения с конкретными цифрами.

 

5 балов.)))) все обещают работать качественно.

 

у меня бригады из Винницы все, могу поделится если будут свободние.!!!

  • Лайк 1
Посилання на коментар
Поділитися на інших сайтах

Всем спасибо!

Вопрос закрыт. Бригада найдена, но не через форум. Целых два (или три) предложения поступило за это время и ни в одном небыло хоть капельки конкретики. Бла-бла-бла... :fool:

Посилання на коментар
Поділитися на інших сайтах

Гість
Ця тема закрита для публікації повідомлень.
×
×
  • Створити...