Vadim79 Опубліковано: 5 липня 2011 Поділитись Опубліковано: 5 липня 2011 День добрый господа, имею участок красивый, ровный 36х25 на нем стоит дом 50 года постройки глинобитный абсолютно жилой со всеми комуникациями. хочется из этого дома что сделать современное и функциональное, тоесть при минимальных затратах максимум функциональности. То что буду укреплять фундамент и менять крышу это само собой. К дому пристроена пристройка с деформационным швом, вот ее хочется оторвать и пристроить к дому пристройку что бы в доме могли комфортно проживать 4 меловека. буду признателен помощи советом знающих дело... Да забыл добавить бюджет под заселение 40-50 тыщ. Америкосов... Посилання на коментар Поділитися на інших сайтах More sharing options...
Балбес-строитель Опубліковано: 5 липня 2011 Поділитись Опубліковано: 5 липня 2011 Я конечно извеняюсь, но первого фото хватило, чтобы оценить сооружение (домом назвать тяжело). Всегда реконструкция стоит дороже нового строительства. Реконструируют только объекты имеющие историческую, архитектурную, археологическую ... ценность. Данное сооружение возможно имеет археологическую ценность, но если вновь построенная пристройка так выглядит, то что говорить про остальное. Не нужно заморачиваться с реконструкцией, сносить и строить новый дом - будет дешевле. П.С. Не смотря на свой ник, я все таки высокообразованный инженер-строитель. Посилання на коментар Поділитися на інших сайтах More sharing options...
dimasik Опубліковано: 5 липня 2011 Поділитись Опубліковано: 5 липня 2011 бюджет под заселение 40-50 тыщ. Америкосов... и с таким то бюджетом!! не выбрасывайте деньги на ветер!! Посилання на коментар Поділитися на інших сайтах More sharing options...
вторик Опубліковано: 6 липня 2011 Поділитись Опубліковано: 6 липня 2011 утеплится ватой, перкрытие втч. крышу сменить на битумку. стены обшить сайдингом. поменять окна и пошло поехало, пристройка, санузлы, септик, отопление, внутрянка, полы... сорока мало булет а вы говорите на ветер. за сорок возможно выгнать коробку, будет точно такоеже состояние как сейчас. но не будет денег. правда коробочка будет поосновательней. а толку. Посилання на коментар Поділитися на інших сайтах More sharing options...
Начинающие Опубліковано: 6 липня 2011 Поділитись Опубліковано: 6 липня 2011 правда коробочка будет поосновательней. а толку. А толку - это будет новый дом, который Вы построили сами. Вам в нем будет комфортно и уютно. И проживет он в хорошем состоянии значительно дольше нежели реконструированный старый и ценность его тоже будет намного выше. Мы тоже реконструировали старый и строили новый. Итог построить коробку дороже процентов на 20% нежели реконструировать старый, при равных площадях. Я только за постройку нового! В нем и комнаты и окна будут такими, как Вы захотите. Для того что бы по максимум использовать имеющиеся коммуникации. Я б разобрала старый и на его месте построила новый, с планировкой учитывающей ввод в дом коммуникаций. Посилання на коментар Поділитися на інших сайтах More sharing options...
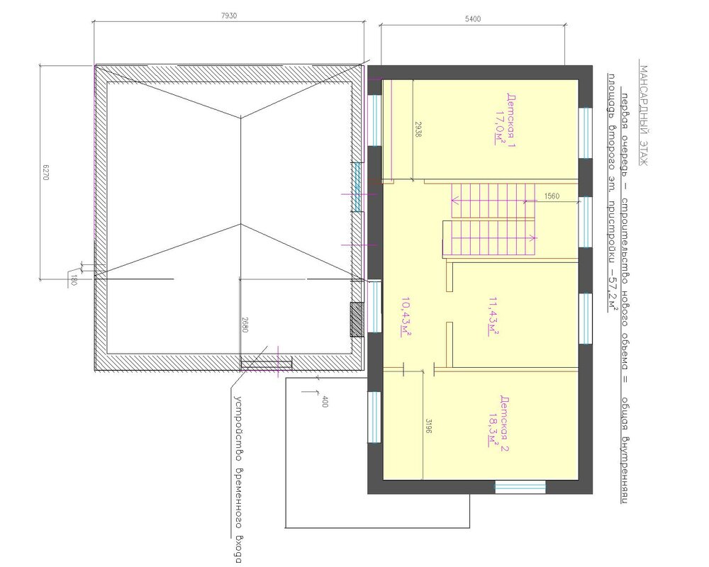
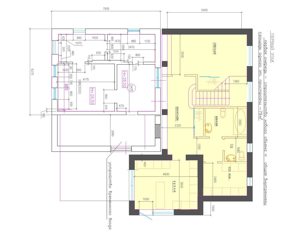
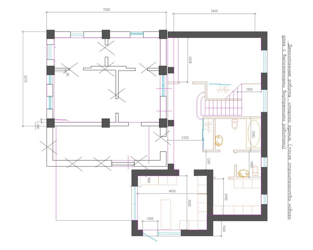
Vadim79 Опубліковано: 6 липня 2011 Автор Поділитись Опубліковано: 6 липня 2011 Я яще с домом ничего неделал. По поводу пристройки, фундамента и крыши это только планы. То что новый дом построить проще эт понятно, но тут задача сохранить старый и на базе старого построить новый. Вот что предлагает мне архитектор Посилання на коментар Поділитися на інших сайтах More sharing options...
вторик Опубліковано: 6 липня 2011 Поділитись Опубліковано: 6 липня 2011 хороший у вас архитектор. концовка ок. не вижу смысла мудрить с усилением сохранением. в этом случае ломать и потом строить. Посилання на коментар Поділитися на інших сайтах More sharing options...
ПЛАСТИК Опубліковано: 6 липня 2011 Поділитись Опубліковано: 6 липня 2011 То что новый дом построить проще эт понятно, но тут задача сохранить старый и на базе старого построить новый. То есть вы сами понимаете не совсем разумное использование сил и средств. А кто вам такую задачу поставил? и с чем это связано? просто интересно Посилання на коментар Поділитися на інших сайтах More sharing options...
apxitektop.s Опубліковано: 6 липня 2011 Поділитись Опубліковано: 6 липня 2011 Вадим в вашем случае в первую очередь надо подойти к иследованию существующих фундаментов, определить их несущую способность, материал, сделать шурфы - штук 4-5 под несущими стенами, без технического обследования - можно попасть на "деньги" - когда все начнет рушится, поэтому - начните с техобследования вашего строения. Учтите, что архитектор этим не занимается, это должна быть фирма у которой есть лицензия на эту работу, кроме того это должны делать опытный инженер конструктор совместно с геологом. Кроме того, вы должны учесть, что реконструкция вам обойдется как минимум на 20% -50% будет дороже чем новое строительство. Вы писали выше , что хотите усилять фундаменты, а это ооочень дорогое удовольствие растянутое во времени, конечно если это делать правильно ,а не как дядька какой нить посоветует, помимо этого возможно понадобится силикатизация грунтов Исходя из поставленной вами задачи - вложиться в 50 штук убитых енотов - вы не влезете в эту сметную стоимость СМР 2 Посилання на коментар Поділитися на інших сайтах More sharing options...
Рекомендовані повідомлення
Створіть акаунт або увійдіть у нього для коментування
Ви маєте бути користувачем, щоб залишити коментар
Створити акаунт
Зареєструйтеся для отримання акаунта. Це просто!
Зареєструвати акаунтУвійти
Вже зареєстровані? Увійдіть тут.
Увійти зараз