Олех Опубліковано: 2 червня 2008 Поділитись Опубліковано: 2 червня 2008 Нужна бригада на монолитый фундамент 100 м. куб. и перекрытие цокольного этажа. Кому итересно - можно сразу смету в личку Посилання на коментар Поділитися на інших сайтах More sharing options...
natain Опубліковано: 2 червня 2008 Поділитись Опубліковано: 2 червня 2008 вОББЩЕ ЛУЧШЕ ПРОЕКТ ПОСМОТРЕТЬ А ПОТОМ СМЕТУ ДЕЛАТЬ. Могу порекомендовать. николай 8050-462 94 55 Посилання на коментар Поділитися на інших сайтах More sharing options...
SHIP Опубліковано: 3 червня 2008 Поділитись Опубліковано: 3 червня 2008 Давай проект посчитаем может договоримся Посилання на коментар Поділитися на інших сайтах More sharing options...
tskfreza Опубліковано: 3 червня 2008 Поділитись Опубліковано: 3 червня 2008 Бетонування фундаментів - 280 грн/куб (привозний бетон) Розробка грунту вручну - 60 грн/куб Армування фундаментів - 400 грн/т Влаштування вертикальної гідроізоляції обмазочної - 18 грн/м.кв. Зворотня засипка грунта із трамбуваннням - 50 грн/куб Засипка, трамбування і планування грунту під підлогу - 25 грн/м.кв. Влаштування бетонної підготовки під підлогу t=10см - 25 грн/м.кв. Перекриття над цокольним поверхом: аренда горизонтальної опалубки (приблизно 120 м.кв.) 5000 грн за два тижні армування перекриття - 450 грн/т бетонування перекриття - 400 грн/куб т.228-72-44 Олександр. Більш предметно можна спілкуватись після перегляду плану та розрізів фундаменту. Посилання на коментар Поділитися на інших сайтах More sharing options...
vitold Опубліковано: 3 червня 2008 Поділитись Опубліковано: 3 червня 2008 Звоните нам 8(066) 596 54 24 Виталий Посилання на коментар Поділитися на інших сайтах More sharing options...
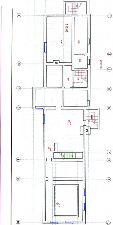
Олех Опубліковано: 4 червня 2008 Автор Поділитись Опубліковано: 4 червня 2008 Вот планы, можно полюбопытствовать... Посилання на коментар Поділитися на інших сайтах More sharing options...
vitold Опубліковано: 4 червня 2008 Поділитись Опубліковано: 4 червня 2008 Вот планы, можно полюбопытствовать... Да план это хорошо.Но хотелось бы с вами еще и по телефону переговорить Посилання на коментар Поділитися на інших сайтах More sharing options...
Олех Опубліковано: 4 червня 2008 Автор Поділитись Опубліковано: 4 червня 2008 80503528369 Олег. Звоните. Посилання на коментар Поділитися на інших сайтах More sharing options...
vitold Опубліковано: 4 червня 2008 Поділитись Опубліковано: 4 червня 2008 80503528369 Олег. Звоните. Спасибо!Сегодня наберем Посилання на коментар Поділитися на інших сайтах More sharing options...
Олех Опубліковано: 4 червня 2008 Автор Поділитись Опубліковано: 4 червня 2008 Сегодня? Ну да.. 01 минута 5 июня) Посилання на коментар Поділитися на інших сайтах More sharing options...
Рекомендовані повідомлення
Створіть акаунт або увійдіть у нього для коментування
Ви маєте бути користувачем, щоб залишити коментар
Створити акаунт
Зареєструйтеся для отримання акаунта. Це просто!
Зареєструвати акаунтУвійти
Вже зареєстровані? Увійдіть тут.
Увійти зараз