juco Опубліковано: 15 липня 2011 Поділитись Опубліковано: 15 липня 2011 Начинаю тему, хотя ещё ничего строить не начал На сегодня уже есть: 1. Участок земли 2. Проект 3. Разрешение на строительство 4. Электричество 5. Сборной металлический гараж на участке для складирования нужных вещей 6. Туалет, стол с лавочками 7. Огромное желание строиться 1 Посилання на коментар Поділитися на інших сайтах More sharing options...
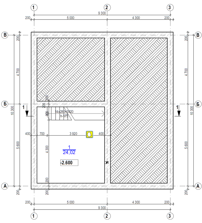
juco Опубліковано: 15 липня 2011 Автор Поділитись Опубліковано: 15 липня 2011 Начну с проекта - выкладываю пару картинок, чтобы дать представление о нём Посилання на коментар Поділитися на інших сайтах More sharing options...
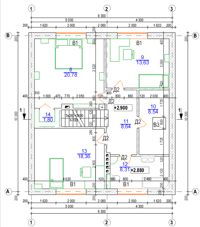
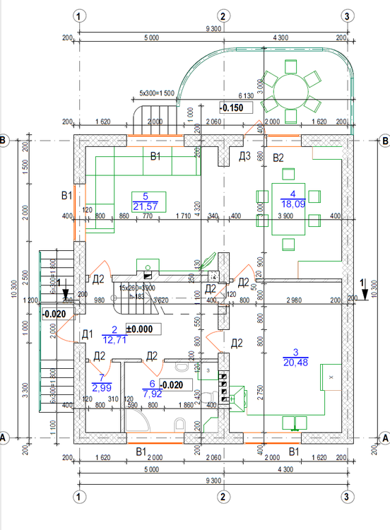
juco Опубліковано: 15 липня 2011 Автор Поділитись Опубліковано: 15 липня 2011 Планировку придумывал сам, поэтому многим она покажется очень специфичной. Да, в реальном доме будут некоторые отличия от проекта, не влияющие на основные параметры. Например, терраса будет совсем не такой, она будет отдельно от дома и вытянута перпендикулярно дому, её уровень будет ниже. Слева от дома - там где крыльцо и вход - будет огромный навес по всей длине стены дома, это будет место для машин, и, скорее всего, для хозяйственных задач, вроде сушки белья. Да, и я думаю отступить от проекта в вопросе высоты помещения подвала - как по мне, высота потолка в 2.60 в помещении для хранения овощей и припасов совершенно излишня, хватит и 2.10. Посилання на коментар Поділитися на інших сайтах More sharing options...
juco Опубліковано: 16 липня 2011 Автор Поділитись Опубліковано: 16 липня 2011 Фундамент буду лить "щелевым" методом - в траншеи, в том числе и стены подвала. В качестве гидроизоляции думаю использовать добавку в бетон. Посилання на коментар Поділитися на інших сайтах More sharing options...
glirus Опубліковано: 16 липня 2011 Поділитись Опубліковано: 16 липня 2011 Удачи в строительстве 1 Посилання на коментар Поділитися на інших сайтах More sharing options...
Игореха Опубліковано: 16 липня 2011 Поділитись Опубліковано: 16 липня 2011 Легкого начала и всего строительства! А что в ней специфичного? Тут у всех проекты разные, специфики хоть отбавляй Я тоже сам проект делал, кстати очень близкие проекты вышли ;) А топочная у вас где планируется? Если подвал только для овощей, то 210 в принципе хватит, но лучше 220 ;) А вот если топочную решите в подвале делать, то высота чистого потолка нужна уже не менее 250. Учтите это ;) Посилання на коментар Поділитися на інших сайтах More sharing options...
juco Опубліковано: 19 липня 2011 Автор Поділитись Опубліковано: 19 липня 2011 Первоначально думал ставить котёл в подвале, но потом узнал, что к помещению для котла есть особые требования - должно быть окно площадью не меньше, чем столько-то. Думаю, газовый котёл без проблем можно разместить в ванной на первом этаже или в кухне. Так что подвал будет только для овощей. Посилання на коментар Поділитися на інших сайтах More sharing options...
Lesiya Опубліковано: 19 липня 2011 Поділитись Опубліковано: 19 липня 2011 На кухне, можно, а в ванной категорически нельзя!!!!! Посилання на коментар Поділитися на інших сайтах More sharing options...
juco Опубліковано: 19 липня 2011 Автор Поділитись Опубліковано: 19 липня 2011 А почему нельзя? Посилання на коментар Поділитися на інших сайтах More sharing options...
koshki Опубліковано: 19 липня 2011 Поділитись Опубліковано: 19 липня 2011 А почему выбрали керамзитобетон? Посилання на коментар Поділитися на інших сайтах More sharing options...
juco Опубліковано: 19 липня 2011 Автор Поділитись Опубліковано: 19 липня 2011 Скажем так, методом исключения. Кирпич дорог, достать качественный кирпич в наших краях непросто, кирпичная стена недостаточно хороший теплоизолятор, кирпичи имеют меньший размер, чем блоки и поэтому более трудоёмкие в укладке. Про пеноблоки все говорят, что они очень плохого качества, поскольку их уже делают в каждом селе. Газобетон (как и пеноблоки) - стена из него не может быть несущей, значит, надо делать несущую конструкцию из железобетона, а этот железобетон будет мостиком холода, теплопроводность стены будет очень сильно различаться в местах, где железобетон и в местах, где газобетон. Также, я читал, что газо и пенобетон должны ставиться на тонкий слой клея, а не на раствор, и штукатурка и краска обязательно должны быть с хорошей паропроницаемостью. Конечно, всё это вопросы решаемые, можно спрятать железобетонные колонны внутрь, можно использовать правильный раствор, штукатурку и краски.... Но я пошёл другим путём От поротерма я отказался из-за цены, да и поротерм тоже не предназначен для несущих конструкций, он хрупкий. Про какие-либо другие материалы не думал вообще. Да, был вариант делать дом из сруба, но от этого тоже пришлось отказаться. Потому как, по моему мнению, сруб хорошо бы смотрелся или где-то далеко за городом, среди леса, холмов, гор, или на склоне горы/холма, или на большом участке, где его можно красиво вписать в интересный ландшафт, насадить деревьев. У меня же малюсенький участок 19.50 х 30.50 в городе, в 5 минутах езды от спального района, на абсолютно ровном поле. Про керамзит я задумался, случайно попав на этот сайт dom.delaysam.ru/. Тут, правда, автор сайта описывает строительство из монолитного керамзитобетона. Изначально думал про монолитный к-бетон и я, но архитектор сказал, что проблематично будет готовить и утверждать такой проект, ибо монолитный керамзитобетон материал экзотичный и редкий, а вот что такое блок все знают и проблем не будет. Кроме того, я до конца ещё не знаю, какую часть работ буду делать сам с помощью родственников, а для какой буду нанимать профессиональных рабочих. Технология монолитной отливки, скажем так, специфична, а вот строительство из блоков знакомо всем рабочим. Чем хорош керамзитоблок? Низкая цена, экологичность, отсутствие специфичных требований к раствору, штукатурке и т.д. Очень хорошие теплоизоляционные свойства. Большая прочность - стены могут быть несущими. Многие из знакомых посмеивались над таким выбором - мол, это популярный материал для коровников, но сказать какие именно недостатки у керамзитобетона никто из них не смог. Архитектор сделал рассчёты по теплопроводности и сказал, что стена из 40 см керамзитобетона с большим запасом укладывается в нормы по теплопроводности, дом будет хорошо сберегать тепло, но по моей просьбе добавил в проект ещё и 5 см ЭППС по внешним стенам, на всякий случай. Посилання на коментар Поділитися на інших сайтах More sharing options...
AНДРЮША Опубліковано: 19 липня 2011 Поділитись Опубліковано: 19 липня 2011 Низкая цена, экологичность, отсутствие специфичных требований к раствору, штукатурке и т.д. Очень хорошие теплоизоляционные свойства. Большая прочность - стены могут быть несущими. Многие из знакомых посмеивались над таким выбором - мол, это популярный материал для коровников, но сказать какие именно недостатки у керамзитобетона никто из них не смог. Странно, никто вам не сказал, что КБ блоки холодные и кривые. Ни в коей мере не осуждаю ваш выбор, а только объективности ради. Посилання на коментар Поділитися на інших сайтах More sharing options...
juco Опубліковано: 19 липня 2011 Автор Поділитись Опубліковано: 19 липня 2011 Керамзит, вообще-то, теплоизолятор. Я жил раньше в Магаданской области, там большинство многоэтажек строилось из керамзитоблоков, и при -40 на улице средней горячести батареи обеспечивали вполне комфортную температуру внутри. По справочникам керамзитобетонные блоки имеют такую же низкую теплопроводность, как, например, газобетон. Я понимаю, что реальность иногда может сильно не совпадать со справочниками Но думаю, всё-таки многое зависит от качества керамзитоблоков и от качества их кладки. Я так понимаю, у Вас есть неудачный опыт проживания в доме из керамзитоблоков. Расскажите, какая была толщина стен, какая отделка изнутри и снаружи, насколько плохо стены держали тепло? Посилання на коментар Поділитися на інших сайтах More sharing options...
AНДРЮША Опубліковано: 19 липня 2011 Поділитись Опубліковано: 19 липня 2011 Ваши воспоминания, как я понимаю, относятся к эпохе Страны Советов. Сейчас сильно изменились требования по утеплению домов, а так же цены на теплоносители. Что касается своего опыта, то в КБ доме не живал, но имел сними дело. У меня сложен цоколь из этих блочков 40х20х20 в камень. Блоки реально холодные и очень кривые, расход раствора значительный при шве 1-1.5см. Не думаю, что мне попался плохой производитель, просто технология его приготовления не располагает к лучшему. Посилання на коментар Поділитися на інших сайтах More sharing options...
juco Опубліковано: 19 липня 2011 Автор Поділитись Опубліковано: 19 липня 2011 Спасибо за информацию, я учту. А Вы точно уверены, что цоколь сложен именно и керамзитоблоков, а не шлакоблоков, или, например, виброблоков? В моём городе очень популярны дома из виброблоков, их делают на вибростенде из цемента, воды и каменной мучки(отсева). Это очень дешёвый материал, и он и вправду довольно холодный, дома из него тщательно утепляют ЭППС снаружи, но живут как-то, конечно же, тратясь на отопление. Я думаю перед покупкой керамзитоблоков взять у производителя пару штучек и проверить на предмет геометрии и теплопроводности. Если неудастся найти качественный материал, остаётся "план Б" - делать стены из монолитного керамзитобетона, отливать их прям на месте. Посилання на коментар Поділитися на інших сайтах More sharing options...
juco Опубліковано: 19 липня 2011 Автор Поділитись Опубліковано: 19 липня 2011 Да, и Вы уверены, что блоки в цоколе не тянут воду из фундамента? Может, они просто сырые? Посилання на коментар Поділитися на інших сайтах More sharing options...
juco Опубліковано: 19 липня 2011 Автор Поділитись Опубліковано: 19 липня 2011 Ну вот я что нашёл в гугле: www.itcorus.com/catalog/obor_pro/blokov_iz_shlakobetona/keramzitoblok/ "Керамзитоблок — это экологически чистый строительный стеновой материал. Они обладают хорошими теплоизоляционными свойствами, что делает их предпочтительными при использовании, как в теплых, так и холодных климатических условиях." "Из-за «кустарей-умельцев», которых с возросшим спросом на стеновые материалы, появилось множество, керамзитоблок получил «дурную» славу. «Что главное в производстве керамзитоблока, да и не только?» — спросите любого специалиста. И он вам ответит: «В производстве керамзитоблока главное строгое соблюдение технологии!». Вот — что главное! Производство блоков в почти «домашних» условиях тоже возможна, в отличии от пенобетона, что и доказывается множеством появившихся «умельцев», которые стремясь удешевить себестоимость, нарушали технологию производства, используя дешевые цементы, уменьшая процент содержания цемента и др., что соответственно влекло к потери качества и прочности конечного изделия. Но произведенный в соответствии с ТУ и ГОСТ керамзитобетонный блок, является прочным материалом, по прочности превосходящим пенобетонные блоки как конструкционные, так и теплоизоляционные, не говоря уже о стоимости возводимого сооружения, где с керамзитобетонными блокам могут соперничать лишь шлакоблоки, но уступая по теплоизоляционным свойствам, все же отстают от керамзитобетонных." Посилання на коментар Поділитися на інших сайтах More sharing options...
koshki Опубліковано: 19 липня 2011 Поділитись Опубліковано: 19 липня 2011 Керамзитоблоки бывают очень разные. В одних больше керамзита — они легче, теплее но с плохой геометрией и менее прочные, а бывают где больше бетона — там все наоборот. А про ракушняк вы думали? Посилання на коментар Поділитися на інших сайтах More sharing options...
AНДРЮША Опубліковано: 19 липня 2011 Поділитись Опубліковано: 19 липня 2011 Ссылка приводит на сайт продавца КБ, т.е. не может быть объективной. И потом кроме КБ, там предлагают оборудование и для производства газобетона, при этом не менее его хвалят. Во-вторых я не хочу ввязываться в полемику - какой материал лучше. Лучший всегда тот, который выбрал застройщик. Просто была фраза о том, что вам никто не может сказать о минусах, так их есть у меня. И вопрос: сколько стоит у вас КБ? Вы представляете себе сумму в какую выльется ЭППС по всему фасаду? Посилання на коментар Поділитися на інших сайтах More sharing options...
juco Опубліковано: 19 липня 2011 Автор Поділитись Опубліковано: 19 липня 2011 Ну, я попробую из КБ построить, потом расскажу, удачным был этот выбор или нет. До возведения стен мне ещё очень далеко, поскольку ввязался в стройку не накопив больших средств Пока что программа-максимум на этот сезон это заливка фундамента, стены буду строить в следующем или послеследующем сезоне. Про ракушняк не думал пока что, но уже поздно, проект утверждён из керамзитобетона. Посилання на коментар Поділитися на інших сайтах More sharing options...
juco Опубліковано: 19 липня 2011 Автор Поділитись Опубліковано: 19 липня 2011 Цена материала - ок. 7.50 грн за блок, один блок заменяет 7 кирпичей. Может, я где чего неправильно считаю. Площадь наружных стен примерно 142 м. кв. Для примера, если обшивать их пенопластом ПСБ-С-35 1000х500х50 мм (я не знаю, плотность 35 достаточна для утепления наружных стен?), цена за 1 квадрат пенопласта 27 грн, значит, пенопласт бы мне обошёлся в 3834 грн. Ясное дело, что там ещё очень много расходов - дюбеля и клей для его закрепления, самоклеющаяся сетка, да и расход будет не 1 к 1 - часть материала уйдёт на обрезки. Но порядок суммы мне известен. Посилання на коментар Поділитися на інших сайтах More sharing options...
Lesiya Опубліковано: 19 липня 2011 Поділитись Опубліковано: 19 липня 2011 Потому-что в ванной влага, проконсультируйтесь на данном этапе с газовщиками, они вам лучше расскажут: где можно, какая минимальная кубатура помещения должна быть, какого размера окно и т.д. 1 Посилання на коментар Поділитися на інших сайтах More sharing options...
AНДРЮША Опубліковано: 19 липня 2011 Поділитись Опубліковано: 19 липня 2011 В п.11 вы написали "ЭППС 5см", потом ПСБ-С - это две большие разницы прежде всего по цене. Можно утеплять и ПСБ-25, только я бы толщину побольше сделал. Посилання на коментар Поділитися на інших сайтах More sharing options...
juco Опубліковано: 19 липня 2011 Автор Поділитись Опубліковано: 19 липня 2011 Да, логично, спасибо за информацию. Ну, тогда значит он будет стоять в кухне, это самый удобный вариант. Посилання на коментар Поділитися на інших сайтах More sharing options...
juco Опубліковано: 19 липня 2011 Автор Поділитись Опубліковано: 19 липня 2011 Да, и вправду, я взял цену не на тот материал... Ну, это ещё очень не скоро я до этого этапа дойду, минимум несколько лет. И думаю на этапе "коробка под крышей" уже можно будет оценить, насколько теплопроводные стены и выбрать соотв. толщину пенопласта или ЭППС. Посилання на коментар Поділитися на інших сайтах More sharing options...
Рекомендовані повідомлення
Створіть акаунт або увійдіть у нього для коментування
Ви маєте бути користувачем, щоб залишити коментар
Створити акаунт
Зареєструйтеся для отримання акаунта. Це просто!
Зареєструвати акаунтУвійти
Вже зареєстровані? Увійдіть тут.
Увійти зараз