Перейти до публікації
Пошук в
  • Додатково...
Шукати результати, які містять...
Шукати результати в...

Строим Дачу-нужен бригадир с бригадой!

no_ser

Рекомендовані повідомлення

Добрый день!

Хочу построить дачу в Калиновке Макаровского района. И для этого ищу бригадира(прораба) с толковой бригадой.

 

Общая площадь 50м2. Внешний размер 6х6м.

Стены Поротерм+штукатурка(Важен опыт работы с поротермом).

 

Интересует выполнение "под ключ", т.е. от фундамента до внутренней отделки со всеми сетями.

 

Начало работ-сейчас.:)

 

Расчет стоимости интересен за 1м2 за весь комплекс работ без учёта материалов(так уже пробовал приремонте квартиры.очень удобно). Материалы отдельной статьей.

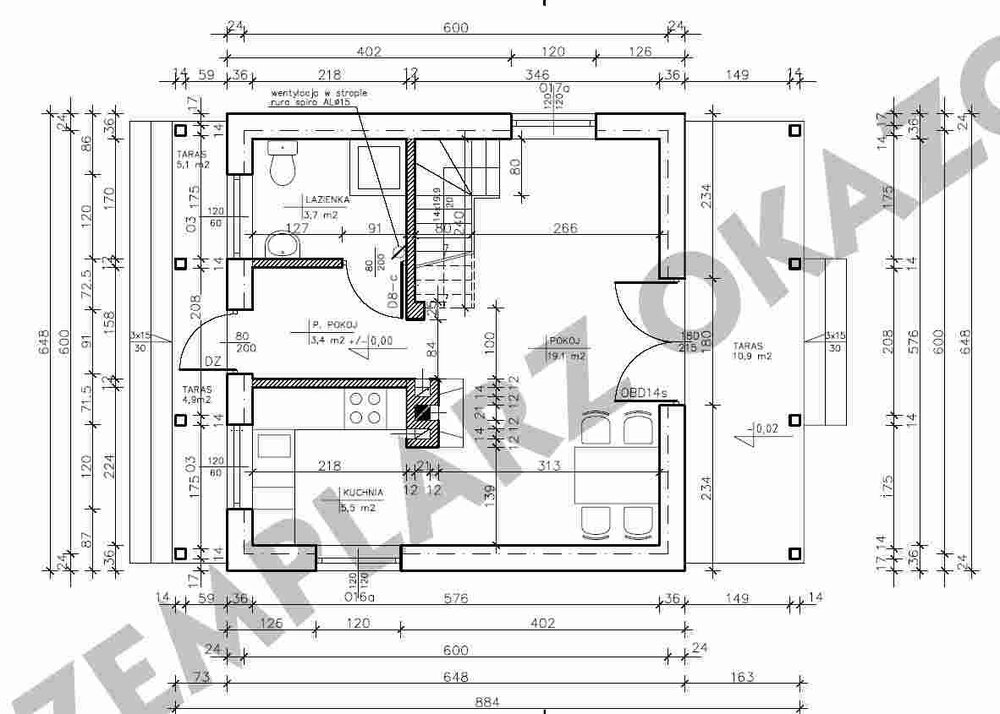
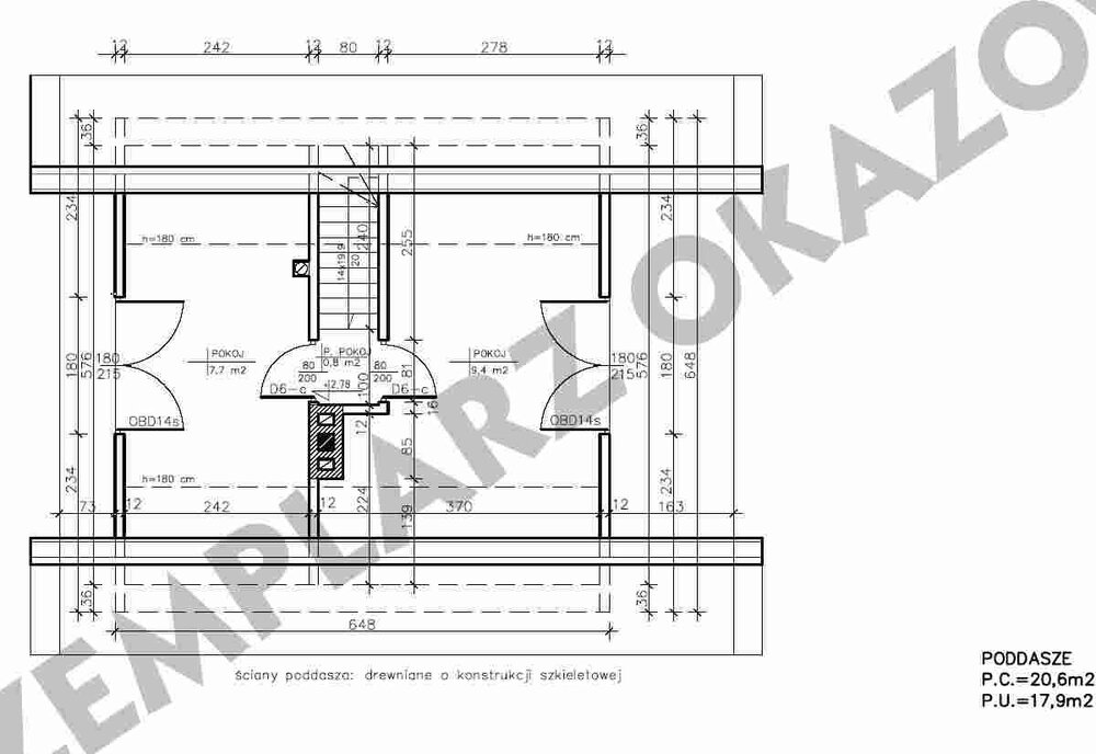
Картинки проекта прикрепляю.

 

Пожалуйста порекомендуйте толкового бригадира.

Буду ждать инфу в личку.

Спасибо!

micrus-1floor-small.thumb.jpg.1c2b6dac84a27e5bd5bbb55012506f2e.jpg

micrus-2floor-small.thumb.jpg.310edf9047edd8dee6ccde04f0639ab1.jpg

1356227637_micrus--small.thumb.jpg.7532e03de9ca008a9e433cb9ea656cb8.jpg

micrus-front-small.jpg.3deac2d9fbe753b1d7fcddd600074f09.jpg

micrus-rear-small.jpg.0cd40a6237303f0774dc6dfd7c18b983.jpg

Посилання на коментар
Поділитися на інших сайтах

Могу порекомендовать бригаду. Славик 8.098.569.29.76

 

Добрый день!

Хочу построить дачу в Калиновке Макаровского района. И для этого ищу бригадира(прораба) с толковой бригадой.

 

Общая площадь 50м2. Внешний размер 6х6м.

Стены Поротерм+штукатурка(Важен опыт работы с поротермом).

 

Интересует выполнение "под ключ", т.е. от фундамента до внутренней отделки со всеми сетями.

 

Начало работ-сейчас.:)

 

Расчет стоимости интересен за 1м2 за весь комплекс работ без учёта материалов(так уже пробовал приремонте квартиры.очень удобно). Материалы отдельной статьей.

Картинки проекта прикрепляю.

 

Пожалуйста порекомендуйте толкового бригадира.

Буду ждать инфу в личку.

Спасибо!

Посилання на коментар
Поділитися на інших сайтах

Добрый день!

Хочу построить дачу в Калиновке Макаровского района. И для этого ищу бригадира(прораба) с толковой бригадой.

 

Общая площадь 50м2. Внешний размер 6х6м.

Стены Поротерм+штукатурка(Важен опыт работы с поротермом).

 

Интересует выполнение "под ключ", т.е. от фундамента до внутренней отделки со всеми сетями.

 

Начало работ-сейчас.:)

 

Расчет стоимости интересен за 1м2 за весь комплекс работ без учёта материалов(так уже пробовал приремонте квартиры.очень удобно). Материалы отдельной статьей.

Картинки проекта прикрепляю.

 

Пожалуйста порекомендуйте толкового бригадира.

Буду ждать инфу в личку.

Спасибо!

 

Есть нормальные строители, качество, сроки. тел. 8 067 235-23-30 Юрий

Посилання на коментар
Поділитися на інших сайтах

Добрый день.

Выполним такой объём работы: постройка, отделка и коммуникации за 1600 грн м2

Можем показать выполненные работы.

362-57-98 8063-146-97-06

с уважением Владимир

Посилання на коментар
Поділитися на інших сайтах

Створіть акаунт або увійдіть у нього для коментування

Ви маєте бути користувачем, щоб залишити коментар

Створити акаунт

Зареєструйтеся для отримання акаунта. Це просто!

Зареєструвати акаунт

Увійти

Вже зареєстровані? Увійдіть тут.

Увійти зараз
×
×
  • Створити...