SanderEA Опубліковано: 4 серпня 2011 Поділитись Опубліковано: 4 серпня 2011 Добрый день, планировал сегодня закупать арматуру на плиту перекрытия. Оказалось, что что-то не правильно рассчитал архитектор. Длина арматуры не соответствует длине дому! Архитектор в отпуске, а работа стоит. Нужен срочно архитектор или конструктор, который рассчитает плиту перекрытия. Посилання на коментар Поділитися на інших сайтах More sharing options...
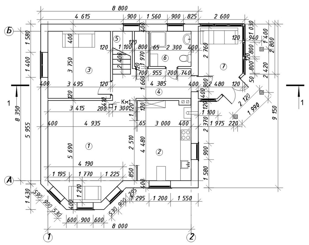
SanderEA Опубліковано: 4 серпня 2011 Автор Поділитись Опубліковано: 4 серпня 2011 Вот план первого этажа. По проекту уже залита колона 300х300 и планируется монолитное перекрытие толщиной 160мм Посилання на коментар Поділитися на інших сайтах More sharing options...
Ulan Опубліковано: 5 серпня 2011 Поділитись Опубліковано: 5 серпня 2011 арматура в нахлест ставится. Посилання на коментар Поділитися на інших сайтах More sharing options...
SanderEA Опубліковано: 5 серпня 2011 Автор Поділитись Опубліковано: 5 серпня 2011 Разобрался, оказалось что длина арматуры указана средняя , поэтому она короче длины дома. Посилання на коментар Поділитися на інших сайтах More sharing options...
Рекомендовані повідомлення
Створіть акаунт або увійдіть у нього для коментування
Ви маєте бути користувачем, щоб залишити коментар
Створити акаунт
Зареєструйтеся для отримання акаунта. Це просто!
Зареєструвати акаунтУвійти
Вже зареєстровані? Увійдіть тут.
Увійти зараз