Юлия_дизайнер Опубліковано: 16 серпня 2011 Поділитись Опубліковано: 16 серпня 2011 ПРИВЕТСТВУЮ ФОРУМЧАН! Итак, простой и бюджетный ремонт нашей (точнее родительской)) квартиры. 3к, 73 кв.м., панель, серия АППС, Оболонь. Из достоинств квартиры: - планировка -вид из окон на набережную - расположение -кооперативный дом - вся инфраструктура рядом Из недостатков: - панель - небольшие спальни - ремонт государственный 92го года - мало света и тепла (северо-западная сторона). Хотя учитывая жаркое лето – скорее преимущество, чем недостаток)) Вот часть недостатков и планируем решить. А также за небольшие деньги попробовать обновить саму квартиру. 2 Посилання на коментар Поділитися на інших сайтах More sharing options...
Юлия_дизайнер Опубліковано: 16 серпня 2011 Автор Поділитись Опубліковано: 16 серпня 2011 Старт проекта - 15.06.2011г Ожидаемый финиш – 15.09.2011г Будем надеятся, что сроки окончания ремонтных работ если и скорректируються, то незначительно 1 Посилання на коментар Поділитися на інших сайтах More sharing options...
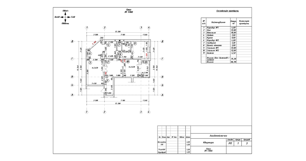
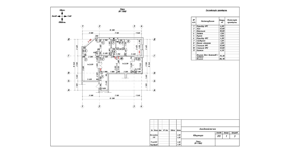
Юлия_дизайнер Опубліковано: 16 серпня 2011 Автор Поділитись Опубліковано: 16 серпня 2011 Организацию процесса ремонта берем на себя, также как и закупки материалов со скидками , контроль за выполненными работами, и, конечно, пригласим проверенных Мастеров 8-) Вид из окон. Фото квартиры до ремонта. Планировка. Посилання на коментар Поділитися на інших сайтах More sharing options...
Truv Опубліковано: 16 серпня 2011 Поділитись Опубліковано: 16 серпня 2011 Удачи в ваших начинаниях ! Сейчас сам делаю ремонт в квартире, после постройки дома, все идет намного быстрее и с меньшими потерями нервов и денег 2 Посилання на коментар Поділитися на інших сайтах More sharing options...
Юлия_дизайнер Опубліковано: 16 серпня 2011 Автор Поділитись Опубліковано: 16 серпня 2011 (змінено) Задача, которую ставили перед собой: за определенные время и бюджет, сделать качественную коробку с отделкой и коммуникациями, и обустроить необходимый минимум для жизни (ванную+с/у, кухню и одну спальню), а остальные помещения будут обустраиваться постепенно с появлением времени и финансов (мебелью, текстилем, освещением, декором и т.д. ). Ограничено время на работы, т.к. все время ремонта придется проживать на сьемной квартире, а они, как оказалось, на Оболоне, не столь доступны. Ограничен бюджет. Посему планируется, что работать будут всего несколько мастеров, один из которых будет выполнять роль бригадира на объекте. Змінено 16 серпня 2011 користувачем Юлия_дизайнер Посилання на коментар Поділитися на інших сайтах More sharing options...
whisker Опубліковано: 17 серпня 2011 Поділитись Опубліковано: 17 серпня 2011 Только закончил ремонт в одной из комнат нашей квартиры. Поскольку делал все сам, то имею абсолютно полное представление о расходе материалов. Исходные данные: панелька средней "паршивости" :D, т.е. кривизны. Выполненные работы: - содрал обои,смыл потолок. - установка розеток и выключателей (10 шт.) (было две ). Замена старой электропроводки на новую. - выготовка стен шпаклевкой до состояния "гладкие, не режет глаз". Конечно,можно ходить с правилом и просовывать под него лезвие, но это делать никто не будет. - покраска потолка,багеты, поклейка обоев, настил линолеума, плинтуса. Замена радиатора отопления, металлопластиковое окно и откосы были сделаны ранее и в этот этап не включены. Используемые материалы: сатенгипс, стабил, 10-долларовые обои, тиккурила на потолок, розетки турецкие, провод медь. Места закупки материалов: Юность, Новая Линия. Так вот - окончательный расчет показал, что квадратный метр площади комнаты с таким ремонтом обошелся ровно в 33 доллара. 1 Посилання на коментар Поділитися на інших сайтах More sharing options...
Юлия_дизайнер Опубліковано: 17 серпня 2011 Автор Поділитись Опубліковано: 17 серпня 2011 Поскольку делал все сам, то имею абсолютно полное представление о расходе материалов. Так вот - окончательный расчет показал, что квадратный метр площади комнаты с таким ремонтом обошелся ровно в 33 доллара. Это очень хороший результат!!! У нас расчетная (проектная) смета на материалы (у.е./кв.м.) чуть больше, посмотрим позже на фактическую Вы молодец, что сами все сделали, считайте, столько же приблизительно, если не больше, сьекономили на работах. Посилання на коментар Поділитися на інших сайтах More sharing options...
Юлия_дизайнер Опубліковано: 17 серпня 2011 Автор Поділитись Опубліковано: 17 серпня 2011 Перед началом ремонта было подсчитано 3 сметы: - смета материалов, - смета работ, - смета напонения интерьера. Расставлены приоритеты. Также заложено 10% на непредвиденные расходы. Посилання на коментар Поділитися на інших сайтах More sharing options...
Юлия_дизайнер Опубліковано: 17 серпня 2011 Автор Поділитись Опубліковано: 17 серпня 2011 Квартира жилая и потому, самое первое, что нужно было сделать, это разобрать вещи и вынести мебель. А также жителям ее сьехать на сьемное жилье (об этом отдельно) Как оказалось, эта процедура может занять около 2-х недель, много нервов, суматохи и много мужской силы Но, в результате, было найдено решение и квартира стояла свободная и готовая к началу ремонта. Вариант жить в квартире в одной из комнат и делать ремонт в остальных - не рассматривался, по причине присутствия в квартире ребенка, а также больших неудобств ( кто жил в квартире во время ремонта - тот знает КАК это тяжело) Посилання на коментар Поділитися на інших сайтах More sharing options...
Юлия_дизайнер Опубліковано: 17 серпня 2011 Автор Поділитись Опубліковано: 17 серпня 2011 Информация бралась: Авизо, сландо, фн, реалт, парклейн и т.д. Выводы: 1. Оболонь очень дорогой район, особенно местность м.Г.Днепра – м. Минская – м. Оболонь. 2. Большинство объявлений – от агенств, редко от хозяев 3. Большинство объявлений – несуществующие объекты ( давно сдаваемые, сданные, просто выдуманные), при этом, несмотря на то, что объявление подано в 9.01 утра, а в 9.02 я им звоню – квартира либо сдана, либо еще что-то. 4. Большинство выставленных фотографий – нереальные, либо взятые с интернета, с другой квартиры, либо квартира была сфотографирована несколько лет назад, и после этого ее успели «убить» 5. Если говорят «косметический ремонт» - чаще всего убитая в хлам квартира, при словах «евроремонт» - чаще всего просто более чистая квартира, одно металопластиковое окно, гарнитурная кухня, диван с рынка, остальное – совок. 6. Квартир сделанных грамотно на аренду – очень мало. 7. Цена не влияет на качество. Именно так. За 3,5 или за 6 т.грн. попадался одинаковый «клоповник» с 80-хх. Цена определяется исключительно жадностью хозяев. 8. Посредники никогда на квартире не были и незнают в каком она состоянии – поездки – лишняя трата времени минимум 3-х людей: хозяина, арендатора и брокера, причем последних иногда по 2-3 человека на один объект. 9. Вменяемых с виду хозяев – очень мало. 10. Способных людей взять тряпку и моющее средство и помыть квартиру перед показом - мало. 11. Последняя «фишка» аренды: цена аренды, например, 4 т.грн., и подразумевается, что помимо этих денег платится только то, что используется и по счетчикам: э-во, вода, интернет... Но, оказывается, нужно платить еще и коммунальные за квартиру, а они в некоторых достигали 750 грн.... вот такая «замануха» 12. Счетчиков води нет.... как? При таких тарифах на воду не иметь счетчиков и платить на каждого приписанного человека??? 13. Подъезды наших домов – отдельная тема. Не будем о грустном. Хотя, как показала практика - простенько отремонтировать подъезд - стоит совсем не космических денег. 14. Бардак на рынке аренды, на рынке посреднических услуг, в головах людей. Поистине, проблема в головах, а не в правительстве, кризисе, материальном положении и т.д... Наболело... Ps/ была найдена чистая, аккуратная квартира в хорошем месте, с современной, но недорогой обстановкой и за вменяемые деньги. Но стоило это 4-х дней неприрывных просмотров (по 10-12 квартир в день), потраченного времени и денег на звонки, и полученного теплового удара((( Найдена через посредника, оплачены комисионные 50%, посредник попался довольно вменяемый и помогающий... единственный из всех. Кроме этой квартиры, была еще одна подходящая, но, заплатить комисионные хотелось именно человеку, который что-то сделал для тебя, прозванивал варианты, выезжал на просмотр, подробно расспрашивал о требованиях, посему остановились на первом варианте. ОтакЭ. 9 Посилання на коментар Поділитися на інших сайтах More sharing options...
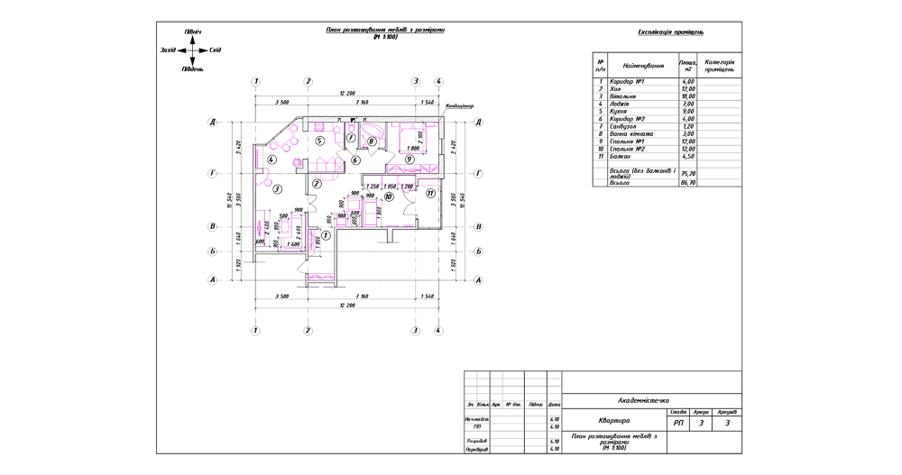
Юлия_дизайнер Опубліковано: 17 серпня 2011 Автор Поділитись Опубліковано: 17 серпня 2011 (змінено) Планировка самой квартиры менятся не будет по причинам: - бюджет - все, кроме нескольких стен – несущие - не имеет смысла, т.к. сделать ее рациональней, не меняя кардинально, не выйдет. - нужно оставить закрытые спальню, детскую и гостиную(она же вторая спальня) Кроме незначительних моментов – корректировка ширины дверных проемов в с/у и ванную (сейчас они очень узкие), расширение проема на лоджию и т.д. Сама планировка и расположение мебели и техники планируется делать более универсальним, на случай перестановки, а также изминения целевого назначения комнат. Планировка одной из спален, а также гостиной, делается «двойная» Создается две планировки, и под них размещается стандартная мебель, а также коммуникации. В одном варианте – это спальня, в другом варианте – детская. Делается это для того, чтобы при изминении целевого назначения этой комнаты не нужно было ничего менять ( переносить розетки, менять отделку, выбрасывать встроенную мебель и т.д.), а достаточно было минимальной замены мебели и комната становилась детской. Аналогично с гостиной, она будет выполнять роль спальни, а при минималых изминения, превращаться в гостиную. Сама универсальность и «двойственность» в назначении помещений, подбор стандартных размеров обстановки, нейтральная цветовая гамма, будем надеятся, даст возможность в будущем с минимальными усилиями «трансформировать» квартиру под конкретные нужды. Змінено 17 серпня 2011 користувачем Юлия_дизайнер фото 1 Посилання на коментар Поділитися на інших сайтах More sharing options...
Юлия_дизайнер Опубліковано: 19 серпня 2011 Автор Поділитись Опубліковано: 19 серпня 2011 Работы, которые планируем выполнить: 1. Демонтаж (обои, линолеум, покраска, столярка, проводка, сантех.трубы) 2. Замена электропроводки (с аллюминия на медь, устройство счетчика внутри квартиры, плюс интернет, ТВ, сигнализации, ТП под плиткой) 3. Замена сантехнической разводки ( на данный момент сталь и чугун, планируем ПП) 4. Выравнивание стен, пола и потолка ( стяжка, штукатурка, шпатлевка под обои и покраску) 5. Отделка (обои под покраску, покраска потолка, плитка, ламинат) 6. Замена окон, дверей (входных и межкомнатных) 7. Установка сантехприборов (обустройство ванной и санузла) 8. Установка кухонного гарнитура, бытовой техники (обустройство кухни) 9. Обустройство одной комнаты (под спальню) Такой необходимый минимум для жизни)) Посилання на коментар Поділитися на інших сайтах More sharing options...
Юлия_дизайнер Опубліковано: 22 серпня 2011 Автор Поділитись Опубліковано: 22 серпня 2011 Начали традиционно с демонтажа. Для этого закупили пленку, скотч и несколько сотен мешков для мусора. Демонтаж длился около 10 дней: сняты обои, линолеум, побелка, плитка, сантехника и т.д. Аккуратно, без повреждений, сняты деревянные окна и двери. Также демонтированы отдельные части стен (гипс), порезаны штробы под коммуникации ( электрика и сантехника). Все собрано в мешки. Заказано две машины (газель, 300 грн/шт.) и вывезен весь мусор. После демонтажа и уборки мусора в квартире стало серо и пустынно)) Посилання на коментар Поділитися на інших сайтах More sharing options...
Юлия_дизайнер Опубліковано: 23 серпня 2011 Автор Поділитись Опубліковано: 23 серпня 2011 пользуясь случаем... ...пока в доме отключена гарячая вода ( на профилактику), было принято решение переварить стояк гарячей воды и сделать отводы для полотенцесушителя. А также перенести счетчик гарячей воды из-под умывальника в ванной к счетчику холодной воды и трубам в санузле (в будущую ревизию). Сделали все за один день, с утра предупредили сантехника с кооператива, ребята переварили стояк, поставили запорные краны и проверили систему. Благодарности: Саше Korni за консультации и рекомендации Сергею B.S.V. за оперативную работу 1 Посилання на коментар Поділитися на інших сайтах More sharing options...
Юлия_дизайнер Опубліковано: 2 жовтня 2011 Автор Поділитись Опубліковано: 2 жовтня 2011 Ну вот, наконец-то, весь ремонт благополучно закончился))) Посилання на коментар Поділитися на інших сайтах More sharing options...
AR Опубліковано: 3 жовтня 2011 Поділитись Опубліковано: 3 жовтня 2011 Ну вот, наконец-то, весь ремонт благополучно закончился))) Юля, Вы, предварительно, делали проект? Есть фото готового варианта? Посилання на коментар Поділитися на інших сайтах More sharing options...
Юлия_дизайнер Опубліковано: 3 жовтня 2011 Автор Поділитись Опубліковано: 3 жовтня 2011 Юля, Вы, предварительно, делали проект? Есть фото готового варианта? да, технический проект был. сам дизайн же был простенький, одни планировочные и эргономические решения со спецификацией материалов))) если вы имеете ввиду фотографии готового интерьера, то они будут в ближайшие дни, сейчас не до них, разбираем вещи.... также, надеюсь, соберусь с силами и допишу весь процесс ремонта. Посилання на коментар Поділитися на інших сайтах More sharing options...
irina1969 Опубліковано: 3 жовтня 2011 Поділитись Опубліковано: 3 жовтня 2011 " До" видели,теперь ждем " После":) Посилання на коментар Поділитися на інших сайтах More sharing options...
Юлия_дизайнер Опубліковано: 3 листопада 2011 Автор Поділитись Опубліковано: 3 листопада 2011 Уррраа)))) 12 Посилання на коментар Поділитися на інших сайтах More sharing options...
Юлия_дизайнер Опубліковано: 9 січня 2012 Автор Поділитись Опубліковано: 9 січня 2012 Закончить ремонт нельзя, его можно только остановить))) В остальном же, уже есть мебель, люстры и даже шторы! Все еще не закончены: бойлер в с/у ( на фото видно нишу под него), панель для ванной ( нужной модели временно нет), смеситель с лейкой для бидэ, раздвижная дверь с матового стекла в кухню ( на фото видно нишу под нее, возле холодильника), ждут своей очереди на покупку стулья и стол для кухни, а пока пользуемся старыми, также нужно заказать двери в кладовки и прихожую в холл. И все же это мелочи, по сравнению со светлым, теплым и уютным домом, в который хочеться возвращаться ! Посилання на коментар Поділитися на інших сайтах More sharing options...
Юлия_дизайнер Опубліковано: 9 січня 2012 Автор Поділитись Опубліковано: 9 січня 2012 Для тех, кому интересна смета проекта (75 кв.м., без 2-х лоджий): 1. Материалы (черн.+ отд.) - 6 куе/75м.кв.=80у.е/м.кв. 2. Ремонтные работы - 5 куе/75м.кв.=65 уе/м.кв. 3. Наполнение - 10 куе или 130 уе/кв.м. 4. Непредвиденние расходы - 9% (25 уе/кв.м. или 1,8 куе) Итого 80+65+130+25=300 уе/кв.м. или 22,5 куе. 6 Посилання на коментар Поділитися на інших сайтах More sharing options...
AНДРЮША Опубліковано: 9 січня 2012 Поділитись Опубліковано: 9 січня 2012 Хотелось бы узнать, что вышло по затратам, так как сейчас начинаю ремонт в однокомнатной квартире от строителей. Поторопился с вопросом, уже написали. Посилання на коментар Поділитися на інших сайтах More sharing options...
Юлия_дизайнер Опубліковано: 9 січня 2012 Автор Поділитись Опубліковано: 9 січня 2012 Сроки: 2,5 месяца - планирование (подготовка проекта) 3,5 месяца (запланировано было - 3 мес.) - ремонтные работы (от освобождения квартиры до новоселья). 2 Посилання на коментар Поділитися на інших сайтах More sharing options...
Рекомендовані повідомлення
Створіть акаунт або увійдіть у нього для коментування
Ви маєте бути користувачем, щоб залишити коментар
Створити акаунт
Зареєструйтеся для отримання акаунта. Це просто!
Зареєструвати акаунтУвійти
Вже зареєстровані? Увійдіть тут.
Увійти зараз