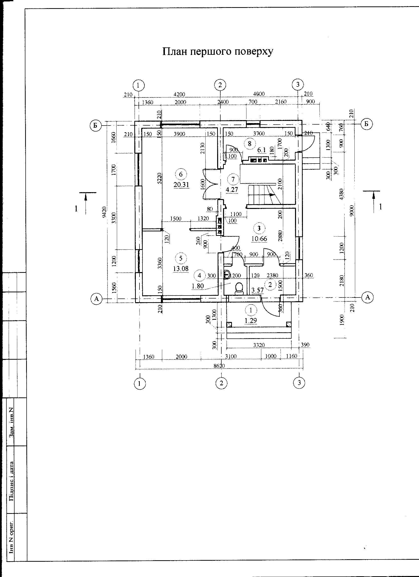
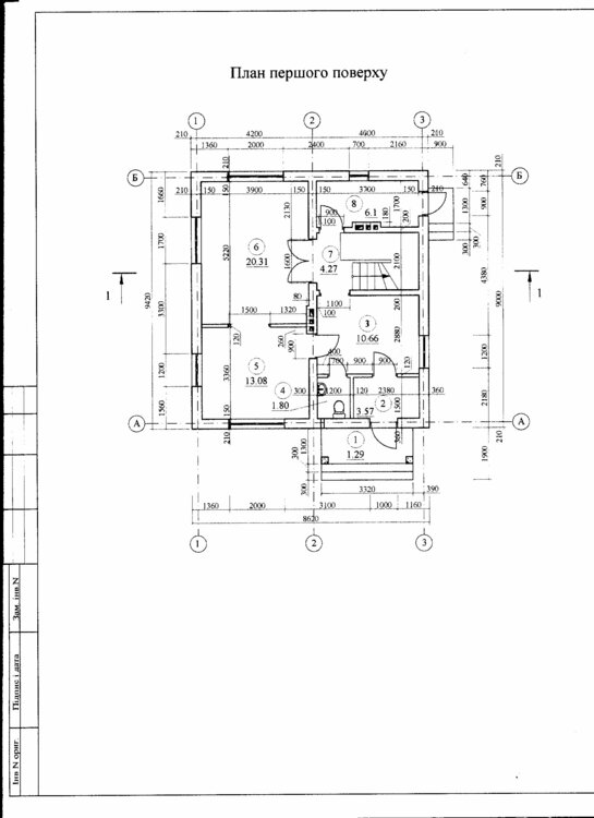
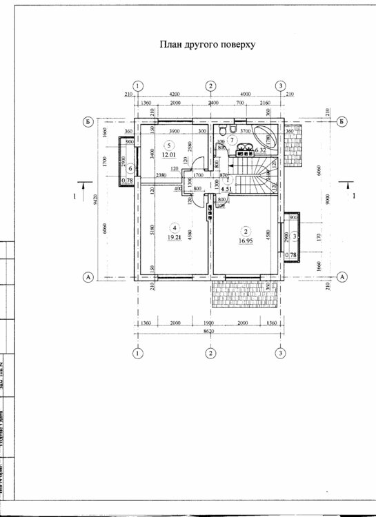
Duke Опубліковано: 27 серпня 2011 Поділитись Опубліковано: 27 серпня 2011 Добрый вечер! Строю дом по проекту. На данном этапе залит фундамент по внешним стенам и по середине. Планирую возводить коробку в следующем сезоне. Сейчас начал думать какую лестницу и какой проём под неё оставить (а самое главное, как это правильно сделать). Один нюанс, по проекту подвал в доме не предусмотрен, но я вырыл котлован 2 м. глубина по всему дому. Вход в подвал планируется под лестницей. В связи с этим прошу Вас, помочь определиться по следующим вопросам: 1. Правильно я понимаю, лестница на второй этаж по проекту предусмотрена с разворотом на 180 градусов. 2. Возможно ли расположить вход в подвал под лестницей. 3. Какой проем необходимо оставить для входа в подвал и для лестницы на второй этаж. 4. Как правильно сделать проем для лестницы. Я имею виду технически как это сделать (например я думал: я планирую перекрывать 4 м. плитами перекрытиями, можно ли одну плиту размером 6 или 7 м. положить с захлестом на другую половину дома, тем самым останется не накрытое пространство.). И еще один вопрос (возможно не совсем по этой теме) 5. Необходимо ли подвал предусматривать в проекте и будут ли проблемы при сдачи дома если подвал есть, а в проекте его нет. Посилання на коментар Поділитися на інших сайтах More sharing options...
Матросов Опубліковано: 27 серпня 2011 Поділитись Опубліковано: 27 серпня 2011 вы не указали высоту этажа.... Посилання на коментар Поділитися на інших сайтах More sharing options...
Duke Опубліковано: 28 серпня 2011 Автор Поділитись Опубліковано: 28 серпня 2011 1 этаж - 2,7 2 этаж - 2,9 Посилання на коментар Поділитися на інших сайтах More sharing options...
Рекомендовані повідомлення
Створіть акаунт або увійдіть у нього для коментування
Ви маєте бути користувачем, щоб залишити коментар
Створити акаунт
Зареєструйтеся для отримання акаунта. Це просто!
Зареєструвати акаунтУвійти
Вже зареєстровані? Увійдіть тут.
Увійти зараз