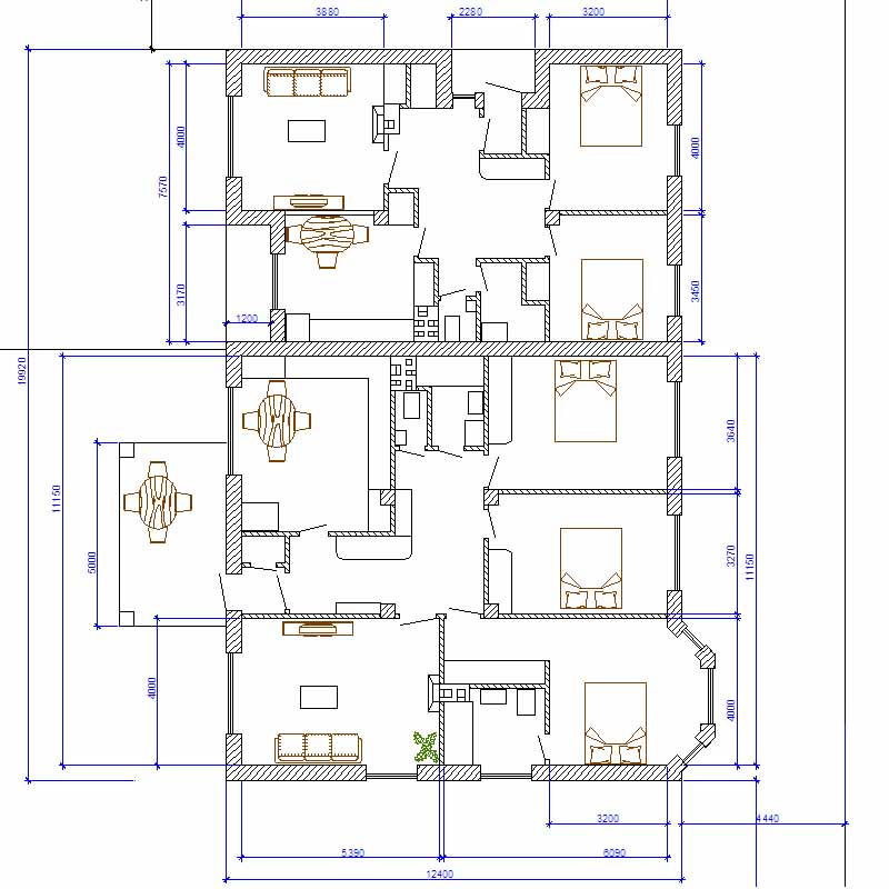
PGS Опубліковано: 30 вересня 2011 Поділитись Опубліковано: 30 вересня 2011 Всех приветствую! Есть участок 15 соток. На нем планирую расположить одноэтажный дом на 2 выхода и хозблок. Сначала буду строить бОльшую часть дома (140м2) и хозблок (57м2). В хозблоке будет распологаться скважина с насосной станцией, котельная, сауна, с\у и комната отдыха. Вторая часть дома (80м2) в перспективе, но разрабатывать и согласовывать проект буду в таком виде. Расстояние между домом и хозблоком 6,0 м. Размеры участка - 3 стороны примерно по 36 м, нижняя 50 м. Фасадная часть там, где указаны стороны света. Сверху тех\проезд для обслуживания ЛЭП, т.е. участок угловой. Планировкой занимаюсь достаточно длительное время, поэтому прошу сообщество оценить планы незамыленным и свежим взглядом. Посилання на коментар Поділитися на інших сайтах More sharing options...
apxitektop.s Опубліковано: 1 жовтня 2011 Поділитись Опубліковано: 1 жовтня 2011 ИРРАЦИОНАЛЬНАЯ планировка, у вас набор всего чего вам нужно, налеплено, советовать тут нельзя, ибо все плохо, а не несколько отдельных фрагментов, могу советовать одно, так как у вас не выходит с планировкой, обратитесь за помощью к архитектору с опытом и репутацией, тут на форуме всегда есть пару тройка спецов - готовых помочь Посилання на коментар Поділитися на інших сайтах More sharing options...
Саша_84 Опубліковано: 2 жовтня 2011 Поділитись Опубліковано: 2 жовтня 2011 Дуже багато ламаних стін. Це не погано, це просто треба систематезувати. Комини зміщені і розкидані. Краще їх по максимуму об’єднати. Розміщення приміщень бажає бути кращим, це не значить що треба перероблювати все, просто жещо змінити. Мене наприклад не влаштовує маленька вітальня. Посилання на коментар Поділитися на інших сайтах More sharing options...
PGS Опубліковано: 2 жовтня 2011 Автор Поділитись Опубліковано: 2 жовтня 2011 обратитесь за помощью к архитектору именно так и сделаю, но немного позже... Комини зміщені і розкидані. Краще їх по максимуму об’єднати. тут уже нужно выбирать, что совместить: или камины или канализацию. А так как я любитель домашнего кинотеатра, то гостинную отодвинул подальше. Мене наприклад не влаштовує маленька вітальня. Да, действительно маленькая.. Поработаю над этим вопросом.. Посилання на коментар Поділитися на інших сайтах More sharing options...
PGS Опубліковано: 3 жовтня 2011 Автор Поділитись Опубліковано: 3 жовтня 2011 (змінено) Изменил расположение входа и сделал 2 варианта гостинной. Вот что получилось: Змінено 3 жовтня 2011 користувачем PGS добавил фото Посилання на коментар Поділитися на інших сайтах More sharing options...
Рекомендовані повідомлення
Створіть акаунт або увійдіть у нього для коментування
Ви маєте бути користувачем, щоб залишити коментар
Створити акаунт
Зареєструйтеся для отримання акаунта. Це просто!
Зареєструвати акаунтУвійти
Вже зареєстровані? Увійдіть тут.
Увійти зараз