balex_kv Опубліковано: 6 жовтня 2011 Поділитись Опубліковано: 6 жовтня 2011 Много лет размышлял, смотрел проекты, читал форумы. Но в конечном итоге решил сам нарисовать то что мне больше всего хочется. Первое из требований это практичность, дальше минимальные "гуляющие" площади, которые встречаются в типовых проектах на разных сайтах. Перерисовывал проект стопятьсот раз, изрисовали с женой миллион листиков в клеточку. Самым большим камнем были сантехнические комуникации из-за которых приходилось несколько раз начинать с нуля. Дом с мансардным этажом, рядом одноэтажный гараж. За гаражом планируется летняя беседка. Левый нижний угол будет на юг, левый верхний на запад, соответственно. Вот что получилось. Посилання на коментар Поділитися на інших сайтах More sharing options...
balex_kv Опубліковано: 6 жовтня 2011 Автор Поділитись Опубліковано: 6 жовтня 2011 Посетил архитектора. А он первым же вопросом спросил про генплан. Без него сказал даже начать не сможет. Ну вот нарисовали с женой эскиз генплана. Снизу на юго-востоке дорога. После того как показали архитектору, он его сразу раскритиковал. А именно: постройки на юго-западе, таким образом весь участок будет затенен. Отступ от соседнего участка (слева) должен быть три метра. Так что прийдется передумывать где разместить постройки. Ну и от идеи зимнего сада мы с женой сами уже почти отказались. В незастроеной части участка (весь участок 12 соток), я планирую, что будет огородик который будет вспахиваться трактором, так что нужно оставить место для его проезда. Хотя, отец купил несколько лет назад мотоблок и родители свой участок не пахали трактором, только мотоблоком. Но мотоблок не может на такую глубину хорошо перевернуть землю - всеже лучше трактор. Посилання на коментар Поділитися на інших сайтах More sharing options...
magnimus Опубліковано: 7 жовтня 2011 Поділитись Опубліковано: 7 жовтня 2011 хм. а если отзеркалить и проект дома и генлпан ? Посилання на коментар Поділитися на інших сайтах More sharing options...
ksp76 Опубліковано: 7 жовтня 2011 Поділитись Опубліковано: 7 жовтня 2011 дальше минимальные "гуляющие" площади, которые встречаются в типовых проектах на разных сайтах. . А разве три большие ванные комнаты на дом - не перебор? Для Вас это не "гуляющие" площади? Посилання на коментар Поділитися на інших сайтах More sharing options...
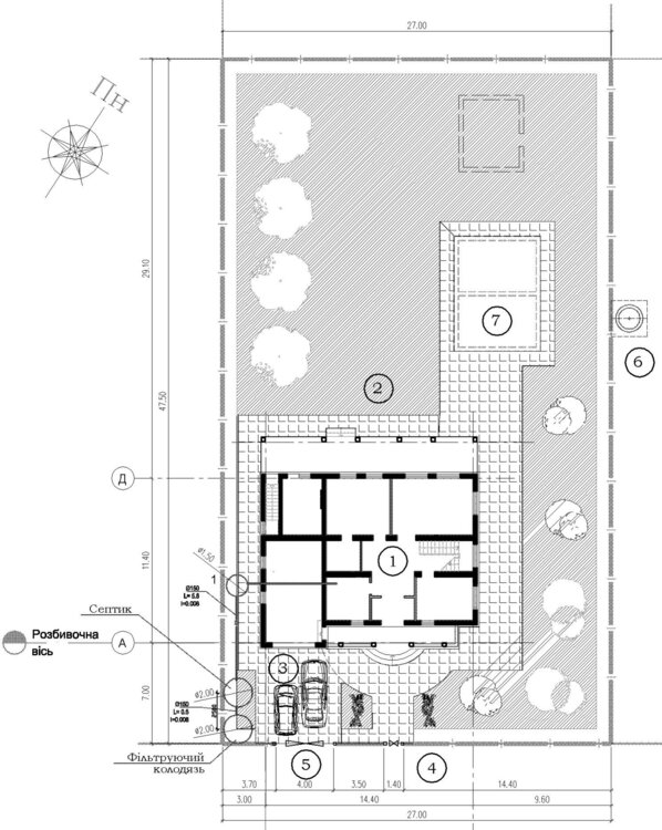
balex_kv Опубліковано: 7 жовтня 2011 Автор Поділитись Опубліковано: 7 жовтня 2011 хм. а если отзеркалить и проект дома и генлпан ? Я тоже об этом думал, но соседний справа участок родителей получится что я им буду затенять (ту землю которую сам же родителям "помогаю" обрабатывать). А если разместить в конце участка может такой вариант будет оптимальней чем то что предлагает архитектор (во вложении) 7 - хоз. постройка, пунктиром баня. А разве три большие ванные комнаты на дом - не перебор? Для Вас это не "гуляющие" площади?Я еще не жил в таких условиях и мне уже не раз говорили, что три ванные это перебор. Может я ошибаюсь в своих рассуждениях, но хотелось бы чтобы из моей с женой спальни был отдельный выход в ванную. Отдельно на втором этаже для детей и на первом этаже тоже нужно, для гостей и для себя когда пришел с улицы не нести всю грязь по дому. Кто-то уже сталкивался с такой дилеммой? Посилання на коментар Поділитися на інших сайтах More sharing options...
AНДРЮША Опубліковано: 7 жовтня 2011 Поділитись Опубліковано: 7 жовтня 2011 Отдельно на втором этаже для детей и на первом этаже тоже нужно, для гостей и для себя когда пришел с улицы не нести всю грязь по дому. Кто-то уже сталкивался с такой дилеммой? На Западе так и делают - это очень удобно. Вопрос только в средствах, но если они есть, то почему бы и нет. 1 Посилання на коментар Поділитися на інших сайтах More sharing options...
balex_kv Опубліковано: 8 жовтня 2011 Автор Поділитись Опубліковано: 8 жовтня 2011 Соседка пробурила скважину на 100 метров, вода содержит очень много железа. Участок находится в пгт. Глеваха, возле станции "Шляхова". Соседи отзовитесь, у кого скважина глубже, какая вода? Некоторые соседи говорят что на горизонте 150 метров вода нормальная (не с таким большим кол-вом железа). Посилання на коментар Поділитися на інших сайтах More sharing options...
balex_kv Опубліковано: 8 жовтня 2011 Автор Поділитись Опубліковано: 8 жовтня 2011 Архитектор отрисовал эскиз проекта. Получилось очень хорошо. Конечно, в окончательный результат мы внесем некоторые изменения, но на этом этапе мне уже очень нравится. Посилання на коментар Поділитися на інших сайтах More sharing options...
balex_kv Опубліковано: 8 жовтня 2011 Автор Поділитись Опубліковано: 8 жовтня 2011 Первый этап строительства собирался произвести еще в этом году - залить фундамент. Вот только со строителями не очень повезло. Одна бригада, которая работала летом у родителей, оказалась сильно занятой. Обратился к прорабу (нашел через знакомых), так этот согласился. Я попросил составить смету. Так он через несколько дней по телефону сказал что не указана арматура в проекте. Начал называть космические цифры, 100 кубов бетона, 8 тонн арматуры... Я сел самостоятельно пересчитал получил цифры на треть и в половину меньше. И это при том что прораб захотел оплату отдельно от оплаты строителей и я был согласен. Ну вот скажите как так можно? Ну не хочешь ты работать - так и скажи... А если хочешь, то работай, тем более что я согласен был оплатить столько сколько нужно... Такое впечатление, что нужно самому брать и строить, потому что только лентяи и обманщики кругом. Один насчитал на 30 кубов бетона больше и на 4 тонны арматуры, другие положат не 4 как нужно а 2, а 2 тонны на лево сбагрят. Решено, никаких прорабов. Начинаю изучать матчасть. Посилання на коментар Поділитися на інших сайтах More sharing options...
balex_kv Опубліковано: 8 жовтня 2011 Автор Поділитись Опубліковано: 8 жовтня 2011 Посоветуйте, какой литературой лучше всего воспользоваться. Я собираюсь строить дом из газоблока, фундамент монолитный ленточный. Еще окончательно не решил нужно ли делать подушку под фундамент. Архитектор предложил не делать геологию, так как он знаком с местным грунтом. Он заложил в проект фундаментную подушку 900х300 и фундаментные стены толщиной 300. Глубина залегания 1000 мм от уровня земли плюс 100 мм отмостка, утепление и подсыпка. Под подушкой еще должна быть подготовка 100 мм. Посилання на коментар Поділитися на інших сайтах More sharing options...
сергійВ Опубліковано: 26 грудня 2011 Поділитись Опубліковано: 26 грудня 2011 Смотря какиє грунти Пощитайте нагрузка на метр для каждой стени 1 нагрузка от фундамента(2400кг/м3) 2 нагруска от стен(500кг/м3) 3 нагрузка от перекрития(300кг/м2) 4 нагруска от кровли(20-40кг/м2) 5 нагрузка от снега(100-150кг/м2) Всє сплюсуйте єсли получите меньше 1кг/см2 то я думаю будет з запасом прочности. Удачи в стройке Посилання на коментар Поділитися на інших сайтах More sharing options...
balex_kv Опубліковано: 28 травня 2012 Автор Поділитись Опубліковано: 28 травня 2012 Решил делать фундамент по проекту. Собственно так и сделал - фундаментную подушку и фундаментную стену. И добрался до этапа гидроизоляции и теплоизоляции. И тут оказывается выбор материалов очень широк. Но вот выбрать конкретный материал очень сложно оказывается. Остановились, пока что, на битумной мастике, так как горячий битум (который по проекту) накладывать и сложно и неудобно. Теплоизоляция - стиродур (экструдированый пенополистирол). Подскажите кто в курсе, как и что накладывать, послойно? Я предполагаю: перед накладыванием гидроизоляции, стену фундамента необходимо выровнять стяжкой; грунтовка (праймер); битумная мастика; ??? клей; стиродур; ??? пленка гидроизоляционная; Почему-то на форуме не нашел нормальной темы по гидро/теплоизоляции. Если кто видел, накидайте ссылок пожалуйста. А так-же интересуют поставки соответствующих материалов. Посилання на коментар Поділитися на інших сайтах More sharing options...
balex_kv Опубліковано: 29 травня 2012 Автор Поділитись Опубліковано: 29 травня 2012 Немножко прояснилось. Специалист посоветовал выравнивать только если большие неровности. Так что получается следующий порядок: Праймер Мастика (1-2 слоя) Клей Стиродур Клей Стиродур Возможно верхний слой стиродура для надежности покрыть водоотталкивающей мембраной Тепрь вопрос в мастике - выбор огромнейший, какую взять с лучшим соотношением цена/качество? Посилання на коментар Поділитися на інших сайтах More sharing options...
balex_kv Опубліковано: 18 липня 2012 Автор Поділитись Опубліковано: 18 липня 2012 После многих совещаний со строителями и архитектором и продавцами/поставщиками материалов решили сделать гидроизоляцию и утепление следующим "пирогом": фундаментная слена праймер 2 слоя мастики (каждый по 1,5 мм) экструдированный пенополистирол 80мм пленка гидроизоляционная Вот как это выглядит в процессе: Тот же угол аккуратно затянут пленкой: На заднем плане стоит фура с блоками AEROC 400x250x600 Посилання на коментар Поділитися на інших сайтах More sharing options...
Рекомендовані повідомлення
Створіть акаунт або увійдіть у нього для коментування
Ви маєте бути користувачем, щоб залишити коментар
Створити акаунт
Зареєструйтеся для отримання акаунта. Це просто!
Зареєструвати акаунтУвійти
Вже зареєстровані? Увійдіть тут.
Увійти зараз