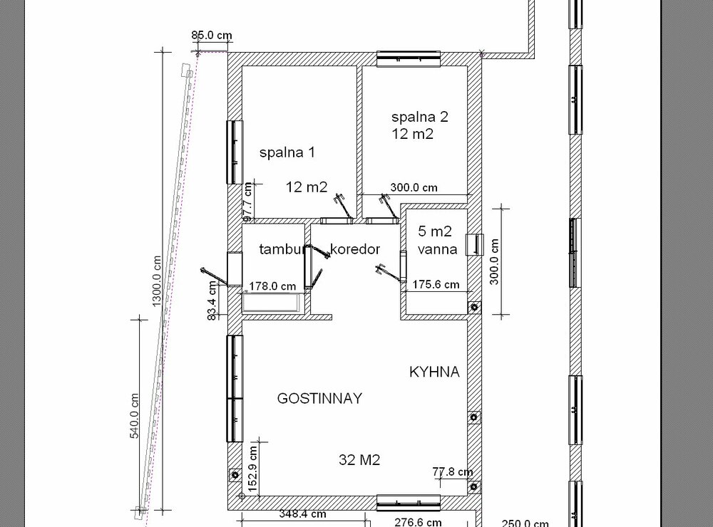
кириченко дмитрий Опубліковано: 16 липня 2008 Поділитись Опубліковано: 16 липня 2008 дом 13-7,2 метра две спальни по 12 м2 и гостинная-кухна . научите правельному Посилання на коментар Поділитися на інших сайтах More sharing options...
DVD Опубліковано: 22 липня 2008 Поділитись Опубліковано: 22 липня 2008 кладовку-хламник, и котельную не помешало бы! Посилання на коментар Поділитися на інших сайтах More sharing options...
кириченко дмитрий Опубліковано: 23 липня 2008 Автор Поділитись Опубліковано: 23 липня 2008 на кухне планируется повесить котел двух-контурный (можно тогда без котельной ?) а с хламником проблема может на чердак ? Посилання на коментар Поділитися на інших сайтах More sharing options...
Рекомендовані повідомлення
Створіть акаунт або увійдіть у нього для коментування
Ви маєте бути користувачем, щоб залишити коментар
Створити акаунт
Зареєструйтеся для отримання акаунта. Це просто!
Зареєструвати акаунтУвійти
Вже зареєстровані? Увійдіть тут.
Увійти зараз