VW2010 Опубліковано: 25 листопада 2011 Автор Поділитись Опубліковано: 25 листопада 2011 Так точнее будит, второй вариант с терассой на всю ширину дома Посилання на коментар Поділитися на інших сайтах More sharing options...
VW2010 Опубліковано: 25 листопада 2011 Автор Поділитись Опубліковано: 25 листопада 2011 На втором этаже не нравится только проход к помещению над гаражем. Что можно придумать? Например вход туда из ванной или гардеробной. Или не делать вход туда из дома, а за счёт этого прохода розширть санузел.Сделать лаз из гаража. Вход с лестници, тоже не подойдёт, наверное. Может есть другие варианты решения этого вопроса. Посилання на коментар Поділитися на інших сайтах More sharing options...
ionico Опубліковано: 25 листопада 2011 Поділитись Опубліковано: 25 листопада 2011 Я думаю, что лучше кухню на север, гостиную на юг и террасу на юг, как во 2 варианте. Насчёт 2 этажа - почему вам не нравится вход с лестницы? Перекрытие над гаражом можно понизить. Посилання на коментар Поділитися на інших сайтах More sharing options...
VW2010 Опубліковано: 25 листопада 2011 Автор Поділитись Опубліковано: 25 листопада 2011 Я думаю, что лучше кухню на север, гостиную на юг и террасу на юг, как во 2 варианте. Насчёт 2 этажа - почему вам не нравится вход с лестницы? Перекрытие над гаражом можно понизить. Я не говорил, что мне не нравится вход с лестници. Написал, что "тоже не подойдёт, наверное" Какая может быть бысота гаража, чтобы с лестницы заходить в помещение над ним? Планируется цоколь 0,6 метра + высота первого этажа 2,8 метра. На какой высоте будит площадка между первым и вторым маршем? Кстати, если я правельно понимаю, прийдётся добавить по одной ступени на каждом марше, т.к. вместо трёх забежных ступеней будит площадка. Сейчас запланированая высота ступени 17 см, глубина 27. Посилання на коментар Поділитися на інших сайтах More sharing options...
ionico Опубліковано: 25 листопада 2011 Поділитись Опубліковано: 25 листопада 2011 Я не говорил, что мне не нравится вход с лестници. Написал, что "тоже не подойдёт, наверное" Какая может быть бысота гаража, чтобы с лестницы заходить в помещение над ним? Планируется цоколь 0,6 метра + высота первого этажа 2,8 метра. На какой высоте будит площадка между первым и вторым маршем? Высота этажа 2800 (от пола до пола?). Судя по количеству подъемов в лестнице, высота подъема равна 150 мм. Чтобы обеспечить выход с лестницы, перекрытие нужно понизить на высоту 8 подъемов: 150*8=1200 мм. Чтобы гараж не был низким, цоколь в нём не делают. Благодаря этому, также не будет высокого пандуса в гараж. То есть, если отметка пола 1 этажа равна 0,000, высота цоколя равна 600 мм., то отметка пола гаража равна -0,600 Посилання на коментар Поділитися на інших сайтах More sharing options...
VW2010 Опубліковано: 25 листопада 2011 Автор Поділитись Опубліковано: 25 листопада 2011 2,8 метра высота от пола первого до потолка первого этажа + пустотелая плита перекрытия 0,22 метра + стяжка и напольное покрытие. Итого, примерно 3,1 метра от пола первого этажа до пола второго этажа. Понятное дело, что в гараже цоколь не делается, Вы меня, наверное, не правельно поняли. Посилання на коментар Поділитися на інших сайтах More sharing options...
VW2010 Опубліковано: 29 листопада 2011 Автор Поділитись Опубліковано: 29 листопада 2011 Вот и фасады созрели. Решил отказаться от варианта в первом посте, а именно от балкона над входом и т.п. Посилання на коментар Поділитися на інших сайтах More sharing options...
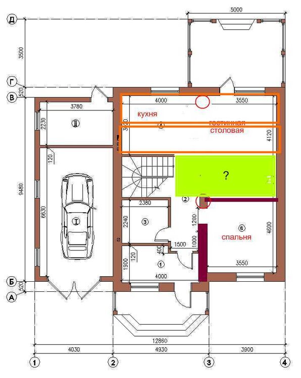
VW2010 Опубліковано: 27 грудня 2011 Автор Поділитись Опубліковано: 27 грудня 2011 не нравится мне, что между котельной и кухней расположилась спальня (на предыдущих планировках) Так вроде практичнее, котельная и кухня рядом. Если нет поправте. Смущает немного что окна гостинной выходят кроме запада на север. И ещё один вопрос. Как в таком случае будит перекрываться первый этаж? Посилання на коментар Поділитися на інших сайтах More sharing options...
ionico Опубліковано: 28 грудня 2011 Поділитись Опубліковано: 28 грудня 2011 Из какого материала будет перекрытие? По оси 3 несущая стена. Поставить колонну в углу, образуемом этой стеной и перегородкой спальни. Поставить колонну на пересечении осей 3-Г. И между этими колоннами положить ригель. Перекрытия могут быть расположены в горизонтальном направлении. Если не смущает пролёт 8830, то можно просто положить такую плиту, тогда внутри не будет несущих стен, колонн, ригелей. 1 Посилання на коментар Поділитися на інших сайтах More sharing options...
VW2010 Опубліковано: 28 грудня 2011 Автор Поділитись Опубліковано: 28 грудня 2011 Хочу перекрыть пустотелыми плитами. По поводу колон. Я Вас правельно понял, где должны быть колоны (кружки на планировке)? Такой длинный пролёт не хочется перекрвать одной плитой. А если всё таки перекрыть, то как будит перекрываться место возле лестницы? Посилання на коментар Поділитися на інших сайтах More sharing options...
ionico Опубліковано: 28 грудня 2011 Поділитись Опубліковано: 28 грудня 2011 Да, верно поняли насчёт колонн. Только их можно делать в теле стены, чтобы внутри помещения не было пилонов. Чтобы не перекрывать такой большой пролёт, я выше говорил, что нужно положить ригель на эти колонны (иначе толку они них ). На ригель будет опираться плита. Таким образом, этот пролёт будет разделён на 2 куска и будет не одна большая плита,а 2 меньших. Насчёт куска перекрытия возле лестницы, то лучше ответит конструктор (я архитектор). Но я вижу так решение. Между осями 3 и 4 положить плиту. А площадку для лестницы сделать из монолитного ж/б. Поставить в точках опирания площадки небольшие колонны, между ними ригели (тоже думаю будут не большие) и между ними залить монолитный ж/б... Посилання на коментар Поділитися на інших сайтах More sharing options...
VW2010 Опубліковано: 28 грудня 2011 Автор Поділитись Опубліковано: 28 грудня 2011 Про ригель понятно. Спрашивал про перекрытие без него (ригеля) Уже всё ЗРОЗУМЕЛ. Спасибо. Посилання на коментар Поділитися на інших сайтах More sharing options...
VW2010 Опубліковано: 2 січня 2012 Автор Поділитись Опубліковано: 2 січня 2012 Так какой вариант лучше? Первый - спапльня рядом с котельной, кухня на северной стороне, гостинная на южной стороне. Второй - рядом с котельной кухня (на месте спальни), гостинная-столовая на месте кухни (окна выходят на север и запад), Спальня на месте гостинной (окна выходят на юг или запад) Посилання на коментар Поділитися на інших сайтах More sharing options...
ionico Опубліковано: 4 січня 2012 Поділитись Опубліковано: 4 січня 2012 Я думаю, что однозначно лучше вариант № 2 хотя бы потому, что котельная рядом с кухней. Это плюс. Во-вторых, вариант № 2 кажется более просторным и светлым. 1 Посилання на коментар Поділитися на інших сайтах More sharing options...
Artyomovets Опубліковано: 4 січня 2012 Поділитись Опубліковано: 4 січня 2012 вариант 1 не нравится тем, что в данном исполнении, когда кухня не отделена от гостиной получаем длинное помещение но я бы кухню отделял. в варианте 2 оно как-то посимпотишнее 1 Посилання на коментар Поділитися на інших сайтах More sharing options...
Рекомендовані повідомлення
Створіть акаунт або увійдіть у нього для коментування
Ви маєте бути користувачем, щоб залишити коментар
Створити акаунт
Зареєструйтеся для отримання акаунта. Це просто!
Зареєструвати акаунтУвійти
Вже зареєстровані? Увійдіть тут.
Увійти зараз