Slavasan Опубліковано: 4 серпня 2008 Поділитись Опубліковано: 4 серпня 2008 Давно читаю форум. Сам не писал - небыло о чем. Теперь мечта по-тихоньку сбывается... Вот , обзавожусь недвижимостью, но не совсем представляю с чем столкнусь. Ну кроме самого очевидного... Нужны ваши коментарии и советы, уважаемые многоопытные форумчане . Недострой свежий. Остальное на фотках.. Посилання на коментар Поділитися на інших сайтах More sharing options...
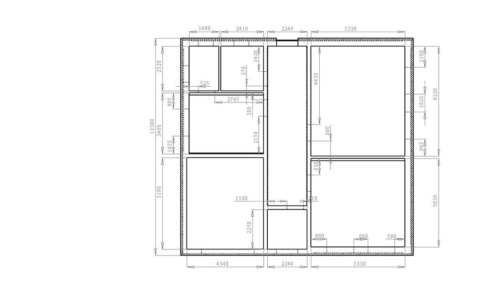
Slavasan Опубліковано: 4 серпня 2008 Автор Поділитись Опубліковано: 4 серпня 2008 вот мои прорисовки этой конструкции. Посилання на коментар Поділитися на інших сайтах More sharing options...
AndyAntonov Опубліковано: 4 серпня 2008 Поділитись Опубліковано: 4 серпня 2008 А проект этого предыдущий владелец дал? Хотя, подозреваю, его и не было вовсе. Посилання на коментар Поділитися на інших сайтах More sharing options...
Slavasan Опубліковано: 5 серпня 2008 Автор Поділитись Опубліковано: 5 серпня 2008 А проект этого предыдущий владелец дал? Хотя, подозреваю, его и не было вовсе. Ну да , в каком-то роде дал. Получил готовые стены перврого этажа. Обмерил все и нарисовал сам. Проект был эскизный - в натуре при реализации от него сильно отклонились... Так мне нравится. Решаю куда и как лестницу ставить... с этим тоже сложности. Где котел поставить. как проложить канализацию какие нюансы при возведении 2-го эт. ...%) Посилання на коментар Поділитися на інших сайтах More sharing options...
AndyAntonov Опубліковано: 5 серпня 2008 Поділитись Опубліковано: 5 серпня 2008 Проекта нет и не было, понятно. Имело бы смысл сначала проверить качество фундамента, стен и т.д. Просто когда я глянул на криво установленные ворота и самодельные "перемычки", у меня появилось желание проверить качество всего. Если всё остальное такое же, имеет ли смысл достраивать? Может, разбирать придётся. Надеюсь, второй этаж, особенно с ж/б перекрытиями, не планируется. Посилання на коментар Поділитися на інших сайтах More sharing options...
aver Опубліковано: 5 серпня 2008 Поділитись Опубліковано: 5 серпня 2008 "перемычки", которых просто нет - ваще жесть! имхо... не знал, что так можно строить... Посилання на коментар Поділитися на інших сайтах More sharing options...
AndyAntonov Опубліковано: 5 серпня 2008 Поділитись Опубліковано: 5 серпня 2008 Бывает ещё и не такое. Посилання на коментар Поділитися на інших сайтах More sharing options...
Slavasan Опубліковано: 5 серпня 2008 Автор Поділитись Опубліковано: 5 серпня 2008 ...Просто когда я глянул на криво установленные ворота и самодельные "перемычки", у меня появилось желание проверить качество всего. Если всё остальное такое же, имеет ли смысл достраивать? Может, разбирать придётся. Надеюсь, второй этаж, особенно с ж/б перекрытиями, не планируется. Вы строитель? Из какого вы региона? Ваше мнение важно. Но из категории "что делать" а не "кто виноват". Перемычки 3 или 4 толстых прута залитых бетоном. По словам продавца фундамент 80 см ленточка с арматурой. Простоял год. Потом цоколь простоял год. Потом стены тоже год. Последнее событие - 2007 год. Через каждые несколько рядов перевязывал металич. сеткой селикат и ракушняк (между ними зазор). Строил для себя - не думал что переехать придется... Перекрытие планируется половину из пустотелых плит, которые купил вместе с участком. Их над гаражом и первой комнатой. Половину по деревянным балкам: над кухней и залом. Жду коментариев. ЗЫ: Хочется узнать какой у Вас опыт в этом деле. Посилання на коментар Поділитися на інших сайтах More sharing options...
alyak Опубліковано: 5 серпня 2008 Поділитись Опубліковано: 5 серпня 2008 "перемычки", которых просто нет - ваще жесть! имхо... не знал, что так можно строить... навалилсь ... делают так , вствляют арматуру в дырки несколько прутов . Не есть хорошо , но 4 ряда кирпича могут висеть в воздухе . Посилання на коментар Поділитися на інших сайтах More sharing options...
Slavasan Опубліковано: 5 серпня 2008 Автор Поділитись Опубліковано: 5 серпня 2008 Логика проста: крышу делать надо, а площадь под ней не маленькая. Так что второй этаж - это опция на перспективу, его на долгое время закрою и использовать не буду. Мансардный или ровные деревянные с утеплением, с наружи штукатуркой... - это в процессе решения. В общем второй этаж не должен быть тяжелым. Посилання на коментар Поділитися на інших сайтах More sharing options...
Slavasan Опубліковано: 5 серпня 2008 Автор Поділитись Опубліковано: 5 серпня 2008 навалилсь ... делают так , вствляют арматуру в дырки несколько прутов . Не есть хорошо , но 4 ряда кирпича могут висеть в воздухе . ...А пререкрытие на них кладут? или нужно обвязку какую-то делать? Эти 4 ряда, на сколько я понимаю, и задумывались как обвязка... Посилання на коментар Поділитися на інших сайтах More sharing options...
AndyAntonov Опубліковано: 6 серпня 2008 Поділитись Опубліковано: 6 серпня 2008 Вы строитель? Из какого вы региона? Ваше мнение важно. Но из категории "что делать" а не "кто виноват". Перемычки 3 или 4 толстых прута залитых бетоном. По словам продавца фундамент 80 см ленточка с арматурой. Простоял год. Потом цоколь простоял год. Потом стены тоже год. Последнее событие - 2007 год. Через каждые несколько рядов перевязывал металич. сеткой селикат и ракушняк (между ними зазор). Строил для себя - не думал что переехать придется... Перекрытие планируется половину из пустотелых плит, которые купил вместе с участком. Их над гаражом и первой комнатой. Половину по деревянным балкам: над кухней и залом. Жду коментариев. ЗЫ: Хочется узнать какой у Вас опыт в этом деле. Строитель по образованию. Не конструктор. По профилю не работал. Из Харькова. Кто виноват — и так ясно. А что делать... alyak правильно говорит — такие перемычки делают. Но второй этаж и ж/б перекрытия они не выдержат: слабые. Надо или ставить туда нормальные ж/б перемычки, или ставить в проём металлическую раму могучую. Лучше первое. Над воротами — только ж/б перемычку, т.к. рама будет монструозной. Или забыть о втором этаже там. В проёмах нет "четвертей". Как окна ставить будете? Нет первязки ракушняка в простенках. Впрочем, на фоне пермычек — мелкая придирка. Опыт: видел, как ведут себя подобные "перемычки". Свой вес они ещё худо-бедно способны нести, но не больше. "Для себя" тоже можно такого наворотить по незнанию... Посилання на коментар Поділитися на інших сайтах More sharing options...
Slavasan Опубліковано: 6 серпня 2008 Автор Поділитись Опубліковано: 6 серпня 2008 ...В проёмах нет "четвертей". Как окна ставить будете? Нет первязки ракушняка в простенках. Впрочем, на фоне пермычек — мелкая придирка. Опыт: видел, как ведут себя подобные "перемычки". Свой вес они ещё худо-бедно способны нести, но не больше. "Для себя" тоже можно такого наворотить по незнанию... Про четверь - это верно. Придется снаружи что-то доделывать. Что значит фраза про перевязку, я не ф курсе - поясните. А если везде делать перекрытие по деревянным балкам? Т. е. сделать обвязку по периметру всей стены брусом 200х150 например - то перемычки будут жить? Посилання на коментар Поділитися на інших сайтах More sharing options...
Slavasan Опубліковано: 6 серпня 2008 Автор Поділитись Опубліковано: 6 серпня 2008 И что скажет alyak. По всей видимости у него тоже какой-то опыт. Хотел бы узнать о нем и послушать совет. Сбасибо. Посилання на коментар Поділитися на інших сайтах More sharing options...
alyak Опубліковано: 6 серпня 2008 Поділитись Опубліковано: 6 серпня 2008 (змінено) И что скажет alyak. По всей видимости у него тоже какой-то опыт. Хотел бы узнать о нем и послушать совет. Сбасибо. тебе уже все сказали . подумай как сделать раскрой плит так чтоб избежать этих перемычек или их усилить . насчет четвертей - ставят и без четвертей нынешние окна . а вообще или сделай хорошие фото конкретно перемычек или расспроси , мне как видиться бетон внутри . типа кирпич несьемная опалубка . а воробще я бы сделал бы армпояс им бы все и поисправлял бы . поболее бы взял и арматурки над проемами не пожалел бы . Змінено 6 серпня 2008 користувачем alyak Посилання на коментар Поділитися на інших сайтах More sharing options...
Slavasan Опубліковано: 6 серпня 2008 Автор Поділитись Опубліковано: 6 серпня 2008 Хорошо , сделаю. Спасибо. А на счет деревянной обвязки? Посилання на коментар Поділитися на інших сайтах More sharing options...
AndyAntonov Опубліковано: 6 серпня 2008 Поділитись Опубліковано: 6 серпня 2008 Армопояс — тоже выход. Обвязка не годится: нет жёсткости, которую даёт армопояс. Всё равно в этом месте будет опираться на перемычку. В случае с армопоясом: распределится на соседние участки стены. У Вас ракушняк в простенках лежит так, что вертикальные швы идут строго один над одним. Перевязка делается так, чтобы швы в соседних рядах один над одним не были. Этим достигается бОльшая прочность кладки. У меня по второму этажу ещё один вопрос, безотносительно перемычек. Ответа на него я не знаю. Сможет ли ракушняк его вынести? Посилання на коментар Поділитися на інших сайтах More sharing options...
Kostja Опубліковано: 6 серпня 2008 Поділитись Опубліковано: 6 серпня 2008 (змінено) ...мне как видиться бетон внутри . типа кирпич несьемная опалубка... Очень врятли. Толщина стен 1,5 кирпича. Нижний ряд "перемычек": изнутри красный в 1 кирпич (иначе его выкладывали половинками), снаружи в 1/2 белый кирпич. так что там "перемычек" нет Армопояс конечно поможет, но я б переложил - сделал с перемычками благо не много работы - всего 4 ряда. Но ракушняк... стрёмный материал... P.S. А вид из окон хороший! Змінено 6 серпня 2008 користувачем Kostja Посилання на коментар Поділитися на інших сайтах More sharing options...
AndyAntonov Опубліковано: 6 серпня 2008 Поділитись Опубліковано: 6 серпня 2008 Ракушняк — нормальный материал. Для одноэтажного дома. Для двух — не знаю, таких домов не видел. Посилання на коментар Поділитися на інших сайтах More sharing options...
Slavasan Опубліковано: 6 серпня 2008 Автор Поділитись Опубліковано: 6 серпня 2008 Ракушняк — нормальный материал. Для одноэтажного дома. Для двух — не знаю, таких домов не видел. В крыму все дома строят из ракушняка, в 2 и 3 этажа. И кладут пустотелые плиты перекрытия(ну не на 3-х этажах но видел). Хоть это и сомнительный показатель т.к. это все самострой - но материал вроде прочный. Вот где или как понять наверняка... ? Если перекладывать - то только над окнами? Я правильно понимаю? И почему деревяный брус в качестве обвязки негодится? Перекрытия из него делают... правда с учетом прогиба прибл 7-12 мм.. ну так на 6 метрах пролета! У меня есть мини-програмулинка по расчету деревянных балок перекрытия - надо только понять что такое сосредоточенная нагрузка (ригель) и какая может быть нагрузка по площади. Кто может подсказать? beamcalc10.part1.rar beamcalc10.part2.rar Посилання на коментар Поділитися на інших сайтах More sharing options...
МАКАР Опубліковано: 6 серпня 2008 Поділитись Опубліковано: 6 серпня 2008 В крыму все дома строят из ракушняка, в 2 и 3 этажа. И кладут пустотелые плиты перекрытия(ну не на 3-х этажах но видел). Хоть это и сомнительный показатель т.к. это все самострой - но материал вроде прочный. Вот где или как понять наверняка... ? Если перекладывать - то только над окнами? Я правильно понимаю? И почему деревяный брус в качестве обвязки негодится? Перекрытия из него делают... правда с учетом прогиба прибл 7-12 мм.. ну так на 6 метрах пролета! У меня есть мини-програмулинка по расчету деревянных балок перекрытия - надо только понять что такое сосредоточенная нагрузка (ригель) и какая может быть нагрузка по площади. Кто может подсказать? [ATTACH]8072[/ATTACH] [ATTACH]8073[/ATTACH] Из ракушняка сейчас строят каркасно монолитно железобетонные, вот и плиты ложат, либо монолит льют, а ракушняк как наполнитель стен нету уже у нас того ракушняка что топор не берет. Вы людей не путайте. Если вы хотите второй этаж(мансарду) зделать деревянной(брусовой, бревенчатой, каркасной) то это другое дело, а кирпичь сверху на дерево не ложат. Посилання на коментар Поділитися на інших сайтах More sharing options...
AndyAntonov Опубліковано: 7 серпня 2008 Поділитись Опубліковано: 7 серпня 2008 В крыму все дома строят из ракушняка, в 2 и 3 этажа. И кладут пустотелые плиты перекрытия(ну не на 3-х этажах но видел). Хоть это и сомнительный показатель т.к. это все самострой - но материал вроде прочный. Вот где или как понять наверняка... ? Дык, самострой. Вот и я не знаю наверняка. А без этого здания я бы не рискнул. Если перекладывать - то только над окнами? Я правильно понимаю? И почему деревяный брус в качестве обвязки негодится? Перекрытия из него делают... правда с учетом прогиба прибл 7-12 мм.. ну так на 6 метрах пролета! У меня есть мини-програмулинка по расчету деревянных балок перекрытия - надо только понять что такое сосредоточенная нагрузка (ригель) и какая может быть нагрузка по площади. Кто может подсказать? Перекладывать и ставить нормальные перемычки надо над всеми проёмами. Ворота в этом отношении намного опаснее окон, т.к. пролёт больше. Если оставить то, что есть, деревянный брус не годится именно из-за возможного прогиба. Он же из-за этого будет переносить нагрузку на "перемычку", чего допускать нельзя. Армопояс в этом случае нужен именно из-за его жёсткости: не допустить нагрузок на "перемычки". А за программку спасибо. Посилання на коментар Поділитися на інших сайтах More sharing options...
Slavasan Опубліковано: 7 серпня 2008 Автор Поділитись Опубліковано: 7 серпня 2008 За програмку пожалуйста. У меня еще есть. Только помоги разобраться. Посилання на коментар Поділитися на інших сайтах More sharing options...
Slavasan Опубліковано: 7 серпня 2008 Автор Поділитись Опубліковано: 7 серпня 2008 (змінено) heatcalc.part1.rar heatcalc.part2.rar Змінено 7 серпня 2008 користувачем Slavasan Посилання на коментар Поділитися на інших сайтах More sharing options...
Slavasan Опубліковано: 7 серпня 2008 Автор Поділитись Опубліковано: 7 серпня 2008 stovecalc.part1.rar stovecalc.part2.rar Посилання на коментар Поділитися на інших сайтах More sharing options...
Рекомендовані повідомлення
Створіть акаунт або увійдіть у нього для коментування
Ви маєте бути користувачем, щоб залишити коментар
Створити акаунт
Зареєструйтеся для отримання акаунта. Це просто!
Зареєструвати акаунтУвійти
Вже зареєстровані? Увійдіть тут.
Увійти зараз