anton_kk Опубліковано: 25 січня 2012 Поділитись Опубліковано: 25 січня 2012 Ну вот и мы начали строительство... В 2010 году был приобретён участок в Борисполе, 10 соток Плюсы: место нас с женой устраивает газ+свет рядом дорога тоже типа есть с документами всё ок Минусы: низина, надо отсыпать участок 50-60 см Всю зиму провели в проектной организации, рисовали дом то, что из этого вышло смотрите и критикуйте Посилання на коментар Поділитися на інших сайтах More sharing options...
anton_kk Опубліковано: 25 січня 2012 Автор Поділитись Опубліковано: 25 січня 2012 Сами понимаете зима была самая сложная в моей жизни... пока утверждали внутреннюю планировку дома дело доходило до розвода, поэтому я на всё согласился взамен получив индульгенцию на гараж. Итак гараж мой и жена в габаритах, планировке и его жизни не участвует. Посилання на коментар Поділитися на інших сайтах More sharing options...
anton_kk Опубліковано: 25 січня 2012 Автор Поділитись Опубліковано: 25 січня 2012 кстати вчера нашел фото участка год назад и привязку дома к местности Посилання на коментар Поділитися на інших сайтах More sharing options...
AndrikVG Опубліковано: 26 січня 2012 Поділитись Опубліковано: 26 січня 2012 кстати вчера нашел фото участка год назад и привязку дома к местности Доброй ночи соседям, между нашими домами метров 500. Судя по топосьемке мой участок выше на 10м, если система координат та же. У меня грунтовые воды 2,5м, как у вас сейчас на участке? Посилання на коментар Поділитися на інших сайтах More sharing options...
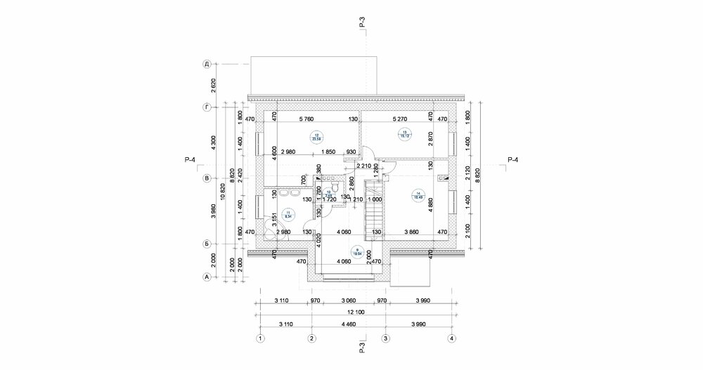
Maris Опубліковано: 26 січня 2012 Поділитись Опубліковано: 26 січня 2012 Планировка хорошо продуманная, удобно все. Материал стен газобетон + облицовочный кирпич? Удачи в этом не легком труде! 1 Посилання на коментар Поділитися на інших сайтах More sharing options...
anton_kk Опубліковано: 26 січня 2012 Автор Поділитись Опубліковано: 26 січня 2012 геологию делалаи в апреле прошлого года, до воды 2 метра,но потом она поднимается до 1.3м. Поэтому я подсыпал участок, и еще буду. Мои соседи в этом году корчевали деревья, в ямах глубиной 2-2,5 метра вода не обнаружилась. А вот когда были летом дожди, то мой приямок под скважину немного подтопило. Посилання на коментар Поділитися на інших сайтах More sharing options...
anton_kk Опубліковано: 26 січня 2012 Автор Поділитись Опубліковано: 26 січня 2012 Планировка хорошо продуманная, удобно все. Материал стен газобетон + облицовочный кирпич? Удачи в этом не легком труде! Да кирпич+утеплитель+газоблок, но так как газоблок и плиты перекрытия уже есть , а с кирпичем не определись (хотим керамейя магма топаз, но по цене пока космос и отзывы не очень) будем начинать гнать коробку в этом году с выпуском арматуры или чего либо для связки с кирпичем в будущем. :) Посилання на коментар Поділитися на інших сайтах More sharing options...
Катерина Ш Опубліковано: 26 січня 2012 Поділитись Опубліковано: 26 січня 2012 Да кирпич+утеплитель+газоблок, но так как газоблок и плиты перекрытия уже есть , а с кирпичем не определись (хотим керамейя магма топаз, но по цене пока космос и отзывы не очень) будем начинать гнать коробку в этом году с выпуском арматуры или чего либо для связки с кирпичем в будущем. :) Почему выбрали такой сложный пирог стены "кирпич+утеплитель+газоблок"? Посилання на коментар Поділитися на інших сайтах More sharing options...
anton_kk Опубліковано: 26 січня 2012 Автор Поділитись Опубліковано: 26 січня 2012 честно говоря, я не доверяю штукатурке газоблока и штукатурке пенопласта. заявленные краски+технологии+руки рабочих много факторов, при ошибки которых много проблем потом. Кирпич - это на века и самое главное нет практически никакого ухода. Сразу скажу высолы - это не проблема... Ну и кирпичик то магма - очень красивый...;) Посилання на коментар Поділитися на інших сайтах More sharing options...
anton_kk Опубліковано: 26 січня 2012 Автор Поділитись Опубліковано: 26 січня 2012 Да забыл сказать с утеплитнлем тоже пока вопрос, может его и не будет, т.е. газоблок+вент. зазор+кирпич. К сожаленью сколько людей столько и мнений... Посилання на коментар Поділитися на інших сайтах More sharing options...
Катерина Ш Опубліковано: 26 січня 2012 Поділитись Опубліковано: 26 січня 2012 Да забыл сказать с утеплитнлем тоже пока вопрос, может его и не будет, т.е. газоблок+вент. зазор+кирпич. К сожаленью сколько людей столько и мнений... Такой пирог в реализации был бы намного проще. Ведь в конструкции стены имеет значение не только теплопроводность, но и надежность, и сведение к минимуму возможных ошибок. ИМХО, газоблок+кирпич с вентзазором - это лучший пирог! 1 Посилання на коментар Поділитися на інших сайтах More sharing options...
shilay Опубліковано: 26 січня 2012 Поділитись Опубліковано: 26 січня 2012 А почему выбор пал именно на газоблок??? Идеальный вариан керамблок+вент зазор+кирпич= керамический пирог который "дышит" Посилання на коментар Поділитися на інших сайтах More sharing options...
anton_kk Опубліковано: 27 січня 2012 Автор Поділитись Опубліковано: 27 січня 2012 А почему выбор пал именно на газоблок??? Идеальный вариан керамблок+вент зазор+кирпич= керамический пирог который "дышит" керамоблок по цене не прошел поэтому и взяли газоблок. Посилання на коментар Поділитися на інших сайтах More sharing options...
Катерина Ш Опубліковано: 27 січня 2012 Поділитись Опубліковано: 27 січня 2012 керамоблок по цене не прошел поэтому и взяли газоблок. А какой толщины вяли газоблок? Посилання на коментар Поділитися на інших сайтах More sharing options...
Sergi_kiev Опубліковано: 27 січня 2012 Поділитись Опубліковано: 27 січня 2012 Приветствую на родной земле. (Правда мы в прошлом году съехали из Борисполя поближе к Киеву, остался там только бизнес.) С почином и удачи Вам. Какой планируете фундамент в связи с высоким УГВ? Если нужна будет помощь коренного аборигена, обращайтесь. Посилання на коментар Поділитися на інших сайтах More sharing options...
dovis Опубліковано: 27 січня 2012 Поділитись Опубліковано: 27 січня 2012 кстати вчера нашел фото участка год назад и привязку дома к местности У нас тоже участок в Вашем районе в радиусе 500 метров. Посилання на коментар Поділитися на інших сайтах More sharing options...
anton_kk Опубліковано: 27 січня 2012 Автор Поділитись Опубліковано: 27 січня 2012 А какой толщины вяли газоблок? газоблок взял 300 мм, аерок, паз-гребень, т.к. сам думаю ложить. Из всех домов из газоблока, где ложили работяги ни разу не видел хорошей кладки. Они почему все любят ложить на раствор, чтобы быстро и на глаз Посилання на коментар Поділитися на інших сайтах More sharing options...
anton_kk Опубліковано: 27 січня 2012 Автор Поділитись Опубліковано: 27 січня 2012 Итак попробую ответить махом на все вопросы: -- в борисполе уже живу лет десять, остался здесь сразу после института -- сам по работе непосредственно связан с производством решил на фундамент нанять бригаду с прорабом (апрель 2011). Одни были заняты, другим только фундамент был не интересен, третьи были очень умные, поэтому по рекомендации глаз положил на Степановича. Нормальный такой мужик лет 50, всю жизнь на стройке, дал мне нормальную сметовку, пообещал чтоб я не переживал, всё будет ОК!!! Ну так и было, пока я сам не нашел экскаватор в два раза дешевле, сам не посчитал блоки ФБС, т.к. у него их было на 10 штук больше. Короче освободили место под домом (сняли чернозем), сделали подушку из песка и щебня. начали ставить опалубку и вязать армопояс....................потом я уехал в командировку на неделю. В телефонном режиме всё было нормально, договорились принять бетон в среду. Приехав в понедельник на объект заметил только половину опалубки... В телефонном режиме подтвердили, что всё будет ОК до среды. Я опять уехал в командировку и приехав с фотоаппаратом в среду утром заметил небывалое оживление на участке из прораба, матов и работяг... треть опалубки не стоит, сбиты только щиты, поваренные каркасы в опалубку не установлены и первый миксер стоит готовый избавиться от бетона... Пришлось положить фотоаппарат в машину, переодеться и взять руководство на себя. В итоге: приняли первый миксер, за 2 часа доставили опалубку и приняли весь бетон. Прораб лично в рубашке, брюках и туфлях принимал бетон. Теперь думаю, что если бы я не приехал, то часть бетона залили бы без арматуры. поэтому фото только подготовительного процесса: Посилання на коментар Поділитися на інших сайтах More sharing options...
anton_kk Опубліковано: 27 січня 2012 Автор Поділитись Опубліковано: 27 січня 2012 Кстати соседи в радиусе 500 метров, признавайтесь где вы именно и что успели сделать:Bravo: Посилання на коментар Поділитися на інших сайтах More sharing options...
Зебра Опубліковано: 28 січня 2012 Поділитись Опубліковано: 28 січня 2012 Да забыл сказать с утеплитнлем тоже пока вопрос, может его и не будет, т.е. газоблок+вент. зазор+кирпич. К сожаленью сколько людей столько и мнений... Самый правильный пирог. На нём и останавливайтесь. Насчёт рустики магмы не знаю, но в целом кирпич у Керамейи неплохой. Хотя были и негативные отзывы. Видимо всё зависит от конкретной партии и типа кирпича. Немного дороже чем СБК, но зато как камень. <Зебромуж> Посилання на коментар Поділитися на інших сайтах More sharing options...
Катерина Ш Опубліковано: 28 січня 2012 Поділитись Опубліковано: 28 січня 2012 газоблок взял 300 мм, аерок, паз-гребень, т.к. сам думаю ложить. Из всех домов из газоблока, где ложили работяги ни разу не видел хорошей кладки. Они почему все любят ложить на раствор, чтобы быстро и на глаз Хоошая толщина, при таком пироге на норматив выходите. Плюс будет и крепко, и тепло)))) Ложить как попало не нужно, и обязательно на клей. И проще (делать легче), и эффективнее. Посилання на коментар Поділитися на інших сайтах More sharing options...
AndrikVG Опубліковано: 28 січня 2012 Поділитись Опубліковано: 28 січня 2012 Кстати соседи в радиусе 500 метров, признавайтесь где вы именно и что успели сделать:Bravo: Там где стрелочка, фундамент весной. На сегодня добрались до крыши, весной продолжим. Справа и чуть выше ул. Зеленая. Посилання на коментар Поділитися на інших сайтах More sharing options...
dovis Опубліковано: 28 січня 2012 Поділитись Опубліковано: 28 січня 2012 Кстати соседи в радиусе 500 метров, признавайтесь где вы именно и что успели сделать:Bravo: Еще ничего не сделали, только купили участок на 2-х и сейчас ждем приватизацию. Потом электричество и строительные бумаги. Планируем строить каркасник, опыт есть... А купили на улице Сосниных. Посилання на коментар Поділитися на інших сайтах More sharing options...
anton_kk Опубліковано: 28 січня 2012 Автор Поділитись Опубліковано: 28 січня 2012 Там где стрелочка, фундамент весной. На сегодня добрались до крыши, весной продолжим. Справа и чуть выше ул. Зеленая. пока смутно понял, но завтра поеду гляну... По весне надо шашлычка попробовать вместе.... Посилання на коментар Поділитися на інших сайтах More sharing options...
anton_kk Опубліковано: 28 січня 2012 Автор Поділитись Опубліковано: 28 січня 2012 Еще ничего не сделали, только купили участок на 2-х и сейчас ждем приватизацию. Потом электричество и строительные бумаги. Планируем строить каркасник, опыт есть... А купили на улице Сосниных. кстати по поводу електричества, есть люди которые делали мне документы и подключение мне под ключ. Цены незнаю, но без геморроя, два месяца и всё ОК. Посилання на коментар Поділитися на інших сайтах More sharing options...
Рекомендовані повідомлення
Створіть акаунт або увійдіть у нього для коментування
Ви маєте бути користувачем, щоб залишити коментар
Створити акаунт
Зареєструйтеся для отримання акаунта. Це просто!
Зареєструвати акаунтУвійти
Вже зареєстровані? Увійдіть тут.
Увійти зараз