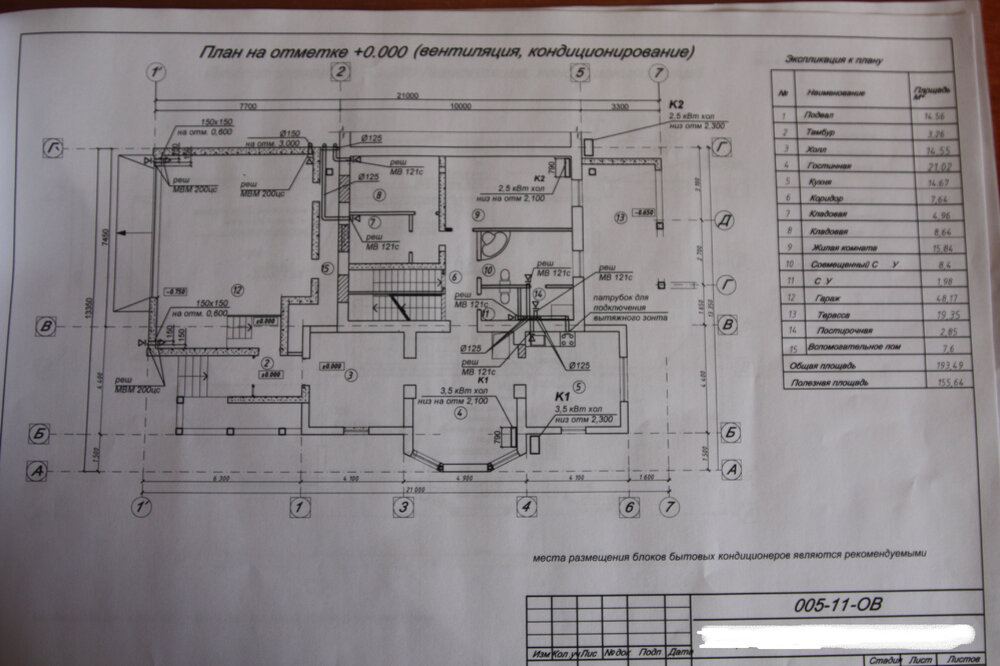
Stan78 Опубліковано: 3 лютого 2012 Поділитись Опубліковано: 3 лютого 2012 (змінено) Долго читал тему по вентиляции и кондиционированию - к сожалению окончательно определится не смог. Есть коробка 200 квадратов (реконструкция). Проектировщики раздел вентиляция и кондиционирование делали рекомендательно (шоб значилось), поэтому сканы выкладываю больше для планировки. Хочется приточной вентиляции и кондиционирования. Вытяжка через вентканалы санузлов, кладовки и кухни. Приток планирую сделать на 2м этаже по помещения №3,4,6 и 7. Нужно ли делать приток на 1й этаж в помещение №4 (гостинная) или будет переток воздуха с о второго этажа на первый по лестнице (как лучше?) Какой мощности нужен приток на такой объём дома (650 кубов). По производителям оборудования знаком только с Вентс и Системэйр - может что-то конкретное посоветуете. Оборудование планирую установить на холодном чердачке над мансардой (утепление 250мм ваты) Теперь 2я часть вопроса - кондиционирование. На 1м этаже склоняюсь к инверторному сплиту в гостинной (12й или 18й). Со вторым этажом сложнее. Варианты: 1й В помещения 3,4,6 и 7 по отделному инвертору (9ки). Минусы - весь фасад в наружных блоках. 2й В помещение 7 (спальня) - инвертор 9ка. В помещение №2 поставить инвертор 12й или 18й, кот-й будет охлаждать попутно детские комнаты (№3 и 4) и дополнительную комнату №6 - с назначением ещё не определились. Минусы - не очень корректное кондиционирование детских, но зато не будет дуть ночью холодный поток на детей. 3й вариант - поставить 2 мультисплита (в помещения №3-4 и 6-7). Внутренние блоки 9ки. Производитель скорее всего Gree. Теперь по Gree: какую серию инверторов посоветуете. Понравился конечно U-Cool (по описанию и по дизайну). Но не знаю - стоит ли переплачивать или это просто переплата за модную новинку. Змінено 3 лютого 2012 користувачем Stan78 Посилання на коментар Поділитися на інших сайтах More sharing options...
Bandit_ua Опубліковано: 3 лютого 2012 Поділитись Опубліковано: 3 лютого 2012 Дело в том, что тот же Купер с Хантером производятся на заводе Гри, во всем одикнаковы и стоят процентов на 10 дешевле Посилання на коментар Поділитися на інших сайтах More sharing options...
airservis Опубліковано: 3 лютого 2012 Поділитись Опубліковано: 3 лютого 2012 к сожалению окончательно определится не смог. По вентиляции нормально. Ставьте приточку на чердаке. Практичнее сборную с эл. подогревом. Вниз вести не обязательно. Системейр хорошо. По кондиционированию не ставьте один внутр. блок на несколько комнат. Тем более настенный. Работать будет не корректно. Мульти-немульти Вам выбирать. Не мульти по всем параметрам, кроме количества внешних блоков, лучше. По производителю. Гри - нормально. Нравится, есть хорошие цены - берите. 1 Посилання на коментар Поділитися на інших сайтах More sharing options...
ССТ Опубліковано: 3 лютого 2012 Поділитись Опубліковано: 3 лютого 2012 По вентиляции. Подать воздух на 1й этаж, по-моему, всё таки желательно. Опустить 1 воздуховод по цене будет не так уж дорого. По оборудованию могу предложить Rosenberg (Германия). По цене сопоставимо с Системэир. По кондиционированию. 1. Зачем Вам 9ки? В Ваших спальниях 7к более чем достаточно. 2. Если Вы ориентируетесь на отдельные инверторы инверторы Gree, то по цене не так уж сильно будет отличаться инверторный мульти-сплит Hitachi, на 1 наружный блок. У Вас я насчитал 6 внутренних блоков, 4 на 2м этаже и 2 на 1м. И все их можно завязать на 1 наружный блок. Для составления стоимости нужно смотреть объект. Перезвоните, съездим посмотрим и посчитаем. Посилання на коментар Поділитися на інших сайтах More sharing options...
airservis Опубліковано: 3 лютого 2012 Поділитись Опубліковано: 3 лютого 2012 Перезвоните, съездим посмотрим и посчитаем. В Запорожье? Без денег? Посилання на коментар Поділитися на інших сайтах More sharing options...
ССТ Опубліковано: 3 лютого 2012 Поділитись Опубліковано: 3 лютого 2012 В Запорожье? Без денег? М-да... не доглядел... Ну... Тогда железо могу посчитать точно и монтаж ориентировочно. Посилання на коментар Поділитися на інших сайтах More sharing options...
Владимир Климат Опубліковано: 3 лютого 2012 Поділитись Опубліковано: 3 лютого 2012 Дело в том, что тот же Купер с Хантером производятся на заводе Гри, во всем одикнаковы и стоят процентов на 10 дешевле Если одинаковы, за счет чего они дешевле? И вообще, почему почти весь ОЕМ ГРИ процентов на 10-30% дешевле самого ГРИ? Посилання на коментар Поділитися на інших сайтах More sharing options...
airservis Опубліковано: 3 лютого 2012 Поділитись Опубліковано: 3 лютого 2012 Если одинаковы, за счет чего они дешевле? И вообще, почему почти весь ОЕМ ГРИ процентов на 10-30% дешевле самого ГРИ? В Киев Климате больше кушают чем в Степе:D. Поэтому надо покупать Мидею. 1 Посилання на коментар Поділитися на інших сайтах More sharing options...
Stan78 Опубліковано: 3 лютого 2012 Автор Поділитись Опубліковано: 3 лютого 2012 М-да... не доглядел... Ну... Тогда железо могу посчитать точно и монтаж ориентировочно. Спасибо. Если не найду на месте с адекватными ценами - обращусь. Посилання на коментар Поділитися на інших сайтах More sharing options...
Stan78 Опубліковано: 3 лютого 2012 Автор Поділитись Опубліковано: 3 лютого 2012 Владимир, я так понял вы Gree продаёте. На каком-то из сайтов в описании сказано, что в сериях Change и U-cool стоят компрессоры Дайкин. Правда или нет? А какой компрессор в мультисплите? Посилання на коментар Поділитися на інших сайтах More sharing options...
Stan78 Опубліковано: 3 лютого 2012 Автор Поділитись Опубліковано: 3 лютого 2012 По вентиляции нормально. Ставьте приточку на чердаке. Практичнее сборную с эл. подогревом. Вниз вести не обязательно. Системейр хорошо. По кондиционированию не ставьте один внутр. блок на несколько комнат. Тем более настенный. Работать будет не корректно. Мульти-немульти Вам выбирать. Не мульти по всем параметрам, кроме количества внешних блоков, лучше. По производителю. Гри - нормально. Нравится, есть хорошие цены - берите. А можно по-конкретней - по каким именно параметрам одиночные выигрывают у мультисплитов? Чтоб знать что сравнивать. Я так понимаю это относится не только к торговой марке Gree? Посилання на коментар Поділитися на інших сайтах More sharing options...
airservis Опубліковано: 4 лютого 2012 Поділитись Опубліковано: 4 лютого 2012 А можно по-конкретней - по каким именно параметрам одиночные выигрывают у мультисплитов? Чтоб знать что сравнивать. Я так понимаю это относится не только к торговой марке Gree? По всем. Об этом уже написано очень много. Посилання на коментар Поділитися на інших сайтах More sharing options...
ССТ Опубліковано: 4 лютого 2012 Поділитись Опубліковано: 4 лютого 2012 А можно по-конкретней - по каким именно параметрам одиночные выигрывают у мультисплитов? Чтоб знать что сравнивать. Я так понимаю это относится не только к торговой марке Gree? Единственный плюс одиночных машин - то, если выходит из строя наружный блок, то вырубаются все кондиционеры. Но при этом в мульти-сплитах стоят более надёжные и долговечные компрессоры, чем в одиночных. Насчёт компрессоров Дайкин установленных в кондиционерах Gree и C&H. На том же заводе Gree производятся кондиционеры Дайкин и на инверторы под лейблом Гри и Купер ставятся компрессоры слизаные с Дайкина. Я не говорю, что это плохо или компрессоры плохие, нормальные компрессоры, нормальные кондёры, просто как факт. 1 Посилання на коментар Поділитися на інших сайтах More sharing options...
Владимир Климат Опубліковано: 4 лютого 2012 Поділитись Опубліковано: 4 лютого 2012 В Киев Климате больше кушают чем в Степе:D. Поэтому надо покупать Мидею. Наверное Вам виднее, где больше кушают. А я не в курсе - я столуюсь только по одному месту прописки :D Могу честно сказать, что если бы мы ставили такие % накрутки, как некоторые ставят на другие бренды, то цена на ГРИ была бы чуть меньше, чем цена на МЕ :D Ещё раз повторюсь, что ГРИ и в самом Китае стОит дорого. Часть моделей ГРИ мы не поставляем, т.к., с учетом логистики, цена на них будет запредельной. Тяжело будет покупателю объяснить почему китаец стОит, как хороший японец - не поймут. Скажут, что в КиевКлимате не "больше кушают", а "вообще зажрались" :D Посилання на коментар Поділитися на інших сайтах More sharing options...
airservis Опубліковано: 5 лютого 2012 Поділитись Опубліковано: 5 лютого 2012 Единственный плюс одиночных машин - то, если выходит из строя наружный блок, то вырубаются все кондиционеры. Но при этом в мульти-сплитах стоят более надёжные и долговечные компрессоры, чем в одиночных. По параметрам энергосбережения мультик не может быть лучше. По условиям монтажа? По обслуживанию, ремонту? По цене? По надежности и долговечности... Это у бабы Дуси под святошинским мостом надежнее чем у бабы Зины. А в кондиционировании на одинаковую по уровню технику ставят одинаковые по надежности компрессора. 1 Посилання на коментар Поділитися на інших сайтах More sharing options...
Bandit_ua Опубліковано: 6 лютого 2012 Поділитись Опубліковано: 6 лютого 2012 Ну дык, Gree - бренд)))), поэтому и дороже... Посилання на коментар Поділитися на інших сайтах More sharing options...
ССТ Опубліковано: 6 лютого 2012 Поділитись Опубліковано: 6 лютого 2012 По параметрам энергосбережения мультик не может быть лучше. Обоснуйте пожалуйста. В мультике один (или два) компрессора работают на 6 внутренних блоков и выдают необходимое количество холода (пардон за непрофессиональное выражение). В отдельных сплитах будут работать 6 компрессоров и в любом случае будут потреблять больше электроэнергии. Как не крути а непрямые затраты эл./эн будут. Посилання на коментар Поділитися на інших сайтах More sharing options...
airservis Опубліковано: 6 лютого 2012 Поділитись Опубліковано: 6 лютого 2012 Обоснуйте пожалуйста. В мультике один (или два) компрессора работают на 6 внутренних блоков и выдают необходимое количество холода (пардон за непрофессиональное выражение). В отдельных сплитах будут работать 6 компрессоров и в любом случае будут потреблять больше электроэнергии. Как не крути а непрямые затраты эл./эн будут. Если мы берем идеальные условия работы для мультика (допустим на три внутренних блока с одним компрессором 8 кВт) и получаем максимально возможный ЕЕR, он возможно будет выше чем у трех не мультиков. Но создать идеальные условия для мультика сложно. Он может работать на 1 блок, да еще на 50 %. И это уже совсем не те показатели будут. Это как КамАЗом пассажиров возить. Для отдельных же блоков идеальные условия случаются гораздо чаще. 1 Посилання на коментар Поділитися на інших сайтах More sharing options...
Zurbagan Опубліковано: 6 лютого 2012 Поділитись Опубліковано: 6 лютого 2012 А можно по-конкретней - по каким именно параметрам одиночные выигрывают у мультисплитов? Чтоб знать что сравнивать. Я так понимаю это относится не только к торговой марке Gree? Исходя из личной практики могу сказать, что одиночные выигрывают у мультиков только ценой (да и то не всегда). Все остальное - домыслы. Посилання на коментар Поділитися на інших сайтах More sharing options...
REYDER Опубліковано: 6 лютого 2012 Поділитись Опубліковано: 6 лютого 2012 Выбор кондиционера - это как выбор автомобиля)))) Китай - смотрите что больше нравится и выберите ХОРОШЕГО монтажника. Есть денег получше купить - ПОКУПАЙТЕ!!! но тоже обязательно ХОРОШЕГО монтажника))) И о вентиляции вопрос риторический))) Если дом герметичный ставьте обязательно приточно-вытяжную с рекуператором. Если в лесу и стандартное строительство и мало денег ставьте проветриватели и вытяжку в санузлы и будет вам счастье! А обычно народ и инфильтрацией (естественной через неплотности) обходится, что хватает для саннормы. А перед сном откроете хфорточку на пару минут. 3 Посилання на коментар Поділитися на інших сайтах More sharing options...
bondur Опубліковано: 7 лютого 2012 Поділитись Опубліковано: 7 лютого 2012 Производитель скорее всего Gree. Теперь по Gree: какую серию инверторов посоветуете. Понравился конечно U-Cool (по описанию и по дизайну). Но не знаю - стоит ли переплачивать или это просто переплата за модную новинку. Рекомендую не переплачивать за Gree а купить Tosot. Новинка от компании Gree самая прогрессивная модель кондиционера серии U-Grace Tosot GU-09A(B) и Tosot GU-12A(B) silver metallic - A / white metallic - B Очень тихий и экономный - наивысшие характеристики по энергосбережению EER=4,85/COP=4,95 Посилання на коментар Поділитися на інших сайтах More sharing options...
Рекомендовані повідомлення
Створіть акаунт або увійдіть у нього для коментування
Ви маєте бути користувачем, щоб залишити коментар
Створити акаунт
Зареєструйтеся для отримання акаунта. Це просто!
Зареєструвати акаунтУвійти
Вже зареєстровані? Увійдіть тут.
Увійти зараз