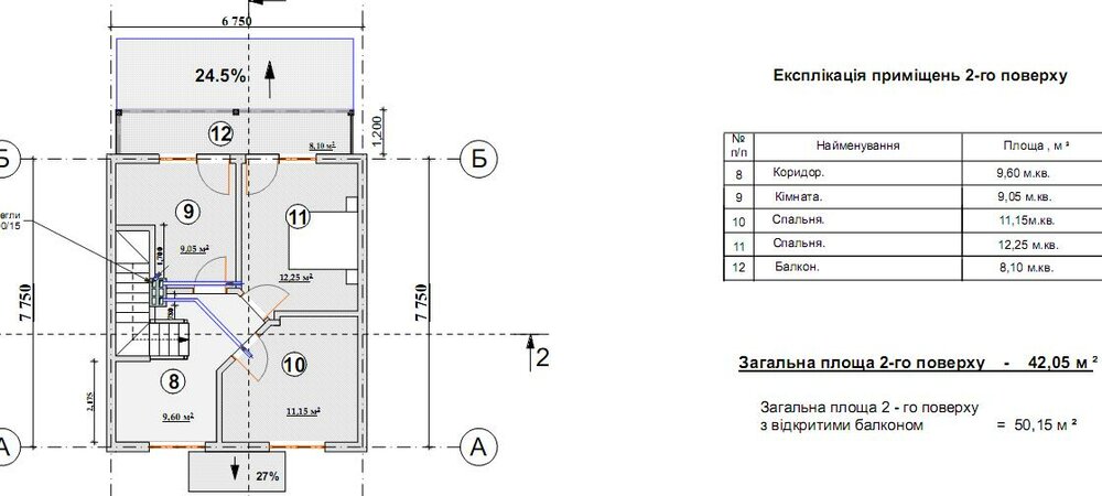
Vladimir87 Опубліковано: 5 лютого 2012 Поділитись Опубліковано: 5 лютого 2012 Проект ТЕРМОРДОМА 100кв.м. Очень удачный, экономный и компактный дом 7м*8м. Есть копия проекта в стандартном виде и електронном варианте ПОЛНЫЙ РАБОЧИЙ ПРОЕКТ: -ФАСАДЫ -РОЗРЕЗЫ -ПЛАНЫ ПОМЕЩЕНИЙ -ФУНДАМЕНТ -ПЕРЕКРЫТИЯ -КРЫША -КАМИН -ВЕНТИЛЯЦИЯ Цена 350 амер.рубл. Посилання на коментар Поділитися на інших сайтах More sharing options...
Vladimir87 Опубліковано: 13 лютого 2012 Автор Поділитись Опубліковано: 13 лютого 2012 мой номер 0665024352 Посилання на коментар Поділитися на інших сайтах More sharing options...
Vladimir87 Опубліковано: 16 лютого 2012 Автор Поділитись Опубліковано: 16 лютого 2012 ___________ап Посилання на коментар Поділитися на інших сайтах More sharing options...
Vladimir87 Опубліковано: 22 лютого 2012 Автор Поділитись Опубліковано: 22 лютого 2012 ___________ап Посилання на коментар Поділитися на інших сайтах More sharing options...
Vladimir87 Опубліковано: 19 серпня 2012 Автор Поділитись Опубліковано: 19 серпня 2012 (змінено) Самостоятельно строю дом по этому проекту, есть подробный фотоотчет с описанием Змінено 19 серпня 2012 користувачем Vladimir87 Посилання на коментар Поділитися на інших сайтах More sharing options...
Gedeonovich Опубліковано: 19 серпня 2012 Поділитись Опубліковано: 19 серпня 2012 Был бы из пенобетона.... Посилання на коментар Поділитися на інших сайтах More sharing options...
Mentor Опубліковано: 19 серпня 2012 Поділитись Опубліковано: 19 серпня 2012 Самостоятельно строю дом по этому проекту Все это хорошо, если бы не безграмотное армирование..... Посилання на коментар Поділитися на інших сайтах More sharing options...
Vladimir87 Опубліковано: 20 серпня 2012 Автор Поділитись Опубліковано: 20 серпня 2012 Все это хорошо, если бы не безграмотное армирование..... Уточните на каком фото! Посилання на коментар Поділитися на інших сайтах More sharing options...
OldHouse Опубліковано: 17 грудня 2012 Поділитись Опубліковано: 17 грудня 2012 указал, где безграмотное армирование? Посилання на коментар Поділитися на інших сайтах More sharing options...
Mentor Опубліковано: 18 грудня 2012 Поділитись Опубліковано: 18 грудня 2012 Уточните на каком фото! Ну например на фото №3 и №4 - одиноко торчащая арматурина в середине стены...Она там "до борозды", подозреваю, что и горизонтальное армирование такое же "грамотное"...а в остальном.... Посилання на коментар Поділитися на інших сайтах More sharing options...
Vladimir87 Опубліковано: 24 грудня 2012 Автор Поділитись Опубліковано: 24 грудня 2012 Ну например на фото №3 и №4 - одиноко торчащая арматурина в середине стены...Она там "до борозды", подозреваю, что и горизонтальное армирование такое же "грамотное"...а в остальном.... армировал по проекту, можете еще посмотреть как строили тернопольци такой же дом www.termoblok.te.ua/component/option,com_datsogallery/Itemid,36/func,viewcategory/catid,38/ Посилання на коментар Поділитися на інших сайтах More sharing options...
Vladimir87 Опубліковано: 24 грудня 2012 Автор Поділитись Опубліковано: 24 грудня 2012 Вот так сейчас выглядит (только двери стоят) - ждет штукатурки Кстати, отапливаю одним масляным обогревателем, купленым за 200грн., так температура в доме, даже в смаые лютые морозы не падала ниже 10 градусов, правда закрыл вентиляцию. Посилання на коментар Поділитися на інших сайтах More sharing options...
Vladimir87 Опубліковано: 25 грудня 2012 Автор Поділитись Опубліковано: 25 грудня 2012 Ну например на фото №3 и №4 - одиноко торчащая арматурина в середине стены...Она там "до борозды", подозреваю, что и горизонтальное армирование такое же "грамотное"...а в остальном.... Еще сюда можете глянуть - такой же домик Посилання на коментар Поділитися на інших сайтах More sharing options...
Vladimir87 Опубліковано: 8 січня 2013 Автор Поділитись Опубліковано: 8 січня 2013 В добавок дам 3D модель и посчитаю смету! Посилання на коментар Поділитися на інших сайтах More sharing options...
kia1980 Опубліковано: 8 січня 2013 Поділитись Опубліковано: 8 січня 2013 Вот так сейчас выглядит (только двери стоят) - ждет штукатурки Кстати, отапливаю одним масляным обогревателем, купленым за 200грн., так температура в доме, даже в смаые лютые морозы не падала ниже 10 градусов, правда закрыл вентиляцию. сколько на данном этапе обошлась коробка? Посилання на коментар Поділитися на інших сайтах More sharing options...
Vladimir87 Опубліковано: 8 січня 2013 Автор Поділитись Опубліковано: 8 січня 2013 kia1980, гдето 25 1 Посилання на коментар Поділитися на інших сайтах More sharing options...
Рекомендовані повідомлення
Створіть акаунт або увійдіть у нього для коментування
Ви маєте бути користувачем, щоб залишити коментар
Створити акаунт
Зареєструйтеся для отримання акаунта. Це просто!
Зареєструвати акаунтУвійти
Вже зареєстровані? Увійдіть тут.
Увійти зараз