Перейти до публікації
Пошук в
  • Додатково...
Шукати результати, які містять...
Шукати результати в...

Малый грузовой подьемник

Klimonchuk

Рекомендовані повідомлення

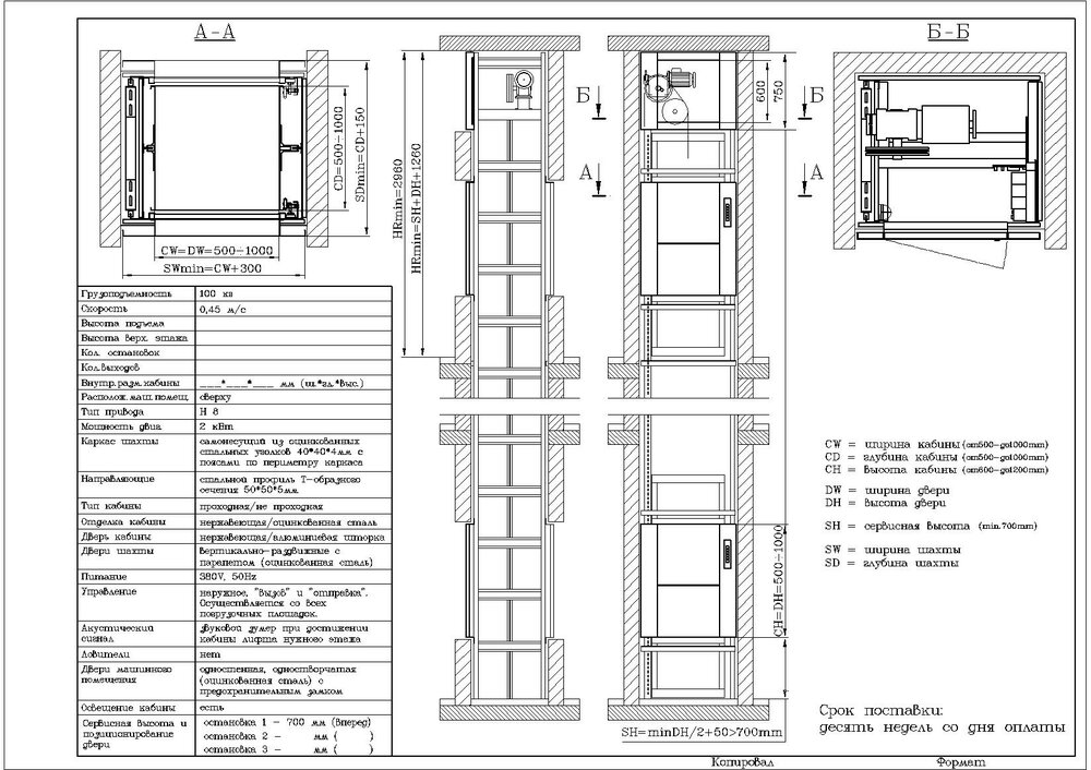
Доброго времени суток! Подскажите пожалуста, может кто уже имеет практические навыки в сооружении малого грузового подьемника. Лично мне он нужен для транспортировки готовой продукции (пищи), ящиков с пивом, водкой с первого этажа кафе на второй. Казалось бы все просто, шахта из метолакаркаса, кабина, лебедка... Но как правильно все это организовать. Смущает меня незнание того как можно сделать чтобы при нажатии на кнопку с первого этажа, груз автоматически остонавливался на заданой высоте от пола на втором этаже и наоборот. Также управление с каждого етажа. Какую именно лебедку применить... Помогите пожалуста. Ниже приведены фотографии как я вижу свой подьемный механизм в будующем.

image005.jpg.cd9bcdede683264d051b453a311fd853.jpg

mg_g.thumb.jpg.7e751e9542ffc4960b5597bc77db7eb4.jpg

7-podyomniki-gruzovyie-liftyi-pod-klyuch.thumb.jpg.a3247dbc47e87f55bcd6d1a0a5d8a8fc.jpg

podem-1-b.jpg.ae7a658291d41a3bab503f9554c4c16f.jpg

podem-2-b.jpg.befd68e6e4be5213bab3521017ce2398.jpg

podem-3-b.jpg.42c6700565bc87d83e34276e31911706.jpg

Посилання на коментар
Поділитися на інших сайтах

Мой монтажник такое делал пару раз. Могу познакомить, если сильно не загрузите :) А то как пойдет по рукам...

Насколько я понял, там все немного проще...

Посилання на коментар
Поділитися на інших сайтах

Мой монтажник такое делал пару раз. Могу познакомить, если сильно не загрузите :) А то как пойдет по рукам...

Насколько я понял, там все немного проще...

 

Буду очень Вам признательный и никому о нем не скажу :) Самый первый вопрос который меня интересует, ето каким подьемным механизмом нужно воспользоваться (ориентировочная грузоподьемность - 100 - 150 кг.) - електрическим тальфером, електрической лебедкой или мотор редуктором?

Посилання на коментар
Поділитися на інших сайтах

Створіть акаунт або увійдіть у нього для коментування

Ви маєте бути користувачем, щоб залишити коментар

Створити акаунт

Зареєструйтеся для отримання акаунта. Це просто!

Зареєструвати акаунт

Увійти

Вже зареєстровані? Увійдіть тут.

Увійти зараз
×
×
  • Створити...