vale3 Опубліковано: 13 лютого 2012 Поділитись Опубліковано: 13 лютого 2012 Интересует монтаж кровли по чертежам прикрепленных ниже. Сразу говорю что короткие ответы типа делаем быстро недорого и т.д. не подходят. Также предупреждаю что очень хорошо умею считать кубатуру и не только. По сему если в проекте ее определенное колличество не надо умножать на двое на трое и как некоторые вдесятеро. Такие предложеения не буду рассматривать вообще Нужен полный комплекс работы по крыше попрошу смету разбить на пункты 1)Закупка дерева на кровлю (и все что этому присуще гайки, рубероид, саморезы, уголки) 2)Закупка утеплителя указанного в спецификации (или ваш вариант, с аргументом по производителю) 3)Хотим шифер еко-дах или крашенный цвет шоколад. Если есть дешевле варианты чем нашли мы только ЗА. Чего не учел готов ответить. Предложения направляйте на vale3@yandex.ru Посилання на коментар Поділитися на інших сайтах More sharing options...
Аргус-Киев Опубліковано: 13 лютого 2012 Поділитись Опубліковано: 13 лютого 2012 Уточните место строительства. А также какие стены? Есть ли армопояс? Посилання на коментар Поділитися на інших сайтах More sharing options...
vale3 Опубліковано: 13 лютого 2012 Автор Поділитись Опубліковано: 13 лютого 2012 Уточните место строительства. А также какие стены? Есть ли армопояс? Армопояс будет. Приблизительно монтаж апрель, начало мая. Но быть может и конец апреля Стены газоблок - 400 мм Стоунлайт Зазимье, Броварской район Посилання на коментар Поділитися на інших сайтах More sharing options...
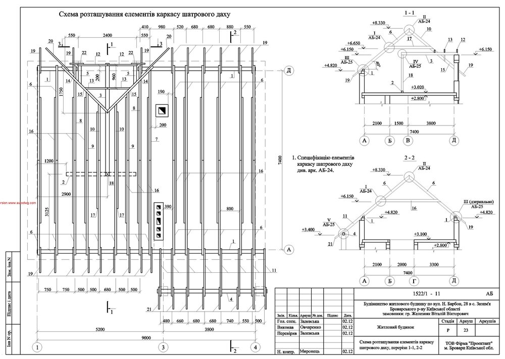
Крышник Опубліковано: 13 лютого 2012 Поділитись Опубліковано: 13 лютого 2012 Интересует монтаж кровли по чертежам прикрепленных ниже. Сразу говорю что короткие ответы типа делаем быстро недорого и т.д. не подходят. Также предупреждаю что очень хорошо умею считать кубатуру и не только. По сему если в проекте ее определенное колличество не надо умножать на двое на трое и как некоторые вдесятеро. Такие предложеения не буду рассматривать вообще Нужен полный комплекс работы по крыше попрошу смету разбить на пункты 1)Закупка дерева на кровлю (и все что этому присуще гайки, рубероид, саморезы, уголки) 2)Закупка утеплителя указанного в спецификации (или ваш вариант, с аргументом по производителю) 3)Хотим шифер еко-дах или крашенный цвет шоколад. Если есть дешевле варианты чем нашли мы только ЗА. Чего не учел готов ответить. Предложения направляйте на Дай Б. шо б Вам не делали по тем чертежам и спецификации,что Вы выставили,там,т.с. немного ошибочек,причём принципиальных,хотя проект боль-мень ничЁ....кобылка 50х100 очень улыбнула,да и лобовая доска тоже Вы немного не так организовываете процесс,я вижу,как человек собирается наступить на очередные грабли...на форуме я уже видел с пару десятков подобных начал,а потом,то течёт,то плохо утеплили,то снег под крышу задувает,ect.,в общем "памагите,а мы ж не знали раньше,что всё не просто..." --Вы считаете,что на основании этих трёх картинок Вам выложат все реальные расходы?? --Вы считаете,что все делают одинаково,и Вы на выходе получите одинаковый продукт,только надо найти у кого меньше цифры будут?? П.С.Не навязываюсь,но поскольку в курсе проблемы,как никто другой(Того и я-это те,кто продвигал, и продвигает,на форуме шифер,как недорогой вариант кровли),то и сделал заметки,я за годы работы,как Нострадамус могу с большой долей вероятности видеть следствия причин.. 2 Посилання на коментар Поділитися на інших сайтах More sharing options...
vale3 Опубліковано: 13 лютого 2012 Автор Поділитись Опубліковано: 13 лютого 2012 Дай Б. шо б Вам не делали по тем чертежам и спецификации,что Вы выставили,там,т.с. немного ошибочек,причём принципиальных,хотя проект боль-мень ничЁ....кобылка 50х100 очень улыбнула,да и лобовая доска тоже Вы немного не так организовываете процесс,я вижу,как человек собирается наступить на очередные грабли...на форуме я уже видел с пару десятков подобных начал,а потом,то течёт,то плохо утеплили,то снег под крышу задувает,ect.,в общем "памагите,а мы ж не знали раньше,что всё не просто..." --Вы считаете,что на основании этих трёх картинок Вам выложат все реальные расходы?? --Вы считаете,что все делают одинаково,и Вы на выходе получите одинаковый продукт,только надо найти у кого меньше цифры будут?? П.С.Не навязываюсь,но поскольку в курсе проблемы,как никто другой(Того и я-это те,кто продвигал, и продвигает,на форуме шифер,как недорогой вариант кровли),то и сделал заметки,я за годы работы,как Нострадамус могу с большой долей вероятности видеть следствия причин.. Если честно от Вас как от специалиста с удовольствием выслушаю пожелания и возможные косяки проекта. Также в личку хотелось бы понять на что надо расчитывать. Мне нужен подрядчик который знает свое дело, не вешает лапши на уши. Также нужен полный комплекс с подшивкой кровли , а также водосточкой. В проекте указана жестянка. Думаю это дорого. Поэтому наверное будет пластик Посилання на коментар Поділитися на інших сайтах More sharing options...
LyudMil Опубліковано: 13 лютого 2012 Поділитись Опубліковано: 13 лютого 2012 немного ошибочек,причём принципиальных,хотя проект боль-мень ничЁ....кобылка 50х100 очень улыбнула,да и лобовая доска тоже .. Это шо ж нам Овчаренко тож хомно напроектировал получается.... Посилання на коментар Поділитися на інших сайтах More sharing options...
Stanitskii Опубліковано: 14 лютого 2012 Поділитись Опубліковано: 14 лютого 2012 Это шо ж нам Овчаренко тож хомно напроектировал получается.... с этого момента тут начнётся........:D Посилання на коментар Поділитися на інших сайтах More sharing options...
plus Опубліковано: 14 лютого 2012 Поділитись Опубліковано: 14 лютого 2012 Это шо ж нам Овчаренко тож хомно напроектировал получается.... Не переймайтесь, чуть позже Вы поймете, что обсир....е друг друга в строительстве - это нормально. Посилання на коментар Поділитися на інших сайтах More sharing options...
Крышник Опубліковано: 14 лютого 2012 Поділитись Опубліковано: 14 лютого 2012 Это шо ж нам Овчаренко тож хомно напроектировал получается.... Не знаю,что и кто Вам там напроектировал....я практик,разъясню по поводу зацитированного Вами.. ....кобылка 50х100 очень улыбнула,да и лобовая доска тоже. Кобылка...по шиферу съезжает снег,а поскольку снегозадержатели поставить,без ущерба самой кровле,нельзя,то съехав снег будет лежать сугробом на карнизе,упираясь в водосток(поэтому на шифере лучше металлический в/ст),вся эта масса действует на карниз больше чем на основную крышу.И в месте сильнейших нагрузок архитектор ставит меньшее сечение,чем на всей крыше Лобовая...конденсат и протечки будут течь по мембране...и посмотрите куда они упрутся??!!!В лобовую,а НЕ будут скапываться в водосток(или,есть вариант,на улицу),создадут маленькое озеро и вечно мокрую лобовую Там ставиться капельник,гляньте фото №2 тут www.stroimdom.com.ua/forum/showpost.php?p=389380&postcount=1 1 Посилання на коментар Поділитися на інших сайтах More sharing options...
messer_shmidt Опубліковано: 14 лютого 2012 Поділитись Опубліковано: 14 лютого 2012 Не знаю,что и кто Вам там напроектировал....я практик,разъясню по поводу зацитированного Вами.. Кобылка...по шиферу съезжает снег,а поскольку снегозадержатели поставить,без ущерба самой кровле,нельзя,то съехав снег будет лежать сугробом на карнизе,упираясь в водосток(поэтому на шифере лучше металлический в/ст),вся эта масса действует на карниз больше чем на основную крышу.И в месте сильнейших нагрузок архитектор ставит меньшее сечение,чем на всей крыше Лобовая...конденсат и протечки будут течь по мембране...и посмотрите куда они упрутся??!!!В лобовую,а НЕ будут скапываться в водосток(или,есть вариант,на улицу),создадут маленькое озеро и вечно мокрую лобовую Там ставиться капельник,гляньте фото №2 тут www.stroimdom.com.ua/forum/showpost.php?p=389380&postcount=1 Поддерживаю, я конечно пока еще не настолько специалист как "крышник", но часто приезжая на переделки или на строительство самой крыши, до сих пор не могу понять как можно до такой степени экономить на кровле (из практики человек заплатил за кладку пеноблока 300грн.м3, а за крышу из еврошифера 70грн и когда я ему дал смету на переделки он почему очень удивился) еще раз повторяю застройщики не экономьте на кровле это процедура мин на 50лет. Посилання на коментар Поділитися на інших сайтах More sharing options...
*Alexey* Опубліковано: 14 лютого 2012 Поділитись Опубліковано: 14 лютого 2012 +100 в пользу Крышника. От себя: ладно, проектант перепутал лобовую доску с ветровой. Но указать узел крепления водосточного желоба он должен был. Это я к чему: при таком угле наклона зимой карниз и желоб, как сказал Николай, будет испытывать ооочень большие нагрузки от скопленного снега. А в Вашем случае у крюков желоба отсутствует упор в лобовую доску (т.к.она не вертикальна). Как результат - каждые 1...2 года корректировка желобов и его креплений. Кроме того, стропильная конструкция слухового окна тоже оставляет желать лучшего. Без выносных прогонов и поддерживающей стропилки - фронтоны клюнут первыми, потому как не будет консольно выпущенная обрешетка держать фронтонный свес (да еще и с мокрым снегом). В след за ними обязательно "клюнут" кобылки. Слишком большая разноска стропил в р-не оси №3. Зачем?? Давая разрез 1-1 в "схеме расположения элементов..." обязана быть стойка, поддерживающая верхнюю точку сопряжения ендовых прогонов (собственно ради поддержки этого узла, как я понял, и запланирован элемент №3 на сечении 1-1. Раздел АБ, ст.Р, лист 25, узлы III и V. При таком упоре в мауэрВам предлагают еще и опорный брус 50*100. Не вижу смысла. Хотя, на фоне вышеизложенного - это мелочи. ИМХО: проект на доработку... С ув. 3 Посилання на коментар Поділитися на інших сайтах More sharing options...
Рекомендовані повідомлення
Створіть акаунт або увійдіть у нього для коментування
Ви маєте бути користувачем, щоб залишити коментар
Створити акаунт
Зареєструйтеся для отримання акаунта. Це просто!
Зареєструвати акаунтУвійти
Вже зареєстровані? Увійдіть тут.
Увійти зараз