Первый Опубліковано: 21 лютого 2012 Поділитись Опубліковано: 21 лютого 2012 условия. Квартира, новострой. Одна стена комнаты - сплошное фасадное остекление от пола до потолка. С внешней стороны только рамы между ними стеклопакеты. С внутреней стороны нижние стеклопакеты закрыты жестянкой. Жестянка легко снимается, остается рама и стеклопакет. Стеклопакет, я так понимаю в заводских условиях, закрашен краской. Краска ножиком чучуть сдирается. Задача. Снять краску со стеклопакета. Всего 10 шт. Вопрос. Чем снять заводскую краску со стеклопакета? Кто такое делает? Посилання на коментар Поділитися на інших сайтах More sharing options...
ko&ko Опубліковано: 21 лютого 2012 Поділитись Опубліковано: 21 лютого 2012 условия. Квартира, новострой. Одна стена комнаты - сплошное фасадное остекление от пола до потолка. С внешней стороны только рамы между ними стеклопакеты. С внутреней стороны нижние стеклопакеты закрыты жестянкой. Жестянка легко снимается, остается рама и стеклопакет. Стеклопакет, я так понимаю в заводских условиях, закрашен краской. Краска ножиком чучуть сдирается. Задача. Снять краску со стеклопакета. Всего 10 шт. Вопрос. Чем снять заводскую краску со стеклопакета? Кто такое делает? Впервые слышу, чтоб кто-то красил и еще в заводских условиях стеклопакеты. Думаю специальных фирм, по оттиранию закрашеных стеклопакетов не найдете. Фото можете показать? Посилання на коментар Поділитися на інших сайтах More sharing options...
Первый Опубліковано: 21 лютого 2012 Автор Поділитись Опубліковано: 21 лютого 2012 С краской ошибка. Покрытие типа полимера, что-то такое. Посилання на коментар Поділитися на інших сайтах More sharing options...
ko&ko Опубліковано: 21 лютого 2012 Поділитись Опубліковано: 21 лютого 2012 С краской ошибка. Покрытие типа полимера, что-то такое. Наверное я вас расстрою, но только замена стеклопакетов Посилання на коментар Поділитися на інших сайтах More sharing options...
ko&ko Опубліковано: 21 лютого 2012 Поділитись Опубліковано: 21 лютого 2012 Если правильно рассмотрел фото, то там еще окно ПВХ? Или ошибся? Посилання на коментар Поділитися на інших сайтах More sharing options...
Первый Опубліковано: 21 лютого 2012 Автор Поділитись Опубліковано: 21 лютого 2012 Нет. Толстый алюминевый профиль. Система идет через 20 этажей Привет, ххххх, киевгорстрою Посилання на коментар Поділитися на інших сайтах More sharing options...
Kostjantyn Опубліковано: 23 лютого 2012 Поділитись Опубліковано: 23 лютого 2012 .....Стеклопакет, я так понимаю в заводских условиях, закрашен краской. Краска ножиком чучуть сдирается. Задача. Снять краску со стеклопакета. Всего 10 шт. Вопрос. Чем снять заводскую краску со стеклопакета? Кто такое делает? Стекло такое именуется "эмалит". "Ножичком" , как вы выразились сдирается, но ведь и стекло царапается. Рациональное решение это замена стеклопакетов, но в большинстве систем алюминиевого фасадного остекления крепеж снаружи. А этаж какой? Посилання на коментар Поділитися на інших сайтах More sharing options...
star_a Опубліковано: 23 лютого 2012 Поділитись Опубліковано: 23 лютого 2012 Да это эмалит. Он точно не снимется ни ножичком, ни химически (хитрая технология-краска запекается). Хотите прозрачный пакет - выход один - замена пакета. Согласен с коллегой ну жно смотреть как можно снять хлопушку и прижимную планку и пакет. Замена может оказаться дорогим удовольствием. Посилання на коментар Поділитися на інших сайтах More sharing options...
Первый Опубліковано: 23 лютого 2012 Автор Поділитись Опубліковано: 23 лютого 2012 Да это эмалит. Он точно не снимется ни ножичком, ни химически (хитрая технология-краска запекается). Хотите прозрачный пакет - выход один - замена пакета. Согласен с коллегой ну жно смотреть как можно снять хлопушку и прижимную планку и пакет. Замена может оказаться дорогим удовольствием. С ножиком тоже погорячились. Все покрытия были бы такими стойкими Макусту чуть не сломал, но царапин нема. Снимается только снаружи. Надо менять стеклопакет. Строить леса на 3 этажа. Посилання на коментар Поділитися на інших сайтах More sharing options...
ko&ko Опубліковано: 23 лютого 2012 Поділитись Опубліковано: 23 лютого 2012 С ножиком тоже погорячились. Все покрытия были бы такими стойкими Макусту чуть не сломал, но царапин нема. Снимается только снаружи. Надо менять стеклопакет. Строить леса на 3 этажа. Или вызвать бригаду альпинистов монтажников, будет дешевле чем леса. Посилання на коментар Поділитися на інших сайтах More sharing options...
star_a Опубліковано: 23 лютого 2012 Поділитись Опубліковано: 23 лютого 2012 Или вышку (на пару часов), если есть подъезд и вылету стрелы мешать ничего не будет. Посилання на коментар Поділитися на інших сайтах More sharing options...
Первый Опубліковано: 23 лютого 2012 Автор Поділитись Опубліковано: 23 лютого 2012 Или вызвать бригаду альпинистов монтажников, будет дешевле чем леса. Осталось узнать сколько это будет стоить, осознать цену и .., а может ну его .... Какие расценки? Кто предложит цену на замену? 1 Посилання на коментар Поділитися на інших сайтах More sharing options...
star_a Опубліковано: 23 лютого 2012 Поділитись Опубліковано: 23 лютого 2012 хороший вопрос. проще оставить как есть. но Вам с етим жить)))) Действительно прикиньте бюджет и подумайте стоит ли это того. Посилання на коментар Поділитися на інших сайтах More sharing options...
ko&ko Опубліковано: 23 лютого 2012 Поділитись Опубліковано: 23 лютого 2012 Осталось узнать сколько это будет стоить, осознать цену и .., а может ну его .... Какие расценки? Кто предложит цену на замену? У нас в городе цены на промышленный альпинизм от ...( в личке)$\м2. Посилання на коментар Поділитися на інших сайтах More sharing options...
Ruslan R Опубліковано: 25 лютого 2012 Поділитись Опубліковано: 25 лютого 2012 Куда снять? Фасад навесной? Если да, то стеклопакет (внутреннее стекло эмалированное, закаленное) явно стоит в районе межэтажного перекрытия. Этот узел должен быть противопожарный. Есть ли ригель внизу (горизонтальный профиль)? Посилання на коментар Поділитися на інших сайтах More sharing options...
ko&ko Опубліковано: 26 лютого 2012 Поділитись Опубліковано: 26 лютого 2012 Куда снять? Фасад навесной? Если да, то стеклопакет (внутреннее стекло эмалированное, закаленное) явно стоит в районе межэтажного перекрытия. Этот узел должен быть противопожарный. Есть ли ригель внизу (горизонтальный профиль)? По ходу, стандартный стоечно-ригельный. Посилання на коментар Поділитися на інших сайтах More sharing options...
Ruslan R Опубліковано: 26 лютого 2012 Поділитись Опубліковано: 26 лютого 2012 По ходу, стандартный стоечно-ригельный. Ну это понятно. Витраж встроенный или навесной? (пол же в стеклопакет подходить не может, при навесном варианте витража). А если навесной витраж, значит стеклопакет еще и плиту перекрытия закрывает). Разрез нужен. И когда "жестянку" снимали, там должна была быть еще минплита, так как эмалированное стекло не энергосберегающее. И минплита не горючий материал (устанавливается еще чтобы обеспечить противопожарный межэтажный узел, при навесном варианте витража). Посилання на коментар Поділитися на інших сайтах More sharing options...
Первый Опубліковано: 26 лютого 2012 Автор Поділитись Опубліковано: 26 лютого 2012 Ну это понятно. Витраж встроенный или навесной? (пол же в стеклопакет подходить не может, при навесном варианте витража). А если навесной витраж, значит стеклопакет еще и плиту перекрытия закрывает). Разрез нужен. И когда "жестянку" снимали, там должна была быть еще минплита, так как эмалированное стекло не энергосберегающее. И минплита не горючий материал (устанавливается еще чтобы обеспечить противопожарный межэтажный узел, при навесном варианте витража). Все так и есть! Профи8-) По предварительным данным окна делал Альтис глас. Посилання на коментар Поділитися на інших сайтах More sharing options...
Ruslan R Опубліковано: 26 лютого 2012 Поділитись Опубліковано: 26 лютого 2012 Не увидел фотки в начале темы. Вы что наделали то (сняли оцинк. лист и мин.плиту). Пожарников бы на Вас натравить. Хотите внизу прозрачный стеклопакет. Можно такое сделать. Демонтировать эти стеклопакеты. Установить дополнительно ригель (горизонтальный профиль) внизу. Далее заказать новые стеклопакеты (с внутренним эмалированным стеклом), которые будут закрывать междуэтажную плиту перекрытия. Потом заказать уже прозрачные стеклопакеты (внутреннее стекло должно быть безопасное, т.е. триплекс) от пола до низа окна. И не забывайте что наружное стекло здесь также скорее всего закаленное. Удовольствие не из дешевых. И самое главное согласовать все это дело с архитектором этого дома, в чем я глубоко сомневаюсь что у Вас это получится. Так что возвращайте все назад как было, хотя уже как было не получится (знаю порядок монтажа). Сейчас там ветерок (сквознячок) гуляет, так как уплотнитель под стеклопакет с эмалированным стеклом ставится прерывистым, т.е. между мин.плитой и стеклопакетом была воздушная прослойка (около 20мм), которая вентилируется. Сейчас у Вас воздушная прослойка - это помещение. Посилання на коментар Поділитися на інших сайтах More sharing options...
Первый Опубліковано: 27 лютого 2012 Автор Поділитись Опубліковано: 27 лютого 2012 Не увидел фотки в начале темы. Вы что наделали то (сняли оцинк. лист и мин.плиту). Пожарников бы на Вас натравить. Хотите внизу прозрачный стеклопакет. Можно такое сделать. Демонтировать эти стеклопакеты. Установить дополнительно ригель (горизонтальный профиль) внизу. Далее заказать новые стеклопакеты (с внутренним эмалированным стеклом), которые будут закрывать междуэтажную плиту перекрытия. Потом заказать уже прозрачные стеклопакеты (внутреннее стекло должно быть безопасное, т.е. триплекс) от пола до низа окна. И не забывайте что наружное стекло здесь также скорее всего закаленное. Удовольствие не из дешевых. И самое главное согласовать все это дело с архитектором этого дома, в чем я глубоко сомневаюсь что у Вас это получится. Так что возвращайте все назад как было, хотя уже как было не получится (знаю порядок монтажа). Сейчас там ветерок (сквознячок) гуляет, так как уплотнитель под стеклопакет с эмалированным стеклом ставится прерывистым, т.е. между мин.плитой и стеклопакетом была воздушная прослойка (около 20мм), которая вентилируется. Сейчас у Вас воздушная прослойка - это помещение. А в чем прблема с пожарниками? Между этажами минвата с оцинковкой осталась, значит противопожарный пояс есть. По поводу сквознячка - наверное как всегда, технологию не выдержали и он отсутствует впринципе. Вернуть все назад легко, но зачем? Ригель поставить и согласовать с архитектором канечна можна, но такжа можно и ххх сломать. В общим нада менять или какойто дизайн придумать типа витражей или еще чего. Судя по Вашему профилю можете чего-то оригинального предложить? Посилання на коментар Поділитися на інших сайтах More sharing options...
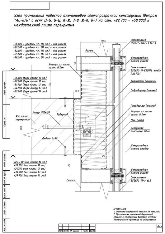
Ruslan R Опубліковано: 27 лютого 2012 Поділитись Опубліковано: 27 лютого 2012 (змінено) А в чем прблема с пожарниками? Между этажами минвата с оцинковкой осталась, значит противопожарный пояс есть. По фото я этого не наблюдаю (не мин. плиты, не оцинк. листа). Вы разомкнули противопажарный пояс. Чтобы его замкнуть Вам нужно установить нижнюю деталь из оцинк. листа и примкнуть к ригелю которого нет (к стеклопакету Вы не прикрутите). Вот как такой узел выглядит в разрезе: В общим нада менять или какойто дизайн придумать типа витражей или еще чего. Судя по Вашему профилю можете чего-то оригинального предложить? Необходимо утеплить этот стеклопакет (выше уже писал что эмалированное внутреннее стекло не энергосберегающее). Можно от ригеля до пола установить алюминиевый лист толщиной 1.5мм в цвет профиля. Так чтобы он получился заподлицо с задней стенкой вертикального профиля. А Вы когда в квартиру въезжали там что было просто зашито некрашенным оцинк. листом? Змінено 27 лютого 2012 користувачем Валерий Валентинович Посилання на коментар Поділитися на інших сайтах More sharing options...
Первый Опубліковано: 27 лютого 2012 Автор Поділитись Опубліковано: 27 лютого 2012 По фото я этого не наблюдаю (не мин. плиты, не оцинк. листа). Вы разомкнули противопажарный пояс. Чтобы его замкнуть Вам нужно установить нижнюю деталь из оцинк. листа и примкнуть к ригелю которого нет (к стеклопакету Вы не прикрутите). Вот как такой узел выглядит в разрезе: Оцинковка срезана по стяжку. Ее физически срезать ниже нельзя. Поэтому все там замкнуто. Минварту вытащили, а сейчас вставили назад по уровень пола. кстати, никаких пленок в средине не было (барьеров как на схеме). Идеи? Добавлено через 43 секунды А Вы когда в квартиру въезжали там что было просто зашито некрашенным оцинк. листом? Так и есть. Посилання на коментар Поділитися на інших сайтах More sharing options...
Ruslan R Опубліковано: 27 лютого 2012 Поділитись Опубліковано: 27 лютого 2012 Оцинковка срезана по стяжку. Ее физически срезать ниже нельзя. Поэтому все там замкнуто. Минварту вытащили, а сейчас вставили назад по уровень пола. кстати, никаких пленок в средине не было (барьеров как на схеме). Идеи? То что мин. плиту вставили это не значит замкнуто. Замкнуто это когда еще и оцинк. лист стоит. По поводу пленок. Или при монтаже забыли поставить (халатность монтажников) или изначально узел неправильно спроектировали. Какие могут быть последствия? Паробарьер предназначен для защиты мин. плиты от пара (теплый воздух из помещения). Т.е. паробарьер не пропускает пар, влагу, воду. Гидробарьер предназначен для защиты мин.плиты от влаги которая образовывается в воздушной прослойке. Т.е. гидробарьер не пропускает влагу, воду, но пропускает пар, благодаря чему дает мин.плите дышать. В Вашем случае, я так понял, не было этой воздушной вентелируемой прослойки 20мм, так что толку от пленок никакого не было бы. А чтобы была вентилируемая прослойка, именно вентилируемая, необходимо было уплотнитель ставить прерывисто. Последствия. Если утеплитель наберет влаги(теплый воздух) из помещения, он не будет выполнять свои теплоизоляционные функции. Вот схема вентиляции: Посилання на коментар Поділитися на інших сайтах More sharing options...
Ruslan R Опубліковано: 27 лютого 2012 Поділитись Опубліковано: 27 лютого 2012 Ну вот теперь Вы больше знаете чем те люди которые это проектировали, изготавливали и монтировали... Как так можно строить и не понимать что делаешь? Посилання на коментар Поділитися на інших сайтах More sharing options...
Первый Опубліковано: 27 лютого 2012 Автор Поділитись Опубліковано: 27 лютого 2012 То что мин. плиту вставили это не значит замкнуто. Замкнуто это когда еще и оцинк. лист стоит. По поводу пленок. Или при монтаже забыли поставить (халатность монтажников) или изначально узел неправильно спроектировали. Какие могут быть последствия? Паробарьер предназначен для защиты мин. плиты от пара (теплый воздух из помещения). Т.е. паробарьер не пропускает пар, влагу, воду. Гидробарьер предназначен для защиты мин.плиты от влаги которая образовывается в воздушной прослойке. Т.е. гидробарьер не пропускает влагу, воду, но пропускает пар, благодаря чему дает мин.плите дышать. В Вашем случае, я так понял, не было этой воздушной вентелируемой прослойки 20мм, так что толку от пленок никакого не было бы. А чтобы была вентилируемая прослойка, именно вентилируемая, необходимо было уплотнитель ставить прерывисто. Последствия. Если утеплитель наберет влаги(теплый воздух) из помещения, он не будет выполнять свои теплоизоляционные функции. Вот схема вентиляции: Спасибо за ликбезНо этих проблем уже нет Оцинковка в нижней части окна есть. ЕЕ ОТТУДА СПИЛИТЬ НЕЛЬЗЯ. Этого и не требуется. Предложите по сути. Посилання на коментар Поділитися на інших сайтах More sharing options...
Рекомендовані повідомлення
Створіть акаунт або увійдіть у нього для коментування
Ви маєте бути користувачем, щоб залишити коментар
Створити акаунт
Зареєструйтеся для отримання акаунта. Це просто!
Зареєструвати акаунтУвійти
Вже зареєстровані? Увійдіть тут.
Увійти зараз