Татуша Опубліковано: 6 березня 2012 Поділитись Опубліковано: 6 березня 2012 Здравствуйте, ув. форумчане. Вот, собрались строиться... Прошу совета в выборе и размещении на участке будущего дома. Дом на семью из 3-х человек (двое взрослых и ребенок) + старики (на старости лет). Пересмотрела много проектов, возможно вы скажете, что у меня дурной вкус, но мне не нравятся проекты с "фердиперцевой" крышей, с множеством балкончиков и загогулин. Наверно, я консерватор... Чего бы хотелось... 1. Простая форма дома (квадрат, прямоугольник) 2. Простая форма крыши (двускатная, четырехскатная) 3. Без гаража в доме. 4. Без второго выхода (из кухни) 5. Наличие подвала (мечта мужа иметь винный погреб) 6. Помещения первого этажа: гостиная, кухня, с/у, кабинет (или комната для стариков) 7. Полноценный второй этаж (мансардный этаж не подходит, муж ростом 1,95, очень не комфортно себя чувствует в помещениях с низким потолком) 8. Помещения второго этажа: три спальни, гардеробная и с/у Все это, как мне кажется, я нашла в проекте от ЦПП 31026 www.dom-ua.com/index.php?c=197&o=10269 Его хочу взять за основу, слегка подкорректировала. "Колдовать" конечно же будет архитектор Геологию делать буду В чем вопрос? Хотелось бы услышать минусы этого проекта, может я просто их не вижу? Посоветуйте, как лучше развернуть дом по сторонам света. Благодарю всех откликнувшихся Посилання на коментар Поділитися на інших сайтах More sharing options...
Татуша Опубліковано: 6 березня 2012 Автор Поділитись Опубліковано: 6 березня 2012 Забыла написать размеры участка для строительства ширина 20м., в длину 28м. Посилання на коментар Поділитися на інших сайтах More sharing options...
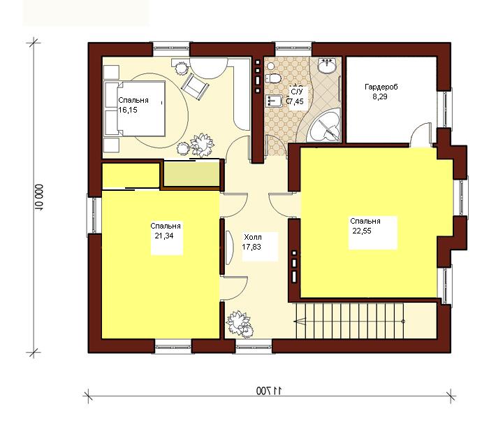
ionico Опубліковано: 6 березня 2012 Поділитись Опубліковано: 6 березня 2012 То есть, главным входом дом будет ориентирован на соседей, а не на проезжую часть? Дело в том, что фасады дома и без того довольно просты, а если ещё его разворачивать, то на улицу будет смотреть не выразительный фасад. К тому же, я считаю, что главный вход, ориентированный не на проезжую часть - не очень хорошо и не достаточно удобно. Почему вы не хотите террасу? Это же великолепное место в доме. Сами по себе планировки, в целом, нормальные, я думаю. Кухня далеко от входа - думаю, что это минус. Лестница занимает южную сторону. Я бы постарался поменять её местами с кабинетом. 1 Посилання на коментар Поділитися на інших сайтах More sharing options...
Татуша Опубліковано: 6 березня 2012 Автор Поділитись Опубліковано: 6 березня 2012 То есть, главным входом дом будет ориентирован на соседей, а не на проезжую часть? Дело в том, что фасады дома и без того довольно просты, а если ещё его разворачивать, то на улицу будет смотреть не выразительный фасад. К тому же, я считаю, что главный вход, ориентированный не на проезжую часть - не очень хорошо и не достаточно удобно. Почему вы не хотите террасу? Это же великолепное место в доме. Сами по себе планировки, в целом, нормальные, я думаю. Кухня далеко от входа - думаю, что это минус. Лестница занимает южную сторону. Я бы постарался поменять её местами с кабинетом. Спасибо, что обратили внимание. Я немного объясню, на фото видно, что участок неправильной формы, а буквой "Г", только наоборот. Там, где верхушка этой буквы сейчас обустроенная территория с ландшафтным дизайном. Там планировали разместить большую беседку-барбекю. Там и основное место отдыха. Наверное, с этим связано мое желание дом развернуть, как бы и с дороги подход, и на участок, чтобы пройти дом обходить не придется. Террасу не будем делать только из соображений безопасности. За участком дачи, присутствует воровство По лестнице: я не профи, крутила, крутила она у меня на место кабинета не влазит Посилання на коментар Поділитися на інших сайтах More sharing options...
Alisa3 Опубліковано: 6 березня 2012 Поділитись Опубліковано: 6 березня 2012 Ой! По-моему наши дома один и тот же архитектор планировал судя по мебели : www.dom-ua.com/index.php?c=44&o=3392 Посилання на коментар Поділитися на інших сайтах More sharing options...
Татуша Опубліковано: 7 березня 2012 Автор Поділитись Опубліковано: 7 березня 2012 Ой! По-моему наши дома один и тот же архитектор планировал судя по мебели : www.dom-ua.com/index.php?c=44&o=3392 Думаю, что один Алиса, я даже знаю какой у меня и телефончик его есть так, на всякий случай нашла... Мне кстати, ваш проект тоже нравится и темку вашу изучила полностью Посилання на коментар Поділитися на інших сайтах More sharing options...
Alisa3 Опубліковано: 7 березня 2012 Поділитись Опубліковано: 7 березня 2012 Думаю, что один Алиса, я даже знаю какой у меня и телефончик его есть так, на всякий случай нашла... Мне кстати, ваш проект тоже нравится и темку вашу изучила полностью Я со своим тоже лично общалась полтора часа. Может это и один и тот же человек)))) Зря вы темку мою изучали. Мне теперь краснеть придётся Посилання на коментар Поділитися на інших сайтах More sharing options...
eam Опубліковано: 7 березня 2012 Поділитись Опубліковано: 7 березня 2012 Чисто мое имхо - я бы дом ставил в правом-верхнем углу вашей "буквы Г наоборот", т.к. тогда получится дом более энергоэффектиным - все окна и входы распланировать с южной и юго-западной стороны. И вход будет напрямую от фасада, и любоваться учатком будет удобнее. Да и в доме не хотите же вы смотреть на улицу и соседей, а на свой участок. А так получается, что все виды из окон будут на северную сторону а к фасаду участка задом дом повернут будет. Посилання на коментар Поділитися на інших сайтах More sharing options...
Татуша Опубліковано: 7 березня 2012 Автор Поділитись Опубліковано: 7 березня 2012 Чисто мое имхо - я бы дом ставил в правом-верхнем углу вашей "буквы Г наоборот", т.к. тогда получится дом более энергоэффектиным - все окна и входы распланировать с южной и юго-западной стороны. И вход будет напрямую от фасада, и любоваться учатком будет удобнее. Да и в доме не хотите же вы смотреть на улицу и соседей, а на свой участок. А так получается, что все виды из окон будут на северную сторону а к фасаду участка задом дом повернут будет. Маленький участок,там где я разместила дом на фото, выходит на асфальтированную улицу села (последняя улица), а верх буквы "Г" граничит с проселочной, узкой дорогой дачных участков. Если там ставить дом, тогда он совсем на отшибе будет, среди огородов и вагончиков Так, что там точно не выйдет его поставить. На асфальтированной улице еще и газ есть, и скважина (своя). Нужно дом на этом маленьком участке разместить... Есть еще один момент, на маленьком участке (где дом нарисован), есть небольшой уклончик от левого нижнего угла к правому верхнему. Потому туда дом и всунула И еще, пунктирная линия на фото - это фундамент (там забор сейчас, который будем убирать). Он будет использован, как подпорная стенка, т.к. есть разница в высоте этих участков. Добавлено через 7 минут Я со своим тоже лично общалась полтора часа. Может это и один и тот же человек)))) Зря вы темку мою изучали. Мне теперь краснеть придётся Я пока еще ни с каким архитектором не общалась В начале хочу сама определиться, что и как А за темку не переживайте, все нормально, очень интересно и душевно Посилання на коментар Поділитися на інших сайтах More sharing options...
Татуша Опубліковано: 7 березня 2012 Автор Поділитись Опубліковано: 7 березня 2012 Немного отступлю от темы Сейчас собираюсь делать геологию. Люди, скажите, а какое бурение лучше? Ручное или машинное? Разные фирмы предлагают разное бурение... Посилання на коментар Поділитися на інших сайтах More sharing options...
Рекомендовані повідомлення
Створіть акаунт або увійдіть у нього для коментування
Ви маєте бути користувачем, щоб залишити коментар
Створити акаунт
Зареєструйтеся для отримання акаунта. Це просто!
Зареєструвати акаунтУвійти
Вже зареєстровані? Увійдіть тут.
Увійти зараз