formathdd Опубліковано: 13 березня 2012 Поділитись Опубліковано: 13 березня 2012 Добрый день! На данном этапе для моей семьи из 3х человек разрабатывают проэкт двухэтажного дома на 200квм. Дом планируется для постоянного проживания. Проэкт все еще в разработке и есть возможность что-либо поменять, именно поэтому хотелось бы услышать конструктивную критику. Посилання на коментар Поділитися на інших сайтах More sharing options...
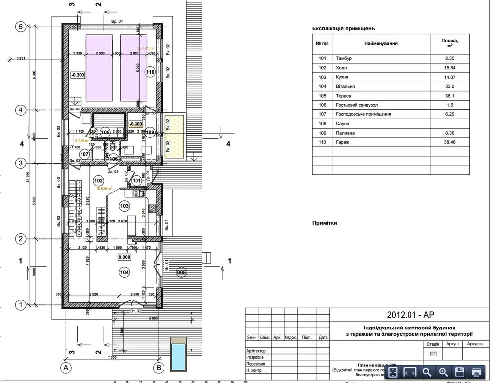
Milissa Опубліковано: 14 березня 2012 Поділитись Опубліковано: 14 березня 2012 Интересный проект. Не совсем понятно решение: 1. Вход в сауну через проходное хозяйственное помещение. Сауну обычно проектируют в комплекте с душевой и небольшой комнатной отдыха (по желанию конечно). Тут же Вам придется выходить в хозяйственное помещение, примыкающее к холодному гаражу. 2. Санузел на втором этаже можно было бы разместить не над кухней Посилання на коментар Поділитися на інших сайтах More sharing options...
Alisa3 Опубліковано: 14 березня 2012 Поділитись Опубліковано: 14 березня 2012 Хороший домик. И планировка мне нравится. Согласна с выходом из сауны в проходную комнату как-то не очень. Вот бы сделать из этой комнаты не проходную комнату отдыха с душем, а из гаража проходить в дом через топочную прямо в тамбур (если так можно конечно). И грязи меньше будет в дом тащиться и обувь будет оставляться всегда в одном месте. Посилання на коментар Поділитися на інших сайтах More sharing options...
formathdd Опубліковано: 14 березня 2012 Автор Поділитись Опубліковано: 14 березня 2012 1. собственно в первых вариантах был вход гараж-котельня-тамбур... но потом меня сбил с толку товарисч который отоплением занимается... у меня планируется твердотопливный котел, сказал мол грязь будет в дом носится и дым будет слышно... аргумент что єто будет через тамбур как-то его не убедил... но я так погляжу что все таки надо возвращаться к варианту через котельню... 2. Душевая в проекте есть как раз возле сауны... комнату для отдыха не хочу делать отдельную, т.к. использоваться будет оч редко... +и так уже под 200 квадратов набросали... изначально планировалось 140-150. А выйти из сауны ополоснуться в душе и обтереться полотенцем не думаю что єто будет большая проблема... сауна для себя бесплатная будет все таки и спешить некуда... а посидеть и в гостинной можно будет причем с бОльшим комфортом... 3. а собственно в чем проблема с/у над кухней? вроде как даже по нормам мокрое помещение над мокрым... + стояки все вкучку... аргументируйте пожалуйста, т.к. не понял в чем минус... Посилання на коментар Поділитися на інших сайтах More sharing options...
Alisa3 Опубліковано: 14 березня 2012 Поділитись Опубліковано: 14 березня 2012 1. собственно в первых вариантах был вход гараж-котельня-тамбур... но потом меня сбил с толку товарисч который отоплением занимается... у меня планируется твердотопливный котел, сказал мол грязь будет в дом носится и дым будет слышно... аргумент что єто будет через тамбур как-то его не убедил... но я так погляжу что все таки надо возвращаться к варианту через котельню... вот не знаю на счёт запахов, но то что грязи в районе такого чистого помещения как сауна и душевая будет придостаточно тащиться грязи из гаража - это точно. я бы делала вход через топочную, так логичнее 1 Посилання на коментар Поділитися на інших сайтах More sharing options...
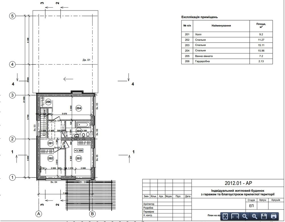
Milissa Опубліковано: 14 березня 2012 Поділитись Опубліковано: 14 березня 2012 3. а собственно в чем проблема с/у над кухней? вроде как даже по нормам мокрое помещение над мокрым... + стояки все вкучку... аргументируйте пожалуйста, т.к. не понял в чем минус... Вы можете разместить с/у над кухней. Ничего страшного не случится. Такое решение не считается "чистым". Стояк у Вас будет ещё один (с/у, сауна, душ на первом этаже), так что вполне была возможность сделать санузел над санузлом. По поводу душа возле сауны. На плане он у Вас не показан Посилання на коментар Поділитися на інших сайтах More sharing options...
formathdd Опубліковано: 14 березня 2012 Автор Поділитись Опубліковано: 14 березня 2012 Стояк у Вас будет ещё один (с/у, сауна, душ на первом этаже), так что вполне была возможность сделать санузел над санузлом. эм, пардон но над хозблоком (с/у, сауна, душ на первом этаже) нет второго єтажа да и как-то ходить в туалет через спальню не по феншую как-то... я так догадываюсь вы предлагаете перепланировку второго єтажа аля ванную - в северо-западный угол, а спальню развернуть по направлению север-юг? В принципе тоже может быть как вариант... единственно что тогда мокрое над мокрым не получится, но для частного строительства да с хорошей гидроизоляцией єту норму можно и обойти... хотя все равно, честно говоря не понимаю почему вас єто смущает... мы ж пардон не в кухню будем со второго єтажа нужду справлять через дырку в полу... а в унитаз с закрытой канализацией Может я конечно не прав? Почему єто не считается чистым? Можете аргументировать? Если єто действительно так, то как вариант думаю можно будет пустить два стояка в паралель... кусок трубы канализационной недорого стоит, и продублировать будет несложно. Насчет душа возле сауны, извините, недосмотрел. Был уверен что отмечено на плане. Вообще душевая паралельно с/у поставлена, но думаю вы и без подсказки все уже нашли ;) Добавлено через 3 минуты хотя что именно дублировать то? стояк второго єтажа пришел на первый... ближе к полу подключили канализацию первого єтажа - тобишь кухни... Посилання на коментар Поділитися на інших сайтах More sharing options...
Milissa Опубліковано: 14 березня 2012 Поділитись Опубліковано: 14 березня 2012 По поводу в ванную ,через спальню.. Часто делают индивидуальный санузел для одной из спален (попасть в него можно только из неё) и общий для остальных комнат. Но это индивидуально для каждого. И я не говорила, что размещение с/у над кухней запрещено. Ничего страшного в этом нет. У Вас хороший проект дома и Вы об этом знаете. Не вижу смысла что-то критиковать Посилання на коментар Поділитися на інших сайтах More sharing options...
formathdd Опубліковано: 14 березня 2012 Автор Поділитись Опубліковано: 14 березня 2012 ну какбе я же для критики (конструктивной) это сюда и выложил И я даже очень благодарен за проявленный интерес. Я просто на данном єтапе не могу понять почему именно это не считается "чистым". Просветите плиз. Посилання на коментар Поділитися на інших сайтах More sharing options...
Milissa Опубліковано: 14 березня 2012 Поділитись Опубліковано: 14 березня 2012 До 1 января 2006 года на территории Украины действовал ДБН 79-92 "Жилые дома для индивидуальных застройщиков Украины ", в котором было указано следующее: «3.18. Розміщення убиральні та ванної над житловими кімнатами не допускається. Розміщення убиральні та ванної над кухнею допускається лише при влаштуванні гидроізоляції в перекритті.» В СНиП 2.08.01-89 "Жилые здания", которые так же были действительны в Украине было написано тоже самое. С введением в действие ДБН В.2.2-15-2005 "Жилые дома Основные положения" указанные выше нормы утратили силу. В данных присутствует только такой пункт: «2.18 Не допускается размещение уборной и ванной (или душевой) над жилыми комнатами и кухнями.» - который распространяется на квартиры в многоэтажных домах. Относительно индивидуальной застройки ничего не сказано. Выводы делать Вам 1 Посилання на коментар Поділитися на інших сайтах More sharing options...
formathdd Опубліковано: 15 березня 2012 Автор Поділитись Опубліковано: 15 березня 2012 ага... теперь понятно спасибо за детальное описание. а гидроизоляцию я в принципе все равно буду делать в с/у и в ванной так что должно быть гут даже по нормам насколько я понял. Посилання на коментар Поділитися на інших сайтах More sharing options...
swork Опубліковано: 26 березня 2012 Поділитись Опубліковано: 26 березня 2012 Достаточно грамотный проект.Воплощайте 1 Посилання на коментар Поділитися на інших сайтах More sharing options...
Рекомендовані повідомлення
Створіть акаунт або увійдіть у нього для коментування
Ви маєте бути користувачем, щоб залишити коментар
Створити акаунт
Зареєструйтеся для отримання акаунта. Це просто!
Зареєструвати акаунтУвійти
Вже зареєстровані? Увійдіть тут.
Увійти зараз