Millimeter Опубліковано: 24 березня 2012 Поділитись Опубліковано: 24 березня 2012 Наша компания предоставляет услуги в области профессионального обмера и экспликации помещений любого назначения. Качественный обмер – это гарантия реализации любого проекта недвижимости в срок и с запланированным бюджетом. (ссылка устарела) С уважением Иван. +38 067 119 03 03 Цитата Посилання на коментар Поділитися на інших сайтах More sharing options...
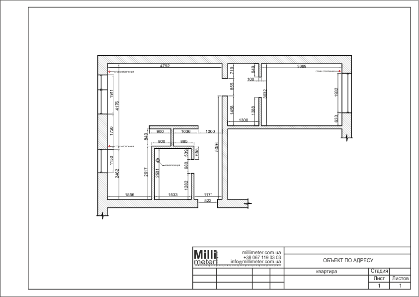
Millimeter Опубліковано: 2 квітня 2012 Автор Поділитись Опубліковано: 2 квітня 2012 Не большая квартира в районе лукьяновки. Цитата Посилання на коментар Поділитися на інших сайтах More sharing options...
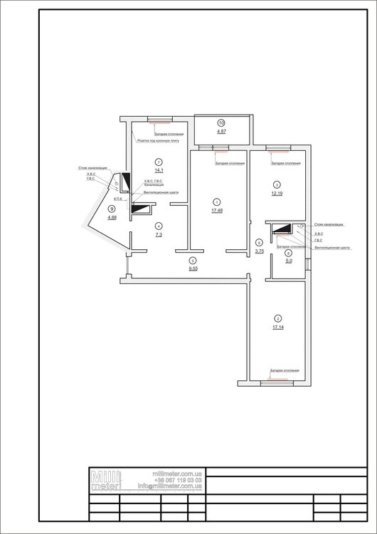
Millimeter Опубліковано: 5 квітня 2012 Автор Поділитись Опубліковано: 5 квітня 2012 Квартира в центре Киева Цитата Посилання на коментар Поділитися на інших сайтах More sharing options...
Millimeter Опубліковано: 17 квітня 2012 Автор Поділитись Опубліковано: 17 квітня 2012 Квартира в Чабанах Цитата Посилання на коментар Поділитися на інших сайтах More sharing options...
Millimeter Опубліковано: 23 квітня 2012 Автор Поділитись Опубліковано: 23 квітня 2012 Квартира на левом берегу. Цитата Посилання на коментар Поділитися на інших сайтах More sharing options...
Millimeter Опубліковано: 17 травня 2012 Автор Поділитись Опубліковано: 17 травня 2012 - обмер помещений квартир/домов при покупке или продаже - обмер помещений, если необходима перепланировка - обмерочный план, обмерочный чертёж - оцифровка чертежей Цитата Посилання на коментар Поділитися на інших сайтах More sharing options...
Millimeter Опубліковано: 21 травня 2012 Автор Поділитись Опубліковано: 21 травня 2012 - обмерные работы: офисы, магазины, склады - обмер недвижимости при аренде или покупке - обмеры помещений для строителей - архитектурные обмеры для дизайнеров и архитекторов Цитата Посилання на коментар Поділитися на інших сайтах More sharing options...
Татьяна5 Опубліковано: 21 травня 2012 Поділитись Опубліковано: 21 травня 2012 Интересно, а как формируется ценообразование? 1 Цитата Посилання на коментар Поділитися на інших сайтах More sharing options...
Millimeter Опубліковано: 21 травня 2012 Автор Поділитись Опубліковано: 21 травня 2012 Интересно, а как формируется ценообразование? То есть вас интересует цена услуги??? Если да, то на сайте в раздели "услуги и цены" есть интересующая Вас информация!!! Спасибо за вопрос Цитата Посилання на коментар Поділитися на інших сайтах More sharing options...
Millimeter Опубліковано: 15 вересня 2012 Автор Поділитись Опубліковано: 15 вересня 2012 - начала проектных или строительно-монтажных работ - определения размеров внутренних помещений и конструкций - согласования планов помещений в БТИ - проверка площадей и размеров объектов недвижимости - определение форм и размеров узлов, стыков, элементов Цитата Посилання на коментар Поділитися на інших сайтах More sharing options...
Рекомендовані повідомлення