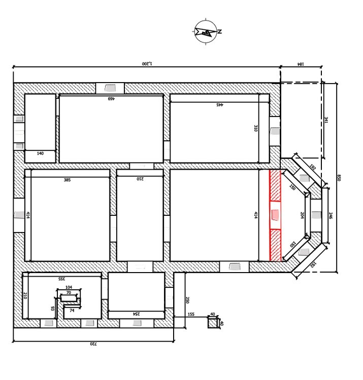
Vlana Опубліковано: 31 березня 2012 Поділитись Опубліковано: 31 березня 2012 Предположительно в мае-июне будем делать крышу.Материал Katepal Ruflex Super Rocky (Медный отлив).Реконструируем старый дом,достраиваем мансарду с высотой стен 1.25м. Для просчета предлагаю план дома и предварительную визуализацию (до конца еще не определились).Полимерпесчаную и натуральную черепицу не предлагайте, не хотим перегружать фундамент. Вот такую крышу нам предложили ,покритикуйте. А это план мансарды Посилання на коментар Поділитися на інших сайтах More sharing options...
Крышник Опубліковано: 1 квітня 2012 Поділитись Опубліковано: 1 квітня 2012 Предположительно в мае-июне будем делать крышу.Материал Katepal Ruflex Super Rocky (Медный отлив).Реконструируем старый дом,достраиваем мансарду с высотой стен 1.25м. Для просчета предлагаю план дома и предварительную визуализацию (до конца еще не определились) Если Вы до конца не определились по проекту,то зачем считать,в разговоре со специалистом возможно для понимания определить порядок бюджета,а уже более точно,с учётом нюансов/деталей,после обсуждения с теми же специалистами и/или с подрядчиками,которые будут воплощать проект в жизнь. Я неоднократно писал,что вариантов комплектации много,и разницу заказчик обычно не может определить,он в основном смотрит на рядовое кровельное покрытие и цену на его мЭтр,на что собственно и расчёт многих продавцов,иногда даже занижают цену за метр рядового покрытия,для наживки,а прибыль нагоняют другими способами.Практически никто из заказчиков не определит такой важный момент как качество всяких разных мелких комплектующих,которые очень отличаются,но влияют на качество будущего продукта,и т.д.Ну это лирика.. Что касается Вашего конкретного рисунка,то там есть некоторые подводные камни,и как раз в зависимости от комплектации или всё будет работать как надо или получите постоянную головную боль,так же стоит заранее предусмотреть-"накомплектовать",и соотв. потом установить,разные важные девайсы,что бы потом не "бегать в магазин два раза". Совет такой,цены у всех приблизительно одинаковы,определить разных потенциальных специалистов,пообщаться,на основании общения,Вам сделают предложение,а дальше Вы определите с кем работать,тут,как гриться,удача и жизненный опыт Вам в помощь. Чем я комплектую,есть ссылка в подписи,и Катепалом в том числе,из Катепал мы уже 12 лет крыши делаем.Цены привлекательные,многие заказчики ко мне обращаются что бы всё было правильно,как по конструкции так и по материалам,также у меня многие "прорабы" комплектуются,в том числе учитывая мои рекомендации именно по элементам комплектации,разъясняю на чём можно сэкономить,на чём нет,ect. С удовольствием пообщаюсь,в четверг-пятницу это делал на стендах Керабит и Катепал на прошедшей Выставке. П.С.Ещё нюанс...Что касается уже детального просчёта,то я его делаю за деньги,предварительно обсудив цену на "метр" конкретных необходимых материалов.т.к. ценю своё время,в случае покупки,эта сумма минусуется,т.е. "бЭзвазымездно" :D Важно...Поторопитесь,т.к. к концу недели битумка большинства производителей подорожает на 5-7%,а к лету ещё...инфа инсайдерская;) Посилання на коментар Поділитися на інших сайтах More sharing options...
Дмитрий Кондратенко Опубліковано: 1 квітня 2012 Поділитись Опубліковано: 1 квітня 2012 Добрый день. Вся информация в личном. Цена на битум действительно вырастет. так что постешите.;) Посилання на коментар Поділитися на інших сайтах More sharing options...
Vlana Опубліковано: 1 квітня 2012 Автор Поділитись Опубліковано: 1 квітня 2012 Вот как раз для того, чтобы найти "разных потенциальных специалистов" и "предварительно обсудить цену на "метр" конкретных необходимых материалов" я и завела эту тему. То, что я не до конца определилась с проектом реконструкции означает только то, что ,полагаясь на опыт строителей в т.ч. крышников, возможны некоторые конструктивные изменения с сохранением общей цели реконструкции. Очень понравилась крыша у Olga Kostyuk. Чтобы идти дальше, мне нужны следующие материалы ед.изм. к-во Черепица Медный отлив м.кв. 270 Плитка (конек,карниз) уп. 4 Ендовный ковер рул. 3 Подкладочный ковер рул. 20 Герметиз.клей 10л. К-36 шт. 1 Супердиффузионная мембрана рул. 4 Гидробарьер рул. 4 Утеплитель Паробарьер фольгир. ОSB 1250х2501 Хотелось бы приобрести материалы до их удорожания. Посилання на коментар Поділитися на інших сайтах More sharing options...
immigrant Опубліковано: 1 квітня 2012 Поділитись Опубліковано: 1 квітня 2012 Добрый день, Елена. Я писал Вам в личные свое предложение. Это раз, а во вторых, если Вы пишете числа по количеству материала, то это значит, что с формой кровли Вы уже определились? Или все таки по вашим чертежам желательно сделать расчеты? Чтобы быть уверенной в том, что все элементы посчитаны правильно и докупать не прийдется! Посилання на коментар Поділитися на інших сайтах More sharing options...
Vlana Опубліковано: 1 квітня 2012 Автор Поділитись Опубліковано: 1 квітня 2012 Я ответила Вам. Расчеты были сделаны раньше, бригада не из форума. Предложенные цены на материалы выше, чем на сайтах Артен, Профиль Буд. Но видела работу этой бригады - понравилась. Для себя вижу два пути,либо купить самим материалы и этим самим сэкономить немаленькую сумму, либо принять предложение другой бригады с адекватными ценами на материалы и работу, с готовностью решить все вопросы по конструктиву, поскольку мы перестраиваем свой дом без проекта, но с разными хотелками. В порядке информации - в настоящее время уже ведутся общестроительные работы, а именно усиление фундамента, достройка эркера. Армопояс на весь дом и возведение стен мансарды планируем сразу же ,как определимся с крышниками, поскольку дом жилой и необходимо сократить время попадания осадков на раскрытый дом. Поэтому любые предложения будут рассмотрены и приняты во внимание. 1 Посилання на коментар Поділитися на інших сайтах More sharing options...
immigrant Опубліковано: 1 квітня 2012 Поділитись Опубліковано: 1 квітня 2012 Я ответила Вам. Поэтому любые предложения будут рассмотрены и приняты во внимание. Ок. В понедельник сделаю расчет и отправлю. На какой e-mail написать? Посилання на коментар Поділитися на інших сайтах More sharing options...
Vlana Опубліковано: 2 квітня 2012 Автор Поділитись Опубліковано: 2 квітня 2012 Спасибо всем откликнувшимся. Осталось самое сложное определите с кем работать,тут,как гриться,удача и жизненный опыт Вам в помощь. Моя интуиция сегодня спит.Подумаем об этом завтра. Посилання на коментар Поділитися на інших сайтах More sharing options...
Рекомендовані повідомлення
Створіть акаунт або увійдіть у нього для коментування
Ви маєте бути користувачем, щоб залишити коментар
Створити акаунт
Зареєструйтеся для отримання акаунта. Це просто!
Зареєструвати акаунтУвійти
Вже зареєстровані? Увійдіть тут.
Увійти зараз