CepJ Опубліковано: 9 вересня 2008 Поділитись Опубліковано: 9 вересня 2008 Нужно выполнить комплекс работ: установить опалубку, залить бетон из миксера (возможно в 2 этапа) разобрать опалубку. Материала на опалубку нет. Макс. высота фундамента над уровнем земли - около 60 см. г. Борисполь. Объем - до 25 м3. 8-050-487-20-79 Сергей Актуально до выходных. Приветствуется разборная строительная опалубка. Лучше всего звонить - сейчас форум читать некогда. Посилання на коментар Поділитися на інших сайтах More sharing options...
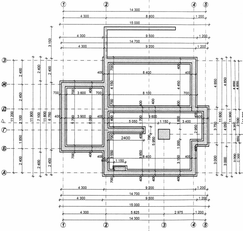
CepJ Опубліковано: 26 вересня 2008 Автор Поділитись Опубліковано: 26 вересня 2008 Снова актуально. Схему фундамента прилагаю. Траншея под фундамент выкопана, в нее уложены сваи. Высота фундамента над уровнем замли от 40 до 60 см. Предложения с ценами жду в личных сообщениях. Посилання на коментар Поділитися на інших сайтах More sharing options...
CepJ Опубліковано: 29 вересня 2008 Автор Поділитись Опубліковано: 29 вересня 2008 вверх - актуально. Посилання на коментар Поділитися на інших сайтах More sharing options...
Рекомендовані повідомлення
Створіть акаунт або увійдіть у нього для коментування
Ви маєте бути користувачем, щоб залишити коментар
Створити акаунт
Зареєструйтеся для отримання акаунта. Це просто!
Зареєструвати акаунтУвійти
Вже зареєстровані? Увійдіть тут.
Увійти зараз