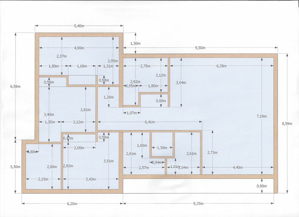
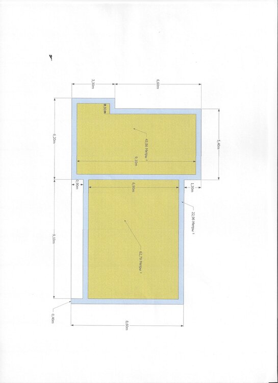
shuravi Опубліковано: 5 квітня 2012 Поділитись Опубліковано: 5 квітня 2012 Дом с плоской крышей, хочу сделать вместо Ж/Б перекрытия крыши, перекрытие по деревянным балкам. Получаются два помещения с размерами 6,20м.*9,90м. и 7,30м.*9,30м. Посоветуйте как перекрыть балками вот такое строение, z500.com.ua/ru/project/zx53 но немножко переиграл под себя. Помогите советом. Посилання на коментар Поділитися на інших сайтах More sharing options...
shuravi Опубліковано: 5 квітня 2012 Автор Поділитись Опубліковано: 5 квітня 2012 Дайте мудрый совет Посилання на коментар Поділитися на інших сайтах More sharing options...
shuravi Опубліковано: 6 квітня 2012 Автор Поділитись Опубліковано: 6 квітня 2012 Подыму темку. Реально ли перекрыть балками или надо ложить двутавр. Если двутавр то каким методом? Посилання на коментар Поділитися на інших сайтах More sharing options...
сергійВ Опубліковано: 23 квітня 2012 Поділитись Опубліковано: 23 квітня 2012 Великий проліт краще кладіть плити. Раніше я теж думав що плитами дорого і перекрив деревяними балками і тепер почав рахувати щоб і шум не передавався і щоб висота перекриття була невелика набігає сума . Посилання на коментар Поділитися на інших сайтах More sharing options...
shuravi Опубліковано: 27 квітня 2012 Автор Поділитись Опубліковано: 27 квітня 2012 Подымим темку! А как насчет конструктива? Посилання на коментар Поділитися на інших сайтах More sharing options...
reddah Опубліковано: 27 квітня 2012 Поділитись Опубліковано: 27 квітня 2012 В 2011 году построил свой первый дом как прораб и мы с заказчиком переиграли перекрытие второго этажа убрали монолит и заменили деревянными балками.Т.к. чердак холодный и плиту надо утеплять мин. 150мм монолитная плита обошлась бы 60 тыс. грн. + нагрузка на здание 22м3х2,5т=55т .Для вас думаю дерево будет оптимальный вариант,потом сделать уклон из брусков,по брусу фанеру ФСФ-3 т.к. OSB (ходят слухи даже у нас на форуме, последнее время поставляют не качественное),а сверху в два слоя закатать хорошим материалом.Не забудьте про вентиляцию подкровельного пространства. 1 Посилання на коментар Поділитися на інших сайтах More sharing options...
Рекомендовані повідомлення
Створіть акаунт або увійдіть у нього для коментування
Ви маєте бути користувачем, щоб залишити коментар
Створити акаунт
Зареєструйтеся для отримання акаунта. Це просто!
Зареєструвати акаунтУвійти
Вже зареєстровані? Увійдіть тут.
Увійти зараз