dis Опубліковано: 26 квітня 2012 Поділитись Опубліковано: 26 квітня 2012 Собираемся строится из газобетона. Дом на 2х взрослых и 2х детей. Фундамент ленточный. Монолитное перекрытие. Крыша композитная металлочерепица. Со стройкой сталкиваемся впервые. Ждем критику. Посилання на коментар Поділитися на інших сайтах More sharing options...
ПЛАСТИК Опубліковано: 26 квітня 2012 Поділитись Опубліковано: 26 квітня 2012 То что со "стройкой впервые" это бывает, а то что проектированием в первые это видно из Ваших картинок Тут коментриовать особо нечего, похоже на освоение программы:D Что б было понятно: планировки нет, зонирования нет, коструктива тоже нет ну и т.д... Два С/У по 12 м.кв на втором этаже вобще бомба! Посилання на коментар Поділитися на інших сайтах More sharing options...
Vavilеn Опубліковано: 26 квітня 2012 Поділитись Опубліковано: 26 квітня 2012 Ужас. Вы даже мебель на второй этаж поднять не сможете в этом проекте (хотя второго этажа и не будет, он скорее всего обрушится, судя по установке несущих стен на перекрытие) ... Чертите следующий, но сначала почитайте про зонирование, про ориентацию по сторонам света, про минимальную ширину коридоров, про оптимальные размеры помещений. Посилання на коментар Поділитися на інших сайтах More sharing options...
Lawyer Опубліковано: 26 квітня 2012 Поділитись Опубліковано: 26 квітня 2012 в топку. Без обид))) Посилання на коментар Поділитися на інших сайтах More sharing options...
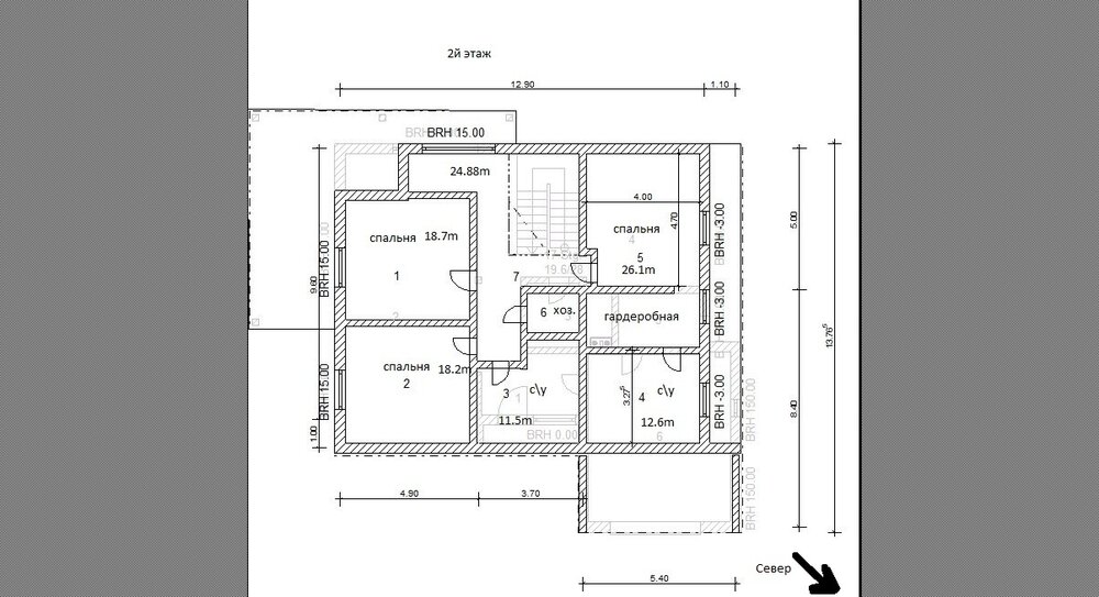
Artyomovets Опубліковано: 26 квітня 2012 Поділитись Опубліковано: 26 квітня 2012 а мне понравилась нычка 24.88 на втором этаже такое разбазаривание площади - это по-богатому Посилання на коментар Поділитися на інших сайтах More sharing options...
Vavilеn Опубліковано: 26 квітня 2012 Поділитись Опубліковано: 26 квітня 2012 а мне понравилась нычка 24.88 на втором этаже Это не нычка, это проход на балкон ... но от этого и вправду не легче. Посилання на коментар Поділитися на інших сайтах More sharing options...
ПЛАСТИК Опубліковано: 26 квітня 2012 Поділитись Опубліковано: 26 квітня 2012 а мне понравилась нычка 24.88 на втором этаже Там могла бы удачно вписаться раскладушка! :D Посилання на коментар Поділитися на інших сайтах More sharing options...
Vavilеn Опубліковано: 26 квітня 2012 Поділитись Опубліковано: 26 квітня 2012 Ладно вам издеваться - я про этот второй этаж ещё у Зощенко читал Посилання на коментар Поділитися на інших сайтах More sharing options...
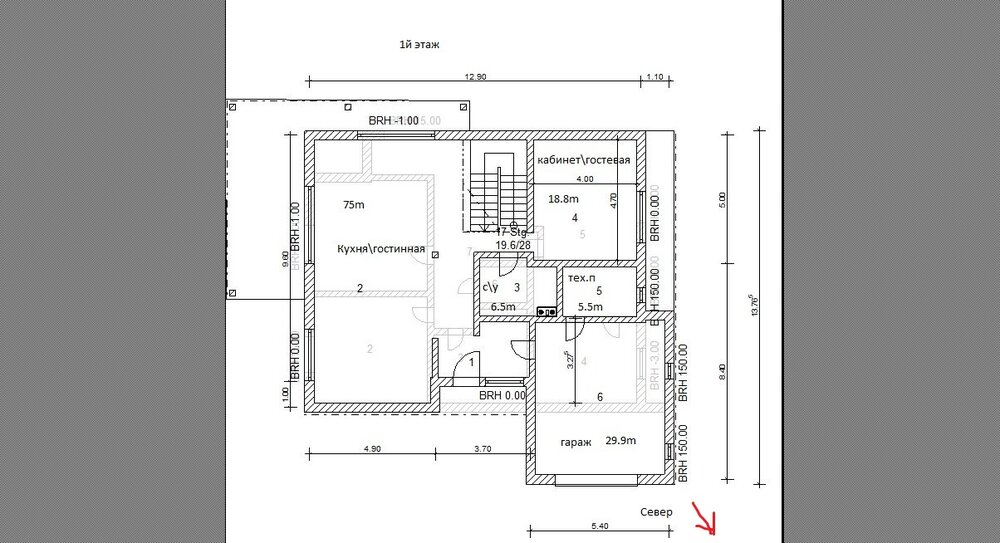
dis Опубліковано: 26 квітня 2012 Автор Поділитись Опубліковано: 26 квітня 2012 Ужас. Вы даже мебель на второй этаж поднять не сможете в этом проекте (хотя второго этажа и не будет, он скорее всего обрушится, судя по установке несущих стен на перекрытие) ... Чертите следующий, но сначала почитайте про зонирование, про ориентацию по сторонам света, про минимальную ширину коридоров, про оптимальные размеры помещений. С севера хочется минимум жилых помещений, 1,5м. для коридора это мало? Посилання на коментар Поділитися на інших сайтах More sharing options...
Artyomovets Опубліковано: 26 квітня 2012 Поділитись Опубліковано: 26 квітня 2012 Это не нычка, это проход на балкон ... но от этого и вправду не легче. т.е. выход на балкон из комнаты - совсем неприемлимо? Посилання на коментар Поділитися на інших сайтах More sharing options...
dis Опубліковано: 26 квітня 2012 Автор Поділитись Опубліковано: 26 квітня 2012 То что со "стройкой впервые" это бывает, а то что проектированием в первые это видно из Ваших картинок Тут коментриовать особо нечего, похоже на освоение программы:D Что б было понятно: планировки нет, зонирования нет, коструктива тоже нет ну и т.д... Два С/У по 12 м.кв на втором этаже вобще бомба! один с/у - постирачная, чтоб на первый не тащить все белье, а второй прихоть от которой можно отказаться. Посилання на коментар Поділитися на інших сайтах More sharing options...
ДОКС Опубліковано: 26 квітня 2012 Поділитись Опубліковано: 26 квітня 2012 В отличие от некоторых присутствующих в этой ветке, позволю себе поспорить, на предмет реализации этих картинок... То есть... В реальности, то что ТС нарисовал построить можно и даже из ГБ, и даже с монолитным перекрытием, и даже с этой, не совсем суразной, планировкой....;) но во что ( в какие деньги) это может вылиться? Вопросы ТС: - какова получилась общая площадь здания? - Вы уже определились с тем, сколько готовы вложить в строительство коробки дома денег? Посилання на коментар Поділитися на інших сайтах More sharing options...
Vavilеn Опубліковано: 26 квітня 2012 Поділитись Опубліковано: 26 квітня 2012 1,5м. для коридора это мало? Первый этаж, напротив лестницы - там разве полтора метра ? Добавлено через 2 минуты В реальности, то что ТС нарисовал построить можно и даже из ГБ, и даже с монолитным перекрытием Что значит можно построить - там часть внешних стен второго этажа "висит" на перекрытии ... Или оно с элементами металлоконструкций ? Посилання на коментар Поділитися на інших сайтах More sharing options...
ДОКС Опубліковано: 26 квітня 2012 Поділитись Опубліковано: 26 квітня 2012 Что значит можно построить - там часть внешних стен второго этажа "висит" на перекрытии ... Можно-можно.... я ж о том и написал: но во что ( в какие деньги) это может вылиться? Посилання на коментар Поділитися на інших сайтах More sharing options...
ПЛАСТИК Опубліковано: 26 квітня 2012 Поділитись Опубліковано: 26 квітня 2012 В отличие от некоторых присутствующих в этой ветке, позволю себе поспорить, на предмет реализации этих картинок... То есть... В реальности, то что ТС нарисовал построить можно и даже из ГБ, и даже с монолитным перекрытием, и даже с этой, не совсем суразной, планировкой....;) но во что ( в какие деньги) это может вылиться? А разве кто нибудь, что-то говорил о невозможности воспроизведения данного обьекта? Только смысл в этом какой? Посилання на коментар Поділитися на інших сайтах More sharing options...
ДОКС Опубліковано: 26 квітня 2012 Поділитись Опубліковано: 26 квітня 2012 Только смысл в этом какой? Вот так, спокойно и не принуждённо, мы все вместе убедили ТС попробовать ещё раз осмыслить всё сказанное и сделать ещё один эскиз... Посилання на коментар Поділитися на інших сайтах More sharing options...
ПЛАСТИК Опубліковано: 26 квітня 2012 Поділитись Опубліковано: 26 квітня 2012 Ах вот оно что Посилання на коментар Поділитися на інших сайтах More sharing options...
ionico Опубліковано: 26 квітня 2012 Поділитись Опубліковано: 26 квітня 2012 Построить можно почти что угодно, конечно: (ссылка на изображение устарела) Но любое решение, в т. ч. решение об усложнении конструкции должно быть полностью осознанным. А похоже, что предоставленный вариант был разработан не полностью осознанно. Тут дело в подходе. Точно такие же новички на этом форуме делали такие планы, которые утирают нос некоторым архитекторам. Конечно, талант - тоже не мало важно, но осознанное трудолюбие может утереть нос любому гению. 1 Посилання на коментар Поділитися на інших сайтах More sharing options...
dis Опубліковано: 3 травня 2012 Автор Поділитись Опубліковано: 3 травня 2012 Спаибо всем, пойду учить матчасть. Посилання на коментар Поділитися на інших сайтах More sharing options...
Dozdev Опубліковано: 11 травня 2012 Поділитись Опубліковано: 11 травня 2012 до уровня зеленого студента выпускника - 6 лет изучения матчасти 1 Посилання на коментар Поділитися на інших сайтах More sharing options...
Рекомендовані повідомлення
Створіть акаунт або увійдіть у нього для коментування
Ви маєте бути користувачем, щоб залишити коментар
Створити акаунт
Зареєструйтеся для отримання акаунта. Це просто!
Зареєструвати акаунтУвійти
Вже зареєстровані? Увійдіть тут.
Увійти зараз