Юрий07 Опубліковано: 4 травня 2012 Поділитись Опубліковано: 4 травня 2012 Пожалуйста, покритикуйте проект дома. Участок 10 соток, пос. Таватуй, недалеко от Екатеринбурга. Дом планируем для постоянного проживания (мы с женой, 2-3 детей, наездами тещенька). Дом 13 на 15 метров. Четыре полуэтажа. Холодный чердак. Нравятся формы и принципы домов шале, поэтому некую шалеобразность пытался реализовать. Угол крыши 22,5 градусов, вылеты где-то 1,5 м. Однако дом каменный, боюсь пожаров. Первый этаж отделка камнем, второй и фронтоны – штукатурка. Участок с уклоном - 1,5 метра перепад грунта по дому. Фасад дома смотрит на юго-юго запад. Фундамент – ленточный (60 (ширина) на 40 см, мелкозаглубленный), далее стены монолит ЖБ. Толщина стены 40 см, высота 2,7 м, ЭППС 10 см, отделка камнем (скорее всего искусственным). Далее - Поротерм 51, штукатурка с обоих сторон. Крыша – метало черепица. Плиты перекрытия везде кроме пола 1 и 2 полуэтажей, там по грунту. Высота потолков 1,2,4 полуэтажей – 2,7м. Высота 3 полуэтажа (гостиная, спальня) 3,7 м. Грунт скальный. Первый полуэтаж: Гараж, котельная (плюс что то еще можно разместить), кладовая, спа-зона, санузел. Вход через гараж. Второй полуэтаж: Тамбур, прихожая, гостевая, приемный кабинет. Главный вход. Третий полуэтаж: Кухня-столовая-гостинная, Спальня, гардеробная, санузел, Игровая-спортивная (для детей и взрослых). Выход в сад. Четвертый полуэтаж: две детский, кабинет, санузел. Общая площадь – около 310 м2. Воздуховоды объединены в два пучка. Каминная и отельная трубы идут снаружи дома, рядом друг с другом. Возможно, это нарушает эстетику, но зато просто в исполнении. Буду признателен за комментарии. Посилання на коментар Поділитися на інших сайтах More sharing options...
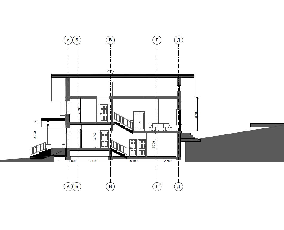
Юрий07 Опубліковано: 4 травня 2012 Автор Поділитись Опубліковано: 4 травня 2012 Планы, разрезы фасады Посилання на коментар Поділитися на інших сайтах More sharing options...
Artyomovets Опубліковано: 4 травня 2012 Поділитись Опубліковано: 4 травня 2012 детские по 10 метров, а кабинет - 15. при этом есть еще и приемный кабинет. в моем понимании это плохо. Посилання на коментар Поділитися на інших сайтах More sharing options...
Юрий07 Опубліковано: 4 травня 2012 Автор Поділитись Опубліковано: 4 травня 2012 Спасибо за комментарий! А почему это плохо, если есть игровая 30 м2? Посилання на коментар Поділитися на інших сайтах More sharing options...
Artyomovets Опубліковано: 4 травня 2012 Поділитись Опубліковано: 4 травня 2012 Спасибо за комментарий! А почему это плохо, если есть игровая 30 м2? маленькая кубатура. как итог - мало кислорода на ночь. и плохой сон ребенка. 1 Посилання на коментар Поділитися на інших сайтах More sharing options...
Alisa3 Опубліковано: 4 травня 2012 Поділитись Опубліковано: 4 травня 2012 Потому что комнатки по 10м это очень-очень мало. Даже для квартиры. Лучше отказаться от второго кабинета и сделать две полноценные детские комнаты. Посилання на коментар Поділитися на інших сайтах More sharing options...
Юрий07 Опубліковано: 4 травня 2012 Автор Поділитись Опубліковано: 4 травня 2012 можно вот так. Детские по 15 м. Постирочная. С коммуникациями посложнее немного Посилання на коментар Поділитися на інших сайтах More sharing options...
Alisa3 Опубліковано: 4 травня 2012 Поділитись Опубліковано: 4 травня 2012 можно вот так. Детские по 15 м. Постирочная. С коммуникациями посложнее немного Так лучше гораздо, но у вас стена получилась аккурат посреди окна))) Может объединить постирочную с ванной? Сделать ванну просторнее с двойной раковиной и ещё добавить по метру в каждую комнату. 1 Посилання на коментар Поділитися на інших сайтах More sharing options...
Юрий07 Опубліковано: 5 травня 2012 Автор Поділитись Опубліковано: 5 травня 2012 Так лучше гораздо, но у вас стена получилась аккурат посреди окна))) Может объединить постирочную с ванной? Сделать ванну просторнее с двойной раковиной и ещё добавить по метру в каждую комнату. Спасибо за комментарии! Стена посреди окна, это да, скорее это два окна, конечно же, снаружи выглядящие как одно окно. Если переносить стенки - то уменьшается также ширина прихожей (они у меня несущие. А вот где в таком доме сушить и гладить белье? В санузле же етого не делается. Посилання на коментар Поділитися на інших сайтах More sharing options...
Alisa3 Опубліковано: 5 травня 2012 Поділитись Опубліковано: 5 травня 2012 А где Вы собирались сушить и гладить бельё в предыдущей планировке? В кабинете? Посилання на коментар Поділитися на інших сайтах More sharing options...
Юрий07 Опубліковано: 5 травня 2012 Автор Поділитись Опубліковано: 5 травня 2012 А где Вы собирались сушить и гладить бельё в предыдущей планировке? В кабинете? В первоначальном варианте у меня была постирочная, но потом так все резко стало меняться... И она исчезла. А на счет кабинета... может быть это была бы третья детская, а сейчас, всё, придется ограничиться двумя детьми ... Посилання на коментар Поділитися на інших сайтах More sharing options...
Alisa3 Опубліковано: 5 травня 2012 Поділитись Опубліковано: 5 травня 2012 А на счет кабинета... может быть это была бы третья детская, а сейчас, всё, придется ограничиться двумя детьми ... Да не надо так сразу рубить с плеча! У вас ещё один кабинет есть на первом этаже, да и гостевая Вам не нужна особо (зачем Вам гости, если у Вас итак куча народу в доме? ), ну а в игровой и вовсе при желании можно с десяток ребятишек поселить, а если кровати в два яруса поставить - так и все двадцать! Так что как велел нам господь Бог: плодитесь и размножайтесь на здоровье :D Посилання на коментар Поділитися на інших сайтах More sharing options...
Рекомендовані повідомлення
Створіть акаунт або увійдіть у нього для коментування
Ви маєте бути користувачем, щоб залишити коментар
Створити акаунт
Зареєструйтеся для отримання акаунта. Це просто!
Зареєструвати акаунтУвійти
Вже зареєстровані? Увійдіть тут.
Увійти зараз