Перейти до публікації
Пошук в
  • Додатково...
Шукати результати, які містять...
Шукати результати в...

Белогородка, котедж, ниже себестоимости

Kasparajtis

Рекомендовані повідомлення

Эх, прижала и меня нелегкая, продаю свое детище, больше 90% работников нашел на этом форуме а сколько советов и полезной информации.... Крейзис...

 

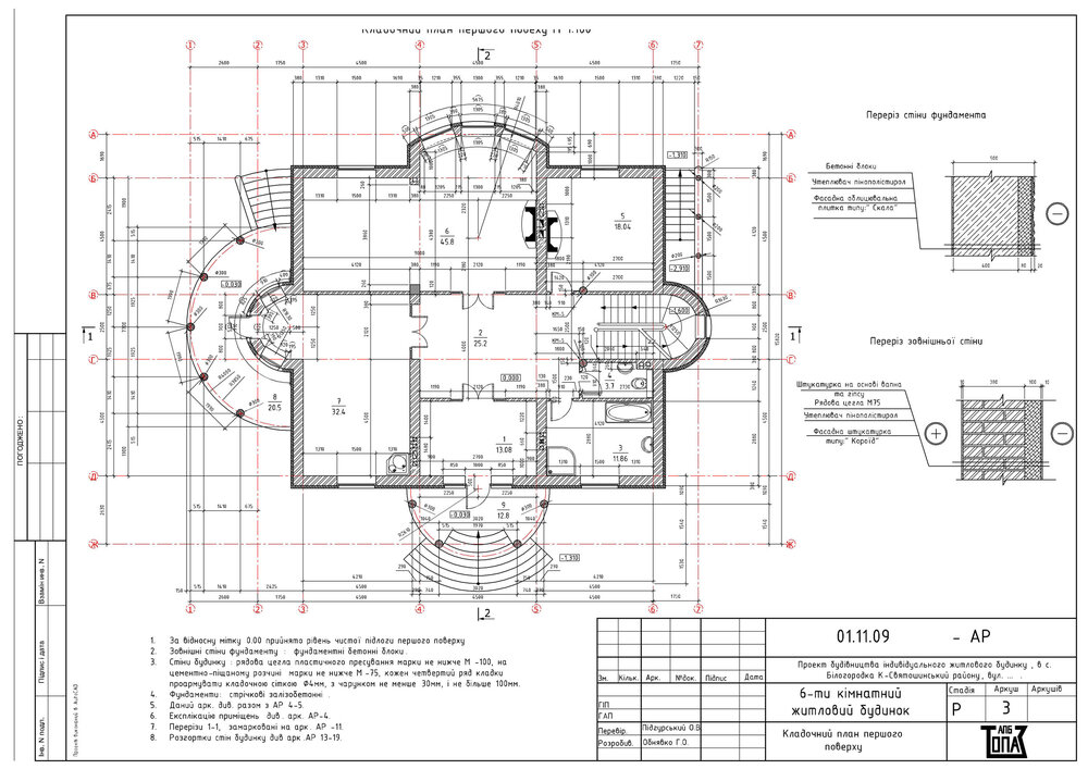
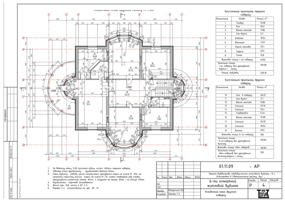
Участок 30 сот. (60 на 50 м.) Скважина 100 м. (синоман). Готовность коробка (1,5 "супер" кирпича, кровля Owens Corning). 538м2. Рядом продается такого же плана дом меньшими размерами.

Что планировал

fasad.jpg.6d4796c869a958349a0c5b50bd98b1ba.jpg

 

Что есть

1720777733_-2.thumb.jpg.a540c9a6e7fd76cb7298b10d95c7ce64.jpg

 

То же продается

133125200_.thumb.jpg.10cff0baae200ea5281fd82d9f437d22.jpg

 

планировки

1839926796_(1).thumb.jpg.ad30ea4e80657fd0bdac9676308673d3.jpg

 

на карте

646946114_.thumb.jpg.1126e67fb16d3b0ae1737325095fc479.jpg

 

Цена 180 т.у.йо.

875642024_.thumb.jpg.d8692f480c1c26bdf4b644bf509db97b.jpg

68389418_(1).thumb.jpg.0eda1ac74490028aadd57b4957dd242e.jpg

1340700562_(2).thumb.jpg.74ff80da916d4e476ae8fa42f32f5408.jpg

Змінено користувачем Kasparajtis
криво аттачмены присоединились
Посилання на коментар
Поділитися на інших сайтах

интересно, но очень дорогой вариант (для меня) прямо царская усадьба. Это дом планировался на одну семью? Зачем такая площадь?

А расскажите во что Вы оцениваете Вашу стройку, т.к. 180- цена не очень понятна. Скажем участок-цена Х, коробка (работа)- цена У, коммуникации- цена Z, общая стоимость Х+У+Z=?

Посилання на коментар
Поділитися на інших сайтах

интересно, но очень дорогой вариант (для меня) прямо царская усадьба. Это дом планировался на одну семью? Зачем такая площадь?

А расскажите во что Вы оцениваете Вашу стройку, т.к. 180- цена не очень понятна. Скажем участок-цена Х, коробка (работа)- цена У, коммуникации- цена Z, общая стоимость Х+У+Z=?

 

Дом строил для семьи, четыре человека. Спален 4 штуки (33, 27, 27,18), одна про запас(жена исправила - гостевая :) ). Подвалом около 170 м2 соблазнил архитектор, всего-то докупить по периметру ряд фундаментных блоков.

 

По себестоимости:

Участок стоит минимум 100 т. (30 соток., в этом районе средняя цена 3,5 т/сот.)

 

Коробка: подвал 40 т., стены+перекрытия, монолиты = 60т, крыша 20т.

 

Скважина тогда мне обошлась в 10 т. (Кстати вода бомба, а в этом районе

все что меньше +-100 м. пить нельзя, бучак, железо)

 

Итого 230 т.

Не считая каждый день выездить, проконтролировать, подвезти, поохранять ну и ... большинство форумчан знает.

Посилання на коментар
Поділитися на інших сайтах

Жаль что приходится продавать, хороший домик, но как-то великоват..... Его б на 2-3 семьи, но недострой вряд- ли кто согласится купить, да и законченные дома идут тяжеловато, а тут целый особняк....

 

Ладно... удачно продать.

  • Лайк 1
Посилання на коментар
Поділитися на інших сайтах

мдааа.....размах колосальный...

боюсь представить сколько денег еще над что б довести все до ума "как планировалось", на этом фоне 180т - копейки

 

удачной продажи

Посилання на коментар
Поділитися на інших сайтах

  • 4 тижні потому...

Створіть акаунт або увійдіть у нього для коментування

Ви маєте бути користувачем, щоб залишити коментар

Створити акаунт

Зареєструйтеся для отримання акаунта. Це просто!

Зареєструвати акаунт

Увійти

Вже зареєстровані? Увійдіть тут.

Увійти зараз
×
×
  • Створити...