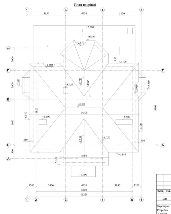
Solo.ua Опубліковано: 19 травня 2012 Поділитись Опубліковано: 19 травня 2012 (змінено) Добрый день! В данный момент дом строится. Планирую в августе закончить "коробку". Интересует смета на кровлю, что называется, "под ключ". Планирую использовать в качестве покрытия - композитную черепицу Метротайл. План кровли прилагаю, все остальное готов по запросу предоставить по почте. Змінено 19 травня 2012 користувачем Solo.ua Посилання на коментар Поділитися на інших сайтах More sharing options...
Cтроитель Киев Опубліковано: 20 травня 2012 Поділитись Опубліковано: 20 травня 2012 мне пожалуйста фасады план кровли и стропилки Посилання на коментар Поділитися на інших сайтах More sharing options...
*Alexey* Опубліковано: 21 травня 2012 Поділитись Опубліковано: 21 травня 2012 мне пожалуйста фасады план кровли и стропилки А почему это ТОЛЬКО ВАМ??? И мне :D Все контакты в подписи. Месторасположение?? материал коробки?? Приоритет формы/цвета черепицы?? Подшивка?? Водосток?? Утеплитель?? Посилання на коментар Поділитися на інших сайтах More sharing options...
Крышник Опубліковано: 22 травня 2012 Поділитись Опубліковано: 22 травня 2012 Добрый день! В данный момент дом строится. Планирую в августе закончить "коробку". Интересует смета на кровлю, что называется, "под ключ". Планирую использовать в качестве покрытия - композитную черепицу Метротайл. План кровли прилагаю, все остальное готов по запросу предоставить по почте. Через три недели закончим(делаем "под ключ") аналог Метротайла (Жерард),посмотрите как сделано,понравится -обсудим Вашу крышу. Мансарда на том доме делается как по учебнику(снизу вверх): черновая подшивка/алюминевый паробарьер ЮТА/перекрёстное утепление 50+100 мм ватой плотностью 35 кг/куб /+50 мм вата плотность 65 кг/куб,т.е. итого 200мм /вент.зазор/"антиконденсат" ЮТА.Подшивка софит,металл торцево-лобовой и металл.водосток Сиба-всё цвет "граффит".Кровля цвет типа "антрацит". П.С."Изюминка" проекта-три из шести мансардных окон РОТО расположены рядом вертикально,спецоклад,на расстояние 10 см между окнами,индивидуально заказывали в Германии. Посилання на коментар Поділитися на інших сайтах More sharing options...
Solo.ua Опубліковано: 22 травня 2012 Автор Поділитись Опубліковано: 22 травня 2012 Через три недели закончим(делаем "под ключ") аналог Метротайла (Жерард),посмотрите как сделано,понравится -обсудим Вашу крышу. Где посмотреть?... Посилання на коментар Поділитися на інших сайтах More sharing options...
Крышник Опубліковано: 22 травня 2012 Поділитись Опубліковано: 22 травня 2012 Где посмотреть?... В Чабанах,через пару недель созвонимся,пока только стропилка делается. Посилання на коментар Поділитися на інших сайтах More sharing options...
couverture Опубліковано: 22 травня 2012 Поділитись Опубліковано: 22 травня 2012 Через три недели закончим(делаем "под ключ") аналог Метротайла (Жерард),посмотрите как сделано,понравится -обсудим Вашу крышу. Мансарда на том доме делается как по учебнику(снизу вверх): черновая подшивка/алюминевый паробарьер ЮТА/перекрёстное утепление 50+100 мм ватой плотностью 35 кг/куб /+50 мм вата плотность 65 кг/куб,т.е. итого 200мм /вент.зазор/"антиконденсат" ЮТА.Подшивка софит,металл торцево-лобовой и металл.водосток Сиба-всё цвет "граффит".Кровля цвет типа "антрацит". П.С."Изюминка" проекта-три из шести мансардных окон РОТО расположены рядом вертикально,спецоклад,на расстояние 10 см между окнами,индивидуально заказывали в Германии. Видимо у Вашего заказчика присутствую "грамотные" мозги подкреплёные тугим кошельком Комлектация крыши - 10 баллов. Посилання на коментар Поділитися на інших сайтах More sharing options...
immigrant Опубліковано: 22 травня 2012 Поділитись Опубліковано: 22 травня 2012 Добрый день! В данный момент дом строится. Планирую в августе закончить "коробку". Интересует смета на кровлю, что называется, "под ключ". Планирую использовать в качестве покрытия - композитную черепицу Метротайл. План кровли прилагаю, все остальное готов по запросу предоставить по почте. Буду рад оказать Вам полную поддержку в вопросе кровли. О наших достижениях в вопросах сервиса и поставки материалов говорить не буду, их достаточно! Написал Вам в личку. Посилання на коментар Поділитися на інших сайтах More sharing options...
couverture Опубліковано: 22 травня 2012 Поділитись Опубліковано: 22 травня 2012 Solo.ua, пришлите, пжл, на почту (roof-art@ukr.net) план стропильной системы, фасады и разрезы. Ещё можно, спецификацию пиломатериала (для проверки), но не обязательно, так как всё-равно будет рассчитываться под Вашу крышу. Посилання на коментар Поділитися на інших сайтах More sharing options...
Крышник Опубліковано: 22 травня 2012 Поділитись Опубліковано: 22 травня 2012 Видимо у Вашего заказчика присутствую "грамотные" мозги подкреплёные тугим кошельком Комлектация крыши - 10 баллов. "Мозги" мои,а кошелёк обычный для такого уровня крыши,зачем экономить 5 коп,потом "памагите!",и заплатить больше,тем более,что указанная мной комплектация как в инструкциях,"как положено"....можно конечно меж стропил засунуть Изовер и закатать СДмембраной,типа сэкономить,но выиграш в деньгах не большой,а проблем потом(через год-два-три) море ..."Шурик-это не наш метод!"(С)"Операция Ы" :D 1 Посилання на коментар Поділитися на інших сайтах More sharing options...
couverture Опубліковано: 22 травня 2012 Поділитись Опубліковано: 22 травня 2012 Крышник, полностью согласен! Надо всегда уметь считать деньги, а в строительстве особенно. А наш люд славянский, считает только расходы по формуле грн/ед. времени. А сколько заплатит потом за ремонт или замену? Снова материал (уже 100% будет получше и подороже + опять таки работы в полной стоимости) Посилання на коментар Поділитися на інших сайтах More sharing options...
Solo.ua Опубліковано: 22 травня 2012 Автор Поділитись Опубліковано: 22 травня 2012 "Шурик-это не наш метод!"(С)"Операция Ы" :D Да, "с деньгами надо расставаться легко", конечно, если они есть... На мой взгляд "экономия" - это принцип "разумной достаточности" + скидки...;) Посилання на коментар Поділитися на інших сайтах More sharing options...
couverture Опубліковано: 22 травня 2012 Поділитись Опубліковано: 22 травня 2012 Solo.ua, "экономия" всегда должна быть разумной - и только тогда это реально "экономия", в остальном - это всего-лишь "жлобство", за которое "платят дважды". А скидки - это да... ))) Посилання на коментар Поділитися на інших сайтах More sharing options...
Tink Опубліковано: 25 травня 2012 Поділитись Опубліковано: 25 травня 2012 Метротайл- правильное решение! Черепица просто шикарная! А какой цвет выбрали? Посилання на коментар Поділитися на інших сайтах More sharing options...
Solo.ua Опубліковано: 27 травня 2012 Автор Поділитись Опубліковано: 27 травня 2012 Метротайл- правильное решение! Черепица просто шикарная! А какой цвет выбрали? Окончательно еще не выбрал... Стены из красного (основной цвет) и желтого облицовочного кирпича. Может "бургун", но необходимо "прикинуть" на месте... Посилання на коментар Поділитися на інших сайтах More sharing options...
denis9998 Опубліковано: 30 травня 2012 Поділитись Опубліковано: 30 травня 2012 Добрый день!ТК"ИЗОБУД" занемается полной комплектацией кровли и фасада, есть хорошие специалисты по кровельным работам.Цена на черепицу Метротайл.-83 грн за кв.м но в зависимости от обьема делаю скидки 0671911821 Скиньте свой номер Добрый день!Вы ничего не перепутали??))))))))))метротайл по 83 грн за кв.м и еще и скидку сделаете???)))))))))) Посилання на коментар Поділитися на інших сайтах More sharing options...
staford Опубліковано: 30 травня 2012 Поділитись Опубліковано: 30 травня 2012 Цена на черепицу Метротайл.-83 грн за кв.м но в зависимости от обьема делаю скидки Вы наверно хотите проспонсировать ТС половину кровли:wink: Посилання на коментар Поділитися на інших сайтах More sharing options...
Рекомендовані повідомлення
Створіть акаунт або увійдіть у нього для коментування
Ви маєте бути користувачем, щоб залишити коментар
Створити акаунт
Зареєструйтеся для отримання акаунта. Це просто!
Зареєструвати акаунтУвійти
Вже зареєстровані? Увійдіть тут.
Увійти зараз