Перейти до публікації
Пошук в
  • Додатково...
Шукати результати, які містять...
Шукати результати в...

Нужен совет по проекту - с / без второго света, чердачная или мансардная крыша

lakasta

Рекомендовані повідомлення

Добрый день!

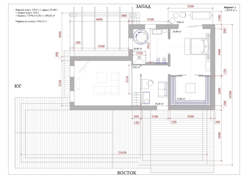
Буду очень благодарна за советы и критику. Не можем определиться - нужен ли второй свет и делать чердачную крышу или полный второй этаж и мансардную крышу?

Есть 3 проекта (сделаны индивидуально под наши пожелания):

- участок 15 соток (весь в деревьях), ровно по сторонам света, вход с ВОСТОКА

- дом в 2 уровня до 300 кв.м, включая гараж на 2 авто

- на первом уровне – гостиная, столовая, кухня, 2-3 жилые комнаты, 2 санузла, тех. помещение

- на втором уровне спальня хозяев, гардеробная, ванная комната, кабинет

 

Вариант 1 и 2 одного архитектора, вариант 3 другого

варианты 1 и 3 со вторым светом

1770949204_1-1.thumb.jpg.0cea38461d461faea28c4c18634600f6.jpg

67788574_1-2.thumb.jpg.8b9e56021415cd6fbf9a3abfb886f92e.jpg

2087687864_.jpg.a3b154506d9fd84e8c2a5b63fedd3094.jpg

1988340827_-.jpg.e89fef7517aa78872133643b7c6d8bdc.jpg

1533355217_2-1.thumb.jpg.a47608857b27d51dc3b08c3ef9fd49a6.jpg

377062891_2-2.thumb.jpg.4bef77d85d53c74d74028bac98bfb7e2.jpg

Посилання на коментар
Поділитися на інших сайтах

как-то странно ваш первый архитектор относится к вентканалам. и еще он достаточно интересно машины в гараж расставил.

 

у второго архитекотра не понял где камин.

 

все три варианта весьма закручены. особенно по водным коммуникациям.

перекрытие во всех случаях - только монолит, скорее всего. да и вся стройка весьма недешевая...

Посилання на коментар
Поділитися на інших сайтах

как-то странно ваш первый архитектор относится к вентканалам. и еще он достаточно интересно машины в гараж расставил.

 

у второго архитекотра не понял где камин.

 

все три варианта весьма закручены. особенно по водным коммуникациям.

перекрытие во всех случаях - только монолит, скорее всего. да и вся стройка весьма недешевая...

 

спасибо! водные коммуникации меня тоже очень смущают, хотя архитектор 1 заверяет, что это будет совсем не дорого. И еще он планирует в подвале делать тех.помещение, чего мне не очень хочется (опять же заверяет, что это не дорого, просто оставить стены без отделки)

Посилання на коментар
Поділитися на інших сайтах

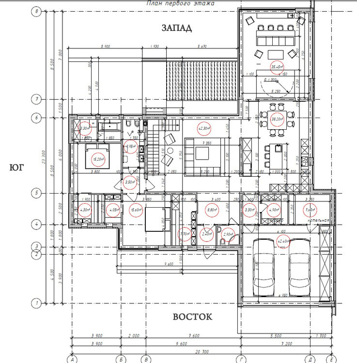
Сегодня архитектор прислал объемы варианта 2 (с чердачной крышей и без второго света).

Планировка 1 и 2 варианта, нарисована по моим эскизам, но прочитав форум, понимаю, ванную комнату на втором этаже не очень правильно размещать над кухней или гостиной. Архитектор ничего не говорил мне об этом.

Не мало ли окон?

663295613_-.jpg.30d8f7bd04fc375cd1a0a85b7eaf566a.jpg

416070451_-.jpg.5e26386f8e542b995e6eb4f229adba06.jpg

1136124463_-.jpg.46a8d78fae5895c0f359017eee927b2b.jpg

1601577079_2-.thumb.jpg.1d80f28d5b1cb5ff49de20b9bf4b912d.jpg

1473088928_2.thumb.jpg.99a06de2ea3ef82fb9eb594d742397ed.jpg

Посилання на коментар
Поділитися на інших сайтах

Зря вы так легко сдались.

 

Если идти на поводу у наших строителей и проектантов то в 95% получится как в том советском анекдоте танк. Ну, в нашем случае, народное короедное зодчество начала 21 сторічча.

 

Вопрос зачем? Ведь сначала были правильные идеи.

 

а так проект выродился в сакральное "простота хуже воровства". И кому проще? Есть же готовые объекты с плоскими кровлями, с консолями. Есть люди, кто все это делал, есть конструктора и строители.... достаточно было просто подъехать и посмотреть...

3.thumb.jpg.dca96f6a0af0230b5f398aef2ac70fe8.jpg

Посилання на коментар
Поділитися на інших сайтах

Вариант 3 интереснее и по планировкам и по фасадам. если потянете финансово, то остальное не проблема.

варианты 1-2 внешне - сельский дом для зажиточной крестьянской семьи.. гараж только побольше, чтобы трактор въезжал :)

 

Техпомещение в подвале - в зависимости от грунтов, может привести к удорожанию строительства (незначительному в Вашем случае), а может все равно придется делать достаточно высокие стены фундамента - оно само и получится. С точки зрения прокладки коммуникаций техподполье конечно лучше.. иначе есть риск потом разбивать пол, чтобы добраться до трубы канализации..

Посилання на коментар
Поділитися на інших сайтах

Не мало ли окон?

 

Вместо предлагаемого навеса, зимний сад просится. Варианты моделей зимних садов можете посмотреть у нас на сайте. Может придется и изменить план здания, пока проект не утвердили.

Посилання на коментар
Поділитися на інших сайтах

Створіть акаунт або увійдіть у нього для коментування

Ви маєте бути користувачем, щоб залишити коментар

Створити акаунт

Зареєструйтеся для отримання акаунта. Це просто!

Зареєструвати акаунт

Увійти

Вже зареєстровані? Увійдіть тут.

Увійти зараз
×
×
  • Створити...