Перейти до публікації
Пошук в
  • Додатково...
Шукати результати, які містять...
Шукати результати в...

Монтаж системы отопления в двухуровневом доме

Гість Serg80

Рекомендовані повідомлення

Всем доброго времени суток!

Зима на носу, самое время :(установить в доме с нуля отопление (раньше были печки, много, много печек).

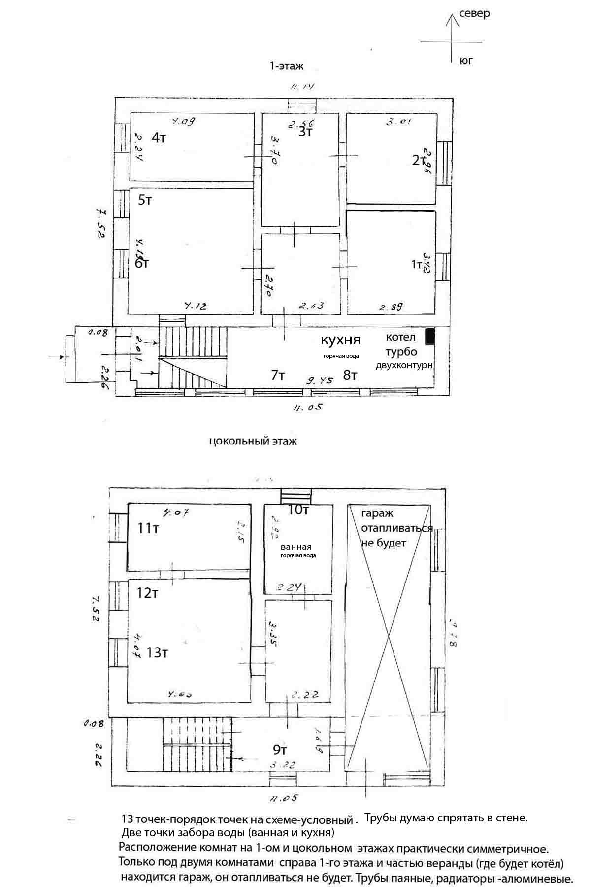
С котлом более-менее разобрался-решил рискнуть и взять висман витопед 100 турбо на 24квт с сервисом за 200км. А вот с разводкой труб проблема - надо же как-то сделать так чтобы все работало и обогревало:), но при такой конфигурации дома и месторасположении котла -есть сомнения. Трубы будут паяные, спрячу в стене, радиаторы алюминевые. Обращаюсь к специалистам: посмотрите пожалуйста план дома www.stroimdom.com.ua/forum/attachment.php?attachmentid=9832&stc=1&d=1223381710и может что подскажете. Заранее благодарен.

1525027951_.thumb.jpg.e9f4d979369e681d972c8d4958c70bb3.jpg

Посилання на коментар
Поділитися на інших сайтах

От котла две подачи. Первый и второй этажи. От каждого стояка две ветки вправо и влево. Примерно одинаковых по длине и мощности отопительных приборов. Получится двухтрубная тупиковая схема. Если прокладка трубы позволяет пройти по периметру дома ниже дверных проемов. То можно рассмотреть вариант попутной двухтрубки.
Посилання на коментар
Поділитися на інших сайтах

Створіть акаунт або увійдіть у нього для коментування

Ви маєте бути користувачем, щоб залишити коментар

Створити акаунт

Зареєструйтеся для отримання акаунта. Це просто!

Зареєструвати акаунт

Увійти

Вже зареєстровані? Увійдіть тут.

Увійти зараз
×
×
  • Створити...