Перейти до публікації
Пошук в
  • Додатково...
Шукати результати, які містять...
Шукати результати в...

Возможность размещения дома на участке

Николай В

Рекомендовані повідомлення

Всем здравствуйте. Имеется участок площадью около 6 соток (примерный размер 12*50) на Осокорках. В настоящее время на нём размещается стандартная старая постройка 70-х годов - небольшой 2-х этажный дачный домик. Первый этаж - кирпич, второй - "деревяшка". К нему пристроен деревянный одноэтажный сарайчик. Размер строения 8.3*4.5 плюс лестница на второй этаж с верандочкой. Стоение узаконено, имеется паспорт БТИ. Размещение на участке примерно такое:

1741999055_3-Model.thumb.jpg.a319ec6d183e678ce7a9d6088ac96c6a.jpg

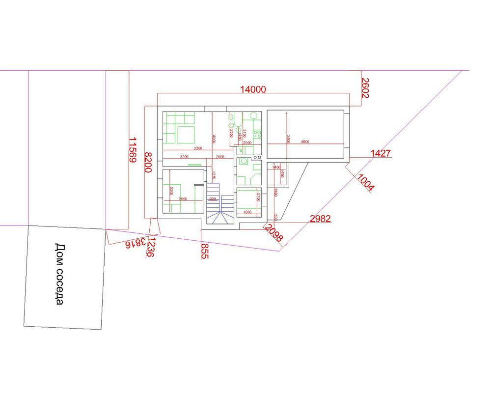
Поскольку строение очень старое, та и далеко не отвечает хоть каким-то требованиям сегодняшнего дня, то хотим его как-то перестроить. В результате хотелось бы получить что-то следующее (примерная конфигурация первого этажа):

589804735_3-Model1.thumb.jpg.5e82d05860f574cab10ea37fa6c3256e.jpg

Фактически слева, сверху и снизу желаемое строение остаётся на месте существующего.

402080522_3-Model2.thumb.jpg.276cc18eba115b24d25cef972aa730eb.jpg

Есть ли смысл вообще заниматься стройкой на таком участке? Хотелось бы получить разрешительные документы перед началом строительства. Насколько это реально? Как поступить в данной ситуации?

Возможно кто-то сталкивался с аналогичной ситуацией? Как решали вопросы? Ведь на Осокорках таких участков много.

Заранее спасибо.

Посилання на коментар
Поділитися на інших сайтах

У Вас есть возможность оформить реконстрконстркуцию существующего домика. При этом Вы должны вписаться в пятно на участке существующего строения.
  • Лайк 1
Посилання на коментар
Поділитися на інших сайтах

Спасибо за ответ.Появился новый вопрос: а разве при реконструкции нельзя пристроить к существующему строению кухню, или санузел, или гараж, т.е. увеличить площадь. При этом три стороны остаются на том-же месте, а смещается только одна.
Посилання на коментар
Поділитися на інших сайтах

Створіть акаунт або увійдіть у нього для коментування

Ви маєте бути користувачем, щоб залишити коментар

Створити акаунт

Зареєструйтеся для отримання акаунта. Це просто!

Зареєструвати акаунт

Увійти

Вже зареєстровані? Увійдіть тут.

Увійти зараз
×
×
  • Створити...