Перейти до публікації
Пошук в
  • Додатково...
Шукати результати, які містять...
Шукати результати в...

Помогите советом по поводу електроразводки в 1-но комнатной квартире

Vlad_

Рекомендовані повідомлення

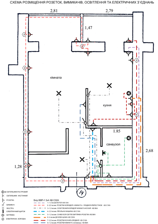
Уважаемые форумчане, помогите советом по поводу грамотности планирования електроразводки в 1-но комнатной квартире (сирец) а так же правильности выбора номинала автоматических выключателей и разводки електрического щитка

1442983484_.gif.74f20cfd69db2eeecd1c6f7d17c4715a.gif

1676692333_.thumb.gif.e3dfbf98dba9bd0c255a03537631c996.gif

Посилання на коментар
Поділитися на інших сайтах

Створіть акаунт або увійдіть у нього для коментування

Ви маєте бути користувачем, щоб залишити коментар

Створити акаунт

Зареєструйтеся для отримання акаунта. Це просто!

Зареєструвати акаунт

Увійти

Вже зареєстровані? Увійдіть тут.

Увійти зараз
×
×
  • Створити...