Перейти до публікації
Пошук в
  • Додатково...
Шукати результати, які містять...
Шукати результати в...

Кухня на заказ

slawa_n

Рекомендовані повідомлення

Добрый день,

 

Ищу мебельных дел мастера, который сможет сделать кухню под ключ.

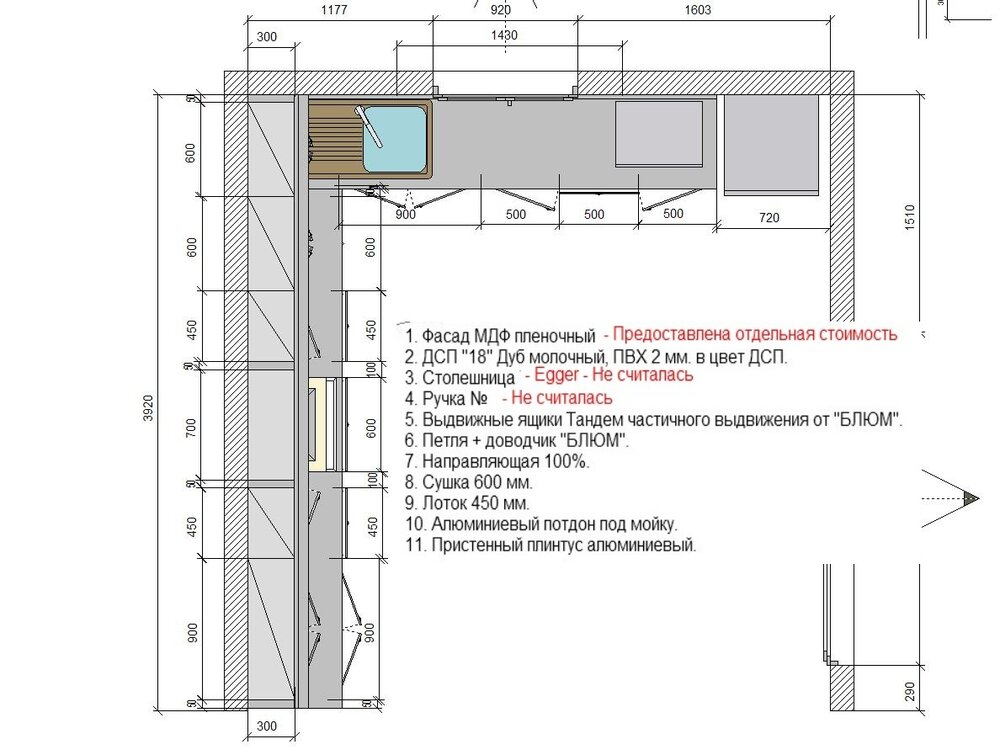
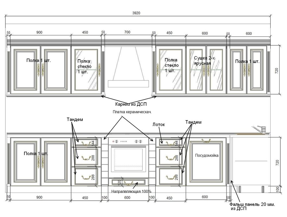
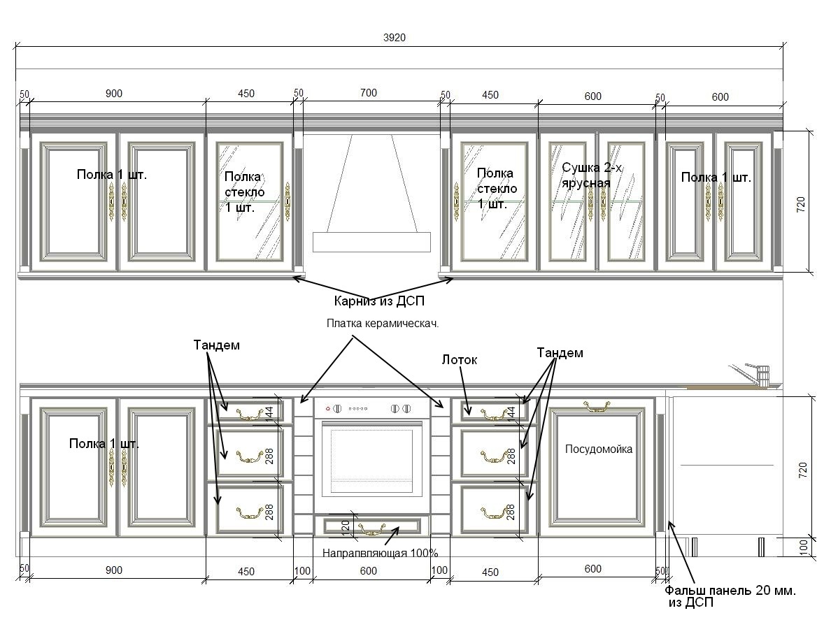
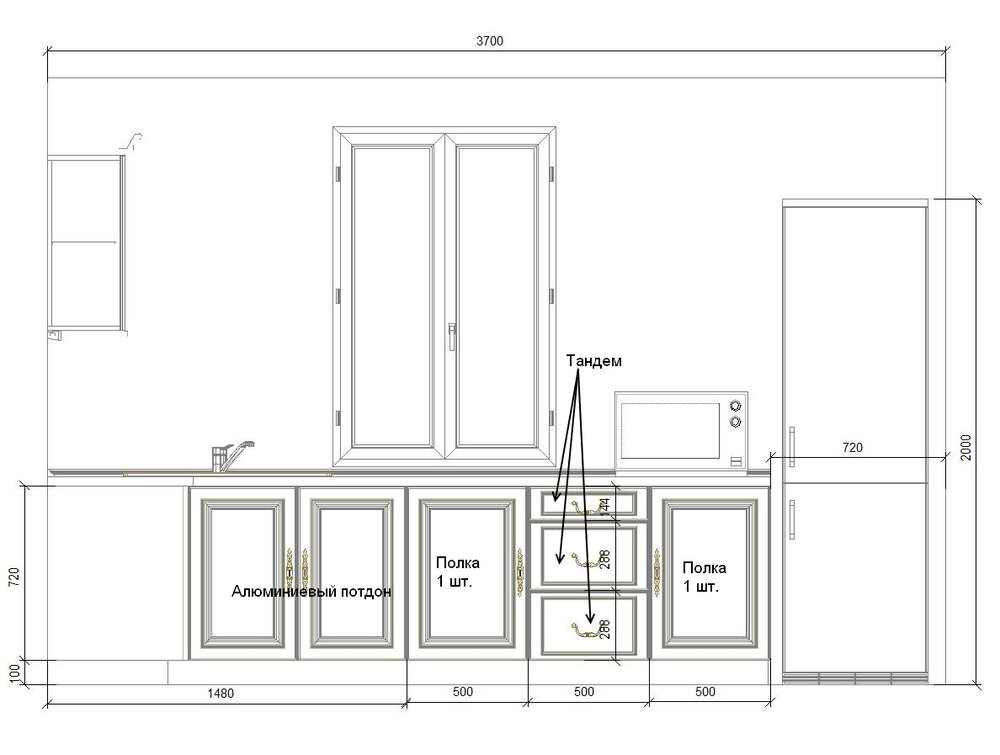
Остановился на Берестовском фасаде 16 мм, пленка ясень жемчужный фрезерный рисунок 41 с косичкой. 411 грн. Думаем над патиной.

Столешницу хотелось бы EGGER цвет F104 мрамор латина 38 см. 856 грн.

Кухонная техника куплена. Спецификацию вышлю при необходимости.

1.thumb.jpg.2a83838872e10f1055e9fd29eaddb556.jpg

2.thumb.jpg.e670d5b5696ee82d248f0f21fce8060c.jpg

3.thumb.jpg.5392f25d2b8c6c2478ce9d5077965c7c.jpg

7.thumb.jpg.e4057e15de77aeaa86059f676da94b12.jpg

Посилання на коментар
Поділитися на інших сайтах

Створіть акаунт або увійдіть у нього для коментування

Ви маєте бути користувачем, щоб залишити коментар

Створити акаунт

Зареєструйтеся для отримання акаунта. Це просто!

Зареєструвати акаунт

Увійти

Вже зареєстровані? Увійдіть тут.

Увійти зараз
×
×
  • Створити...