Перейти до публікації
Пошук в
  • Додатково...
Шукати результати, які містять...
Шукати результати в...

Крюковщина. Дневник строительства дома на 230 кв.м.

Sentrax

Рекомендовані повідомлення

Всем привет.

Ну что ж, пора и мне завести тут свою веточку о строительстве своего дома. Не могу сказать, что выбор был легким. Даже до текущего результата путь был достаточно тернистым, ухабистым и со всякого рода ловушками:) В итоге, точка невозврата была минована весной 2011-го года, когда волевым решением мы с женой показали средний палец риэлторам города Киева, и отказались покупать 3-ку на борщаговке в пользу, достаточно дерзкой на тот момент альтернативе – строительства своего собственного дома. Далее я трансформировался из читателя в писателя и тут же вступил в полемику со старожилами форума по поводу того, что раньше яйцо или курица, то есть проект или земля. Ну, старожилы на то и старожилы, чтобы наставить на путь истинный заблудшего чайника. Около полугода искал участок. На форуме есть тема с моими душевными терзаниями по этому поводу. Чисто случайно подвернулся мне участок в Крюковщине. Достаточно оперативно нам он понравился и мы его купили, отмаслав при этом весомую часть, так и не ставшей родной, панельки на борщаге:)

 

Потом настал мучительный период выбора проекта, где я мог лишиться зрения до первой звезды:) Выбирал я долго, перерыл все сайты польско-русско-украинского творчества но так и не нашел «своего» дома. Было решено обратиться за помощью к архитектору. Спасибо, обитающему и на этом форуме Тарасу (Tarras), который выступил посредником между реальным миром и моими фантазиями:), cледует заметить, что выступил он просто на отлично. В итоге от вожделенного в самом начале дома с плоской кровлей аля Хай-Тек Маями Бич, я пришел к достаточно скромному дому с вальмовой кровлей небольшого уклона. Вот такие вот метаморфозы случились с моим восприятием окружающего мира…

 

Итак, задачи поставлены, цели обозначены. За работу!

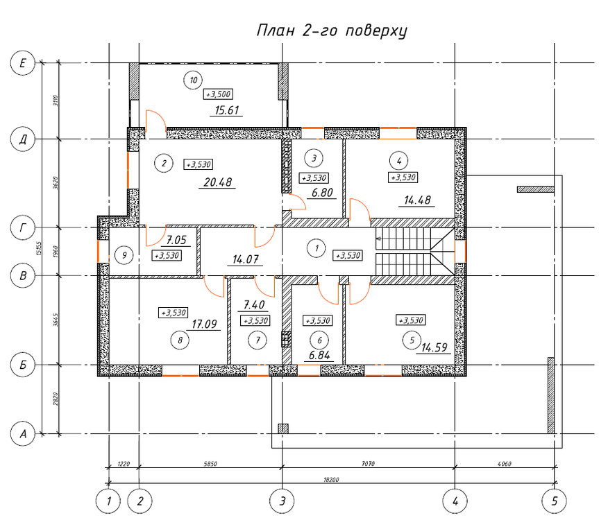
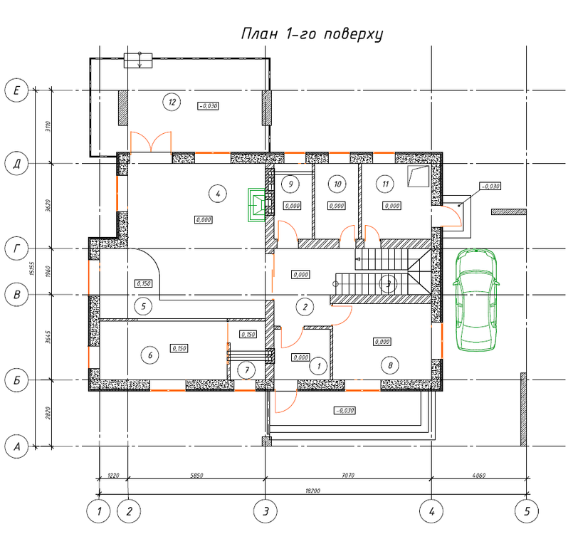
Планы и фасады внизу

2042420682_1-.thumb.png.c8f5e382ba6539de7b1c91dd69d1eb25.png

700580178_2-.thumb.png.87b6d84e336cde2a9309a7c3a543b221.png

507791467_3.thumb.jpg.7487460287c16662c46de1a07b0a4767.jpg

Посилання на коментар
Поділитися на інших сайтах

Поздравляю с открытием темы!:rolleyes:

Хорошей погоды, профи-подрядчиков и успехов в стройке!!!

  • Лайк 1
Посилання на коментар
Поділитися на інших сайтах

Сразу оговорюсь, что фундамент уже залит. Так уж получилось, что на тот момент времени было в обрез и я не смог ничего написать. Вот, наконец-то появилось свободное время. Буду догонять.

Около 2-3 недель я искал бригаду. В виду того, что я не являюсь внебрачным сыном Билла Гейтса, в основном голосовал кошельком. В итоге выбрал ребят из Фастова, прораба зовут Саша, на форуме обитает под именем Алавер. Бригада, молодая, парням лет около 30-ти. Не пьют, за все время работ я не видел чтобы хоть один пил что-то кроме воды:) Бригадира зовут Сергей. Отличный парень, спокойный и воспитанный, общаться с ним крайне легко.

В виду того, что в доме присутствует подвал под частью здания, решил забить на заливку фундамента в грунт, и лить в опалубку от самой подошвы. Перед рытьем был приглашен бегающий рядом бульдозер, который за 1 час сделал мне абсолютно ровный участок без бурьянов:) Цена вопроса 400 грн. Фоток этого действия нету.

Потом был вызван экскаватор, который за 5 часов вырыл и подвал и траншеи. За что было уплочено 1250 грн.

Глубина котлована 2,65 от уровня земли. На глубине 2,3 пошла вода, чем очень опечалила меня и монолитчиков. Оперативно был вызван Тарас, и принято решение уменьшать высоту подвала с 2,4 до 2,2 и поднимать участок на 0,2 м. Вскрытую воду было закидано шебнем и песком, после чего она больше не появлялась. Как-то буду решать вопрос гидроизоляции по месту.

1524918415_.thumb.jpg.4647dad1a90cb43cfc41c3aa533f3080.jpg

IMAGE_195.thumb.jpg.37dc64a269e239544e6b3f9a8c07a1e7.jpg

IMAGE_196.thumb.jpg.1f28aa2359eb3442c705423cbd39a9c3.jpg

IMAGE_197.thumb.jpg.c76f9972049ccbd26be1644e5b6491a7.jpg

  • Лайк 1
Посилання на коментар
Поділитися на інших сайтах

В виду того, что строюсь я не один, а с двумя товарищами, участки которых по соседству, был принято решение скинуться и купить 15 кубов сухостоя 40-ки. Цена за куб с доставкой 930 грн. Уцелевшее дерево после заливки 3-х фундаментов пойдет либо в утиль либо на леса.

Также куплено 10 тонн щебня 5-20 и 10 тонн песка, цена - 3000 грн с доставкой.

Посилання на коментар
Поділитися на інших сайтах

После долгих поисков нашел арматуру по 6250 за тонну. Арматура 12 НДЛ (6-12). По проекту треовалось 2,75 тонны 12-й и 250 кг - 6-й, + 50 кг вязальной проволки. На все про все ушло 20 тыс грн с доставкой. До прибытия арматуры, ребята подчистили траншеи сделали подсыпку щебнем и песком и утрамбовали это дело вибромашиной. Начался этап вязки арматуры и возведения опалубки. Для гнутия хомутов отец сварил мне приблуду, которую я не сфотографировал, но на форуме есть ее чертежи.

Опалубку собирали на саморезах, коих ушло 12 пачек по 250 штук и 5 пачки по 200 штук. Также использовались шпильки 8-ки 2-х метровые. всего ушло 48 шпилек. Еще интерсный момент это биты для саморезов. Постоянно брал биты хитачи 7 грн штука... из слов ребят я понял что они сделаны из г*на. Последний раз я не успел заехать в практикер и мне пришлоось покупать биты в небольшом строительном маркете Крюковщины. хитаевских бит не было, пришлось взять китайские 10 грн за 3 штуки. Одной битой ребята дособирали всю опалубку... так вот оно че Михалычь (с) Внизу немного фоток

0a4af3eed95a.jpg.7a67a4e4c0b32ea635c3abca1c2c1eb0.jpg

2ebff9cdfe74.jpg.54f016a3bf89b7ff3efe1cc528727224.jpg

221b99862bb8.jpg.887c4df605685750d81f8146f70d172d.jpg

063ccad3ae79.jpg.1d240997484a3e0201c61d764ef2fac0.jpg

1f3d5518aeec.jpg.7dcd8bcc50721aff4422a5c4d3e25282.jpg

b7527024e480.jpg.af72fbdddccfb3a14dc4fa764666c541.jpg

335ba3a84a23.jpg.ee804810d1bbc4a91b74dc41f6e205ef.jpg

34287d644b7d.jpg.3fc1d053673687ec9c47aea1b60eb428.jpg

c19f975f10e4.jpg.eec7f12695d824073e3e4cdd85ef7166.jpg

c61bb9f83b89.jpg.8afc0288b54a1fc824cc59c99f3d933f.jpg

c4f77a2d36c0.jpg.f6b3284105274bdee433e27a592bfa57.jpg

7d1f7dbe01f1.jpg.3d4064ef6da25b8f76fdba0e05fb5563.jpg

  • Лайк 1
Посилання на коментар
Поділитися на інших сайтах

Пока вязалась арматура я искал бетон. Нужно было бетон В20 П3, по проекту 56 кубов. После интенсивных поисков нашел бетон по 607 грн за куб с доставко. Бетон от ковальской. Это средняя цена, потому как было предложение от Жулянского завода ЖБИ по 590 грн за куб с доставкой. Заливать решили в пятницу, в субботу у меня было мероприятие на 4 часа дня и я хотел до него отстреляться. Но мне так не было, поставщик смог организовать машины только на послеобеда, а пятничное послеобедье в Киеве, да еще и на окружной это очень опасная штука, миксер может приехать уже с куском фундамента внутри. Потому пришлось согласиться на заливку в субботу утром. Я попросил первый миксер на 8 часов утра, и мне пообещали его. Но как и все в нашей стране у нас делается через филейную часть. Первая машина пришла в 9.15 и привезла отличны бетон, который замечательно начал укладываться в стены подвала. Ребята решили лить подвал в 3 захода, с интервалом в 40 минут, чтобы минимизировать опасность разрыва опалубки, ведь там высота заливки 2,5 метра. На половине укладки первой машины, приперлись еще две, хоть их просили выдержать интервал 40 мин между машинами. Приперлись и стали на солнцепеке выключив миксер, бо ведь соляра палится. В итоге 2 другие машины укладывались уже не так сладко как первая. Добрый дядя в клетчатой рубашке предложил долить водички и был послан в увлекательное турне. После укладки двух нетекучих миксеров я поговорил с начальником логистики и договорились отправлять следующие машины по моему звонку. Но и тут меня ждал облом, машины начали задерживаться. Так что не вышло у меня организовать идеальную логистику, ну и хрен с ним. Последнюю машину принимали без меня, я уже отчалил на мероприятие.

Внизу немного фоток. На последней фотке, как раз, бригадир Сергей.

66efb273c3e5.thumb.jpg.678a6337983d287dd63ffe9dbe57fc0b.jpg

81b21d7c2ced.thumb.jpg.a88f55b6930d435a962cf5a24792857c.jpg

ba4880984950.thumb.jpg.cee052f1505ac31ae4dc23d4130f42cb.jpg

13e23beaab9b.thumb.jpg.c899f251b6783f2d43931a6975b906c5.jpg

c90ca75c4f6b.thumb.jpg.ba93d9ba47abb562ccf14cf94ade525f.jpg

7c3d55947f73.thumb.jpg.cf4fa6c5fa93d348f59cad80b507b602.jpg

1d33b5141c7d.thumb.jpg.8e7dde23d25e2f3bc133d9d9b5d838dc.jpg

680e18129e1f.thumb.jpg.af13094ecba6526a82f81df0953b4ca6.jpg

75a00bef312f.thumb.jpg.36555bb7229b82ff9ea9d92b46e560a6.jpg

Посилання на коментар
Поділитися на інших сайтах

На следующий день после заливки поехал поливать. И тут же заметил что в одном месте организовалась не сильно приятная усадочная трещина. Видимо в процессе заливки вверху немного разошлась опалубка и верхние слои бетона при усадке треснули. Размер трещины сантиметров 12. В принципе, это единственная беда, если ее так можно назвать:). Поливал рано утром и после захода солнца. Занимался этим делом около недельки.

Внизу порция фотографий. На последней фотке как раз видно место, где, как мне кажется, вверху разошлась опалубка и организовалась усадочная трещина.

ПЫ.СЫ. В виду того, что окончание заливки я не видел, был приятно удивлен тем, что ребята перед тем как уехать убрали на участке, мусор поскидывали в мусорные пакеты, спрятали инструмент, накрыли доску и сложили арматуру. За что им большое спасибо, обязательно оставлю отзыв о них в белом списке.

cdc7401c6c59.thumb.jpg.fcb8efbea75598852b9552ce50747721.jpg

1aa277e1349a.thumb.jpg.bc213bba43c92281ede1ca289dabe8ca.jpg

52a4acb38a02.thumb.jpg.e5ab20c7a85b6e4b15811f7391120053.jpg

1a48f6fdcf56.thumb.jpg.9ecd0fd7610301dfa4577687f3ad15c0.jpg

  • Лайк 1
Посилання на коментар
Поділитися на інших сайтах

  • 9 місяців потому...

Итак, пришло время потратить кровно заработанные. Что я и начал делать месяц назад купив 90 кубов кератерма.

Блок купил по 15.35 за штуку.

Сегодня доставили первых 2 машины - 1500 грн. машина.

Блоки на палетах в термоусадочной пленке. Боя не заметил, блоки с хорошей геометрией, на ощупь и взгляд добротный качественный материал. Посмотрим что там внутри палет, когда будут вскрывать и ложить.

 

Кирпич взял по 1.30 с доставкой, если верить поставщику то нежинский кирпич. На вид очень даже замечательный, с ровными краями, бой минимальный.

 

Бетон для монолитных участков и поясов будет замешиваться на месте, для этого купил 10 тонн цемента 400-го по 21 грн. за мешок, 30 тонн щебня 150 грн/тонна с доставкой и 30 тонн песка - 75 грн/тонна с доставкой.

 

Для кладки керамоблока купил Ферозит 231 - 29 грн. мешок.

 

Доставка цемента и фрозита одной машиной с манипулятором - 1400 грн.

 

Работа крана 800 грн. Крановщик очень толковый и что важно, очень быстрый:) за 3,5 часа разгрузили 2 фуры кератерма и 1 фуру кирпича.

 

Добавлено через 14 минут

А теперь о самом капце и как перезимовал мой чудо фундамент. Я думаю стоит написать, что те замечательные ребята со строительной организации Алавер, оказались на удивление скрытной командой американских элитных морских котиков. Найти их для разборки опалубки оказалось непосильной ношей для моего хрупкого бренного тельца. Посему после 1,5 месяца поиска, выслеживания и звонков с телефонов всех моих друзей, а звонить можно было только один раз, потому что после первого звонка телефон автоматически фиксировался абонентом и звонить ему(абоненту) с этого номера было равносильно звонку с кирпича М100 на МКС. Так вот, тогда я понял что запахло жаренным фундаментом. Далее я подрядил своего кума, отца и мы вкусили, что же такое разбирать опалубку, когда тот кто ее делал не думал ее разбирать:) Это был АД, 4 дня мы шахтерили там, у кума после первого дня аж температура поднялась, видимо организм не понимал, что происходит и на всякий случай решил бороться с вирусом, который проник в его организм и убивает его. Кровью и потом... и шуруповертом таки победили. После чего было вызвано 2 30-ти тонных грузовкика с грунтом, шаровым как по мне, 500 грн. за машину, засыпано пазухи. Тракторец гоцал по фундаменту и весело прятал под грунтом пустоты в которых несколько дней назад мы чуть не лишились зрения... до первой звезды.

Следует заметить, что тракторец колбасил все это аж полторы смены:) 250 грн/час... вот как-то так получилось... А вырыл все это за 5 часов... бедаааааа...

  • Лайк 2
Посилання на коментар
Поділитися на інших сайтах

.... Нужно было бетон В20 П3, по проекту 56 кубов. ....

 

Подскажите, каков объем миксеров, что вы заказывали?

На фото камаз какого объема?

Посилання на коментар
Поділитися на інших сайтах

Подскажите, каков объем миксеров, что вы заказывали?

На фото камаз какого объема?

Заказывал 8-ми кубовые и один миксер 5-ти кубовый. На фото 8-ми

 

Добавлено через 28 минут

Вчера были заложены первые камни будыночку у Крюкивщыни. Но перед этим мне срочно нужно было купить рубероид, и как раз в пятницу пришло СМС о невиданной щедрости в Практикере... Мол заходи к нам всяк люд имеющий семейные 10% карты и получи сверху еще -20%... Я сразу думал скупить все что нужно на год вперед, и даже то что не нужно, но может понадобиться, чисто теоретически:)) Поехал утром в Практикер, вогрузил 3 рулона на тачку и повез на кассу, именно на кассе я узнал, что Практикер видимо основала семья евреев, выходцев из Германии. На стройматериалы вообще не распространяется никакая скидка:))) Вот так и живут, немецкие строительные гипермаркеты с украинской начинкой. Попускав пену в администрации я с семейством поехал на участок ложить или точнее класть первый камень.

Посилання на коментар
Поділитися на інших сайтах

Кстати, чуть не забыл вспомнить неприятный момент. Когда положили первые блоки, я понял что попал на растворе:) Я писал выше, что купил готовый "теплый" раствор, и судя по описанию сего чуда расход 14 кг на 1 м.кв. кладки толщиной 10 мм. С учетом этого я его и брал. Если перевести это на блоки, то с одного мешка можно положить около 16 блоков... на практике же оказалось максимум 11. Что привело меня в бешенство, потому что я контролировал сам толщину шва, которую клали рабочие, и там были те 10 мм. Поняв, что я попал, я позвонил на завод Ферозита, и возмутился:) На что невозмутимый представитель завода сказал, что мол у всех все "ок", один я Д"Артаньян. После небольших переговоров, вменяемых прошу заметить, представитель сказал, чтобы я дергал дилера, продавшего мне раствор, чтобы он показал, что все там в ажуре или если тот откажется или будет юлить он пришлет своих бойцов строительного фронта и докажет мне что они за "базар" отвечают:). Очень хотелось бы верить, что это так.

Приехав домой и хорошенько подумав, я пришел к выводу, что таки может быть такое что часть раствора тупо проваливается в поры, что привело к почти 40% перерасходу. Перед призывом технологов решил придумать приблуду для нанесения слоя раствора с минимальными провалами в поры блоков. Я знаю что некоторые используют сетки, некоторые туалЭтную бумагу, но как по мне это все не то. Сетка точно идет лесом, так как нарушает проникновение раствора в поры на нужную глубину, что как по мне ведет к уменьшению прочности кладки, а вот туалЭтную бумагу чисто эстетически не могу положить:))) Так что сегодня буду мастерить приблуду.

Посилання на коментар
Поділитися на інших сайтах

Сетка точно идет лесом, так как нарушает проникновение раствора в поры на нужную глубину, что как по мне ведет к уменьшению прочности кладки,

 

Это - не более чем заблуждение :) Но хочется узнать, что вы придумали вместо сетки и обуховского продукта ;):D

Посилання на коментар
Поділитися на інших сайтах

Это - не более чем заблуждение :) Но хочется узнать, что вы придумали вместо сетки и обуховского продукта ;):D

Так вооот, приблуду я то смастерил, простая как 5 копеек... но, эффект был ровно обратным. Расход раствора увеличился. То есть с одного мешка получается положить около 9 блоков, напомню что вручную ложилось 11 блоков с одного мешка. Производитель заявляет что с одного мешка можно положить около 16 блоков. Бедаааа...

Как и говорил представитель завода, я проинформировал дилера, тот в свою очередь кого-то с завода и все завертелось... завтра в 9 утра, у меня на участке будет делегация:) Честно говоря мне не понятно, что они там будут делать, и каким нужно быть мастером чтобы уложить сие чудо на 16 блоков слоем в 1 см? Ну что же, пускай принимают вызов:)

Пока рабочие кладут обычным цементно-песчаным раствором 1 к 4-м + пластификатор + ускоритель твердения... вот такой вот кампот.

Посилання на коментар
Поділитися на інших сайтах

Сегодня приехал спец от ферозита, которого привез дилер. Пообщались, вменяемый человек, с ходу сказал, ежели я не доволен товаром, дилер оформит возврат и материал заберут, попадаю только на доставку. Из его слов, перерасход в 20-30% это норма, и я должен был понимать это... есть доля правды в его словах, но я хотел верить в сказку:))) Но реальность такова, что я оказался не готов тратить на раствор около 10-12 тыс. грн. Посему оформил через дилера возврат.

 

Кстати о дилере, брал цемент, кирпич, Кератерм и раствор через Теризо. Очень рекомендую, вкусные цены и индивидуальный подход к каждому клиенту. Работаю через менеджера Антона, на форуме обитает под ником AntonArtBud. Очень часто он ломает полностью цены конкурентов:)

 

Внизу немного фоток растущего домика. На одной из фоток видно как организовывается собственный пруд:)) Вода в подвале все прибывает, а насос ее все выкачивает в пруд.

2013_05_27_007_1.thumb.jpg.bd0f0dfad48d8c50abe0be5b4e7d2362.jpg

2013_05_27_009_1.thumb.jpg.6dc0528b904a32a352128af1cd2503dc.jpg

2013_05_27_010_1.thumb.jpg.4e5dfee07e7abd0e041c8d68089015c4.jpg

2013_05_27_011_1.thumb.jpg.7fea494f0b997fb5497a868f26a35987.jpg

2013_05_27_012_1.thumb.jpg.b7c998d4f2f9e38a872df4ab4b953b10.jpg

2013_05_27_014_1.thumb.jpg.ed8f2898e8f14e36cbb897066544a822.jpg

  • Лайк 1
Посилання на коментар
Поділитися на інших сайтах

  • 2 тижні потому...

Итак, разобрался с "теплым" раствором он уехал назад откуда приехал. Чтобы понять что это не мое мне понадобилось 27 мешков:) + попал на обратную доставку 700 грн.

Строители уговорили на углах и вокруг проемов ложить кладочную сетку. Залито монолитное перекрытие над подвалом, и выгнано под армопояс 3 стены. Возникла проблема с плитами перекрытия, доставка только на 2-е июля, что как бы печалит. Но благо строится 2 объекта, потому если все работы будут сделаны раньше, рабочих можно перекинуть на второй объект.

2013_05_29_003_1.thumb.jpg.cf08b7998296f5ade0ff4865b43a6503.jpg

2013_05_29_006_1.thumb.jpg.1ccb45e6b102186ed350a81cb4886b01.jpg

2013_05_29_008_1.thumb.jpg.ee176712128d690f7591b168d06e6868.jpg

2013_05_29_010_1.thumb.jpg.08a0a843459d0e736bb45abff0a606cf.jpg

2013_05_29_013_1.thumb.jpg.94a0433e047db11db89e0760c2a8d13f.jpg

_MG_2687_1.thumb.jpg.9297b75b74193b9e2de780e512c90101.jpg

_MG_2688_1.thumb.jpg.a530b17d52020c3c461f88b0e2e3cc40.jpg

_MG_2691_1.thumb.jpg.d544645b16d5e028530eb0df5e3df6ca.jpg

_MG_2708_1.thumb.jpg.c6d94b58bc885c6eb5ecb7402f8894cb.jpg

_MG_2710_1.thumb.jpg.e5cce95c302dc185a4007dc2f42bcf0b.jpg

Посилання на коментар
Поділитися на інших сайтах

Это 38-й кератерм на фото? Утеплять его будете?

Да, по проекту 80 мм вата, но я решил делать 50 мм и в следующем году, посмотрю как кератерм перезимует да и пусть устоится здание.

 

Добавлено через 46 минут

Дошло дело до кладки вентканалов и дымохода камина, и на меня напали муки выбора. По проекту дымоход 140 на 270, но такой дымоход подойдет разве что для небольшой закрытой топки, а душа жаждит большой открытой с вертелом для ***а:))) ну если без вертела, то хотя бы больше 0,5 кв.м. Проблема в том, что дымоход в стене 380 мм, и сделать дымоход шире без магии не получится. Или увеличивать всю стену до 500 мм, или делать полуколону в месте самого дымохода или использовать специальные блоки дымохода с совершенно безбашенными ценами 1300 евро. Расширять стену до 500 мм отказался напрочь. Полуколона тоже ввергла меня в грусть. Полазил по форуму, штудировал гугль, нашел формулы расчета размера портала по отношению к помещению, а уже от размера портала вывел нужную площадь сечения самого дымохода.

Формула следующая:

Площадь помещения / 50 и площадь помещения / 70

Это получится максимальный и минимальный размер портала в кв.м.

В моем случае это 40/50 и 40/70, то есть от 0,57 до 0,8 кв.м.

Я выбрал 0,6.

Площадь дымохода должна быть в 8-15 раз меньше площади топки. Взяв среднее значение 12 получил необходимую площадь дымохода 0,05.

Понятно дело, что 140 на 270 не удовлетворяло этому требованию, потому как площадь такого сечения 0,038. Но такому требованию удовлетворяет сечение 200 на 270, потому волевым решением я решил ложить один кирпич на торец. И ложить этот кирпич со стороны топочной на первом этаже. На втором этот ряд будет проходить в помещении ванной хозяйской спальни. Учитывая, что на стенах в этих помещениях будет штукатурка и плитка проблему толщины стенки дымохода хоть как-то получится решить.

Что касается дымохода котла, решил пока не гильзовать, а оставить штрабу. Гильзовать хочу с таким условием, чтобы если запахнит жаренным покращенням можно было бы в этот дымоход подключить твердотопливный котел, а газовый в таком случае вывести просто на улице через наружную стену. В виду того что разбираться с тем какой дымоход нужен для ТТ и подойдет ли установленный сейчас диаметр трубы для него, я решил забить на это:) У меня будет время подумать осенью и зимой:).

Посилання на коментар
Поділитися на інших сайтах

  • 3 тижні потому...

стройка продолжается. Закончен 1-й этаж, сейчас кладутся колоны балкона второго этажа. Плиты должны быть 2-го июля. потому работы по армопоясу буду начаты в понедельник. Докупил 30 тонн песка 2250 грн. + по мелочевке, кладочные сетки - нашел рядом магазинчик по 13.50 грн. за штуку, в эпицентре 20 грн., пенопласт для перемычек и армопояса нашел по 16.30 грн. (100 мм). Также нашел шпильки (для фиксации опалубки армопояса) 2-х метровые М8 по 11,75 грн. за штуку, что есть просто шара, потому как в прошлом году покупал в эпицентре по 17-19 грн.

На днях меня обрадовали, что ковальская поднимает цены на ЖБИ, сегодня уже знаю что попал на 100 у.е. Что не так уж и плохо, могло быть и хуже:)

Внизу немного фоток.

2013_06_18_107.thumb.jpg.46ef69ba8e0c25276596006f0e38fe12.jpg

2013_06_18_108.thumb.jpg.bfe043aaeec9af03ef25947e04329087.jpg

2013_06_18_109.thumb.jpg.08a05481b1a756b510ff43bf2cbcac7f.jpg

2013_06_18_110.thumb.JPG.88e710ea811fd3f89b2fa22f2fdbaa34.JPG

2013_06_18_112.thumb.jpg.8aed8c07aacd9111f9f510b10bd39373.jpg

Посилання на коментар
Поділитися на інших сайтах

  • 2 тижні потому...

Продолжу свое повествование.

Итак, за это время был полностью выгнан первый этаж, залит армопояс и несущие балки. Также были выгнаны колоны для балкона. На днях были оплОчены плиты перекрытия.

Итого по плитам 28450 грн. + 2000 грн. доставка.

Плиты оторвал по очень вкусной цене, правда свежеиспеченные, 29-го июня изготовления, потому не подымал на 2-й этаж материалы, решили дать немного плитам полежать. Ложили это все дело 3,5 часа. Крановщиком выступил все тот же отличный парень Олег, контакты которого можно найти в профильной ветке.

Итого по крану 700 грн.

Всего по работам 1-го этажа вышло 25800 грн.

_MG_2891.thumb.jpg.49295a7bc869c1d13c67cb427a9ee3fd.jpg

_MG_2892.thumb.jpg.bb85fa0c58b3e971feb93b8b53afea29.jpg

_MG_2894.thumb.jpg.94558ab9140892b7ec412a3c6a8e3a90.jpg

_MG_2896.thumb.jpg.1da66a555b90e01bb213703168f8de2d.jpg

_MG_2897.thumb.jpg.fa32847b30a23c8f227a8cdb329fdfbd.jpg

_MG_2938.thumb.jpg.54af13e032b59422684fb5e040e00198.jpg

_MG_2943.thumb.jpg.f5396f6d1044efbb86e8aadda242a17b.jpg

_MG_2945.thumb.jpg.e71e6068cc59f3f129a537a6317ab240.jpg

_MG_2948.thumb.jpg.7b2f78010b413e1dc320e97e70bde68c.jpg

_MG_2949.thumb.jpg.8d848006d89cd64c574a961844e4e40c.jpg

_MG_2950.thumb.jpg.e77898feac99232acce9d515f40bbafe.jpg

_MG_2961.thumb.jpg.9ce38aa4a56aaaf09c18de92e1041ab1.jpg

Посилання на коментар
Поділитися на інших сайтах

  • 2 тижні потому...

Произошел конфликт с строителями, приходится ждать, пока прораб доставит на объект новую партию. Пока что завез машину кератерма, и еще 5 тонн ценемента. Кератерм покупал весной все по тем же 15,35. Доставка растет блин, эта машина привезла по 1700 грн. за машину. Цемент купил по 890 за тонну. Доставка 900 грн. Брал вместе с товарищем 20 тонн, потому за доставку заплатил только 4-ю часть... экономия блин:) Кран для выгрузки добра 1100 грн. А все потому что редиска водитель, который вез цемент опоздал на час с хреном.

Сосед продал оставшийся кирпич, около 8 кубов по 1.17 грн за кирпичину, кирпич по ходу крепче чем неженский, который я покупал по 1,30. Еще произошла интересная штука, длинномер с цементом задержался на час, и ребята с Теризо компенсировали мне час простоя крана (цемент брал через них, да и вообще много материала), что, признаться, очень приятно.

Посилання на коментар
Поділитися на інших сайтах

Сегодня приступила новая бригада к работе. Начались работы по подготовке к кладке 2-го этажа, выставлены углы и заделаны зазоры межуд утеплителем и плитами.

Встал вопрос о монтировании опалубки для балкона и площадки на втором этаже возле лестницы. Скорее всего в экстренном порядке нужно искать профессиональные стойки для опалубки. Прораб нашел по 400 грн. за 30 штук за месяц, но смущает доставка туда/обратно 600 грн. Логистика вообще печалит меня все больше и больше, с каждым месяцем цены на доставку растут, не смотря на то, что цветет стабильнисть и руина подолана.

_MG_3210_1.thumb.jpg.7af71c2aa537f906007bd4cd1472b4e8.jpg

_MG_3211_1.thumb.jpg.1f9b597834f13a6bd7e02c274c256f6a.jpg

_MG_3212_1.thumb.jpg.e320b7729fcb199666748a443d659a6f.jpg

_MG_3213_1.thumb.jpg.33e6b2ee99c801cc6fbe78555504216f.jpg

_MG_3214_1.thumb.jpg.91ec76d7fa5a0b4bf8e32728c080ebb3.jpg

_MG_3215_1.thumb.jpg.1b9f63ab5c0b52ae85d4b190efc532cf.jpg

_MG_3216_1.thumb.jpg.77607fdcc71aa15ba66f54eba031898a.jpg

IMG_3209_1.thumb.jpg.f90a19351331b199c98380901cb42cdb.jpg

Посилання на коментар
Поділитися на інших сайтах

  • 3 тижні потому...

Итак, прошло почти 3 недели, работа идет медленно, потому как на стройке в данный момент работает 2 человека, прораб решает кадровые вопросы:))) Ну я и никуда не тороплюсь, лучше медленно, но качественно. За это время были заанкерованы плиты, залито перекрытие над террасой, которое одновременно выступает балконом 2-го этажа (добрые люди дали на шарик 18 стоек для горизонтальной опалубки), ну и покладено 4 ряда кератрма. Сегодня мастырилась опалубка для перекрытия возле лестничного марша. По проекту там должны были быть плиты, но я забил и решил сделать там монолит с выпендрежем в виде радиального выноса над нижним маршем, чуть позже выложу фотки.

Вот теперь я наконец-то начал задавать себе резонный вопрос, - а на кой мне такой сарай? Но как говорится, поздно - прокомпостировано. Будь я сейчас на месте себя 3-х летней давности, когда сушил голову над проектом, думаю квадратов на 50 хатку бы укоротил... Ну да ладно, это уже лирика:) Внизу несколько свитлын:)

_MG_3237_1.thumb.jpg.5c86e1fa0720cebfe2f7ce26a39eea95.jpg

_MG_3242_1.thumb.jpg.5a3e9f646ea2d49de6116873350f8202.jpg

_MG_3251_1.thumb.jpg.bee77897f048a102acc036bc2a95ec73.jpg

_MG_3253_1.thumb.jpg.4970e77cc7c7b07958a885a8d0ce2479.jpg

_MG_3255_1.thumb.jpg.b29d7a22c4b020df9371b0e5a5f73c71.jpg

_MG_3257_1.thumb.jpg.19fec84776bd5f2c68e78a304fd64f48.jpg

_MG_3258_1.thumb.jpg.7b01475dfe4592ec9e057a6fb3364587.jpg

_MG_3259_1.thumb.jpg.01a97c345beb1e15c11a63489f3c4cc5.jpg

Посилання на коментар
Поділитися на інших сайтах

Вот теперь я наконец-то начал задавать себе резонный вопрос, - а на кой мне такой сарай?

Вот и зачем такой сарай?

Посилання на коментар
Поділитися на інших сайтах

Вот и зачем такой сарай?

Нахожу только один резонный ответ - А шоб було:)Думаю это комплекс, комплекс постоянной нехватки места, выработанный за время проживания в маленьких помещениях:))))

Посилання на коментар
Поділитися на інших сайтах

Створіть акаунт або увійдіть у нього для коментування

Ви маєте бути користувачем, щоб залишити коментар

Створити акаунт

Зареєструйтеся для отримання акаунта. Це просто!

Зареєструвати акаунт

Увійти

Вже зареєстровані? Увійдіть тут.

Увійти зараз
×
×
  • Створити...