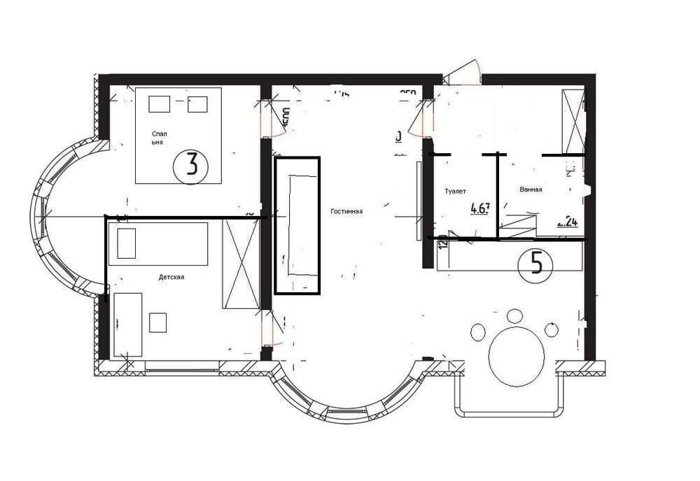
barbudas13 Опубліковано: 9 серпня 2012 Поділитись Опубліковано: 9 серпня 2012 Добрый день всем! Недавно приобрели квартиру в новострое Вот план Так неожиданно все произошло, что над интерьером и задуматься не успели (столько нюансов и хотелок), а сейчас понимаем, что без помощи не обойтись! Краткое описание НАС - молодые и энергичные))))))))), я и жена, детей пока нет. ПС рассматриваем предложения от авторов дизайна, у нас вроде как есть на примете, но пока еще не точно. Если у форумчан есть полезные советы - будем благодарны! По мере продвижения, будем сообщать чего да как. СПС Посилання на коментар Поділитися на інших сайтах More sharing options...
Елена А. Опубліковано: 9 серпня 2012 Поділитись Опубліковано: 9 серпня 2012 Ну это вы удачно зашли. 1 Посилання на коментар Поділитися на інших сайтах More sharing options...
barbudas13 Опубліковано: 9 серпня 2012 Автор Поділитись Опубліковано: 9 серпня 2012 Наверное) можно поподробнее! Посилання на коментар Поділитися на інших сайтах More sharing options...
AR Опубліковано: 9 серпня 2012 Поділитись Опубліковано: 9 серпня 2012 Добрый день всем! Недавно приобрели квартиру в новострое Вот план [ATTACH]206755[/ATTACH] Так неожиданно все произошло, что над интерьером и задуматься не успели (столько нюансов и хотелок), а сейчас понимаем, что без помощи не обойтись! Краткое описание НАС - молодые и энергичные))))))))), я и жена, детей пока нет. ПС рассматриваем предложения от авторов дизайна, у нас вроде как есть на примете, но пока еще не точно. Если у форумчан есть полезные советы - будем благодарны! По мере продвижения, будем сообщать чего да как. СПС Если Вам нужен дизайнер - ищите того, который работает (преимущественно) в Вашем стиле или близок Вам по духу. Если Вы: сами полны идей/не готовы тратить деньги на дизайнеров/не готовы "довериться" чужому (пусть и проффессиональному) мнению - не заморачивайтесь. Берите в руки карандаш, рисуйте (пусть схематично) - выкладывайте сюда, слушайте критику, делайте СВОИ выводы! Короче - ТВОРИТЕ! Вы получите помощь в виде конструктивной (и не очень) критики и, возможно, дельных советов. Молодость, энергичность и интузиазм - Ваши союзники Но не ждите что кто-то нарисует Вам квартиру без общения, без понимания Ваших предпочтений, увлечений, семейных планов, БЕЗ ДЕНЕНГ ("за спасибо" или "за пиво"). Достаточно воспользоваться поиском или пролистать несколько страниц в этом разделе, что бы понять отнощение на форуме к таким "подработкам". Удачи! 1 Посилання на коментар Поділитися на інших сайтах More sharing options...
Елена А. Опубліковано: 9 серпня 2012 Поділитись Опубліковано: 9 серпня 2012 Пройдитесь по сайту peredelka.tv/ особенно в тех частях где описывается проектная часть работ. Очень поучительно, заодно и с дизайном определитесь. 1 Посилання на коментар Поділитися на інших сайтах More sharing options...
Next Level Опубліковано: 9 серпня 2012 Поділитись Опубліковано: 9 серпня 2012 Ну это вы удачно зашли. :Dвот это рассмешили - 5 баллов barbudas13, как это не печально, но Ваш веселый оптимизм очень скоро развеется, правильно Вам посоветовали - пройдитесь поиском. Посилання на коментар Поділитися на інших сайтах More sharing options...
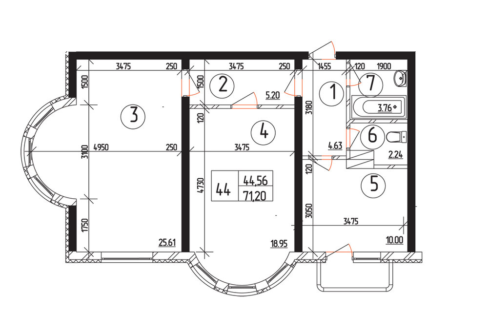
Roma_rio Опубліковано: 10 серпня 2012 Поділитись Опубліковано: 10 серпня 2012 Если у форумчан есть полезные советы - будем благодарны! Двери с санузлы делайте с открыванием в коридор! 1 Посилання на коментар Поділитися на інших сайтах More sharing options...
Nmod Опубліковано: 10 серпня 2012 Поділитись Опубліковано: 10 серпня 2012 (змінено) Двери с санузлы делайте с открыванием в коридор! чтобы дверьми перегородить его, и стукать кто проходить будет.:D Повышаем травмоопасность коридора. Чтобы не приходилось влазить на унитаз для выхода из туалета. Хотя... если "молодые и энергичные"... это не панельный советский дом где все совсем грустно - посмотрите на расстояния и как открываются двери и какое останется пространство,- визуально видно что там не критичные размеры и никто себя не "прищщимит" , и все будет достаточно удобно- а вот открытие в коридор плохое решение для данной планировки. Учите матчасть, по нормам не положено внурть открывать. - и получаем длинный пустой коридор в котором ничего поставить нельзя, - и реальный шанс "стукнуть" при выходе своего ближнего, если ориентироваться непосредственно на этот план а не на любой условный - я рекомендую внутреннее открытие дверей- тогда можно думать как использовать -этот коридор, и никого не травмировать. (Если будут делать капитальный "ремонт" зачем закладывать "неудобства") Собственно в "родном" плане указано внутреннее открытие - наверное тоже не с проста. Хотя действительно в су и ванной двери не так часто открываются и это можно пережить Roma_rio - прав, надо делать наружное открывание. Змінено 10 серпня 2012 користувачем Nmod Посилання на коментар Поділитися на інших сайтах More sharing options...
flacon Опубліковано: 10 серпня 2012 Поділитись Опубліковано: 10 серпня 2012 чтобы дверьми перегородить его, и стукать кто проходить будет. Чтобы не приходилось влазить на унитаз для выхода из туалета. Хотя... если "молодые и энергичные"... Посилання на коментар Поділитися на інших сайтах More sharing options...
Roma_rio Опубліковано: 10 серпня 2012 Поділитись Опубліковано: 10 серпня 2012 Nmod - Студия Дизайна Интерьера Учите матчасть, по нормам не положено внурть открывать. 1 Посилання на коментар Поділитися на інших сайтах More sharing options...
barbudas13 Опубліковано: 10 серпня 2012 Автор Поділитись Опубліковано: 10 серпня 2012 Чтобы не приходилось влазить на унитаз для выхода из туалета. Хотя... если "молодые и энергичные"... не, на унитаз конечно влазить не охота, даже по молодости, посмотрим, тут голова уже кругом, столько подробностей Добавлено через 7 минут Если Вам нужен дизайнер - ищите того, который работает (преимущественно) в Вашем стиле или близок Вам по духу. Если Вы: сами полны идей/не готовы тратить деньги на дизайнеров/не готовы "довериться" чужому (пусть и проффессиональному) мнению - не заморачивайтесь. Берите в руки карандаш, рисуйте (пусть схематично) - выкладывайте сюда, слушайте критику, делайте СВОИ выводы! Короче - ТВОРИТЕ! Вы получите помощь в виде конструктивной (и не очень) критики и, возможно, дельных советов. Молодость, энергичность и интузиазм - Ваши союзники Но не ждите что кто-то нарисует Вам квартиру без общения, без понимания Ваших предпочтений, увлечений, семейных планов, БЕЗ ДЕНЕНГ ("за спасибо" или "за пиво"). Достаточно воспользоваться поиском или пролистать несколько страниц в этом разделе, что бы понять отнощение на форуме к таким "подработкам". Удачи! Да, мы идей полны, а так же полны разногласий (не глобально, но)! По-поводу понимания, эт Вы правильно заметили, у нас как оказалось оно несколько разное! Поэтому склоняемся к помощи профессионала, бюджет конечно ограничен, но и чудес за копейку не ждем! Дело в том, что жилье покупалось с перспективой на детей и долгое проживание, поэтому делать "абы как" и "на время" не охота. Смотрим, думаем. Есть кто, кто себе делал дизайн. с консультациями или по полной программе?! Сколько денег печатать!? )) Посилання на коментар Поділитися на інших сайтах More sharing options...
Roma_rio Опубліковано: 10 серпня 2012 Поділитись Опубліковано: 10 серпня 2012 Ладно, смоделируем жизненную ситуацию Жильцу в ванной комнате или санузле стало плохо, потеря сознания (перепарился, приступ и т.д.), падает без сознания под дверь, чем собственно блокирует открытие. ВАШИ ДЕЙСТВИЯ????? Посилання на коментар Поділитися на інших сайтах More sharing options...
Julla Опубліковано: 10 серпня 2012 Поділитись Опубліковано: 10 серпня 2012 Сделайте раздвижные двери Можно "спрятать в стенку" Посилання на коментар Поділитися на інших сайтах More sharing options...
Nmod Опубліковано: 10 серпня 2012 Поділитись Опубліковано: 10 серпня 2012 Roma_rio, признал ошибку, признавать свои ошибки тоже надо уметь, зачем развивать тему дальше (свои сообщения не правил чтобы не искажать события) 1 Посилання на коментар Поділитися на інших сайтах More sharing options...
AR Опубліковано: 10 серпня 2012 Поділитись Опубліковано: 10 серпня 2012 Где у вас стояки и вент.каналы? Перепланировки боитесь? Где несущие стены, а где перегородки? Посилання на коментар Поділитися на інших сайтах More sharing options...
AR Опубліковано: 10 серпня 2012 Поділитись Опубліковано: 10 серпня 2012 Безответственно, корявинько (на скорую руку) сделанная концепция перепланировки 3 Посилання на коментар Поділитися на інших сайтах More sharing options...
barbudas13 Опубліковано: 10 серпня 2012 Автор Поділитись Опубліковано: 10 серпня 2012 Безответственно, корявинько (на скорую руку) сделанная концепция перепланировки 1. Спасибо за оживление! Над перепланировками думаем, но раз уж нам досталось два эркера, хотелось бы по максимуму использовать их, а не скрывать, чтобы и свет проникал и была подчеркнута эта "деталь". К тому же Вы разделили несущую (она как понимаю черным обозначена). Детскую хотелось бы задумать как-то так, чтоб она потом как бы "появилась" в пространстве по факту появления ребенка. 2. Сегодня уже общались с двумя специалистами, посоветовались и думаем, что предпочтение будет еще и тем у кого есть строители, которые потом все это сделают. Иначе можем видеть на картинке одно, а получить потом другое! ПС такое впечатление, что работаю на двух работах, жена тоже переживает. Хорошо завтра суббота, будет повод расслабится :drinks: Посилання на коментар Поділитися на інших сайтах More sharing options...
Елена А. Опубліковано: 10 серпня 2012 Поділитись Опубліковано: 10 серпня 2012 Безответственно, корявинько (на скорую руку) сделанная концепция перепланировки А мне нравится , и детская и спальня с кабинетом (в эркере) . а в несущих стенах проемы делать можно (просто по уму, а не лижбы вырезать) Посилання на коментар Поділитися на інших сайтах More sharing options...
nik_deko Опубліковано: 10 серпня 2012 Поділитись Опубліковано: 10 серпня 2012 ей богу тоже хотел спросить - может перепланировка ? )) Добавлено через 47 секунд Безответственно, корявинько (на скорую руку) сделанная концепция перепланировки Доволи не плохо получилось ... Посилання на коментар Поділитися на інших сайтах More sharing options...
Max_designer Опубліковано: 10 серпня 2012 Поділитись Опубліковано: 10 серпня 2012 Безответственно, корявинько (на скорую руку) сделанная концепция перепланировки Скор на руку, боярин. Только чего мелочиться, стирай уже все "черные" стены. А то что они 250 мм шириной - наверное дураки делали.... 4 Посилання на коментар Поділитися на інших сайтах More sharing options...
barbudas13 Опубліковано: 10 серпня 2012 Автор Поділитись Опубліковано: 10 серпня 2012 Скор на руку, боярин. Только чего мелочиться, стирай уже все "черные" стены. А то что они 250 мм шириной - наверное дураки делали.... :D ну да, мне тоже не безразлична целостность будущей конструкции! Сделайте раздвижные двери Можно "спрятать в стенку" слышали звукоизоляцию раздвижные дают плохую, да и в использовании не практичны. Посилання на коментар Поділитися на інших сайтах More sharing options...
barbudas13 Опубліковано: 14 серпня 2012 Автор Поділитись Опубліковано: 14 серпня 2012 Тишина) К нам приезжали родители, помогли определится, будем работать с дизайнером. Перепланировки делать не будем. Нам предложили делать каждую комнату поэтапно, мы дизайнеру объяснили наши стилевые предпочтения, скоро поедем в строительные магазины (видели здесь тему про скидки, может пригодится). А еще завтра выложу фото квартиры, уж очень похвастаться охота))) Посилання на коментар Поділитися на інших сайтах More sharing options...
Max_designer Опубліковано: 15 серпня 2012 Поділитись Опубліковано: 15 серпня 2012 Тишина) К нам приезжали родители, помогли определится, "пропала Мальвина"... Посилання на коментар Поділитися на інших сайтах More sharing options...
barbudas13 Опубліковано: 16 серпня 2012 Автор Поділитись Опубліковано: 16 серпня 2012 "пропала Мальвина"... ничего не пропала))) они люди совеременные! как и обещали фото: Зал спальня великолепный вид из окна:D коридор на кухню Эту плитку хотим в коридор и на кухню на пол кухонная стенка плитка на стену (стены) в гостиной а это то, что понравилось, но пока не придумали куда может посоветуете куда можно применить, плитки которым еще "не нашлось места", и если кто-то знает где можно раздобыть скидки - будем благодарны! Посилання на коментар Поділитися на інших сайтах More sharing options...
nik_deko Опубліковано: 16 серпня 2012 Поділитись Опубліковано: 16 серпня 2012 не ну как же без натяжных то ? )) может помочь пофантазировать ? Посилання на коментар Поділитися на інших сайтах More sharing options...
Рекомендовані повідомлення
Створіть акаунт або увійдіть у нього для коментування
Ви маєте бути користувачем, щоб залишити коментар
Створити акаунт
Зареєструйтеся для отримання акаунта. Це просто!
Зареєструвати акаунтУвійти
Вже зареєстровані? Увійдіть тут.
Увійти зараз