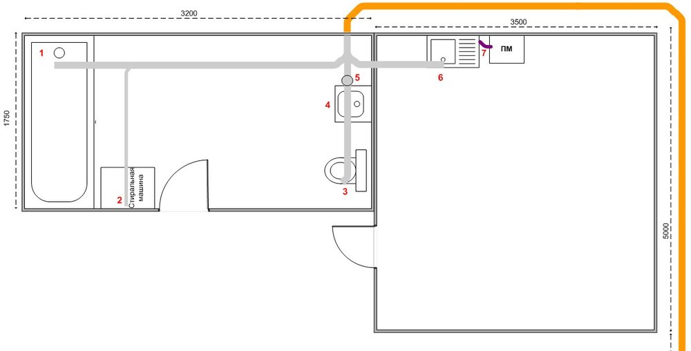
Фрипп Опубліковано: 30 серпня 2012 Поділитись Опубліковано: 30 серпня 2012 Приветствую. Делаем в доме канализацию, придумали схему, по которой есть масса вопросов, так как делаем первый раз. Посмотрите, пожалуйста, на схему, на ней обозначены: 1-4. Ванная. Стиралка. Унитаз. Рукомойник. 5. Канализационный стояк с мансардного этажа. 6-7. Мойка в кухне. Посудомоечная машина. Вопросы следующие: а) Каким образом делать соединение выхода из точки водоотвода к канализационной трубе. Т.е. как ванную (1) соединить после сифона с трубой канализации диаметром 100мм? б) Выходы канализационной трубы на поверхность (сквозь две стяжки, утепление и теплый пол) должны быть в стенах или в полу? в) можно ли сказать, что в полу делается ввод только для унитаза, а остальные вводы должны торчать из стены? г) делать вывод из посудомойки гибким шлангом в одно место с мойкой или сделать отдельный вывод? Посилання на коментар Поділитися на інших сайтах More sharing options...
Mentor Опубліковано: 1 вересня 2012 Поділитись Опубліковано: 1 вересня 2012 Т.е. как ванную (1) соединить после сифона с трубой канализации диаметром 100мм? Есть переходник муфта 50*100 Посилання на коментар Поділитися на інших сайтах More sharing options...
naupv Опубліковано: 3 вересня 2012 Поділитись Опубліковано: 3 вересня 2012 1. Выше уже написали. 2. Лучше в стенах, не нужно гофр, сифоны поключаются напрямую, нужно соблюдать размеры по высоте. 3. В полу можно делать, но обычно это касается унитазов с нижним выпуском. 4. Лучше по отдельности 50мм трубой. Посилання на коментар Поділитися на інших сайтах More sharing options...
Фрипп Опубліковано: 10 вересня 2012 Автор Поділитись Опубліковано: 10 вересня 2012 Спасибо большое! Посилання на коментар Поділитися на інших сайтах More sharing options...
Рекомендовані повідомлення
Створіть акаунт або увійдіть у нього для коментування
Ви маєте бути користувачем, щоб залишити коментар
Створити акаунт
Зареєструйтеся для отримання акаунта. Це просто!
Зареєструвати акаунтУвійти
Вже зареєстровані? Увійдіть тут.
Увійти зараз