Gravicapa Опубліковано: 9 червня 2009 Поділитись Опубліковано: 9 червня 2009 Marisha84 надеюсь в ближайшее время выложить, чтобы и Вы смогли оценить Ну как, есть прогресс? Или передумали строиться? Посилання на коментар Поділитися на інших сайтах More sharing options...
Marisha84 Опубліковано: 10 червня 2009 Автор Поділитись Опубліковано: 10 червня 2009 Ну как, есть прогресс? Или передумали строиться? прогресс есть! проект заказали и в отпуск уехали. вот вернулись- проект уже на руках. отдаем на просчет а вот с дизайнером... хочется побыстрее, но не известно когда все будет, т.к. мы не его заказчики, а просто попросили по-дружески. поэтому буду ждать пока. для нас важнее на данном этапе сама подготовка к стройке, так что хлопот и так хватает... Но как только появится какая-то информация, я сразу буду выкладывать на форум! Посилання на коментар Поділитися на інших сайтах More sharing options...
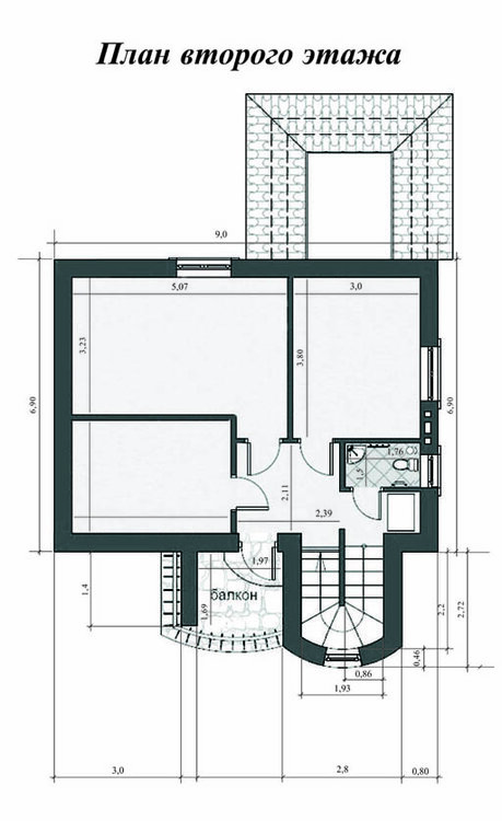
Marisha84 Опубліковано: 22 червня 2009 Автор Поділитись Опубліковано: 22 червня 2009 получили от дизайнера наброски по расположению сантехники в ванной комнате на 1м этаже. есть 2 варианта... выкладываю для обсуждения обещали при возможности еще несколько вариантов, но пока рассматриваем то что есть)) Посилання на коментар Поділитися на інших сайтах More sharing options...
Мария Кле Опубліковано: 22 червня 2009 Поділитись Опубліковано: 22 червня 2009 получили от дизайнера наброски по расположению сантехники в ванной комнате на 1м этаже. есть 2 варианта... выкладываю для обсуждения обещали при возможности еще несколько вариантов, но пока рассматриваем то что есть)) я за душ кабину!!!!!! Посилання на коментар Поділитися на інших сайтах More sharing options...
Marisha84 Опубліковано: 22 червня 2009 Автор Поділитись Опубліковано: 22 червня 2009 я за душ кабину!!!!!! я тоже к такому варианту склонялась... но не одна решаю))) не думаю, что все поддержат меня, т.к. на втором этаже санузел настолько мал, что в нем можно разместить только унитаз и умывальник. а кто не захочет поваляться хоть в небольшой да ВАННОЙ... хотя, кроме меня пока никто и не видел этих вариантов Посилання на коментар Поділитися на інших сайтах More sharing options...
Embongo Опубліковано: 22 червня 2009 Поділитись Опубліковано: 22 червня 2009 А я за ванную, если места для нее нет больше ни в одном с/у... Ну а если душ кабина, то на всю стенку, тогда там можно укрепить на стене сидушки (теже Раваковские) и с душой подраить пятки. Как вариант еще, рассмотрите установку двойного умывальника - у меня двое малых, очень хорошо одновременно контролировать качество чистки зубов и умывания :D Заодно, когда подрастут, думаю, избегу драк на утреннюю очередь. Посилання на коментар Поділитися на інших сайтах More sharing options...
Lider-1978 Опубліковано: 22 червня 2009 Поділитись Опубліковано: 22 червня 2009 А я за ванную, если места для нее нет больше ни в одном с/у... Ну а если душ кабина, то на всю стенку, тогда там можно укрепить на стене сидушки (теже Раваковские) и с душой подраить пятки. Как вариант еще, рассмотрите установку двойного умывальника - у меня двое малых, очень хорошо одновременно контролировать качество чистки зубов и умывания :D Заодно, когда подрастут, думаю, избегу драк на утреннюю очередь.[/quote С душевой кабинкой прикольнее;) Посилання на коментар Поділитися на інших сайтах More sharing options...
Алик Опубліковано: 1 вересня 2009 Поділитись Опубліковано: 1 вересня 2009 мне тоже муратор нравится больше архона Посилання на коментар Поділитися на інших сайтах More sharing options...
aqualand Опубліковано: 24 вересня 2009 Поділитись Опубліковано: 24 вересня 2009 Данный проект мна приглянулся еще в 2007 г. Я его доработал: наружную стену (у входа) выдвинул практически вровень с входной дверью. Тамбур оказался внутренним. Размер дома немного изменился 8х8. Зато на 1-м этаже вышло зала 5х4 и комната 3х4 (слева от входа). Ну и немного поиграл вместо балкона появилась серьезная кладовая. Кстати, убрал излом между лестничной "шахты" и углом дома - сделал вровень со стеной. Посилання на коментар Поділитися на інших сайтах More sharing options...
Гість FaNatka Опубліковано: 8 листопада 2009 Поділитись Опубліковано: 8 листопада 2009 Данный проект мна приглянулся еще в 2007 г. Я его доработал: наружную стену (у входа) выдвинул практически вровень с входной дверью. Тамбур оказался внутренним. Размер дома немного изменился 8х8. Зато на 1-м этаже вышло зала 5х4 и комната 3х4 (слева от входа). Ну и немного поиграл вместо балкона появилась серьезная кладовая. Кстати, убрал излом между лестничной "шахты" и углом дома - сделал вровень со стеной. Мне очень нравится этот проект, хочу такой же. Во сколько он вам обошелся? Посилання на коментар Поділитися на інших сайтах More sharing options...
tockaq Опубліковано: 27 вересня 2010 Поділитись Опубліковано: 27 вересня 2010 я точно такой же строю дом! будет желание, давайте пообщаемся ;) Посилання на коментар Поділитися на інших сайтах More sharing options...
tockaq Опубліковано: 15 червня 2012 Поділитись Опубліковано: 15 червня 2012 Могу поделиться чертежами и размерами комнат. Кто, что скажет? Мариночка куда пропала? Давайте продолжим обсуждения! Посилання на коментар Поділитися на інших сайтах More sharing options...
Рекомендовані повідомлення
Створіть акаунт або увійдіть у нього для коментування
Ви маєте бути користувачем, щоб залишити коментар
Створити акаунт
Зареєструйтеся для отримання акаунта. Це просто!
Зареєструвати акаунтУвійти
Вже зареєстровані? Увійдіть тут.
Увійти зараз