Перейти до публікації
Пошук в
  • Додатково...
Шукати результати, які містять...
Шукати результати в...

Отопление дома Бориспольский р-н

Andrey83

Рекомендовані повідомлення

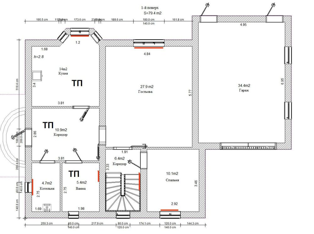
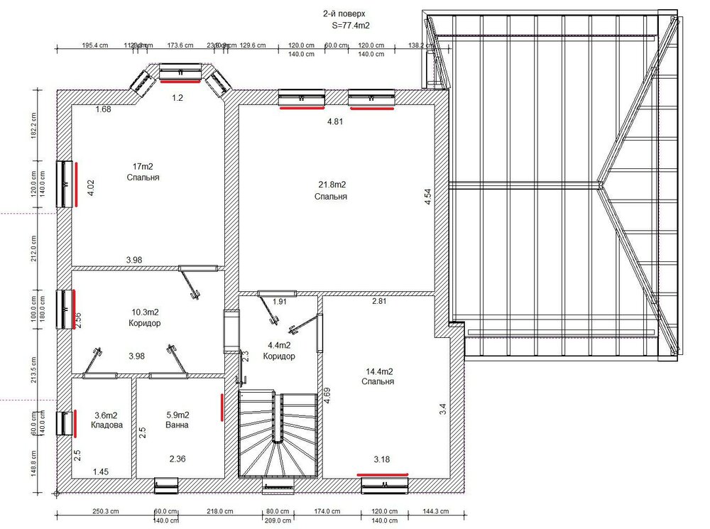
Планируется ближайшее время монтаж отопления. Ниже прикреплен план дома с предположительными радиаторами (красным цветом) и ТП. Котел планируется газовый двухконтурный. Разводка отопления будет по полу и радиаторы с нижним подключением. Дом 2 этажа площадь примерно 170м.кв. Стены 0.5 обл.кирпич + пенопласт 5см + 1.5 забудов кирпич. Интересует примерная стоимость работ и материалов.

943137223_domotopl1et.thumb.jpg.5b1a8fa751d5051730804e5bdbc66d79.jpg

1612463086_domotopl2et.thumb.jpg.f123ce9379cb0ed990f768c1b924a865.jpg

Посилання на коментар
Поділитися на інших сайтах

Створіть акаунт або увійдіть у нього для коментування

Ви маєте бути користувачем, щоб залишити коментар

Створити акаунт

Зареєструйтеся для отримання акаунта. Це просто!

Зареєструвати акаунт

Увійти

Вже зареєстровані? Увійдіть тут.

Увійти зараз
×
×
  • Створити...