HumanKM Опубліковано: 2 жовтня 2012 Автор Поділитись Опубліковано: 2 жовтня 2012 вчера пересмотрел фурнитуру Elementis называется. Скажите, теперь - когда я скинул наименования материала и фото, цена неплохая вышла за эти двери??? И как Вам людям знающим эти двери??? Посилання на коментар Поділитися на інших сайтах More sharing options...
Алік Опубліковано: 2 жовтня 2012 Поділитись Опубліковано: 2 жовтня 2012 Нормальная цена, как для Киева. У нас бы в 6500 уложились с примерно аналогичной надёжностью и функциональностью. Посилання на коментар Поділитися на інших сайтах More sharing options...
POL Опубліковано: 3 жовтня 2012 Поділитись Опубліковано: 3 жовтня 2012 Вопрос производителям - возможно ли изготовить алюминиевые двери в темно-коричневом цвете? Если да, то на сколько это удорожает конструкцию? Посилання на коментар Поділитися на інших сайтах More sharing options...
Kostjantyn Опубліковано: 3 жовтня 2012 Поділитись Опубліковано: 3 жовтня 2012 Вопрос производителям - возможно ли изготовить алюминиевые двери в темно-коричневом цвете? У поставщиков греческого профиля Profilco коричневый цвет - стандартный, наряду с белым. Посилання на коментар Поділитися на інших сайтах More sharing options...
Ruslan R Опубліковано: 3 жовтня 2012 Поділитись Опубліковано: 3 жовтня 2012 У поставщиков греческого профиля Profilco коричневый цвет - стандартный, наряду с белым. У нормального поставщика профиля, коричневый цвет считается стандартным... Так что Profilco не показатель... а вы сейчас о какой системе Profilco говорите? Надеюсь не о дверной? Добавлено через 2 минуты алюминиевые двери в темно-коричневом цвете? По шкале RAL 8019 - стандартный цвет. Посилання на коментар Поділитися на інших сайтах More sharing options...
POL Опубліковано: 4 жовтня 2012 Поділитись Опубліковано: 4 жовтня 2012 Можете порекомендовать 2-3 таких поставщика\производителя и соориентировать по цене для проема 1200х2100? Можно ли алюминиевые двери ставить в деревянный оцилиндрованный сруб? Можно в ЛС. Посилання на коментар Поділитися на інших сайтах More sharing options...
Kostjantyn Опубліковано: 9 жовтня 2012 Поділитись Опубліковано: 9 жовтня 2012 ... а вы сейчас о какой системе Profilco говорите? Надеюсь не о дверной?... Поясните, что особенного с дверной системой Profilco PR-62? Посилання на коментар Поділитися на інших сайтах More sharing options...
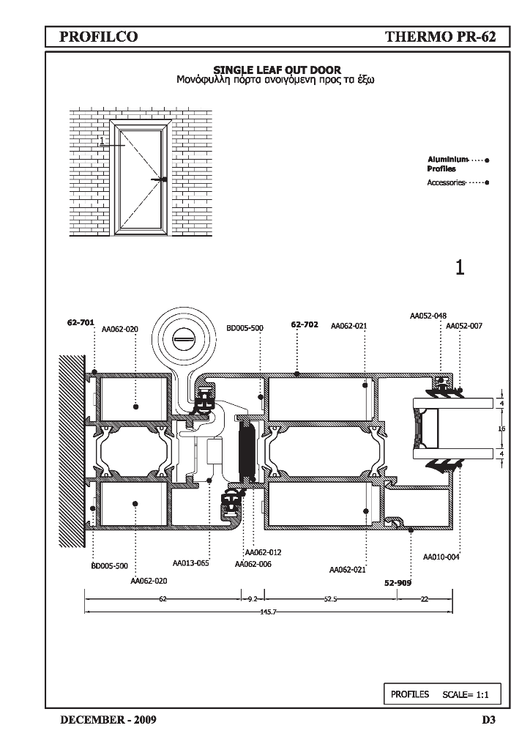
Ruslan R Опубліковано: 9 жовтня 2012 Поділитись Опубліковано: 9 жовтня 2012 Поясните, что особенного с дверной системой Profilco PR-62? PR-63 наверно. Вы считаете эту систему полноценной дверной системой? Я нет. Для оконных конструкций и балконных дверей еще можно использовать, а вот для входных дверей - не желательно. Здесь в основном используются петли которые устанавливаются в фурнитурный паз (т.е. такие двери я называю балконными и не более). Двери не компланарные. если использовать широкую раму, то возможно использование полноценных накладных дверных петель (крепеж с помощью закладных пластин, втулок, винтов М8х60), дополнительно используя подкладку под петлю. Но это уже не то (была практика с не компланырными дверьми - ничего хорошего из этого не получилось). И еще один момент - нет возможности изготовить цельной конструкцией двери с глухой фрамогой сверху, только из 2-х отдельных конструкций. Почему то нет у них адаптора для наружного открывания дверей. Посилання на коментар Поділитися на інших сайтах More sharing options...
Kostjantyn Опубліковано: 11 жовтня 2012 Поділитись Опубліковано: 11 жовтня 2012 PR-63 наверно. У Profilco есть как серия PR-63 оконно-дверная (окна и балконные двери) так и серия PR-62 (дверная) позволяющая изготовить компланарную дверь (дверь в единой плоскости) с накладными петлями. И еще один момент - нет возможности изготовить цельной конструкцией двери с глухой фрамогой сверху, только из 2-х отдельных конструкций. Почему то нет у них адаптора для наружного открывания дверей. Адаптор есть в холодной серии. Но рассмотрим ситуацию иначе. Есть очень широко разработанные системы Reynaers или Schuco. Решений множество, всяческие варианты проработаны. Однако нет на складе и дорого. И есть достаточно простая и надежная система с базовыми решениями. Да и при изготовлении одной штуки двери с верхней фрамугой по варианту PR-63 нужно купить профиль рамы, створки и порог, а в варианте с адаптером - профиль рамы, створки и порог + импост и адаптер. Это я к тому, что для чувствительных к цене заказчиков двери из Profilco PR-63 - хороший выбор. Во всяком случае стенка профиля (т.е. прочность и долговечность) больше чем у ASAS или Зенита. Но это уже не то (была практика с не компланырными дверьми - ничего хорошего из этого не получилось). вспомнил анекдот: "Не люблю котов! - Вы просто не умеете их готовить!":beer: Посилання на коментар Поділитися на інших сайтах More sharing options...
Ruslan R Опубліковано: 11 жовтня 2012 Поділитись Опубліковано: 11 жовтня 2012 У Profilco есть как серия PR-63 оконно-дверная (окна и балконные двери) так и серия PR-62 (дверная) позволяющая изготовить компланарную дверь (дверь в единой плоскости) с накладными петлями. А сечения можно посмотреть? Оформление каталогов желает лучшего (ни чем не лучше турецких, а то и похуже). Адаптор есть в холодной серии. Но рассмотрим ситуацию иначе. Есть очень широко разработанные системы Reynaers или Schuco. Решений множество, всяческие варианты проработаны. Однако нет на складе и дорого. У Reynaers с наличием на складе в Киеве все нормально. Это у Schuco проблемы, потому что у них и нет склада, только все под заказ. И есть достаточно простая и надежная система с базовыми решениями. Да и при изготовлении одной штуки двери с верхней фрамугой по варианту PR-63 нужно купить профиль рамы, створки и порог, а в варианте с адаптером - профиль рамы, створки и порог + импост и адаптер. Это я к тому, что для чувствительных к цене заказчиков двери из Profilco PR-63 - хороший выбор. Во всяком случае стенка профиля (т.е. прочность и долговечность) больше чем у ASAS или Зенита. Зачем использовать "недоработанный" Profilco? Если можно использовать грамотно разработанную систему Alutech, и склад у них не маленький, и ценовая категория почти как у Asas и Зенита (чуть дороже). И стенка 1,8мм. Посилання на коментар Поділитися на інших сайтах More sharing options...
Kostjantyn Опубліковано: 11 жовтня 2012 Поділитись Опубліковано: 11 жовтня 2012 Зачем использовать ....... Profilco? Если можно использовать ........ систему Alutech, и склад у них не маленький, и ценовая категория почти как ............ (чуть дороже). И стенка 1,8мм. Алютех - компания достойная во многих отношениях. Но Киевский склад удалился в Бровары. Для больших заказов это не препятствие, но тема была о изготовлении нескольких дверей с ограниченной ценой. И я считаю, что в таком случае Profilco достоин внимания. Посилання на коментар Поділитися на інших сайтах More sharing options...
Ruslan R Опубліковано: 11 жовтня 2012 Поділитись Опубліковано: 11 жовтня 2012 Алютех - компания достойная во многих отношениях. Но Киевский склад удалился в Бровары. Для больших заказов это не препятствие, но тема была о изготовлении нескольких дверей с ограниченной ценой. И я считаю, что в таком случае Profilco достоин внимания. Ну Бровары это не так у ж и далеко, 100грн. на газ (бензин) можно найти. Благодарю за ссылку на каталог PR-62, но боюсь что в такую узкую раму (арт. 62-701) накладная петля не станет. Нужен dwg формат профилей чтобы прорисовать. И этот профиль совсем из другой оперы (фурнитурный паз как у ПВХ). Посилання на коментар Поділитися на інших сайтах More sharing options...
Ruslan R Опубліковано: 11 жовтня 2012 Поділитись Опубліковано: 11 жовтня 2012 Преимущества накладной петли не только в надежном креплении, но и в возможности регулировки по трем направлениям. Посилання на коментар Поділитися на інших сайтах More sharing options...
krava Опубліковано: 20 жовтня 2012 Поділитись Опубліковано: 20 жовтня 2012 На сколько реально теплые двери из алюминивого профиля? или все таки лучше взять ПВХ профиль? Можно ли в них вместо стандартной ручки, поставить полноценный замок? есть желание поставить входные двери из ПВХ или алюминиевого профиля. Посилання на коментар Поділитися на інших сайтах More sharing options...
HumanKM Опубліковано: 21 жовтня 2012 Автор Поділитись Опубліковано: 21 жовтня 2012 На сколько реально теплые двери из алюминивого профиля? или все таки лучше взять ПВХ профиль? Можно ли в них вместо стандартной ручки, поставить полноценный замок? есть желание поставить входные двери из ПВХ или алюминиевого профиля. про алюминий не скажу а металопластиковые без проблем профиль входной группы ручка обычная нажимная все делается если интерестно кидайте в личку размеры просчитаю Посилання на коментар Поділитися на інших сайтах More sharing options...
atoss Опубліковано: 20 січня 2015 Поділитись Опубліковано: 20 січня 2015 Мучает тот же вопрос. Подскажите по производителям. Вот такого нашел в Киеве www.talisman.kiev.ua/page11/razdel6/ Это нормальные двери? По теплопотерям будут похожи на входную группу рехау или эти холоднее? Или подскажите хорошего производителя ) Спасибо Посилання на коментар Поділитися на інших сайтах More sharing options...
Алік Опубліковано: 20 січня 2015 Поділитись Опубліковано: 20 січня 2015 Двери нормальные, производитель известный. Рехау немного теплее будет, ПВХ всё-таки. Посилання на коментар Поділитися на інших сайтах More sharing options...
Kostjantyn Опубліковано: 21 січня 2015 Поділитись Опубліковано: 21 січня 2015 ....Подскажите по производителям. Вот такого нашел в Киеве www.talisman.kiev.ua/page11/razdel6/ Это нормальные двери? По теплопотерям будут похожи на входную группу рехау или эти холоднее? Или подскажите хорошего производителя )..... Выше уже писали: ... можно использовать грамотно разработанную систему Alutech, и склад у них не маленький, и ценовая категория почти как у Asas и Зенита (чуть дороже). И стенка 1,8мм. На сегодняшний день, если учесть сложности с донецкими поставщиками профиля, то Алютех с системой W72 очень хорош для дверей. Посилання на коментар Поділитися на інших сайтах More sharing options...
лаврентиди Опубліковано: 21 січня 2015 Поділитись Опубліковано: 21 січня 2015 Хороший производитель - завод в Броварах. 1 Посилання на коментар Поділитися на інших сайтах More sharing options...
atoss Опубліковано: 26 січня 2015 Поділитись Опубліковано: 26 січня 2015 Ок! Спасибо. Помогите разобраться в теплопередаче. Не могу понять на сколько ПВХ двери будут теплее за алюминиевый теплый профиль. Вот данные с сайтов производителей: REHAU Brillant-Design - с значением коэффициента теплопередачи kr до 1,2 Вт/м2К (R=0,79м20С/Вт). ALTW72 - Теплоизоляция 1,00 Вт*м²/С° У REHAU (Вт/м2К) у ALTW72 (м²/С°) разница в одну букву )), но я так понимаю это разные величины? Кельвины и Цельсия? В чем разница? Посилання на коментар Поділитися на інших сайтах More sharing options...
Алік Опубліковано: 26 січня 2015 Поділитись Опубліковано: 26 січня 2015 Здесь не суть важно Цельсий или Кельвин, для расчёта теплопотерь требуется числовое значение разницы внутренней и внешней температур. Градус Цельсия равен одному кельвину, отличие только в начале шкалы. Посилання на коментар Поділитися на інших сайтах More sharing options...
Kostjantyn Опубліковано: 28 січня 2015 Поділитись Опубліковано: 28 січня 2015 Ок! Спасибо. Помогите разобраться в теплопередаче. Не могу понять на сколько ПВХ двери будут теплее за алюминиевый теплый профиль. Вот данные с сайтов производителей: REHAU Brillant-Design - с значением коэффициента теплопередачи kr до 1,2 Вт/м2К (R=0,79м20С/Вт). ALTW72 - Теплоизоляция 1,00 Вт*м²/С° У REHAU (Вт/м2К) у ALTW72 (м²/С°) разница в одну букву )), но я так понимаю это разные величины? Кельвины и Цельсия? В чем разница? Упомянутый Вами «К» (коэффициент теплообмена) определяет количество тепла, проходящего за единицу времени через 1м2 строительного элемента, при разнице температур внутри и снаружи равной 1° Кельвина. Отсюда и размерность «Вт/м2К». При этом со времен введения международной системы CI установлено, что 1 градус Цельсия равен 1 градусу Кельвина, как и написано ранее коллегой: Здесь не суть важно Цельсий или Кельвин, для расчёта теплопотерь требуется числовое значение разницы внутренней и внешней температур. Градус Цельсия равен одному кельвину, отличие только в начале шкалы.В соответствии с новыми общеевропейскими нормами EN 673 на смену ранее применяемого коэффициента К вводится новый U-коэффициент в такой же размерности «Вт/м2К». Ввиду различных методов оценки, могут возникнуть расхождения численных значений К-коэффициента и общеевропейского U-коэффициента. А на постсоветских просторах при оценке теплоизолирующих свойств принято использовать коэффициент сопротивления теплопередаче R (resistance). Его размерность - м2 умножить на градус(Кельвина или Цельсия) и разделить на ватт. Из сопоставления размерностей видно, что U и R - это величины обратные. Из-за разницы в методиках расчетов по ДСТУ и EN (учет различных факторов, различие стандартных температур) пересчет простым делением дает оценочный результат (не точный), т.е. U≈1/R. Конкретно по сути вопроса: при использовании всех возможностей алюминиевой системы Alutech W72 получим R = 1 м2 °/Вт. При том что для REHAU Brillant-Design Вы указали REHAU Brillant-Design R=0,79м20С/Вт. С моей точки зрения, W72 будет теплее. Посилання на коментар Поділитися на інших сайтах More sharing options...
atoss Опубліковано: 2 лютого 2015 Поділитись Опубліковано: 2 лютого 2015 Kostjantyn! Спасибо огромное Посилання на коментар Поділитися на інших сайтах More sharing options...
Рекомендовані повідомлення
Створіть акаунт або увійдіть у нього для коментування
Ви маєте бути користувачем, щоб залишити коментар
Створити акаунт
Зареєструйтеся для отримання акаунта. Це просто!
Зареєструвати акаунтУвійти
Вже зареєстровані? Увійдіть тут.
Увійти зараз