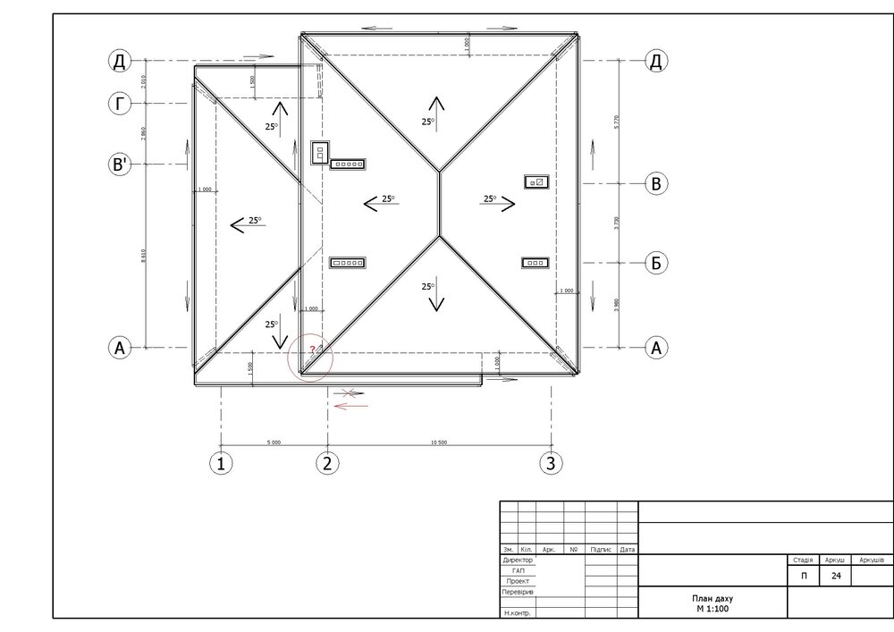
domikoff Опубліковано: 19 жовтня 2012 Поділитись Опубліковано: 19 жовтня 2012 Хотелось бы услышать от профи небольшой совет по моей водосточке. Водосток profil 130. По данным производителя " Система PROFIL 130 ефективно відводить дощову воду з даху поверхнею 110 м2." Площади скатов кровли по моим расчетам у меня: треугольный скат - 47м2 трапецивидный скат - 68м2 Т.е. вроде как для любого из этих скатов досточно одной вертикальной трубы 100мм Так ли это на практике? На схеме показал (красным) место которое для меня под вопросом. Возможно, исходя из того что написано выше, можно совсем отказаться от слива в этом месте на крышу? Вообще с удовольствием бы выслушал советы по ливневке моего дома. Заранее спасибо за участие в обсуждении! Посилання на коментар Поділитися на інших сайтах More sharing options...
Drongo81 Опубліковано: 19 жовтня 2012 Поділитись Опубліковано: 19 жовтня 2012 Кроме того, что указанно у Profil, нужно не забывать еще один фактор: одна воронка на 12 м.п. желоба. Поэтому, судя по плану, на дом Вам нужно все таки 4 воронки. Плюс где-то 3 воронки на пристройку - там не указанны все размеры. 1 Посилання на коментар Поділитися на інших сайтах More sharing options...
domikoff Опубліковано: 19 жовтня 2012 Автор Поділитись Опубліковано: 19 жовтня 2012 Кроме того, что указанно у Profil, нужно не забывать еще один фактор: одна воронка на 12 м.п. желоба. Поэтому, судя по плану, на дом Вам нужно все таки 4 воронки. Плюс где-то 3 воронки на пристройку - там не указанны все размеры. Подскажите а где написана данная норма и как зависит она от диаметра желоба? Т.е. избавится от помеченной воронки не получится. т.к. длинна длинной стороны крыши 16м. ЗЫ длинна козырька 5+8,5м Посилання на коментар Поділитися на інших сайтах More sharing options...
Drongo81 Опубліковано: 19 жовтня 2012 Поділитись Опубліковано: 19 жовтня 2012 (змінено) От диаметра желоба не зависит - как я понимаю связанна прежде всего с необходимостью установки желоба с уклоном. Эта информация у Profil действительно не указанна, зато часто упоминается в статья по водостокам www.stroimvmeste.kiev.ua/blog/krovlya/%D0%BC%D0%BE%D0%BD%D1%82%D0%B0%D0%B6-%D0%B2%D0%BE%D0%B4%D0%BE%D1%81%D1%82%D0%BE%D0%BA%D0%B0/ и у других производителей. (ссылка устарела) (ссылка устарела) a-group.com.ua/uploads/product_manualurl_metallicheskij-vodostok_94760.pdf формулируется, как расстояние между двумя воронками не должно превышать более 24 м (у некоторых 20 м), или не более 12 м.п. (10 м.п.) желоба на одну воронку. Это зависит от разуклонки желоба. Змінено 19 жовтня 2012 користувачем Drongo81 1 Посилання на коментар Поділитися на інших сайтах More sharing options...
Niklson Опубліковано: 19 жовтня 2012 Поділитись Опубліковано: 19 жовтня 2012 Подскажите а где написана данная норма и как зависит она от диаметра желоба? Т.е. избавится от помеченной воронки не получится. т.к. длинна длинной стороны крыши 16м. ЗЫ длинна козырька 5+8,5м Это прописано в ДБН В.2.6-14-97 ПОКРЫТИЯ ЗДАНИЙ И СООРУЖЕНИЙ. Том 1. Проектирование. Раздел 4 ПРОЕКТИРОВАНИЕ ВОДООТВОДОВ, пункт 4.5: ... При проектировании наружного организованного водоотвода необходимо соблюдать следующие требования: - расстояние между водосточными трубами должно быть не больше 24 м; ... Лично мы стараемся делать не более 18м. От диаметра желоба данная норма никак не зависит. 1 Посилання на коментар Поділитися на інших сайтах More sharing options...
Admiral86 Опубліковано: 21 жовтня 2012 Поділитись Опубліковано: 21 жовтня 2012 Нуждаюсь в совете!Буду делать двух скатную крышу площать скатов одной стороны 100м2,длинна 15 метров.Вопрос,возможно сделать отвод воды в один ливнеприемник?Если возможно то какой уклон нада выдержать?Желоб 130,труба сливная 100 Посилання на коментар Поділитися на інших сайтах More sharing options...
domikoff Опубліковано: 22 жовтня 2012 Автор Поділитись Опубліковано: 22 жовтня 2012 Подскажите еще один вопрос. Стоит ли объединять два вертикальных стояка на углу дома в один при помощи тройника. Насколько я понимаю технически это возможно исходя из этого "одна водосточная труба диаметром 100 мм отводит воду с крыши площадью 220 м2." Интересует вопрос как такое соединение будет смотреться? не испортит ли это соединение внешнего вида? ЗЫ. хотелось бы минимизировать кол-во труб спускающихся с крыши дома. Посилання на коментар Поділитися на інших сайтах More sharing options...
Niklson Опубліковано: 22 жовтня 2012 Поділитись Опубліковано: 22 жовтня 2012 Подскажите еще один вопрос. Стоит ли объединять два вертикальных стояка на углу дома в один при помощи тройника. Насколько я понимаю технически это возможно исходя из этого "одна водосточная труба диаметром 100 мм отводит воду с крыши площадью 220 м2." Интересует вопрос как такое соединение будет смотреться? не испортит ли это соединение внешнего вида? ЗЫ. хотелось бы минимизировать кол-во труб спускающихся с крыши дома. Если Вы имеете ввиду стояк в осях 2-Г, то он у Вас там вообще не нужен. Соединение через тройник смотрится не очень эстетично. Посилання на коментар Поділитися на інших сайтах More sharing options...
staford Опубліковано: 22 жовтня 2012 Поділитись Опубліковано: 22 жовтня 2012 Делайте по Вашей схеме: 4 воронки на основной дом, на воронку которая опускается на крышу пристройки разуклонку делайте только с половины трапеции. По пристройке - 2 воронки, если конечно в углах пристройки нет небольших фронтонов (по схеме не совсем понятно) Посилання на коментар Поділитися на інших сайтах More sharing options...
Drongo81 Опубліковано: 26 жовтня 2012 Поділитись Опубліковано: 26 жовтня 2012 Это прописано в ДБН В.2.6-14-97 ПОКРЫТИЯ ЗДАНИЙ И СООРУЖЕНИЙ. Том 1. Проектирование. Раздел 4 ПРОЕКТИРОВАНИЕ ВОДООТВОДОВ, пункт 4.5: ... При проектировании наружного организованного водоотвода необходимо соблюдать следующие требования: - расстояние между водосточными трубами должно быть не больше 24 м; ... Лично мы стараемся делать не более 18м. От диаметра желоба данная норма никак не зависит. Спасибо. Теперь буду знать и источник этого требования. Посилання на коментар Поділитися на інших сайтах More sharing options...
Рекомендовані повідомлення
Створіть акаунт або увійдіть у нього для коментування
Ви маєте бути користувачем, щоб залишити коментар
Створити акаунт
Зареєструйтеся для отримання акаунта. Це просто!
Зареєструвати акаунтУвійти
Вже зареєстровані? Увійдіть тут.
Увійти зараз