s_fly Опубліковано: 30 жовтня 2012 Поділитись Опубліковано: 30 жовтня 2012 Доброго дня уважаемые форумчане! У меня на днях произошло крайне неприятное событие: треснула плита перекрытия после того, как ее положили на землю без боковых подпорок. Плита ПК 75-15. Почти сразу же подняли плиту. Снизу трещин нету. Сверху пошло две трещины: одна до арматуры а вторая еще и см. 15...20 по арматуре (фото 1, 2). Разрушение произошло практически посредине плиты, расстояние между трещинами около 1м. Что интересно было сразу замечено: плита стала как бы выпуклая (с горбом сверху) где то на 1...1,5см но уже на следующий день плита визуально стала ровнее. Виноватых не найти, но что делать вопрос открыт. По месту было принято решение монтировать плиту на три стороны (см фото 3 и схема фото 4) Плита перекрывает последний этаж, после чего планируется организация плоской крыши. По периметру плит в проекте предусмотрен обвязочный пояс. Так же под вопросом как теперь правильно поступить с расстоянием в 40см между плитами (Фото 3)? Один из вариантов сделать мощный армокаркас и залить бетоном высокой марки взяв таким образом плиту в железобетонный пояс. Но так как расстояние большое (7,25) не будет ли это вместо поддержки плиты дополнительной нагрузкой? Кто что может дельного посоветовать? Заранее спасибо Посилання на коментар Поділитися на інших сайтах More sharing options...
Mentor Опубліковано: 30 жовтня 2012 Поділитись Опубліковано: 30 жовтня 2012 1. Плита преднапряженная должна опираться на две опоры.... 2. 40см просвет между плитами можно и нужно распределить путем раздвигания остальных плит - получив 2 или 3 монолитных участка, которые проармировать. В этом случае получатся ж/б шпонки... ИМХО Посилання на коментар Поділитися на інших сайтах More sharing options...
s_fly Опубліковано: 30 жовтня 2012 Автор Поділитись Опубліковано: 30 жовтня 2012 1. Плита преднапряженная должна опираться на две опоры.... 2. 40см просвет между плитами можно и нужно распределить путем раздвигания остальных плит - получив 2 или 3 монолитных участка, которые проармировать. В этом случае получатся ж/б шпонки... ИМХО 1. Согласен, но мера исключительная. Перед принятием такого решения посоветовался с одним специалистом. В последствие это решение одобрим технолог завода, на котором покупал плиты. 2. К сожалению так сделать в моем случае невозможно. Посмотрите на фото 3, как уложена следующая плита Посилання на коментар Поділитися на інших сайтах More sharing options...
Shadow Lord Опубліковано: 30 жовтня 2012 Поділитись Опубліковано: 30 жовтня 2012 Была точно такая же проблема. Положили на землю - треснула пополам и сразу подняли, вернув в исходное положение. Основываясь на собственном машиностроительном образовании думаю это пофиг т.к. бетон работает в месте разлома на сжатие а не на растяжение. Для прахвэссианалов специально коментирую: нагружали поддонами с кипричами пока строили стены - ноль на массу. А вот надвинув плиту на стену по совету прахвэссионала вы тем самым подвергнули ее риску обратной ситуации , когда она снова треснет в результате неравномерной усадки стен. У меня правда тоже одна плита краем надвинута на стену, по причине криворуких прахвэсссианалов, пришлось там организовать зазор чтоб она краем не опиралась. 1 Посилання на коментар Поділитися на інших сайтах More sharing options...
Olenevod Опубліковано: 30 жовтня 2012 Поділитись Опубліковано: 30 жовтня 2012 У меня такая плита с 85го года в гараже лежит, перекрывает подвал. Трещина конкретная - арматуру видно по всей ширине. 30 лет - никаких подвижек. 2 Посилання на коментар Поділитися на інших сайтах More sharing options...
s_fly Опубліковано: 30 жовтня 2012 Автор Поділитись Опубліковано: 30 жовтня 2012 А вот надвинув плиту на стену по совету прахвэссионала вы тем самым подвергнули ее риску обратной ситуации , когда она снова треснет в результате неравномерной усадки стен. Как бы и согласен, но, надеюсь, правильно сделанные фундамент и армопояса не дадут столь катастрофическому развитию событий. Вот хоть и нахожу много подтверждений работоспособности такой плиты + собственная логика, однако часто одолевают сомнения из темы "лучше перебдеть..." Посилання на коментар Поділитися на інших сайтах More sharing options...
Александр. Киев Опубліковано: 30 жовтня 2012 Поділитись Опубліковано: 30 жовтня 2012 Как бы и согласен, но, надеюсь, правильно сделанные фундамент и армопояса не дадут столь катастрофическому развитию событий. Вот хоть и нахожу много подтверждений работоспособности такой плиты + собственная логика, однако часто одолевают сомнения из темы "лучше перебдеть..." Есть такое жизненное правило - не знаешь , что ответить да или нет - говори нет! Не уверен в плите поменяй на другую (чай вопрос то серьезный ). Все разговоры в сети незнакомых людей это просто разговоры. Есть официальное разрешение использовать от технолога (производителя) ? Что пишут ДБНы, СНИПы о такой ситуации? К экспертам обращались ? 2 Посилання на коментар Поділитися на інших сайтах More sharing options...
s_fly Опубліковано: 31 жовтня 2012 Автор Поділитись Опубліковано: 31 жовтня 2012 Есть такое жизненное правило - не знаешь , что ответить да или нет - говори нет! Не уверен в плите поменяй на другую (чай вопрос то серьезный ). Все разговоры в сети незнакомых людей это просто разговоры. Есть официальное разрешение использовать от технолога (производителя) ? Что пишут ДБНы, СНИПы о такой ситуации? К экспертам обращались ? Естественно официально никто разрешения давать не будет: кому нужны проблемы, тем более чужие. Однако общался с двумя экспертами. Есть некоторое несходство мнений, как правильно залить проем между плит. Однако оба утверждают, что плита еще всех переживет. Правда технолог дополнительно попросил сделать маяки на трещинах и понаблюдать 2-3 дня. И если маяк не треснет, можно смело оставлять плиту. Но меня интересует мнение других экспертов а также людей, которые эксплуатируют или имели положительный/отрицательный опыт работы с треснутыми плитами. У меня такая плита с 85го года в гараже лежит, перекрывает подвал. Трещина конкретная - арматуру видно по всей ширине. 30 лет - никаких подвижек. Если Вас не затруднит, сделайте пожалуйста фото трещины и всей плиты в целом Посилання на коментар Поділитися на інших сайтах More sharing options...
СигурниВивер Опубліковано: 31 жовтня 2012 Поділитись Опубліковано: 31 жовтня 2012 А если попытаться усилить плиту - раскрыть по 1,5 м от трещины по пустотам, поставить ограничители (куски кирпича), только не по порядку, а через одну вскрывать и то не в один день. Вставить арматурный каркас 2х12 с перевязкой через 150мм ф6 и залить бетоном с вибрированием? 1 Посилання на коментар Поділитися на інших сайтах More sharing options...
s_fly Опубліковано: 31 жовтня 2012 Автор Поділитись Опубліковано: 31 жовтня 2012 А если попытаться усилить плиту - раскрыть по 1,5 м от трещины по пустотам, поставить ограничители (куски кирпича), только не по порядку, а через одну вскрывать и то не в один день. Вставить арматурный каркас 2х12 с перевязкой через 150мм ф6 и залить бетоном с вибрированием? Спасибо,интересная мысль, обязательно рассмотрю ее!!! Посилання на коментар Поділитися на інших сайтах More sharing options...
Mentor Опубліковано: 31 жовтня 2012 Поділитись Опубліковано: 31 жовтня 2012 Спасибо,интересная мысль, обязательно рассмотрю ее!!! Дурость это, а не мысль...- по трудозатратам, а может и по стоимости такие мероприятия обойдутся не дешевле заказа новой плиты!!! При этом не гарантируют работоспособности такого решения. С такой поперечной трещиной я б плиту снял нафиг....Сколько она стоит? Думаю до 2тыс. - эти деньги стоят таких танцев с бубном и беспокойства на всю оставшуюся жизнь??? ИМХО- положите ее вместо какой-нить дорожки и закажите новую! 4 Посилання на коментар Поділитися на інших сайтах More sharing options...
Сельдь(и)рейка Опубліковано: 31 жовтня 2012 Поділитись Опубліковано: 31 жовтня 2012 Трещина вдоль плиты не опасна. Гораздо опаснее трещины поперек.Так вот если поперечных трещин нет, то и не забивайте себе голову. Мне приходилось рубить плиты вдоль, за неимением нужной ширины плиты. Посилання на коментар Поділитися на інших сайтах More sharing options...
Mentor Опубліковано: 31 жовтня 2012 Поділитись Опубліковано: 31 жовтня 2012 Трещина вдоль плиты не опасна. Ведь совершенно очевидно, что трещина у ТС поперечная. s_fly, задайте себе вопрос - вы бы купили такую плиту на заводе? Вас бы убедили заверения манагеров, о том, что "ничего страшного"? Или потребовали бы замены на нормальную? Все таки, вам под этой "ничего страшного" плитой жить... 1 Посилання на коментар Поділитися на інших сайтах More sharing options...
Romb Опубліковано: 31 жовтня 2012 Поділитись Опубліковано: 31 жовтня 2012 Спасибо,интересная мысль, обязательно рассмотрю ее!!! И все таки с третьей стороны уберите опирание. Как Вы думаете, на нормальной стройке, на потоке, да при монтаже , как правило ночью, кто то заморачивается этим? И не потому, что халтурщики, а потому, что невозможно заметить , а тем более зимой когда снегу налипло. Снизу трещины нет, значит плита нормально рабочая.Да и верхняя, без нагрузки. Ну а если все же гложет червь, то меняйте и не пытайтесь себя обмануть. 1 Посилання на коментар Поділитися на інших сайтах More sharing options...
s_fly Опубліковано: 31 жовтня 2012 Автор Поділитись Опубліковано: 31 жовтня 2012 (змінено) Дурость это, а не мысль...- по трудозатратам, а может и по стоимости такие мероприятия обойдутся не дешевле заказа новой плиты!!! При этом не гарантируют работоспособности такого решения. С такой поперечной трещиной я б плиту снял нафиг....Сколько она стоит? Думаю до 2тыс. - эти деньги стоят таких танцев с бубном и беспокойства на всю оставшуюся жизнь??? ИМХО- положите ее вместо какой-нить дорожки и закажите новую! По крайней мере посоветуюсь... Но и не думаю, что такой "ремонт" будет настолько дорогим Плита стоит 3000+, доставка 1000, кран 1500... Согласен, что на фоне всей стройки это копейки. Кроме того это время и большая зависимость от погоды (заезд по грунту). Но, наверное, это все не столь важно, чем безопасность с одной стороны, а с другой не хочется зря выбрасывать деньги на ветер. Был бы я сыном Рокфеллера, очевидно темы такой на форуме не возникло. Сейчас мне крайне важно мнение специалистов и практиков Змінено 24 лютого 2013 користувачем Прохожий Посилання на коментар Поділитися на інших сайтах More sharing options...
Shadow Lord Опубліковано: 31 жовтня 2012 Поділитись Опубліковано: 31 жовтня 2012 А если попытаться усилить плиту - раскрыть по 1,5 м от трещины по пустотам, поставить ограничители (куски кирпича), только не по порядку, а через одну вскрывать и то не в один день. Вставить арматурный каркас 2х12 с перевязкой через 150мм ф6 и залить бетоном с вибрированием? Думаю что идея, простите, тупая. Мы ведь пытаемся что сделать? Обезопасить плиту от поперечного прогиба под весом действующих на нее нагрузок. Представте себе какие силы при этом будут действовать на ваши арматурные каркасы, и на что они будут опираться. В общем они только дадут дополнительный вес на плиту и разрушат ее сверху (в случае прогиба). Представте букву А вверх ногами... такое получится.. Добавлено через 1 минуту Был бы я сыном Ротвейлера Сын Ротвейлера - это круто! 3 Посилання на коментар Поділитися на інших сайтах More sharing options...
СигурниВивер Опубліковано: 31 жовтня 2012 Поділитись Опубліковано: 31 жовтня 2012 Думаю что идея, простите, тупая. Мы ведь пытаемся что сделать? Обезопасить плиту от поперечного прогиба под весом действующих на нее нагрузок. Представте себе какие силы при этом будут действовать на ваши арматурные каркасы, и на что они будут опираться. В общем они только дадут дополнительный вес на плиту и разрушат ее сверху (в случае прогиба). Представте букву А вверх ногами... такое получится.. Опираться каркасы будут на полки бетонных "двутавров" плиты. Зачем, по-вашему, делают армированные шпонки между плитами? (при расстоянии от 50 до 100мм между плитами) Как такие шпонки передают нагрузку на соседние плиты? Я не претендую на принятие моего решения, была бы моя плита, наверно заменил. 2 Посилання на коментар Поділитися на інших сайтах More sharing options...
Shadow Lord Опубліковано: 31 жовтня 2012 Поділитись Опубліковано: 31 жовтня 2012 Опираться каркасы будут на полки бетонных "двутавров" плиты. В этом "двутавре" в нижней части есть арматура а в верхней нет. Кроме того нижнюю часть "двутавра" с верхней ничего не связывает кроме хрупкого бетона. Этот кусочек легко отламается в самой тонкой части двотавра. 1 Посилання на коментар Поділитися на інших сайтах More sharing options...
Hover Опубліковано: 31 жовтня 2012 Поділитись Опубліковано: 31 жовтня 2012 Как лежит плита ибо на чертеже не совсем понятно, так 0й рис. или так 2й рис. Где именно треснуло; 3й рис. А вы уверены что именно треснула плита..... . 4й рис, это как бы сказать один из самых средне тяжелый случай, бывает и похуже, остальные варианты вылажу потом как получу всю информацию. 2 Посилання на коментар Поділитися на інших сайтах More sharing options...
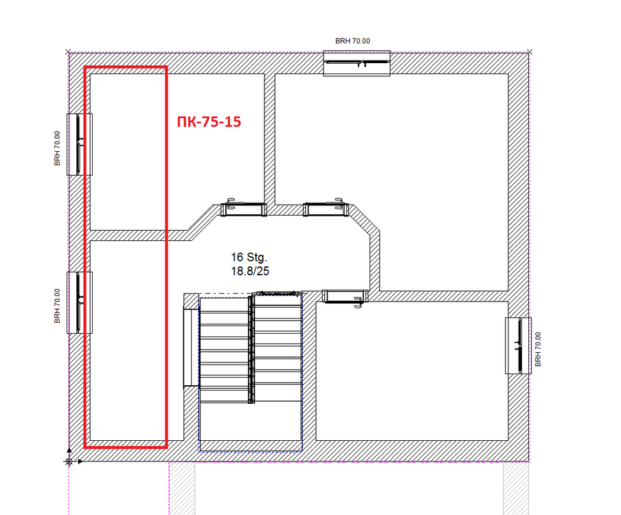
s_fly Опубліковано: 31 жовтня 2012 Автор Поділитись Опубліковано: 31 жовтня 2012 Как лежит плита ибо на чертеже не совсем понятно, так или так; Ну вот как нарисовано, так и лежит (тремя сторонами на несущих стенках). Какие у Вас есть варианты? Посилання на коментар Поділитися на інших сайтах More sharing options...
Александр. Киев Опубліковано: 31 жовтня 2012 Поділитись Опубліковано: 31 жовтня 2012 ... Однако общался с двумя экспертами... оба утверждают, что плита еще всех переживет. Правда технолог дополнительно попросил сделать маяки на трещинах и понаблюдать 2-3 дня. И если маяк не треснет, можно смело оставлять плиту... Поедьте на завод и узнайте отбраковываются с таким дефектом плиты или нет. Вот и будет Вам обоснованное решение. Ну сломали плиту , бывает. Примите непростое (правильное) решение и замените. Время от времени и у нас бывают легкие землетрясения. Что должно произойти в Вашей жизни такого , что бы пришло понимание ответственности за неправильное решение в таком вопросе??? С одной стороны весов 5000 гривен с другой жизнь кого то из близких или своя. Жадность или здравый смысл. Кто кого? 1 Посилання на коментар Поділитися на інших сайтах More sharing options...
s_fly Опубліковано: 31 жовтня 2012 Автор Поділитись Опубліковано: 31 жовтня 2012 Поедьте на завод и узнайте отбраковываются с таким дефектом плиты или нет. Вот и будет Вам обоснованное решение. Ну сломали плиту , бывает. Примите непростое (правильное) решение и замените. Время от времени и у нас бывают легкие землетрясения. Что должно произойти в Вашей жизни такого , что бы пришло понимание ответственности за неправильное решение в таком вопросе??? С одной стороны весов 5000 гривен с другой жизнь кого то из близких или своя. Жадность или здравый смысл. Кто кого? Делаем ставки) Ясный красный, что такого допускать нельзя и завод такой товар не отгрузит. А землетрясение эта таки стремно Посилання на коментар Поділитися на інших сайтах More sharing options...
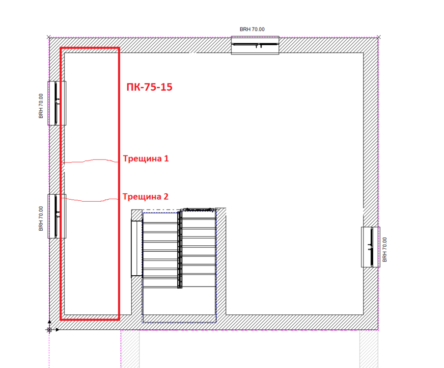
s_fly Опубліковано: 31 жовтня 2012 Автор Поділитись Опубліковано: 31 жовтня 2012 Как лежит плита ибо на чертеже не совсем понятно, так 0й рис. или так 2й рис. Плита лежит как 0-й рис, однако самого перестенка еще нет и он не несущий. Сверху будет плоская кровля: утеплитель, разуклонка (стяжка), гидроизоляция Где именно треснуло; 3й рис. Место трещины смотрите на рисунке. А вы уверены что именно треснула плита.... К сожалению уверен... Трещины проходят через всю плиту сверху и видны по обеим боковым сторонам (обратите, пожалуйста, внимание на фото в моем первом сообщении). 4й рис, это как бы сказать один из самых средне тяжелый случай, бывает и похуже, остальные варианты вылажу потом как получу всю информацию. Посилання на коментар Поділитися на інших сайтах More sharing options...
alex.hohol Опубліковано: 31 жовтня 2012 Поділитись Опубліковано: 31 жовтня 2012 s_fly_________Плита лежит как 0-й рис, однако самого перестенка еще нет и он не несущий.... _____________________________ Первое - если есть хоть малейшая возможность , то плиту поменяйте. Второе - если спасаете плиту : Ваша плита лежит левым боком на стене , а это значит что левая сторона менее опасна (стену нужно проармировать ,сделать привязку к плите и замонолитить), по левой стороне понятно. Остаётся правая сторона : на Вашем рисунке видно две трещины... а на чертеже есть перестенок,значит нужно его делать несущим(проложите бетонный фундамент для перестенка шириной 30см.длиной по чертежу) и затем выложите подпорную стену в кирпич там где у Вас по чертежу перестенок (в районе верхней трещины). Далее где у Вас вход на лестницу есть стена (слева от лестницы : "под надписью трещина 2") и к этой стене пристраиваете колонну 25х25см. в направлении к плите (судя по чертежу она подойдёт под нижнюю трещину). Таким образом Вы сделаете опоры посередине и получите совместные две коротких плиты нагруженные на несущие стены по краям ,и перестенок с колонной по середине дома.Я понимаю что это гимморой, но другого варианта у Вас нет. Тем более что это всё должен делать мастер а не фламастер ,потому -как работа ответственная. Но я бы плиту поменял. Удачи... 1 Посилання на коментар Поділитися на інших сайтах More sharing options...
Hover Опубліковано: 1 листопада 2012 Поділитись Опубліковано: 1 листопада 2012 Рассмотрев повнимательней фотографии понял причину этих трещин, стены дали незначительную усадку так как не было монолитного пояса распределяющего нагрузку от плиты на стены. Что касается самой плиты и ее данных; Наименование: ПК 75-15-8 Геометрические размеры Длина L, мм:7480 Ширина В, мм:1490 Высота Н, мм:220 Характеристики Вес 1 шт, т:3.500 Нагрузка, кг/м2:800 ГОСТ: СТБ 1383-2003 от 26.06.2007 Как видим нагрузка, кг/м2:800 не забывайте что в ней есть еще и запас на излом, а еще планируете возвести перегородку вот она и родимая вас и спасет, трещины не растут, значит все в порядке незначительные эти трещины. А на будущие заказывайте проект, вот это то что сэкономили теперь ........ . ps... Я бы не менял, но это мое мнение. А для показа различных вариантов мне нужна все размеры но это все не за бесплатно будет делаться. На одной из картинок я показал сердито но надежно. 2 Посилання на коментар Поділитися на інших сайтах More sharing options...
Рекомендовані повідомлення
Створіть акаунт або увійдіть у нього для коментування
Ви маєте бути користувачем, щоб залишити коментар
Створити акаунт
Зареєструйтеся для отримання акаунта. Це просто!
Зареєструвати акаунтУвійти
Вже зареєстровані? Увійдіть тут.
Увійти зараз