skisnow Опубліковано: 26 листопада 2012 Поділитись Опубліковано: 26 листопада 2012 просьба к квалифицированным специалистам в данной области нужна недорогая схема обвязки данного котла система из двух веток по 7 батарей разводка двух трубка пп 32 батареи с термоголовками для понимания - я живу очень далеко от киева и местным монтажникам не конкурент)) не работал раньше с твердотопливниками и сейчас никак не розберусь чтоставить -гидрострелку или эсби или ладомат... советы можно сдесь если есть возможность схемку то в лс обещаю нигде не выкладывать и сохраню только для себя! Посилання на коментар Поділитися на інших сайтах More sharing options...
murava Опубліковано: 26 листопада 2012 Поділитись Опубліковано: 26 листопада 2012 Что вкладывается в понимание " недорого" ? ТТ котлы вообще " недорого" обвязывать противопоказано А тем более этот котел с принудительным наддувом, способным мощность поднять в полтора раза за 10 секунд. 1 Посилання на коментар Поділитися на інших сайтах More sharing options...
skisnow Опубліковано: 26 листопада 2012 Автор Поділитись Опубліковано: 26 листопада 2012 Что вкладывается в понимание " недорого" ? ТТ котлы вообще " недорого" обвязывать противопоказано А тем более этот котел с принудительным наддувом, способным мощность поднять в полтора раза за 10 секунд. это и ежу понятно)) нужно что бы конденсат не тек и обе ветки равномерно грелись если возможно то без ТА Посилання на коментар Поділитися на інших сайтах More sharing options...
skisnow Опубліковано: 26 листопада 2012 Автор Поділитись Опубліковано: 26 листопада 2012 наверное все еще работают)) или уже Посилання на коментар Поділитися на інших сайтах More sharing options...
murava Опубліковано: 26 листопада 2012 Поділитись Опубліковано: 26 листопада 2012 Если этим котлом будут пользоваться регулярно, я бы ставил ручной балансир в байпасс и гидрострелку. Не канонично, но при должной сноровке можно раз интуитивно настроить и не париться. Аварийная разгрузка в этой схеме - обязательное требование. 1 Посилання на коментар Поділитися на інших сайтах More sharing options...
skisnow Опубліковано: 26 листопада 2012 Автор Поділитись Опубліковано: 26 листопада 2012 Если этим котлом будут пользоваться регулярно, я бы ставил ручной балансир в байпасс и гидрострелку. Не канонично, но при должной сноровке можно раз интуитивно настроить и не париться. Аварийная разгрузка в этой схеме - обязательное требование. котлом будут пользоваться регулярно в течении 6 месяцев в году резерва нет я понимаю что вы человек очень занятой но если можно я выложу завтра чертеж отопления и если можно набросайте схемку в лс) звучит смешно как типа научи меня на пианино играть за пять минут)) Посилання на коментар Поділитися на інших сайтах More sharing options...
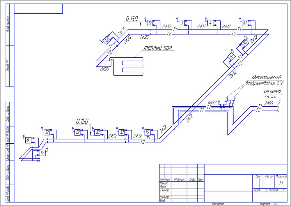
skisnow Опубліковано: 29 листопада 2012 Автор Поділитись Опубліковано: 29 листопада 2012 прилагаю схему системы отопления Посилання на коментар Поділитися на інших сайтах More sharing options...
skisnow Опубліковано: 15 грудня 2012 Автор Поділитись Опубліковано: 15 грудня 2012 и вот что у меня получилось) Посилання на коментар Поділитися на інших сайтах More sharing options...
troll_9000 Опубліковано: 16 грудня 2012 Поділитись Опубліковано: 16 грудня 2012 Дайте почту, сброшу схему. Недавно такую задачу решал Посилання на коментар Поділитися на інших сайтах More sharing options...
Рекомендовані повідомлення
Створіть акаунт або увійдіть у нього для коментування
Ви маєте бути користувачем, щоб залишити коментар
Створити акаунт
Зареєструйтеся для отримання акаунта. Це просто!
Зареєструвати акаунтУвійти
Вже зареєстровані? Увійдіть тут.
Увійти зараз