Andrey_Don Опубліковано: 28 листопада 2012 Поділитись Опубліковано: 28 листопада 2012 Добрый день! Прошу форумчан выразить мнения о моем наброске проекта. Изначальные пожелания: 1. Одноэтажный дом для 3-4-х человек площадью метров 120. 2. После долгих раздумий и размещения на этом форуме первого эскиза проекта, решил отказаться от пристроенного гаража, а для 2-х авто соорудить навес (с одной из сторон дома, с размещением машин одна за другой). 3. Без лишних окон по бокам – участок узкий. Правая сторона – северная и максимально близкая к забору (только небольшие оконца). 4. Три спальни приемлемых размеров и 2 полноценных санузла (в одном ванная, во втором – душевая кабина). 5. Терраса с задней стороны дома с выходом из дома. Эскиз составил с оглядкой на симпатичные проекты одноэтажников от Z500. Также постарался сгруппировать санузлы и котельную в одном месте (с кухней так не получилось, но с ней, как я понял, данный момент не столь критичен). Получился одноэтажный дом внутренней площадью около 126 квадратов (без терассы), шириной 11,5 метров и длиной примерно 15,5 метров. Располагается на участке ближе к улице, смещен к правой (северной) стороне. Посилання на коментар Поділитися на інших сайтах More sharing options...
ДОКС Опубліковано: 28 листопада 2012 Поділитись Опубліковано: 28 листопада 2012 весьма недурственно... прогресс на лицо... Дополнение: - сделать дверь с тамбура на кухню. 1 Посилання на коментар Поділитися на інших сайтах More sharing options...
Andrey_Don Опубліковано: 28 листопада 2012 Автор Поділитись Опубліковано: 28 листопада 2012 - сделать дверь с тамбура на кухню. Спасибо! А зачем дверь? Посилання на коментар Поділитися на інших сайтах More sharing options...
ДОКС Опубліковано: 28 листопада 2012 Поділитись Опубліковано: 28 листопада 2012 А зачем дверь? Боюсь показаться слишком прямолинейным, - это что бы из тамбура в кухню заходить. Посилання на коментар Поділитися на інших сайтах More sharing options...
Шуруп Опубліковано: 28 листопада 2012 Поділитись Опубліковано: 28 листопада 2012 www.mtmstyl.pl/projekt-as_2/rzuty/ Посилання на коментар Поділитися на інших сайтах More sharing options...
Dozdev Опубліковано: 28 листопада 2012 Поділитись Опубліковано: 28 листопада 2012 - нужен тамбур. холодная прихожая может выполнять функции тамбура, но не комфортно одевать зимой холодную обувь и куртку. - ширину холла следует уменьшить с 2,15 до 1,8 максимум -одновременно с планировкой прикидывайте и объемно-конструктивное решение дома, например, форму кровли и на что она будет опираться. 1 Посилання на коментар Поділитися на інших сайтах More sharing options...
Andrey_Don Опубліковано: 28 листопада 2012 Автор Поділитись Опубліковано: 28 листопада 2012 www.mtmstyl.pl/projekt-as_2/rzuty/ Похож. Подобных проектов очень много, но ключевые параметры - мне были нужны 2 полноценных санузла, минимум окон справа (спальня на север и на соседский забор - не комильфо), минимум окон слева (там длинный навес для авто). На Вашей ссылке ничего этого нет. Но хорошое решение фасадов, спасибо. Добавлено через 5 минут Боюсь показаться слишком прямолинейным, - это что бы из тамбура в кухню заходить. Слишком большая плата за это. 1.Ограничение в мебелировке прихожей и особено кухни (место для двери) 2.Лишние теплопотери. Пять шагов с продуктами и так сделаю. А с участка есть через террасу вход. Добавлено через 7 минут - нужен тамбур. холодная прихожая может выполнять функции тамбура, но не комфортно одевать зимой холодную обувь и куртку. - ширину холла следует уменьшить с 2,15 до 1,8 максимум -одновременно с планировкой прикидывайте и объемно-конструктивное решение дома, например, форму кровли и на что она будет опираться. По тамбуру - есть такая мысль, спасибо... Ширину холла с удовольствием бы уменьшил, но она упирается в ширину, необходимую для двух дверей в дальние спальни (( Для конструктивных решений будет нанят архитектор (кроме того, участок у нас с домом под снос, и постройка нового дома, вероятно, будет оформлена как реконструкция). Посилання на коментар Поділитися на інших сайтах More sharing options...
ДОКС Опубліковано: 28 листопада 2012 Поділитись Опубліковано: 28 листопада 2012 участок у нас с домом под снос, и постройка нового дома, вероятно, будет оформлена как реконструкция в таких случаях так не делается. ведь ключевые слова - снос и постройка Посилання на коментар Поділитися на інших сайтах More sharing options...
Andrey_Don Опубліковано: 28 листопада 2012 Автор Поділитись Опубліковано: 28 листопада 2012 в таких случаях так не делается. ведь ключевые слова - снос и постройка По словам районного архитектора, проект от конструкторского бюро должен включать описание того, что сейчас есть на участке - что сносится, что не сносится, проект нового дома (и двора). Как-то так... Ну, не пройдет реконструкция - ок, меня больше интересует размещение дома на прежем пятне застройки. Посилання на коментар Поділитися на інших сайтах More sharing options...
Dozdev Опубліковано: 2 грудня 2012 Поділитись Опубліковано: 2 грудня 2012 Ширину холла с удовольствием бы уменьшил, но она упирается в ширину, необходимую для двух дверей в дальние спальни можно уменьшить ширину верхнего санузла - получится Г-образный коридор, за счет этого можно будет и ширину коридора уменьшить и две двери поместить. Посилання на коментар Поділитися на інших сайтах More sharing options...
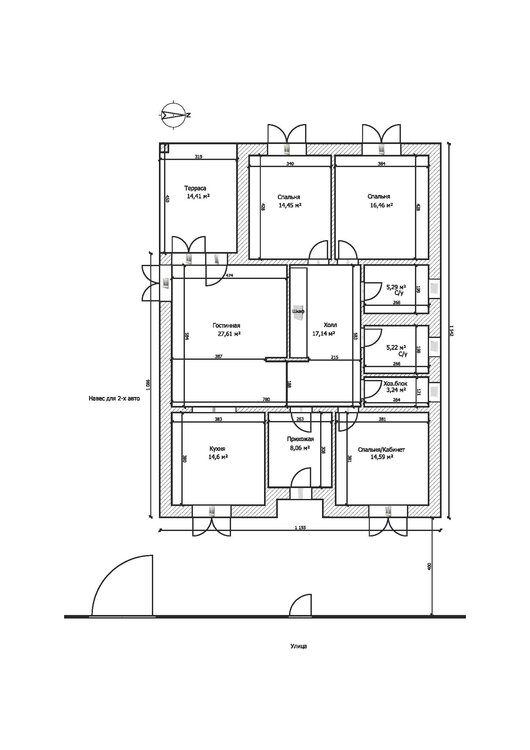
Andrey_Don Опубліковано: 3 грудня 2012 Автор Поділитись Опубліковано: 3 грудня 2012 можно уменьшить ширину верхнего санузла - получится Г-образный коридор, за счет этого можно будет и ширину коридора уменьшить и две двери поместить. Не люблю узкие Г-образные коридоры - в моем представлении в них темно и пыльно + лишние углы. Уменьшив двери в спальни до 80 см. (что допускается по нормативам), добился сужения холла примерно до 200 см, что уже лучше. Вот так теперь выглядит общий план дома, план с мебелью и 3d модель (Sweet Home 3D). Как Вам? Посилання на коментар Поділитися на інших сайтах More sharing options...
Вячеслав-777 Опубліковано: 3 грудня 2012 Поділитись Опубліковано: 3 грудня 2012 Я бы еще поменял местами кухню и кабинет. Ну и сделал бы окошко в зале (угол в низу слева, там где цветочки стоят). А вооще мне нравится 1 Посилання на коментар Поділитися на інших сайтах More sharing options...
Mentor Опубліковано: 3 грудня 2012 Поділитись Опубліковано: 3 грудня 2012 Нравиться! Плюсую 1 Посилання на коментар Поділитися на інших сайтах More sharing options...
Andrey_Don Опубліковано: 3 грудня 2012 Автор Поділитись Опубліковано: 3 грудня 2012 Я бы еще поменял местами кухню и кабинет. Принципиально планировался прямой доступ из кухню в гостиную (и террасу) через раздвижную дверь. Добавлено через 1 минуту Ну и сделал бы окошко в зале мысль была. Но там слева от дома - 10-метровый навес для автомобилей... Это окно будет темным все равно. А до углового окна гостиной навес заканчивается. Добавлено через 1 минуту А вооще мне нравится Нравиться! Плюсую Спасибо! Посилання на коментар Поділитися на інших сайтах More sharing options...
Dozdev Опубліковано: 3 грудня 2012 Поділитись Опубліковано: 3 грудня 2012 если тамбур будет неотапливаемый - стены тамбура (общие с кухней и кабинетом) надо будет утеплить. Гостиную можно не перекрывать перекрытием, и установить в кровле несколько мансардных окон.. А то будет, мне кажется темное помещение. Тем более, что террасу, вполне вероятно тоже захочется накрыть навесом. Посилання на коментар Поділитися на інших сайтах More sharing options...
Andrey_Don Опубліковано: 3 грудня 2012 Автор Поділитись Опубліковано: 3 грудня 2012 (змінено) если тамбур будет неотапливаемый - стены тамбура (общие с кухней и кабинетом) надо будет утеплить. Тамбур планируется отапливаемый - он большой, это прихожая. А входная дверь - обязательно двойная, с утеплением (этот вопрос еще надо будет обдумать). Делать отдельный неотапливаемый тамбур не хочется... Добавлено через 9 минут Гостиную можно не перекрывать перекрытием, и установить в кровле несколько мансардных окон.. А то будет, мне кажется темное помещение. Тем более, что террасу, вполне вероятно тоже захочется накрыть навесом. Да, терраса будет прикрыта крышей дома, как у поляков в z500. Освещение гостиной предполагается из юго-западного "балконного блока", выходящего на террасу (тем более, терраса достаточно узкая по ширине) и углового окна на южную сторону (оно ничем не прикрыто). Дополнительное освещение гостиной будет из кухни (перегородка планируется светопропускающая, да и закрываться она будет только во время готовки). На счет отсутствия перекрытия и мансардных окон в гостиной - идея интересная, надо подумать. С другой стороны, это будут окна на юг, на самую жару (а в Донецке на солнце летом до +45). Кроме того, система излишне усложнит крышу. Змінено 3 грудня 2012 користувачем Andrey_Don Посилання на коментар Поділитися на інших сайтах More sharing options...
Mentor Опубліковано: 4 грудня 2012 Поділитись Опубліковано: 4 грудня 2012 А какие мысли и наработки есть по фасаду, крыше (тип,материалы, стропилка)... Посилання на коментар Поділитися на інших сайтах More sharing options...
Andrey_Don Опубліковано: 4 грудня 2012 Автор Поділитись Опубліковано: 4 грудня 2012 А какие мысли и наработки есть по фасаду, крыше (тип,материалы, стропилка)... Крышу думаю простую, четырехскатную, как у популярных одноэтажников от z500, в которых я черпал вдохновение. z500.com.ua/ru/project/z24 z500.com.ua/ru/project/z10 Эти проекты нравятся по оформлению стен (штукатурка), решению входной группы (ниша в стене вместо козырька), решению террасы (под общей крышей с домом). Кроме того, они примерно сопоставимы по размерам с моим эскизом (z10). Технические нюансы по крыше будут считать специалисты. Мои пожеланию ограничиваются лишь доступом на чердак по раздвижной лестнице из холла и возможностью со временем, при необходимости, оборудовать там небольшую комнату с легкой мебелью - типа кабинета или творческой мастерской. Перекрытия, вероятно, по деревянным балкам, стропильная система - как на этих реализациях проекта z500. (ссылка устарела) Кровельный материал - вероятно, металлочерепица, но плотно этим вопросом еще не занимался. Посилання на коментар Поділитися на інших сайтах More sharing options...
Mentor Опубліковано: 22 грудня 2012 Поділитись Опубліковано: 22 грудня 2012 Подписался. Буду следить за продолжением. Камин не планируете? Посилання на коментар Поділитися на інших сайтах More sharing options...
Andrey_Don Опубліковано: 24 грудня 2012 Автор Поділитись Опубліковано: 24 грудня 2012 Mentor, камин не планируем, разве что электрический Нет привычки и желания с камином возиться, имхо. Посилання на коментар Поділитися на інших сайтах More sharing options...
-enjoy- Опубліковано: 24 грудня 2012 Поділитись Опубліковано: 24 грудня 2012 Mentor, камин не планируем, разве что электрический Нет привычки и желания с камином возиться, имхо. по камину Вы правильно сказали...возни много,если он открытый. А вот место для закрытой топки на Ваши квадраты я б оооЧЧень хорошо подумал. По проекту я бы все-таки поменял местами спальня-кухня....с точки зрения коммуникаций это идеально. Если нет,то с тамбура (благо места хватает) сделал бы дверь в кухню. Не делал бы одинаковые санузлы....лучше вариант №1 -один маленький (унитаз,душ.кабина и умывальник) и один большой (ваннная,душ кабина,унитаз,биде,умывальник). или вариант №2 один большой санузел и большой хозблок,где будет место котлу, а также стирке,глажке и т.д. 1 Посилання на коментар Поділитися на інших сайтах More sharing options...
Mentor Опубліковано: 24 грудня 2012 Поділитись Опубліковано: 24 грудня 2012 Ростя дело говорит. В своем проекте кухню пристроил ближе к хозблоку - коммуникации сведены компактно, вентиляция, подключения газа... Камин конечно на любителя, но....частный дом без огня...не понимаю...Не говоря уже о возможной энергетической автономности.... Посилання на коментар Поділитися на інших сайтах More sharing options...
-enjoy- Опубліковано: 24 грудня 2012 Поділитись Опубліковано: 24 грудня 2012 .Не говоря уже о возможной энергетической автономности.... Тем более один этаж....по чердаку трубы теплого воздуха развел и все. По поводу коммуникаций еще раз ремарка....... Andrey_Don, у вас справа в котельную(хозблок) заходит к котлу газовая труба. А теперь представьте себе теперь как эта желтая линия (труба) идет по наружке фасадной части дома, миная все эти П-образные входные перепадины к кухне к плите. Варинты: 1) пускать от хозблока под землей к кухне. Но это гимор со всеми вытекающими последствиями. 2) ставить электроплиту. 3) менять местами кухню 2 Посилання на коментар Поділитися на інших сайтах More sharing options...
Andrey_Don Опубліковано: 25 грудня 2012 Автор Поділитись Опубліковано: 25 грудня 2012 По проекту я бы все-таки поменял местами спальня-кухня... Вы привели серьезные аргументы, есть над чем подумать. По газовой трубе - наиболее важный момент. С другой стороны - труба на участке сейчас торчит из-под земли примерно напротив кухни (предполагаемой по эскизу). Следовательно, трубу в любом случае нужно будет протянуть по фасаду дома к котельной? (конечно, можно было бы переместить котельную поближе к вводу трубы, но места с южной и восточной стороны все и так "на вес золота", да и на северной стороне котельной самое место). ставить электроплиту. Кстати, с появлением индукционок и мультиварок - тоже не самый плохой вариант Не делал бы одинаковые санузлы....лучше вариант №1 -один маленький (унитаз,душ.кабина и умывальник) и один большой (ваннная,душ кабина,унитаз,биде,умывальник). Вероятно, это имеет смысл для увеличения площади хоз.блока хотя бы до 5-6 кв.м, иначе там при необходимости не поместится серьезное оборудование - например, бак для воды. П-образные входные перепадины Смотря на нынешний снег и морозы, думаю, все же выровнять П-образный фасад, "разбавив" его просто красивым крыльцом. А вот место для закрытой топки на Ваши квадраты я б оооЧЧень хорошо подумал. А вот этот интересно. Имеется в виду груба? Или ТТ-котел? Кстати, по поводу квадратов - их много? Я наоборот считаю дом компактным Еще раз спасибо за комментарии. Посилання на коментар Поділитися на інших сайтах More sharing options...
-enjoy- Опубліковано: 26 грудня 2012 Поділитись Опубліковано: 26 грудня 2012 А вот этот интересно. Имеется в виду груба? Или ТТ-котел? Кстати, по поводу квадратов - их много? Я наоборот считаю дом компактным Не груба и не ТТ-котел. Имеется ввиду закрытая чугунная топка с разводкой труб теплого воздуха в другие комнаты. То есть не только созерцание красивого огня и безопасность, но и энергоавтономность в форс-мажорных случаях. Помним,что ТТ котел также зависим от электричества. А нынешний снегопад я думаю многих заставил задуматься. Короче, Вам в раздел "Печи и камины", только шизофрению там не заработайте. Не зря Mentor и я обмолвились о топке/камине,т.к. всеравно потом все приходят в даный раздел и ищут пути решения. Я,например, искал. по квадратам.....все индивудально.....знаю одно,что дорого :D По проекту.....бывал я в одном одноэтажном доме. Очень понравился планировкой. Чем-то на Ваш похож, но более продуманный. Нарисовал как смог по памяти, может поможет (могу и сфоткать наружку): 1 Посилання на коментар Поділитися на інших сайтах More sharing options...
Рекомендовані повідомлення
Створіть акаунт або увійдіть у нього для коментування
Ви маєте бути користувачем, щоб залишити коментар
Створити акаунт
Зареєструйтеся для отримання акаунта. Це просто!
Зареєструвати акаунтУвійти
Вже зареєстровані? Увійдіть тут.
Увійти зараз