djgad Опубліковано: 4 грудня 2012 Поділитись Опубліковано: 4 грудня 2012 (змінено) Добрый день, отпишусь о своей стройке под Одессой, село Усатово. До этого не было времени, занимался стройкой Змінено 4 грудня 2012 користувачем djgad 1 Посилання на коментар Поділитися на інших сайтах More sharing options...
djgad Опубліковано: 4 грудня 2012 Автор Поділитись Опубліковано: 4 грудня 2012 1 Посилання на коментар Поділитися на інших сайтах More sharing options...
djgad Опубліковано: 4 грудня 2012 Автор Поділитись Опубліковано: 4 грудня 2012 Вначале была маленькая проблема, на участке был котлован от предыдущих владельцев, подвал мы не рассматривали поэтому пришлось проделать некоторые работы 1 Посилання на коментар Поділитися на інших сайтах More sharing options...
djgad Опубліковано: 4 грудня 2012 Автор Поділитись Опубліковано: 4 грудня 2012 трактор расширил котлован под пятно нашего дома, а виброкаток и погрузчик послойно утрамбовывали, последний метр сыпал песок с щебнем. Конечно дорого но подвала не хотелось 1 Посилання на коментар Поділитися на інших сайтах More sharing options...
djgad Опубліковано: 4 грудня 2012 Автор Поділитись Опубліковано: 4 грудня 2012 Через месяца 3 пришлось еще подсыпать до уровня, теперь утаптывали виброногой 1 Посилання на коментар Поділитися на інших сайтах More sharing options...
djgad Опубліковано: 4 грудня 2012 Автор Поділитись Опубліковано: 4 грудня 2012 Ближе к августу, начали делать опалубку, т.к. строители все были заняты, то пришлось начинать самим сделали опалубку на подбетонку с отцом 1 Посилання на коментар Поділитися на інших сайтах More sharing options...
djgad Опубліковано: 4 грудня 2012 Автор Поділитись Опубліковано: 4 грудня 2012 позже нашли работяг дело пошло быстрее 1 Посилання на коментар Поділитися на інших сайтах More sharing options...
djgad Опубліковано: 4 грудня 2012 Автор Поділитись Опубліковано: 4 грудня 2012 Привезли керамоблоки 44 см, три фуры, всего 3700 блоков, около 150 битых 1 Посилання на коментар Поділитися на інших сайтах More sharing options...
djgad Опубліковано: 4 грудня 2012 Автор Поділитись Опубліковано: 4 грудня 2012 Залили пятку фундамента 1 Посилання на коментар Поділитися на інших сайтах More sharing options...
djgad Опубліковано: 4 грудня 2012 Автор Поділитись Опубліковано: 4 грудня 2012 кинули блоки и обвязали монолитным поясом 1 Посилання на коментар Поділитися на інших сайтах More sharing options...
djgad Опубліковано: 4 грудня 2012 Автор Поділитись Опубліковано: 4 грудня 2012 Утеплили фундамент экструдированным пенополистиролом 4см, два слоя по два листа. 1 Посилання на коментар Поділитися на інших сайтах More sharing options...
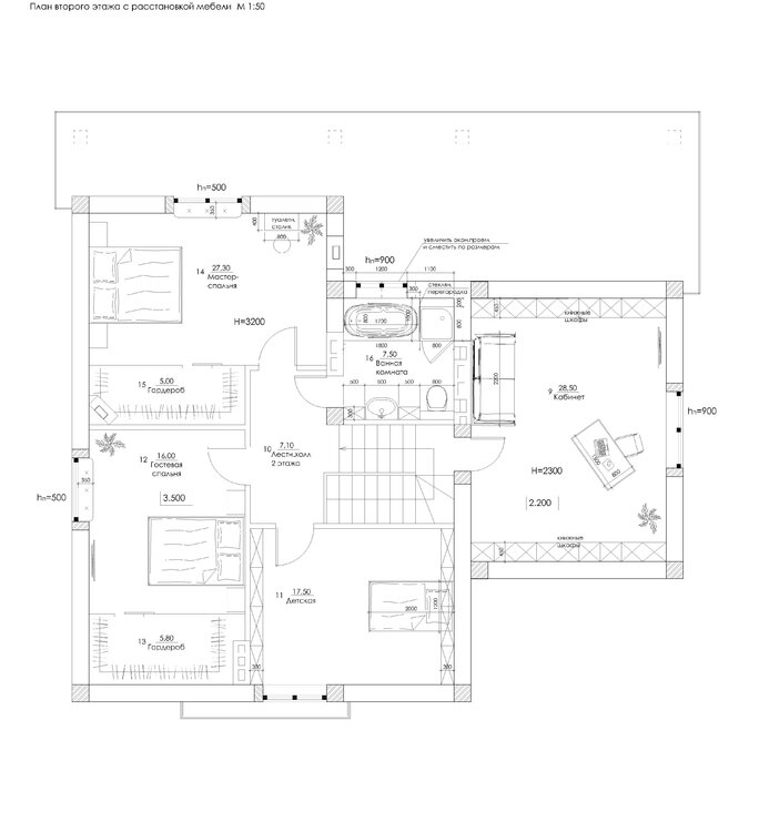
VW2010 Опубліковано: 4 грудня 2012 Поділитись Опубліковано: 4 грудня 2012 Приветствую. А план дома с размерами, а не только с площадями есть? Посилання на коментар Поділитися на інших сайтах More sharing options...
djgad Опубліковано: 4 грудня 2012 Автор Поділитись Опубліковано: 4 грудня 2012 поставили первый ряд блоков и сделали в гараже яму 1 Посилання на коментар Поділитися на інших сайтах More sharing options...
djgad Опубліковано: 4 грудня 2012 Автор Поділитись Опубліковано: 4 грудня 2012 Вот так растут стены 1 Посилання на коментар Поділитися на інших сайтах More sharing options...
djgad Опубліковано: 4 грудня 2012 Автор Поділитись Опубліковано: 4 грудня 2012 1 Посилання на коментар Поділитися на інших сайтах More sharing options...
djgad Опубліковано: 4 грудня 2012 Автор Поділитись Опубліковано: 4 грудня 2012 На сегодняшний день дошли до крыши, 1 Посилання на коментар Поділитися на інших сайтах More sharing options...
djgad Опубліковано: 4 грудня 2012 Автор Поділитись Опубліковано: 4 грудня 2012 Приветствую. А план дома с размерами, а не только с площадями есть? за основу взяли польский проект яспис 1 Посилання на коментар Поділитися на інших сайтах More sharing options...
bajerino Опубліковано: 5 грудня 2012 Поділитись Опубліковано: 5 грудня 2012 А какое отопление планируется в доме? Посилання на коментар Поділитися на інших сайтах More sharing options...
addinol Опубліковано: 5 грудня 2012 Поділитись Опубліковано: 5 грудня 2012 По чем ложили керамблок. Посилання на коментар Поділитися на інших сайтах More sharing options...
ddrevniy Опубліковано: 5 грудня 2012 Поділитись Опубліковано: 5 грудня 2012 Хороший проект. Удачи! 1 Посилання на коментар Поділитися на інших сайтах More sharing options...
djgad Опубліковано: 7 грудня 2012 Автор Поділитись Опубліковано: 7 грудня 2012 По чем ложили керамблок. 170 грв за куб 1 Посилання на коментар Поділитися на інших сайтах More sharing options...
addinol Опубліковано: 10 грудня 2012 Поділитись Опубліковано: 10 грудня 2012 А покупали керам по скоко? Посилання на коментар Поділитися на інших сайтах More sharing options...
djgad Опубліковано: 10 грудня 2012 Автор Поділитись Опубліковано: 10 грудня 2012 А покупали керам по скоко? 25 гривен штука, это со скидкой, сейчас вроде бы 27 хотят 2 Посилання на коментар Поділитися на інших сайтах More sharing options...
djgad Опубліковано: 2 січня 2013 Автор Поділитись Опубліковано: 2 січня 2013 Почти накрыли крышу, брали цементно-песчаную Braas Посилання на коментар Поділитися на інших сайтах More sharing options...
Рекомендовані повідомлення
Створіть акаунт або увійдіть у нього для коментування
Ви маєте бути користувачем, щоб залишити коментар
Створити акаунт
Зареєструйтеся для отримання акаунта. Це просто!
Зареєструвати акаунтУвійти
Вже зареєстровані? Увійдіть тут.
Увійти зараз