Перейти до публікації
Пошук в
  • Додатково...
Шукати результати, які містять...
Шукати результати в...

Подскажите пожалуйста по замерам БТИ

Лонский

Рекомендовані повідомлення

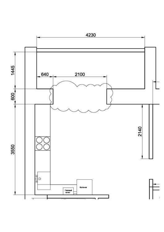
Вопрос в следующем: имеется квартира в новострое, по проекту лоджия шла с балконным блоком (окном и дверью) и с коэффициентом уменьшения для лоджии к=0,5, а по факту построил без блока и поставил на лоджии батарею соответственно коэффициент поменялся к=1, подскажите пожалуйста учитывается ли при подсчете площади проем (выделен облаком) который образовался вместо балконного блока?

122.!!!!!dwg-Model.thumb.jpg.cf48f41f7da0e6bd9a77f6c7930c7f96.jpg

Посилання на коментар
Поділитися на інших сайтах

Створіть акаунт або увійдіть у нього для коментування

Ви маєте бути користувачем, щоб залишити коментар

Створити акаунт

Зареєструйтеся для отримання акаунта. Це просто!

Зареєструвати акаунт

Увійти

Вже зареєстровані? Увійдіть тут.

Увійти зараз
×
×
  • Створити...