SergeyT Опубліковано: 30 січня 2013 Поділитись Опубліковано: 30 січня 2013 Всем Доброго времени суток! Весной планируется строительство дачного домика-бани с мансардным этажом. Наша семья это - я, жена, трое детишек, собака и на лето планируется кот :D. Поэтому всем должно хватить места. Сделал небольшой проэкт. Фундамент с погребом уже готов, размером 6*6, поэтому старался уложиться в эти размеры. Буду рад любому совету. 1.pdf2.pdf3.pdf4.pdf Посилання на коментар Поділитися на інших сайтах More sharing options...
Александр2008_111 Опубліковано: 31 січня 2013 Поділитись Опубліковано: 31 січня 2013 1. На мою думку, будинок для 5 чоловік, якось занадто компактний; 2. Відсутність повноцінного тамбура веде, у конкретному випадку, до вільного надходження холодного чи гарячого повітря з вулиці на другий поверх; 3. Не подобається те, що сходовий марш бере початок з тамбура; 4. Вентканали і димоходи розкидані по всьому будинку. Потрібно якось об’єднувати. 5. З вікнами не розумію, на фасадах, що у вкладках одні габарити, а на мініатюрах інші? 2 Посилання на коментар Поділитися на інших сайтах More sharing options...
SergeyT Опубліковано: 4 лютого 2013 Автор Поділитись Опубліковано: 4 лютого 2013 1. На мою думку, будинок для 5 чоловік, якось занадто компактний; 2. Відсутність повноцінного тамбура веде, у конкретному випадку, до вільного надходження холодного чи гарячого повітря з вулиці на другий поверх; 3. Не подобається те, що сходовий марш бере початок з тамбура; 4. Вентканали і димоходи розкидані по всьому будинку. Потрібно якось об’єднувати. 5. З вікнами не розумію, на фасадах, що у вкладках одні габарити, а на мініатюрах інші? Дякую за увагу. Які тоді пропозиціії до рішення цих недоліків. 1. Будинок більше проєктувався як баня, але потім ще добавили другий поверх. Буде використовуватись не для постійного проживання. 2. Є варіант поставити двері на вході на сходи, але я думаю ускладнить ще більше ситуацію. 3. В мене був інший варіант , як на картинці, сходовий марш з кімнати, але архітектор перепланував 4. З вент каналами ще взагалі не розбирався. 5. Вікна так як на плані, фасади я сам малював, приблизно. Чекаю нових пропозицій та ідей. Посилання на коментар Поділитися на інших сайтах More sharing options...
вторик Опубліковано: 4 лютого 2013 Поділитись Опубліковано: 4 лютого 2013 скорей всего, радость обладания данным шедевром минимализма непокроет вложенных средств и усилий. у Вас получилась недобаня, с ущербным гостевым домиком. может стоит строить чтото одно? например такой вариант куда более подходит, как баня. найдите три отличия от вашого и поймете почему предложеннный Вам никуда негодится. для справки почитайте forum.rusbani.ru/index.php woodom.com.ua/ru/foto/ks/ Удачи 2 Посилання на коментар Поділитися на інших сайтах More sharing options...
SergeyT Опубліковано: 4 лютого 2013 Автор Поділитись Опубліковано: 4 лютого 2013 скорей всего, радость обладания данным шедевром минимализма непокроет вложенных средств и усилий. у Вас получилась недобаня, с ущербным гостевым домиком. может стоит строить чтото одно? например такой вариант куда более подходит, как баня. найдите три отличия от вашого и поймете почему предложеннный Вам никуда негодится. для справки почитайте Удачи Спасибо. Но вопрос остается открытым поскольку фундамент 6*6 уже существует и в него надо вложиться. :drinks: Посилання на коментар Поділитися на інших сайтах More sharing options...
вторик Опубліковано: 4 лютого 2013 Поділитись Опубліковано: 4 лютого 2013 на фундамент ЗАБИТЬ!!! всегда можно добетонить или часть неиспользовать. стойте для себя а не для фундамента, в противном случае вернетесь в эту темку через год полтора и поставите мне спасибо, но будет поздно. очень рекомендую посетить в ближайшее время платные баньки маленького формата, поймете почему я так категоричен. Посилання на коментар Поділитися на інших сайтах More sharing options...
SergeyT Опубліковано: 4 лютого 2013 Автор Поділитись Опубліковано: 4 лютого 2013 на фундамент ЗАБИТЬ!!! всегда можно добетонить или часть неиспользовать. стойте для себя а не для фундамента, в противном случае вернетесь в эту темку через год полтора и поставите мне спасибо, но будет поздно. очень рекомендую посетить в ближайшее время платные баньки маленького формата, поймете почему я так категоричен. Согласен, с ЗАБИТЬ, но, если добетонировать, не просядет ли он, если основной с подвалом и уже отстоял год, а то что добетонирую возьмет и просядет........... Появилась мысль со стороны входа террасу сделать в виде веранды, залить подушку под нее и сделать капитальные стены но потоньше не как в доме и всю остеклить.......... Посилання на коментар Поділитися на інших сайтах More sharing options...
SergeyT Опубліковано: 5 лютого 2013 Автор Поділитись Опубліковано: 5 лютого 2013 скорей всего, радость обладания данным шедевром минимализма непокроет вложенных средств и усилий. у Вас получилась недобаня, с ущербным гостевым домиком. может стоит строить чтото одно? например такой вариант куда более подходит, как баня. найдите три отличия от вашого и поймете почему предложеннный Вам никуда негодится. для справки почитайте Удачи Немного откорректировал свой проэкт, прошу к обсуждению:drinks: Посилання на коментар Поділитися на інших сайтах More sharing options...
SergeyT Опубліковано: 5 лютого 2013 Автор Поділитись Опубліковано: 5 лютого 2013 Немного откорректировал свой проэкт, прошу к обсуждению:drinks: Сам план :drinks: Посилання на коментар Поділитися на інших сайтах More sharing options...
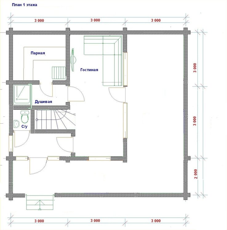
вторик Опубліковано: 5 лютого 2013 Поділитись Опубліковано: 5 лютого 2013 Прогресс налицо. Посему прокомментирую конструктивно. Парная со скошенным потолком, недопустимо, не парная это. Отсутствие мыльной как класса в Вашем проекте, не позволяет говорить о строении как о бане в принципе, тот загашничек который Вы отдаете под душ-ведро, крайне недостаточен. В мыльной нужно кроме естественно душа, посидеть между заходами в парную, в идеале массаж, обтирания итд, почитайте мои ссылки, сходите в правильную баню, станет понятнее. Дальше каменка, она 60% успеха. Вы планируете электрическую? Советы: Отказаться от санузла, перенесите его на второй этаж, вместо него сделайте нормальную мыльную, там и душ и ведро, возможно и купель поместятся, но не злоупотребляйте водными процедурами, разместите там хотя бы топчан, оставте максимум свободного места, там максимальный трафик. Лестницу перенесите над мыльной, для нее скошенный потолок непомеха, в дизайне может что интересное получится. Каменку поставьте к стене граничащей с гостиной, топить будет удобно, есть такие как камин с гостиной выглядят. Озвученное лиш точка зрения, перед вами горизонт, изучайте анализируйте. Удачи. 3 Посилання на коментар Поділитися на інших сайтах More sharing options...
SergeyT Опубліковано: 6 лютого 2013 Автор Поділитись Опубліковано: 6 лютого 2013 Прогресс налицо. Посему прокомментирую конструктивно. Парная со скошенным потолком, недопустимо, не парная это. Отсутствие мыльной как класса в Вашем проекте, не позволяет говорить о строении как о бане в принципе, тот загашничек который Вы отдаете под душ-ведро, крайне недостаточен. В мыльной нужно кроме естественно душа, посидеть между заходами в парную, в идеале массаж, обтирания итд, почитайте мои ссылки, сходите в правильную баню, станет понятнее. Дальше каменка, она 60% успеха. Вы планируете электрическую? Советы: Отказаться от санузла, перенесите его на второй этаж, вместо него сделайте нормальную мыльную, там и душ и ведро, возможно и купель поместятся, но не злоупотребляйте водными процедурами, разместите там хотя бы топчан, оставте максимум свободного места, там максимальный трафик. Лестницу перенесите над мыльной, для нее скошенный потолок непомеха, в дизайне может что интересное получится. Каменку поставьте к стене граничащей с гостиной, топить будет удобно, есть такие как камин с гостиной выглядят. Озвученное лиш точка зрения, перед вами горизонт, изучайте анализируйте. Удачи. Спасибо за советы и критику. Каменка будет на дровах и скорее всего сделаю по Вашему совету с выходом в комнату в виде камина. Горизонты изучаю и анализирую, но сколько строек, столько и мнений.......выбираем лучшее Посилання на коментар Поділитися на інших сайтах More sharing options...
SergeyT Опубліковано: 7 лютого 2013 Автор Поділитись Опубліковано: 7 лютого 2013 Пока вот так :drinks: Посилання на коментар Поділитися на інших сайтах More sharing options...
SergeyT Опубліковано: 8 лютого 2013 Автор Поділитись Опубліковано: 8 лютого 2013 Пока вот так :drinks: На другом форуме посоветовали сменить немного планировку..... Посилання на коментар Поділитися на інших сайтах More sharing options...
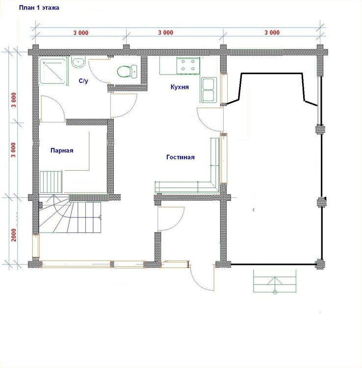
Александр2008_111 Опубліковано: 8 лютого 2013 Поділитись Опубліковано: 8 лютого 2013 На другом форуме посоветовали сменить немного планировку..... 1. Було б не погано розставити внутрішні розміри будинку; 2. вхід у будинок через кухню не найкращий варіант; 3. кухня дуже мала і не вистачає столика; 4. вхід під сходи, то куда? 5. краще було б зробити кухню поряд із с/у, це дасть змогу об’єднати витяжки, водопідвід та водовідвід; 6. хотілося б побачити 2 поверх. 2 Посилання на коментар Поділитися на інших сайтах More sharing options...
SergeyT Опубліковано: 11 лютого 2013 Автор Поділитись Опубліковано: 11 лютого 2013 1. Було б не погано розставити внутрішні розміри будинку; 2. вхід у будинок через кухню не найкращий варіант; 3. кухня дуже мала і не вистачає столика; 4. вхід під сходи, то куда? 5. краще було б зробити кухню поряд із с/у, це дасть змогу об’єднати витяжки, водопідвід та водовідвід; 6. хотілося б побачити 2 поверх. 1. Внутрішні розміри поки не готовий сказати, поки є фундамент 6*6 + добавим 2м і того 6 * 8 м. Стіна з газоблоку 30см + з середини вагонка, а це рейка 4-5см і вагонка 1,3см з двору утеплювач 5см + блок-хаус. Ось і вся стіна в 45см. 2. З входом через кухню згоден, потрібно переробити, які є пропозиції. 3. Кухня- студіо, буде просто арка, а стіл в кімнаті буде 4. Згоден перенести, знову таки, які є ідеї. 5. Другий поверх буде орієнтовно як на перших планах. Потрібно розібратись з першим і розмістити вихід на другий поверх Жду ідей і пропозицій. Посилання на коментар Поділитися на інших сайтах More sharing options...
SergeyT Опубліковано: 11 лютого 2013 Автор Поділитись Опубліковано: 11 лютого 2013 Ось що знову вийшло. Піч в парну буде виходити під сходами, щоб краще будо розпалювати. Посилання на коментар Поділитися на інших сайтах More sharing options...
вторик Опубліковано: 11 лютого 2013 Поділитись Опубліковано: 11 лютого 2013 щоб краще будо розпалювати по пластунски? Добавлено через 42 секунды оч на мою аватарку похоже Посилання на коментар Поділитися на інших сайтах More sharing options...
SergeyT Опубліковано: 11 лютого 2013 Автор Поділитись Опубліковано: 11 лютого 2013 по пластунски? Добавлено через 42 секунды оч на мою аватарку похоже С размерами еще не готов сказать как будет, но думаю 1,2-1,5м высоты будет места под площадкой. Посилання на коментар Поділитися на інших сайтах More sharing options...
SergeyT Опубліковано: 12 лютого 2013 Автор Поділитись Опубліковано: 12 лютого 2013 Что бы не возникало у некоторых вопросов по поводу куда и как добираться, уложил свой проэкт в размеры. Вот что получилось. Одна клеточка - 0,17м.;) Посилання на коментар Поділитися на інших сайтах More sharing options...
SergeyT Опубліковано: 15 лютого 2013 Автор Поділитись Опубліковано: 15 лютого 2013 Вот и второй этаж получился Посилання на коментар Поділитися на інших сайтах More sharing options...
SergeyT Опубліковано: 25 лютого 2013 Автор Поділитись Опубліковано: 25 лютого 2013 Вот и второй этаж получился Всем здравствуйте. Недельку отсутствовал. Катался на лыжах и высматривал архитектурные решения домов на Западной Украине. Красотища !!! Готов приступить к дальнейшим обсуждениям. Посилання на коментар Поділитися на інших сайтах More sharing options...
SergeyT Опубліковано: 19 березня 2013 Автор Поділитись Опубліковано: 19 березня 2013 Всем доброго времени суток! Вот в дискуссии появилась новая планировка первого и второго этажа. Готов выслушать критику форумчан. Посилання на коментар Поділитися на інших сайтах More sharing options...
Александр2008_111 Опубліковано: 19 березня 2013 Поділитись Опубліковано: 19 березня 2013 Не вистачає розмірів. Посилання на коментар Поділитися на інших сайтах More sharing options...
biger Опубліковано: 19 березня 2013 Поділитись Опубліковано: 19 березня 2013 Блииин...проект, а не проэкт. Посилання на коментар Поділитися на інших сайтах More sharing options...
Александр2008_111 Опубліковано: 19 березня 2013 Поділитись Опубліковано: 19 березня 2013 Для мене залишається відкритим питання - опирання конструкцій даху? Посилання на коментар Поділитися на інших сайтах More sharing options...
Рекомендовані повідомлення
Створіть акаунт або увійдіть у нього для коментування
Ви маєте бути користувачем, щоб залишити коментар
Створити акаунт
Зареєструйтеся для отримання акаунта. Це просто!
Зареєструвати акаунтУвійти
Вже зареєстровані? Увійдіть тут.
Увійти зараз