skrepka Опубліковано: 2 квітня 2013 Поділитись Опубліковано: 2 квітня 2013 Когда-то размышлял на такую же тему: домик+баня. Смотрите. Туалет должен был получиться под лестницей. Но тут у меня архитекторская мысль иссякла. На втором этаже (мансарда, скошенный потолок упирается в пол) и две комнаты. 1 Посилання на коментар Поділитися на інших сайтах More sharing options...
SergeyT Опубліковано: 3 квітня 2013 Автор Поділитись Опубліковано: 3 квітня 2013 Когда-то размышлял на такую же тему: домик+баня. Смотрите. Туалет должен был получиться под лестницей. Но тут у меня архитекторская мысль иссякла. На втором этаже (мансарда, скошенный потолок упирается в пол) и две комнаты. Спасибо за подсказку, сейчас и я кое что переделаю в своем плане первого этажа. Посилання на коментар Поділитися на інших сайтах More sharing options...
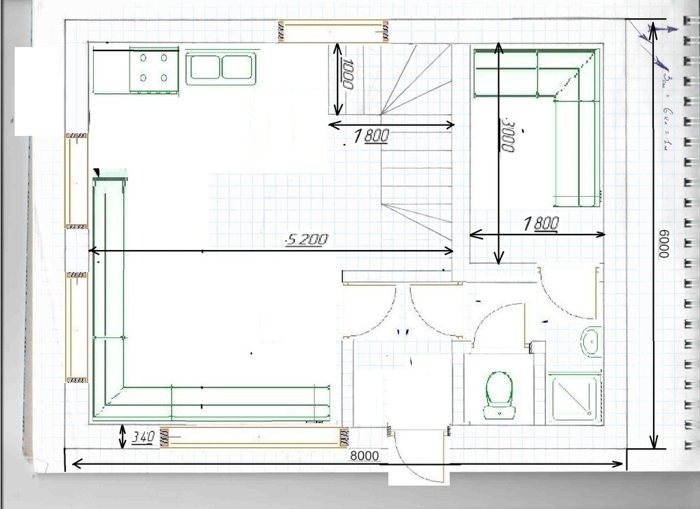
SergeyT Опубліковано: 3 квітня 2013 Автор Поділитись Опубліковано: 3 квітня 2013 Спасибо за подсказку, сейчас и я кое что переделаю в своем плане первого этажа. Вот что получилось...... Убрал один вход, и оставил вход только через террасу. Посилання на коментар Поділитися на інших сайтах More sharing options...
SergeyT Опубліковано: 5 квітня 2013 Автор Поділитись Опубліковано: 5 квітня 2013 Неплохо получилось)))) Успехов.) Спасибо!!! Не без участия форумчан получилось все очень хорошо. Может еще кое какие изменения будут, и надо приступать к строительству. Посилання на коментар Поділитися на інших сайтах More sharing options...
SergeyT Опубліковано: 11 квітня 2013 Автор Поділитись Опубліковано: 11 квітня 2013 Был на даче , еще снег лежит местами. Но заехать грузовиком еще невозможно, жду когда подсохнет и буду завозить блоки и т.д. Может еще у кого есть какие предложения по планировке, готов обсудить, пока не начали строить. Посилання на коментар Поділитися на інших сайтах More sharing options...
SergeyT Опубліковано: 24 квітня 2013 Автор Поділитись Опубліковано: 24 квітня 2013 Был на даче , еще снег лежит местами. Но заехать грузовиком еще невозможно, жду когда подсохнет и буду завозить блоки и т.д. Может еще у кого есть какие предложения по планировке, готов обсудить, пока не начали строить. Процесс пошел , уже начали доливать фундамент дома, фотки выложу. Надо переходить уже в другую тему о строительстве :D Посилання на коментар Поділитися на інших сайтах More sharing options...
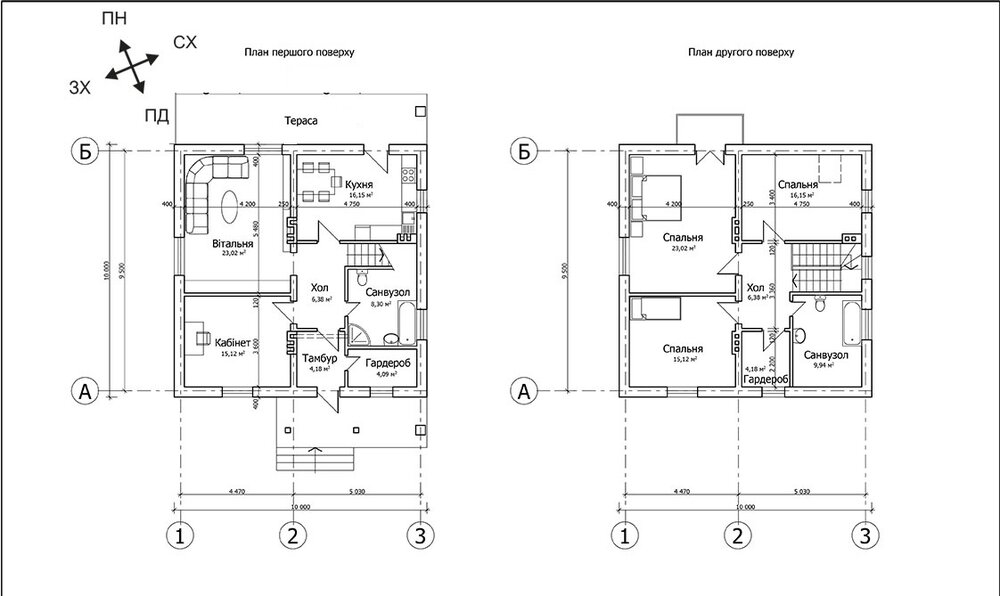
SergeyT Опубліковано: 8 травня 2013 Автор Поділитись Опубліковано: 8 травня 2013 Процесс пошел , уже начали доливать фундамент дома, фотки выложу. Надо переходить уже в другую тему о строительстве :D Как говориться аппетит приходит во время еды, так и у меня, долили фундамент, и уже площадь фундамента вышла 8 * 9 м. Теперь все рекомендуют уже строить полноценный дом, а сауну выносить в отдельное строение. Я уже и проект присмотрел. Только в размеры надо будет уложить и зеркально развернуть. Посилання на коментар Поділитися на інших сайтах More sharing options...
Рекомендовані повідомлення
Створіть акаунт або увійдіть у нього для коментування
Ви маєте бути користувачем, щоб залишити коментар
Створити акаунт
Зареєструйтеся для отримання акаунта. Це просто!
Зареєструвати акаунтУвійти
Вже зареєстровані? Увійдіть тут.
Увійти зараз