Anna Опубліковано: 16 лютого 2013 Поділитись Опубліковано: 16 лютого 2013 На этапе согласования проекта дома нужно определиться с окнами, чтоб потом не оказалось, что что-то не учли и имеем, что имеем Дом в современном стиле, одноэтажный, окон много и часть из них - высокие (2,8м и 2,2 м.), угловые. Основные типоразмеры на картинке (1 и 3 - глухие окна, 1а и 3а - с центральной поворотно-откидной секцией, есть и такие, и такие). Архитектор предлагает ПВХ (хотя смотрим и в сторону алюминия тоже), двухкамерный энергосберегающий стеклопакет, например 4-10-4-10-4i. Насколько вариант на рисунке жизнеспособен и есть ли смысл его оптимизировать? Посилання на коментар Поділитися на інших сайтах More sharing options...
Алік Опубліковано: 16 лютого 2013 Поділитись Опубліковано: 16 лютого 2013 Если ПВХ будет не белого цвета, то всё, что больше 2500 нужно будет разделить. В идеале - через термокомпенсаторы. Если белого - всё ОК. Также, учитывая большие размеры стеклопакетов, следует подумать о травмобезопасном стекле - триплексе, это касается и ПВХ, и алюминия. Посилання на коментар Поділитися на інших сайтах More sharing options...
Anna Опубліковано: 16 лютого 2013 Автор Поділитись Опубліковано: 16 лютого 2013 Также есть определенные сомнения в импостах, которые делят окно на фрамуги сверху и снизу по 60 см. Имеет ли смысл убрать одну из них или увеличить их размер при высоте окна 2,8м? Это уже чисто визуально... Добавлено через 6 минут Если ПВХ будет не белого цвета, то всё, что больше 2500 нужно будет разделить. Да, скорее не белыми. Поэтому и разделили импостами. Также, учитывая большие размеры стеклопакетов, следует подумать о травмобезопасном стекле - триплексе, это касается и ПВХ, и алюминия Предполагалось еще с целью безопасности поднять окна над уровнем чистового пола на 20 см. Конвекторы расположить внутрипольные... Посилання на коментар Поділитися на інших сайтах More sharing options...
Алік Опубліковано: 16 лютого 2013 Поділитись Опубліковано: 16 лютого 2013 Разделить нужно не импостами, а саму конструкцию на части (отдельными рамами). Но тут есть ряд нюансов зависящих от выбранной системы. Внутрипольные конвекторы - это правильно. Посилання на коментар Поділитися на інших сайтах More sharing options...
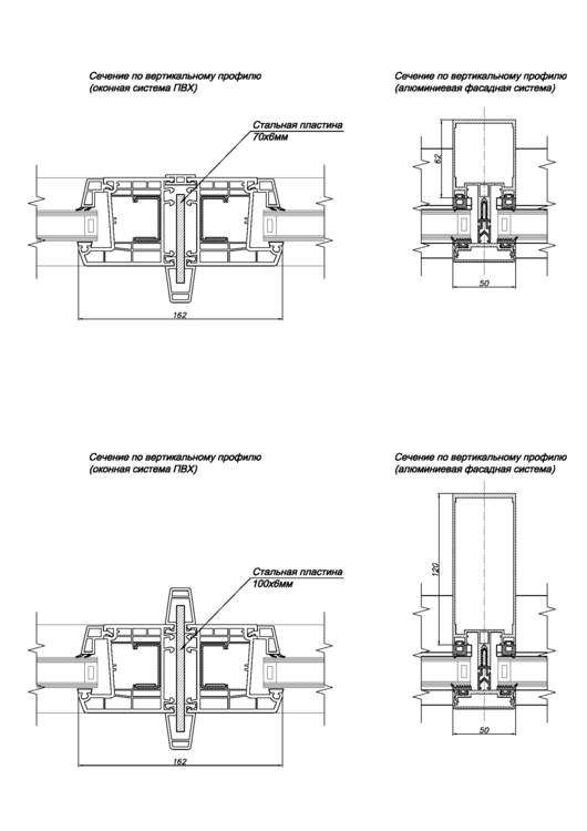
Ruslan R Опубліковано: 17 лютого 2013 Поділитись Опубліковано: 17 лютого 2013 Также есть определенные сомнения в импостах, которые делят окно на фрамуги сверху и снизу по 60 см. Имеет ли смысл убрать одну из них или увеличить их размер при высоте окна 2,8м? Это уже чисто визуально... Вот это не желательно (с точки зрения удорожания стеклопакета). Тогда придется использовать стекло в стеклопакетах толщиной 6мм. Архитектор предлагает ПВХ (хотя смотрим и в сторону алюминия тоже), двухкамерный энергосберегающий стеклопакет, например 4-10-4-10-4i. В правильную сторону смотрите. Разница между ПВХ и фасадной алюминиевой системой (система предназначена для витражей больших размеров), в том что видимая ширина профиля у алюминия всего 50мм (см. ниже как должно будет выглядеть сечение вертикального профиля), у ПВХ же это около 160мм. Только стоимость алюминия будет раза так в 2-3 дороже, чем ПВХ Если будете делать все таки из ПВХ, то нужно очень ответственно отнестись как к правильной конструкции при изготовлении (допустимые размеры цельной конструкции, просчет конструкции на статику), так и к самому монтажу. Будут просчеты, сразу не заказывайте, вылаживайте здесь спецификации конструкций, обсудим. P.S. Уверен что правильно вам посчитают 1 фирма из 10. Посилання на коментар Поділитися на інших сайтах More sharing options...
lndigo Опубліковано: 17 лютого 2013 Поділитись Опубліковано: 17 лютого 2013 На этапе согласования проекта дома нужно определиться с окнами, чтоб потом не оказалось, что что-то не учли и имеем, что имеем Дом в современном стиле, одноэтажный, окон много и часть из них - высокие (2,8м и 2,2 м.), угловые. Основные типоразмеры на картинке (1 и 3 - глухие окна, 1а и 3а - с центральной поворотно-откидной секцией, есть и такие, и такие). Архитектор предлагает ПВХ (хотя смотрим и в сторону алюминия тоже), двухкамерный энергосберегающий стеклопакет, например 4-10-4-10-4i. Насколько вариант на рисунке жизнеспособен и есть ли смысл его оптимизировать? Первую конструкцию в ПВХ не белого цвета изготавливать нельзя. Оба размера - и ширина, и высота, превосходят максимально допустимые 2,5 метра для глухого остекления. Как вариант, можно сделать в трех рамах через два вертикальных термокомпенсатора (достаточно и одного, но пострадает эстетика), но при условии, что верхние фрамуги будут открываться. При монтаже обязательно использование т.н. евромонтажа, использовать пену/псул с повышенной эластичностью. Посилання на коментар Поділитися на інших сайтах More sharing options...
Anna Опубліковано: 17 лютого 2013 Автор Поділитись Опубліковано: 17 лютого 2013 (змінено) Вот это не желательно (с точки зрения удорожания стеклопакета). Тогда придется использовать стекло в стеклопакетах толщиной 6мм. В правильную сторону смотрите. Разница между ПВХ и фасадной алюминиевой системой (система предназначена для витражей больших размеров), в том что видимая ширина профиля у алюминия всего 50мм (см. ниже как должно будет выглядеть сечение вертикального профиля), у ПВХ же это около 160мм. Только стоимость алюминия будет раза так в 2-3 дороже, чем ПВХ Если будете делать все таки из ПВХ, то нужно очень ответственно отнестись как к правильной конструкции при изготовлении (допустимые размеры цельной конструкции, просчет конструкции на статику), так и к самому монтажу. Будут просчеты, сразу не заказывайте, вылаживайте здесь спецификации конструкций, обсудим. P.S. Уверен что правильно вам посчитают 1 фирма из 10. Да, алюминиевые системы - это, конечно, круто, перечаила много инфы и здесь, и на дружественных форумах. Но заявленная разница в 2-3 (а то и в 3-4) раза, конечно, несколько смущает Поэтому и добавляли импосты сразу в проект - чтоб была возможность если что, сделать из ПВХ. Видела много Ваших постов по требованиям к конструктиву подобных окон, спасибо. Буду рада комментариям! Добавлено через 3 минуты но при условии, что верхние фрамуги будут открываться. И я так понимаю, в любом случае это будут уже не импосты, а отдельные рамы с соответствующей шириной рамы в 16 см? (я о горизонстальных импостах, вертикальнце понятно что отдельные рамы) Добавлено через 59 секунд Разделить нужно не импостами, а саму конструкцию на части (отдельными рамами). Но тут есть ряд нюансов зависящих от выбранной системы. Внутрипольные конвекторы - это правильно. А какие системы в таком случае могли бы посоветовать? Змінено 17 лютого 2013 користувачем Anna Посилання на коментар Поділитися на інших сайтах More sharing options...
ЧП Ненашев А Б Опубліковано: 17 лютого 2013 Поділитись Опубліковано: 17 лютого 2013 Если Ваши конструкции исполнять в дереве, то вообще никаких проблем не возникнет. Можно использовать и 68 мм профиль и 78 мм. При желании можно и без горизонтальных импостов, правда в этом случае стеклопакет 4-10-4-10-4i не подойдет, а нужно как говорили выше использовать стеклопакеты со стеклом 6 мм и желательно триплекс или каленое. Посилання на коментар Поділитися на інших сайтах More sharing options...
lndigo Опубліковано: 17 лютого 2013 Поділитись Опубліковано: 17 лютого 2013 И я так понимаю, в любом случае это будут уже не импосты, а отдельные рамы с соответствующей шириной рамы в 16 см? В конструкциях шириной 3600 - да. 1 Посилання на коментар Поділитися на інших сайтах More sharing options...
Алік Опубліковано: 17 лютого 2013 Поділитись Опубліковано: 17 лютого 2013 А какие системы в таком случае могли бы посоветовать? Генео, например, у него ограничение до 3000 мм, если не ошибаюсь. 1 Посилання на коментар Поділитися на інших сайтах More sharing options...
Торопов александр Опубліковано: 17 лютого 2013 Поділитись Опубліковано: 17 лютого 2013 Вообще-то этот выбор делается на уровне принятия проектного решения. ПВХ в этих конструкциях будет смотреться грубо. Кроме того, тепловое расширение конструкций - 1 мм на 1 м. Ламинированный и того больше. Тут только алюминий или дерево (деревоалюминий). И не обязательно фасадный. Даже в ПВХ цена уйдет от общеизвестной сильно вверх. Дорогое решение по остеклению. Надеюсь, пейзаж его оправдывает. Посилання на коментар Поділитися на інших сайтах More sharing options...
Ruslan R Опубліковано: 17 лютого 2013 Поділитись Опубліковано: 17 лютого 2013 Кроме того, тепловое расширение конструкций - 1 мм на 1 м. Ошибаетесь, это у алюминия 1мм. Температурное линейное расширение ПВХ профиля (с армировкой) белого цвета около 3-4мм на 1 м.п., ламинированного - около 5-6мм. 1 Посилання на коментар Поділитися на інших сайтах More sharing options...
lndigo Опубліковано: 17 лютого 2013 Поділитись Опубліковано: 17 лютого 2013 Температурное линейное расширение ПВХ профиля (с армировкой) ... ламинированного - около 5-6мм. Т.е. конструкция в 3 метра длиной расширится на 18 мм? Это при каком перепаде температуры? Посилання на коментар Поділитися на інших сайтах More sharing options...
mgerbut Опубліковано: 17 лютого 2013 Поділитись Опубліковано: 17 лютого 2013 Ошибаетесь Александр Михалыч не ошибается. ((((: Готов поспорить, что он раз в пятьсот больше вашего спроектировал и проверил на практике. Добавлено через 37 минут На этапе согласования проекта дома нужно определиться с окнами.... Дом в современном стиле, одноэтажный, окон много Простите, а ежели есть средства на новый дом и на услуги архитектора: то почему вообще вы допускаете мысли о пластмассе? Если дом современный- то алюминий. Если дом современный и теплый- то дерево. Оставте пластмассу производителям кулёчков. ((((: И перестаньте слушать советчиков про перегородки и импосты: чем их меньше- тем правильнее, красивее и лучше. Почему-то приходится слышать такое "у вас сильно большая створка! Нужен для прочности импост!" Хотя надо говорить так: "у нас сильно паршивый профиль! Чтоб не розлезлось при таких размерах нужен импост!" 1 Посилання на коментар Поділитися на інших сайтах More sharing options...
Ruslan R Опубліковано: 17 лютого 2013 Поділитись Опубліковано: 17 лютого 2013 Александр Михалыч не ошибается. ((((: Готов поспорить, что он раз в пятьсот больше вашего спроектировал и проверил на практике. Спорьте со столбом на улице. А посчитать линейное температурное расширение ПВХ профиля, что уже слабо? Специально для вас, уже кстати где то писал об этом, на форуме, повторюсь. Учим матчасть. L = K * T * L1, где L - суммарное изменение длины ПВХ профиля вследствии температурных перепадов К - коэффициент линейного температурного расширения материала T - температурный перепад L1 - первоначальная длина профиля Нагрев профиля может быть гораздо выше температуры воздуха, вследствие неблагоприятного сочетания высокой температуры наружного воздуха и направленного воздействия солнечной радиации (к примеру, окно установлено на южной стороне дома, не затенено, в таком случае, белый профиль может нагреться до +50°С, а цветной до +65°С). Соответственно возможный перепад температуры может достигать 95 градусов (при условии что зимой -30 градусов) и тогда расширение ПВХ профиля (без армировки, просто палка ПВХ) может достигать до 7.6мм на 1 метре погонном. Вот расчет (формула выше): L = 8*10^-5 * 95 градусов * 1м = 7,6мм Если это не солнечная сторона (перепад температур будет -30 зимой и +35 летом = 65 градусов) то будет так L = 8*10^-5 * 65 градусов * 1м = 5,2мм Важно. Применение армировочного профиля снижает линейное расширение (КЛР для образца с армированием = 5,6 х 10^-5 м/°С). При таком условии получается так L = 5,6*10^-5 * 95 градусов * 1м = 5,3мм L = 5,6*10^-5 * 65 градусов * 1м = 3,6мм 1 Посилання на коментар Поділитися на інших сайтах More sharing options...
Anna Опубліковано: 17 лютого 2013 Автор Поділитись Опубліковано: 17 лютого 2013 Вообще-то этот выбор делается на уровне принятия проектного решения. Дорогое решение по остеклению. Надеюсь, пейзаж его оправдывает. Именно на уровне согласнования эскизного проекта сейчас и находимся - поэтому вопрос и стал. Не хочу получить пакет рабочей документации по проекту и _потом_ ломать голову над окнами Что касается самой площади остекления - выбор абсолютно осзнанный, именно под участок и разрабатываем проект. Участок в Рославичах, на холме с отличным видом, справа и слева - овраг и лес, впереди - овраг и склон... Добавлено через 9 минут Простите, а ежели есть средства на новый дом и на услуги архитектора: то почему вообще вы допускаете мысли о пластмассе? Архитектор - потому как есть опыт строительства по готовому проекту: строили дом родителям мужа, и в данном случае хотелось уже по своим наработкам и предпочтениям в плане решений пространства дома получить проект именно под себя. А насчет мыслей... Ну, опять же опыт одной пройденной стройки показывает: разбираться надо во всем, и самому... Только тогда не надо будет списывать свои недочеты на "неграмотного" прораба или "криворуких" строителей... А ПВХ ничем не хуже других материалов, просто всему свое место... Я полностью согласна, что алюминий в данном случае будет лучше... но стройка складывается из мелочей, и от этих самых мелочей бюджет стройки растет непомерно... Дверь? Так вот эта чуть лучше... а, что такое еще +200$... Плитка?... - ну, а вот этот керамогранит будет поинтереснеее... Кабель? - так Одессакабель, что ж еще... и так далее, и бесконечно))) Добавлено через 6 минут Если Ваши конструкции исполнять в дереве, то вообще никаких проблем не возникнет. Смотрела Ваши работы и отзывы на сайте - респект. Дерево очень нравится как материал, но боюсь в моем случае бюджет на все окна в дереве будет огромен..;) Смущает также момент, что дерево в любом случае требует более трепетного и заботливого отношения, боится воды, его надо лакировать через н-лет и т.д. Или современные деревянные окна - это уже совершенно другой случай? 1 Посилання на коментар Поділитися на інших сайтах More sharing options...
Ruslan R Опубліковано: 17 лютого 2013 Поділитись Опубліковано: 17 лютого 2013 Участок в Рославичах, на холме с отличным видом, справа и слева - овраг и лес, впереди - овраг и склон... Если окна ставить, так в одном стиле, либо все только ПВХ, либо все только алюминий. А если алюминий, так тут возможности не ограничены. Стеклопакеты можно хоть цельные поставить 3600х2800мм. Вопрос в стоимости (финансовых возможностях). Посилання на коментар Поділитися на інших сайтах More sharing options...
Anna Опубліковано: 17 лютого 2013 Автор Поділитись Опубліковано: 17 лютого 2013 Если окна ставить, так в одном стиле, либо все только ПВХ, либо все только алюминий. А если алюминий, так тут возможности не ограничены. Стеклопакеты можно хоть цельные поставить 3600х2800мм. Вопрос в стоимости (финансовых возможностях). Да. я понимаю что сейчас за деньги можно все... А хочется ведь как всегда - и красиво, и за разумные деньги... Скажем так - деньги на стройку зарабоатываем сами, поэтому бездонного мешка нет Но полностью согласна, что определенные интерьерные решения предполагают определенные затраты... Считаете, что вариант, когда часть окон - например, фасад, где большие витражи - из алюминия, а остальное - ПВХ в том же цвете, в принципе не жизнеспособен?... Посилання на коментар Поділитися на інших сайтах More sharing options...
Ruslan R Опубліковано: 17 лютого 2013 Поділитись Опубліковано: 17 лютого 2013 Считаете, что вариант, когда часть окон - например, фасад, где большие витражи - из алюминия, а остальное - ПВХ в том же цвете, в принципе не жизнеспособен?... Почему не жизнеспособен? Жизнеспособен. Но это уже называется экономия. P.S. А вот с цветом никогда не угадаете. ПВХ со временем меняет слегка цвет, а алюминий практически нет. Да даже изначально цвет будет отличаться. Кстати "ламиниция" на алюминиевый профиль (покраска под структуру дерева) очень дорогое удовольствие, около 50% от стоимости алюминиевого профиля. Видел как то конструкции арочные из двух частей. Верхняя арка была из ПВХ. В белом цвете. Отличался цвет конкретно, сначала даже не понял, как это алюминий так цвет поменял, потом пригляделся, а арочные (верхние) конструкции из ПВХ. И коттедж там не хилый был, более 1000м.кв. (зимний сад там делали), все конструкции там были алюминиевые, а арочные части из ПВХ. А заказчику кстати там было бы по барабану (я про стоимость), если бы это были алюминиевые конструкции полностью. Может он и думает что они алюминиевые... Посилання на коментар Поділитися на інших сайтах More sharing options...
Anna Опубліковано: 17 лютого 2013 Автор Поділитись Опубліковано: 17 лютого 2013 Почему не жизнеспособен? Жизнеспособен. Но это уже называется экономия. P.S. А вот с цветом никогда не угадаете. ПВХ со временем меняет слегка цвет, а алюминий практически нет. Да даже изначально цвет будет отличаться. Кстати "ламиниция" на алюминиевый профиль (покраска под структуру дерева) очень дорогое удовольствие, около 50% от стоимости алюминиевого профиля. Да, понимаю... Но экономность, если она оправдана и не входит за рамки разумного - не самое плохое качество в строительстве Не буду даже спорить - уж если выбирать материал на окна, то лучше чтоб он был везде одинаковый... Да и строим мы, к счастью, дом своей месты не так часто, чтоб тотально экномить... Хотя, если мечты нестабильны - могут быть варианты))) Посилання на коментар Поділитися на інших сайтах More sharing options...
mgerbut Опубліковано: 17 лютого 2013 Поділитись Опубліковано: 17 лютого 2013 Спорьте со столбом Специально для вас, уже кстати где то писал об этом, на форуме, повторюсь. Учим матчасть. Учить матчасть нужно не с помощью гугля, а с помощью учебников в институте. Но, хоть и ваши знания из интернета ,- меня они не впечатляют, а веселят. Добавлено через 10 минут . Дерево очень нравится как материал, но боюсь в моем случае бюджет на все окна в дереве будет огромен..;) Смущает также момент, что дерево в любом случае требует более трепетного и заботливого отношения, боится воды, его надо лакировать через н-лет и т.д. Или современные деревянные окна - это уже совершенно другой случай? 1. Вынеповерите, в украине алюминиевые окна дороже деревянных. Дешевле- только т.н. Холодный алюминий- но он не для жилых помещений. 2. Если бы дерево боялось воды из него не строили бы лодки и корабли (((((((: а если серьезно- при соблюдении технологии обработки и применении соответствующих материалов- покрытия на древесине конкурируют по долговечности с краской на металле. Конечно же технологии соблюдают не все, поэтому все-таки есть миф, что "деревянные окна надо лакировать" 3. Современные деревянные окна это действительно "совершенно другой случай". ((((((; 1 Посилання на коментар Поділитися на інших сайтах More sharing options...
Anna Опубліковано: 18 лютого 2013 Автор Поділитись Опубліковано: 18 лютого 2013 Генео, например, у него ограничение до 3000 мм, если не ошибаюсь. Почитала про Генео, отдала на просчет стандартные элементы... Вполне может быть. Спасибо! Добавлено через 5 минут 2. Если бы дерево боялось воды из него не строили бы лодки и корабли (((((((: а если серьезно- при соблюдении технологии обработки и применении соответствующих материалов- покрытия на древесине конкурируют по долговечности с краской на металле. Конечно же технологии соблюдают не все, поэтому все-таки есть миф, что "деревянные окна надо лакировать" 3. Современные деревянные окна это действительно "совершенно другой случай". ((((((; Ну, обычная древесина в обычном виде воды таки боится... Вопрос в обработке. Вне конкуретнции, конечно, мореный дуб)) А если серьезно - спасибо за совет, подумаю тогда насчет деревянных окон более серьезно. Добавлено через 30 минут Только стоимость алюминия будет раза так в 2-3 дороже, чем ПВХ Хочется более точно понять все таки в моем конкретном случае. Вы могли бы посчитать стоимость двух вариантов окон из необходимых мне? Например, проем 3,6*2,8 глухой и 1,8*2,8 с дверью... В случае если мы говорим о стеклопакете 4-10-4-10-4i и минимальном количестве рам\импостов, в темном цвете. Возможно действительно стоимость ПВХ с необходимым усилением и т.д окажется ненамного меньше и нет смысла так долго думать... Хотя, я так понимаю, значительная разница в стоимости всего остекления может получиться за счет гораздо более высокой цены алюминиевых против ПВХ окон в случае со стандартными размерами - а у меня их еще 9, кроме 6 витражных Посилання на коментар Поділитися на інших сайтах More sharing options...
Ruslan R Опубліковано: 18 лютого 2013 Поділитись Опубліковано: 18 лютого 2013 Учить матчасть нужно не с помощью гугля, а с помощью учебников в институте. Но, хоть и ваши знания из интернета ,- меня они не впечатляют, а веселят. А в учебниках что то другое написано? Просвятите Формула расчета то одна и та же. P.S. А интернетом это вы "спец" пользоваться я смотрю, больше ничего и не знаете кроме него Добавлено через 2 минуты А если серьезно - спасибо за совет, подумаю тогда насчет деревянных окон более серьезно. Даже и не думайте, нормальные деревянные окна (из клеенного бруса) будут стоить раза в 2 дороже алюминия. Все остальное облезет и деформируется, не сразу конечно, со временем... Посилання на коментар Поділитися на інших сайтах More sharing options...
Anna Опубліковано: 18 лютого 2013 Автор Поділитись Опубліковано: 18 лютого 2013 Даже и не думайте, нормальные деревянные окна (из клеенного бруса) будут стоить раза в 2 дороже алюминия. Все остальное облезет и деформируется, не сразу конечно, со временем... В данном случае очень хочется оперировать понятиями конкретных цифр... Я понимаю, что у каждого материала свои плюсы и минусы и нет идеальных решений, но хочется как минимум оптимальное для данного случая. В алюминии меня очень привлекает более красивый и "тонкий" внешний вид витража. По проекту он мне гораздо больше подходит. Посилання на коментар Поділитися на інших сайтах More sharing options...
Ruslan R Опубліковано: 18 лютого 2013 Поділитись Опубліковано: 18 лютого 2013 Возможно действительно стоимость ПВХ с необходимым усилением и т.д окажется ненамного меньше и нет смысла так долго думать... Я тоже так по началу думал, но потом тут (на форуме) сверились ценами (с пользователем Яло). Разница получилась раза в 2 дороже алюминий (если память не изменяет). Считали тогда правильные конструкции в обоих случаях. P.S. Если бы это сверить лет так 7-8 назад, то да, тогда бы была приблизительно одинаковая стоимость. Сейчас ПВХ дешевле "грязи". Посилання на коментар Поділитися на інших сайтах More sharing options...
Рекомендовані повідомлення
Створіть акаунт або увійдіть у нього для коментування
Ви маєте бути користувачем, щоб залишити коментар
Створити акаунт
Зареєструйтеся для отримання акаунта. Це просто!
Зареєструвати акаунтУвійти
Вже зареєстровані? Увійдіть тут.
Увійти зараз